Với lợi thế mặt tiền rộng 8m và chiều sâu 20m, biệt thự phố 8×20 là lựa chọn được nhiều gia đình tại đô thị quan tâm nhờ khả năng tổ chức không gian linh hoạt và khai thác tốt công năng sử dụng. Tuy nhiên, để công trình vừa đáp ứng nhu cầu sinh hoạt, vừa tối ưu chi phí và đảm bảo tính thẩm mỹ, phương án thiết kế cần được tính toán kỹ ngay từ đầu. Trong nội dung dưới đây, NEOHouse giới thiệu các mẫu thiết kế biệt thự phố 8×20 tiêu biểu, kèm theo phân tích phối cảnh, mặt bằng công năng và những lưu ý quan trọng trong quá trình thiết kế – thi công. Mời khách hàng và các bạn đọc cùng tham khảo!
Tham khảo thêm: Biệt Thự Phố Là Gì? Ưu Điểm & Những Thiết Kế Nổi Bật Nhất
Mẫu thiết kế biệt thự phố 8x20m 5 tầng
Dự án đầu tiên mà NEOHouse giới thiệu chính là mẫu biệt thự phố 8×20 5 tầng của anh Đăng tại Tân Phú, Hồ Chí Minh. Anh có mong muốn xây dựng 1 ngôi nhà vừa có không gian sống tiện nghi vừa kết hợp với kinh doanh. Công trình hướng đến giải pháp mặt tiền thoáng rộng, hình khối cân đối và sử dụng vật liệu hiện đại nhằm tạo dấu ấn riêng, đồng thời đảm bảo tính ứng dụng cao trong quá trình sinh sống.

Phối cảnh kiến trúc biệt thự
Theo yêu cầu của chủ đầu tư, kiến trúc sư NEOHouse tiến hành lên phương án và thiết kế phối cảnh cho công trình. Phần mặt tiền tập trung xử lý mặt tiền theo hướng thông thoáng, ưu tiên sử dụng các vật liệu hiện đại như kính, gỗ và đá tự nhiên nhằm tăng tính thẩm mỹ và độ bền cho công trình. Cùng với kiến trúc được tổ chức rõ ràng, có điểm nhấn cụ thể tạo nên diện mạo cuốn hút và tạo được sự khác biệt so với những mẫu biệt thự phố cùng phong cách trong khu vực.

Ngoài ra, tổng thể ngôi nhà được triển khai đồng bộ từ hệ thống tường bao đến mặt tiền công trình. Căn biệt thự sử dụng tông sơn trắng làm chủ đạo, kết hợp cổng sắt phun sơn tĩnh điện màu đen, mang lại cảm giác chắc chắn và hiện đại. Các khối ban công được thiết kế đua ra rộng, kết hợp lan can kính cường lực, cửa kính khung nhôm Xingfa cùng gỗ nhựa ngoài trời, qua đó tăng chiều sâu kiến trúc và cải thiện khả năng lấy sáng, thông gió tự nhiên cho không gian sống. Bên cạnh đó, tiểu cảnh xanh được bố trí tại mặt tiền cũng như ban công, góp phần cân bằng không gian và mang lại cảm giác thông thoáng, mát mẻ và gần gũi với thiên nhiên.

Bản vẽ mặt bằng công năng biệt thự phố 8x20m 5 tầng
Về công năng sử dụng, anh Đăng mong muốn ngôi nhà được bố trí linh hoạt, đáp ứng tốt nhu cầu sinh hoạt của gia đình và tận dụng triệt để các không gian. Các khu vực chức năng được bố trí khoa học, có sự phân tách rõ ràng giữa không gian sinh hoạt chung, khu vực nghỉ ngơi và các phòng chức năng riêng, nhằm đảm bảo sự tiện nghi và riêng tư trong quá trình sinh hoạt. Dựa trên định hướng này, chúng tôi đã lên phương án thiết kế mặt bằng công năng cho mẫu biệt thự phố 8×20 5 tầng như sau:
Bản vẽ mặt bằng tầng trệt
Không gian tầng trệt được thiết kế phục vụ mục đích kinh doanh văn phòng với các khu chức năng bố trí logic, mạch lạc và thuận lợi trong quá trình sinh hoạt. Khu vực tiếp khách được đặt ngay gần sảnh chính, liền kề là gara xe máy, giúp việc di chuyển và tiếp đón diễn ra dễ dàng hơn. Từ gara đi vào bên trong là sảnh công ty, tại đây bố trí tiểu cảnh xanh nhỏ nhằm tạo sự cân bằng về phong thủy và cảm giác dễ chịu cho không gian làm việc. Phía trong là khu vực làm việc của nhân viên, phòng giám đốc và nhà vệ sinh chung được sắp xếp đối diện nhau, đảm bảo sự gọn gàng và riêng tư cần thiết. Trung tâm ngôi nhà là sảnh thang kết hợp cầu thang bộ và thang máy thông tầng, đóng vai trò kết nối xuyên suốt các tầng.

Bản vẽ mặt bằng lầu 1
Không gian sinh hoạt chung của gia đình được bố trí tại tầng này với phòng khách có diện tích rộng rãi, hướng ra ban công trước mặt tiền để tăng độ thông thoáng và khả năng đón nhận không khí tự nhiên. Phòng khách được thiết kế liên thông với khu vực phòng ăn và phòng bếp, nhằm tạo nên một không gian sống rộng rãi, thoáng đãng, tăng tính kết nối giữa các thành viên trong gia đình. Đặc biệt, cách bố trí này giúp hạn chế mùi thức ăn lưu lại trong nhà.

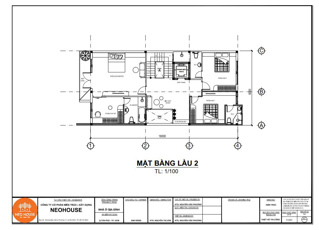
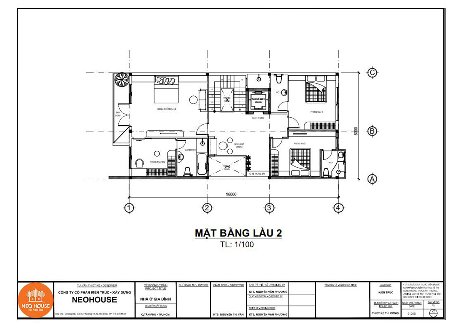
Bản vẽ mặt bằng lầu 2
Khu vực nghỉ ngơi chính của gia đình được bố trí tại lầu 2 với tổng cộng 3 phòng ngủ. Phòng ngủ master được sắp xếp hướng ra ban công, tích hợp nhà vệ sinh khép kín và phòng thay đồ, đảm bảo sự tiện nghi trong sinh hoạt. Không gian sinh hoạt chung được đặt tại trung tâm tầng, liền kề cầu thang bộ và thang máy thông tầng, giúp việc di chuyển giữa các khu vực diễn ra thuận tiện. Hai phòng ngủ còn lại có diện tích nhỏ hơn, trong đó một phòng được thiết kế nhà vệ sinh khép kín nhằm đáp ứng nhu cầu sử dụng riêng tư.

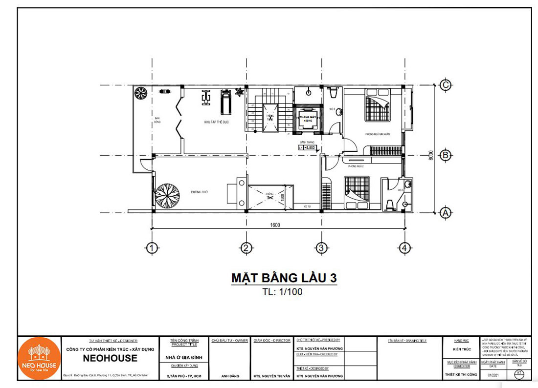
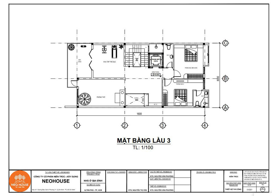
Bản vẽ mặt bằng lầu 3
Cùng với đó, lầu 3 được bố trí thêm 2 phòng ngủ, trong đó một phòng có nhà vệ sinh khép kín, nhà vệ sinh chung được đặt gần hai phòng ngủ để thuận tiện khi sử dụng. Không gian phòng thờ được bố trí hướng ra ban công trước mặt tiền, đảm bảo sự trang nghiêm và thanh tịnh. Đối diện khu vực phòng thờ là không gian tập thể dục kết hợp ban công, phục vụ nhu cầu rèn luyện và sinh hoạt hằng ngày của gia đình.

Bản vẽ mặt bằng tầng tum
Không gian tầng tum được tận dụng làm khu vực sinh hoạt ngoài trời, phù hợp cho các buổi tiệc gia đình với bộ bàn ghế dài và khoảng không gian rộng rãi. Tiểu cảnh xanh được bố trí xen kẽ nhằm tạo cảm giác thoáng đãng và gần gũi. Ngoài ra, tầng này còn được thiết kế nhà vệ sinh chung và khu vực giặt – phơi, bố trí tách biệt để đảm bảo sự gọn gàng trong quá trình sử dụng.

Mẫu biệt thự phố 8x20m 4 tầng hiện đại
Sở hữu khu đất có mặt tiền rộng 8m tại TP.HCM, chị Trâm mong muốn xây dựng một mẫu biệt thự có quy mô lớn, được thiết kế chỉnh chu và mang đến một vẻ đẹp độc đáo, khác biệt. Sau quá trình tìm hiểu và trao đổi cùng các kiến trúc sư tại NEOHouse, chị đã đồng ý phương án thiết kế biệt thự phố 8×20 4 tầng tân cổ điển, vừa đáp ứng được về tính thẩm mỹ vừa mang đến công năng sử dụng tối ưu và tiện nghi nhất.

Phối cảnh 3D mẫu biệt thự phố 4 tầng 8x20m
Thoạt nhìn, công trình gây ấn tượng với hình khối vững chắc, tỷ lệ cân đối và bố cục mặt tiền rõ ràng. Hệ trụ cột Ionic và Corinthian được bố trí phía trước, kết hợp cùng các mảng vòm đặc trưng, giúp thể hiện rõ tinh thần kiến trúc tân cổ điển với đường nét khỏe khoắn nhưng vẫn giữ được sự mềm mại và thanh thoát.
Ngôn ngữ kiến trúc được triển khai thống nhất từ hệ thống tường rào đến khối nhà chính. Các chi tiết như trụ cột, cột mái và mảng tường đều tuân thủ nguyên tắc đối xứng, được cân chỉnh tỷ lệ hợp lý nhằm tạo nên tổng thể hài hòa. Phần mặt tiền được xử lý theo hướng thanh thoát với hiên chính rộng, bậc tam cấp cao, kết hợp các đường gờ và đường kẻ lõm chạy dọc thân nhà, qua đó tạo chiều sâu thị giác và điểm nhấn rõ ràng, hạn chế cảm giác nặng nề thường gặp ở nhà phố cao tầng.

Về màu sắc và vật liệu, phương án ngoại thất sử dụng sự phối hợp hài hòa giữa đá ốp tông vàng tại tầng trệt, mảng tường sơn trắng cùng hệ lan can và cửa nhôm Xingfa màu đen. Các chi tiết lan can uốn lượn, hoa văn trang trí và hệ cửa cổng được gia công tỉ mỉ, góp phần tăng tính nhận diện cho công trình. Nhìn tổng thể, mẫu biệt thự 8×20 4 tầng mang dáng dấp bề thế như một công trình quy mô lớn, dù được xây dựng trên khu đất mặt tiền 8m, cho thấy khả năng xử lý hình khối và tổ chức mặt tiền hiệu quả trong bối cảnh nhà phố đô thị.

Bản vẽ mặt bằng công năng biệt thự phố 4 tầng 8x20m
Về công năng sử dụng, gia chủ định hướng ngôi nhà được tổ chức rõ ràng theo từng tầng, đáp ứng đồng thời nhu cầu làm việc, sinh hoạt chung và không gian nghỉ ngơi riêng. Các khu vực chức năng được phân chia mạch lạc, đảm bảo sự thuận tiện trong di chuyển, tính riêng tư cần thiết và phù hợp với thói quen sinh hoạt của gia đình. Trên cơ sở đó, kiến trúc sư NEOHouse đã triển khai mặt bằng theo từng tầng, chú trọng bố trí cầu thang bộ và thang máy hợp lý, giúp việc di chuyển giữa các tầng dễ dàng, nhanh chóng và thuận tiện hơn.
Bản vẽ mặt bằng tầng trệt
Công năng sử dụng tại tầng trệt được gia chủ định hướng phục vụ mục đích kinh doanh văn phòng. Từ sân trước bước vào là khu vực phòng tiếp khách, liền kề cầu thang bộ và thang máy nhằm thuận tiện cho việc di chuyển. Đối diện phòng tiếp khách là khu vực để xe máy, đáp ứng nhu cầu sử dụng hằng ngày. Từ thang máy đi sâu vào bên trong là không gian phòng giám đốc và nhà vệ sinh chung. Khu vực phòng làm việc của nhân viên được bố trí sát bên, phân chia khoa học và đảm bảo không gian làm việc thông thoáng.

Bản vẽ mặt bằng lầu 1
Không gian sinh hoạt chung của gia đình được bố trí tại tầng này với công năng sử dụng xoay quanh phòng khách, phòng ăn và khu vực bếp. Phòng khách được thiết kế hướng ra ban công trước mặt tiền, mang lại cảm giác thoáng đãng và dễ chịu. Khu vực bếp và phòng ăn được thiết kế mở liên kết với phòng khách, kết hợp thiết kế thông tầng và bố trí tiểu cảnh xanh nhằm tăng khả năng lưu thông không khí cho không gian sống. Trung tâm ngôi nhà là khu vực thang bộ, thang máy và nhà vệ sinh chung, thuận tiện cho việc sử dụng.

Bản vẽ mặt bằng lầu 2
Công năng sử dụng tại lầu 2 tập trung vào không gian nghỉ ngơi chính của gia đình. Tầng này được bố trí một phòng ngủ master với diện tích rộng, tích hợp nhà tắm riêng gồm bồn tắm nằm và phòng tắm đứng, phòng thay đồ riêng. Phòng ngủ master được đặt hướng ra ban công trước mặt tiền giúp đón được ánh nắng và gió tự nhiên. Khu vực trung tâm là phòng sinh hoạt chung kết hợp cầu thang bộ và thang máy. Hai phòng ngủ còn lại được bố trí phía bên cạnh, đều có nhà vệ sinh khép kín đầy đủ nội thất, đáp ứng nhu cầu sử dụng độc lập của từng thành viên.

Bản vẽ mặt bằng lầu 3
Không gian lầu 3 được bố trí các phòng chức năng phục vụ sinh hoạt gia đình. Công năng sử dụng gồm hai phòng ngủ, trong đó một phòng có nhà vệ sinh khép kín, nhà vệ sinh còn lại được đặt ngay gần khu vực phòng ngủ để thuận tiện sử dụng. Phòng thờ được thiết kế với diện tích rộng, hướng ra ban công phía trước nhằm đảm bảo sự trang nghiêm và thông thoáng. Bên cạnh phòng thờ là khu vực tập thể dục, tạo không gian sinh hoạt nhẹ nhàng và tách biệt.

Mẫu nhà phố 3 tầng hiện đại 8x16m
Xuất phát từ nhu cầu xây dựng không gian sống cho gia đình 4 thành viên, anh Đa tìm đến NEOHouse để được tư vấn phương án thiết kế nhà phố 3 tầng hiện đại 8×20 trên khu đất có tổng diện tích 8x22m. Phần diện tích còn lại phía trước được gia chủ định hướng làm sân, giúp công trình có khoảng đệm thoáng và tăng khả năng lấy sáng, thông gió tự nhiên cho toàn bộ ngôi nhà.

Phối cảnh kiến trúc nhà phố 3 tầng hiện đại 8x16m
Nhìn từ xa, phối cảnh kiến trúc mẫu nhà phố 3 tầng được triển khai theo phong cách hiện đại, tập trung vào hình khối đơn giản, rõ ràng và có điểm nhấn riêng. Gia chủ mong muốn mặt tiền thể hiện sự độc đáo trong cách tổ chức khối, kết hợp hài hòa giữa màu sắc và vật liệu, đảm bảo vẻ đẹp tinh tế nhưng không cầu kỳ, đồng thời tối ưu khả năng lấy sáng và gió cho không gian bên trong.

Tổng thể công trình sử dụng các khối vuông cơ bản làm chủ đạo, kết hợp ban công đua ra rộng và hệ mái bằng, tạo cảm giác vững chắc và gọn gàng. Điểm nhấn mặt tiền nằm ở việc sử dụng gỗ nhựa ngoài trời ốp các mảng tường từ lầu 1 đến lầu 2, kết hợp lan can và mái che sắt sơn tĩnh điện màu đen, giúp công trình có chiều sâu và dễ nhận diện. Phối màu ngoại thất ưu tiên các gam trung tính, kết hợp hệ cửa kính khung nhôm Xingfa và đèn âm tường, mang lại cảm giác hiện đại, trẻ trung và hài hòa trong tổng thể.

Bản vẽ mặt bằng công năng nhà phố 3 tầng hiện đại 8x16m
Về công năng sử dụng, gia chủ mong muốn các không gian được tổ chức khoa học, liên kết chặt chẽ nhưng vẫn đảm bảo sự riêng tư cần thiết cho từng thành viên. Phương án mặt bằng được triển khai theo từng tầng, ưu tiên bố trí cầu thang bộ hợp lý, giúp việc đi lại giữa các tầng thuận tiện và liền mạch trong quá trình sinh hoạt.
Bản vẽ mặt bằng tầng trệt
Không gian sinh hoạt chung được bố trí tại tầng trệt với phòng khách đặt ở vị trí trung tâm. Đối diện phòng khách là khu vực để xe máy, thuận tiện cho việc di chuyển hằng ngày. Cầu thang thông tầng được bố trí gọn gàng, kết hợp tủ rượu trưng bày theo sở thích của gia chủ. Phía sau là khu vực bếp và phòng ăn, thiết kế hướng ra sân sau nhằm tăng khả năng lưu thông không khí và hạn chế mùi trong quá trình nấu nướng. Khu vực sân sau bố trí nhà vệ sinh chung và sàn rửa, đảm bảo sự tiện lợi khi sử dụng.

Bản vẽ mặt bằng lầu 1
Không gian nghỉ ngơi chính được bố trí tại tầng này với phòng ngủ master 1 hướng ra ban công trước và ban công bên hông, tạo cảm giác thoáng đãng và dễ chịu. Phòng ngủ được thiết kế nhà vệ sinh khép kín và phòng thay đồ riêng. Đối diện là khu vực phòng học và làm việc của gia đình, bố trí sofa nghỉ ngơi, có lối ra ban công phía sau cùng một nhà vệ sinh chung, phục vụ sinh hoạt hằng ngày.

Bản vẽ mặt bằng lầu 2
Tầng này tiếp tục bố trí các không gian nghỉ ngơi với phòng ngủ master 2 có diện tích rộng, tích hợp phòng thay đồ và nhà vệ sinh riêng với đầy đủ khu tắm đứng và bàn trang điểm. Đối diện là phòng ngủ dành cho con, có diện tích nhỏ hơn nhưng vẫn được bố trí nhà vệ sinh riêng, bàn học và ban công phía sau, đảm bảo sự riêng tư và tiện nghi trong sinh hoạt.

Bản vẽ mặt bằng tầng tum
Không gian tầng tum được bố trí phòng thờ với diện tích rộng, hướng ra sân thượng trước, đảm bảo sự trang nghiêm và thông thoáng. Sân thượng trước được tận dụng trồng cây xanh, tạo không gian thư giãn nhẹ nhàng cho gia đình. Khu vực sân thượng phía sau có mái che và bố trí làm sân phơi, tách biệt rõ ràng để đảm bảo sự gọn gàng và thuận tiện khi sử dụng.

Mẫu thiết kế biệt thự phố 8x20m 2 tầng
Gia đình anh Trường hiện có hai thế hệ cùng sinh sống với tổng cộng 4 thành viên. Sau khi xem ngày xây dựng, vợ chồng anh quyết định chuẩn bị kế hoạch thi công một ngôi nhà mới nhằm đáp ứng nhu cầu sinh hoạt tiện nghi, gọn gàng và phù hợp với nếp sống gia đình nhiều thế hệ. Để có phương án tối ưu ngay từ đầu, anh chị đã tìm đến NEOHouse để trao đổi mong muốn, sở thích cũng như lắng nghe tư vấn thiết kế phù hợp với khu đất và nhu cầu sử dụng thực tế.

Phối cảnh ngoại thất biệt thự phố 2 tầng 8x20m
Phối cảnh kiến trúc mẫu nhà phố mặt tiền 8m 2 tầng được triển khai theo phong cách hiện đại, tập trung vào sự đơn giản trong hình khối và cảm giác thoáng rộng cho không gian sống. Công trình không sử dụng các chi tiết phào chỉ hay hoa văn cầu kỳ, thay vào đó là các mảng khối vuông vức, ban công đua ra rộng và gam màu sáng chủ đạo, giúp mặt tiền trở nên gọn gàng và nhẹ nhàng hơn.

Thiết kế cổng chính, tường rào và khối nhà được xử lý đồng bộ về màu sắc, vật liệu và tỷ lệ, tạo nên tổng thể thống nhất. Mảng tường tầng trệt được ốp đá tự nhiên màu trắng vân mây, vừa tăng độ bền trước tác động môi trường, vừa góp phần tạo điểm nhấn thẩm mỹ cho mặt tiền. Sự phối hợp giữa các gam màu trung tính như trắng, be cùng các tông đậm như đen, xám ghi mang lại cảm giác hiện đại, thanh lịch và dễ chịu khi quan sát tổng thể công trình.

Bản vẽ mặt bằng biệt thự phố 8x20m 2 tầng
Về công năng sử dụng, gia chủ ưu tiên tổ chức không gian sinh hoạt thoải mái, trong đó các khu vực quan trọng như phòng ngủ và bếp được chú trọng về diện tích, sự thông thoáng và yếu tố phong thủy. Phương án mặt bằng được triển khai theo hướng liên kết hợp lý giữa các không gian, đồng thời ưu tiên bố trí cầu thang bộ hợp lý, giúp việc đi lại giữa các tầng thuận tiện và liền mạch.
Bản vẽ mặt bằng tầng trệt
Không gian sinh hoạt chính của gia đình được bố trí tại tầng trệt với phòng khách đặt ở vị trí trung tâm, liên thông trực tiếp với khu vực bàn ăn và bếp, tạo cảm giác rộng rãi và kết nối. Đối diện phòng khách là phòng ngủ dành cho ông bà, được bố trí hướng ra mặt tiền, đảm bảo sự tiện nghi và thông thoáng cho người lớn tuổi. Phía trong là khu vực nhà vệ sinh chung, cầu thang thông tầng và lối ra tiểu cảnh sân sau, giúp tăng khả năng thông gió và lấy sáng cho toàn bộ tầng trệt. Bao quanh công trình là tiểu cảnh xanh kết hợp khu vực gara ô tô, tạo khoảng đệm thoáng mát cho ngôi nhà.

Bản vẽ mặt bằng lầu 1
Không gian tầng trên được tổ chức phục vụ nhu cầu nghỉ ngơi và sinh hoạt riêng của các thành viên. Tầng này bố trí hai phòng ngủ, một phòng dành cho vợ chồng anh Trường có lối ra ban công, phòng còn lại dành cho con. Khu vực phòng sinh hoạt chung được đặt ở vị trí trung tâm, đóng vai trò kết nối các không gian. Phòng thờ được bố trí hướng ra ban công chính trước mặt tiền, đón ánh sáng và gió tự nhiên. Bên trong là khu vực nhà vệ sinh chung, khu giặt và ban công sau, được tận dụng làm sân phơi có mái che, đảm bảo sự gọn gàng trong sinh hoạt.

Bí quyết thiết kế biệt thự phố 8x20m tiết kiệm và tối ưu không gian
Với đặc thù nhà phố có chiều ngang 8m và chiều sâu 20m, việc thiết kế biệt thự cần được tính toán kỹ lưỡng ngay từ giai đoạn lên ý tưởng để vừa đảm bảo công năng sử dụng, vừa kiểm soát hiệu quả chi phí đầu tư. Dưới đây là những kinh nghiệm thực tế giúp gia chủ thiết kế biệt thự phố 8×20 khoa học, tối ưu không gian và tiết kiệm chi phí.
- Hạn chế chia nhỏ không gian: Một mặt bằng bị chia cắt quá nhiều phòng nhỏ thường làm tăng chi phí xây dựng do phát sinh tường ngăn, cửa, hệ thống điện nước và hoàn thiện nội thất. Với biệt thự phố 8×20, các không gian sinh hoạt chung như phòng khách, bếp và phòng ăn nên được thiết kế mở, giảm bớt vách ngăn không cần thiết. Cách bố trí này không chỉ giúp không gian rộng và thoáng hơn mà còn tiết kiệm chi phí thi công và tạo cảm giác liền mạch trong sinh hoạt hằng ngày.
- Phân chia không gian hợp lý theo chiều dài khu đất: Đối với khu đất có chiều sâu lớn như 8x20m, việc phân chia không gian theo từng lớp trước – giữa – sau giúp công năng sử dụng trở nên rõ ràng và dễ kiểm soát. Khu vực phía trước nên dành cho các không gian sinh hoạt chung hoặc tiếp khách, khu vực giữa bố trí giao thông, thang máy và các không gian phụ trợ, trong khi phía sau ưu tiên bếp, sân sau hoặc giếng trời. Cách tổ chức này giúp ngôi nhà luôn thông thoáng, tránh cảm giác bí và thiếu sáng ở khu vực trung tâm.
- Ưu tiên bố trí cầu thang bộ và thang máy hợp lý: Hệ thống cầu thang đóng vai trò kết nối toàn bộ các tầng trong biệt thự phố. Việc bố trí cầu thang bộ và thang máy ở vị trí hợp lý, dễ tiếp cận giúp việc đi lại giữa các tầng thuận tiện và liền mạch, đồng thời tránh làm gián đoạn các không gian sinh hoạt chính.
- Tập trung tổ chức lõi kỹ thuật gọn để giảm chi phí phát sinh: Các khu vực kỹ thuật như nhà vệ sinh, trục cấp thoát nước và hệ thống điện nên được bố trí tập trung theo một trục thống nhất. Cách làm này giúp giảm chiều dài đường ống, dễ thi công và hạn chế rủi ro phát sinh trong quá trình xây dựng. Đồng thời, việc gom lõi kỹ thuật còn giúp mặt bằng thông thoáng hơn và thuận tiện cho việc bảo trì, sửa chữa khi cần thiết.
- Đơn giản hóa hình khối kiến trúc để dễ thi công: Những thiết kế có quá nhiều khối đua, giật cấp hoặc chi tiết trang trí cầu kỳ thường làm tăng chi phí nhân công và thời gian thi công. Với biệt thự phố 8×20, nên ưu tiên hình khối kiến trúc rõ ràng, mạch lạc, tập trung vào tỷ lệ và chiều sâu mặt tiền. Giải pháp này giúp công trình vẫn có điểm nhấn thẩm mỹ nhưng dễ kiểm soát ngân sách và đảm bảo tiến độ thi công.
- Khai thác tối đa ánh sáng và thông gió tự nhiên: Thiết kế lấy sáng và thông gió tốt ngay từ đầu sẽ giúp giảm chi phí sử dụng điện chiếu sáng và điều hòa trong sinh hoạt hằng ngày. Gia chủ nên tận dụng ban công, giếng trời, cửa kính lớn hoặc khoảng sân trước – sân sau để tăng khả năng thông thoáng cho toàn bộ ngôi nhà. Đây là yếu tố quan trọng giúp không gian sống luôn dễ chịu mà không phụ thuộc quá nhiều vào thiết bị cơ điện.
- Gắn thiết kế với dự toán ngay từ đầu: Một trong những yếu tố quan trọng giúp tiết kiệm chi phí là gắn chặt phương án thiết kế với dự toán sơ bộ. Khi công năng và hình khối được chốt rõ ràng ngay từ đầu, gia chủ sẽ hạn chế tối đa việc thay đổi thiết kế trong quá trình thi công – nguyên nhân chính dẫn đến đội chi phí. Cách làm này giúp chủ động ngân sách và đảm bảo quá trình xây dựng diễn ra thuận lợi hơn.

Dịch vụ tư vấn, thiết kế và thi công biệt thự phố 8×20 tại NEOHouse
NEOHouse là đơn vị có hơn 12 năm kinh nghiệm trong lĩnh vực thiết kế thi công biệt thự, nhà phố,… Đã đồng hành cùng hàng trăm gia đình trên khắp cả nước trong quá trình xây dựng ngôi nhà của mình. Năm 2020, thương hiệu NEOHouse được vinh danh tại “ASEAN Brand Award”, đánh dấu bước phát triển quan trọng trong hành trình xây dựng uy tín. Các công trình do NEOHouse thực hiện luôn được định hướng theo tiêu chí thẩm mỹ bền vững, công năng hợp lý và phù hợp với điều kiện sử dụng thực tế tại Việt Nam.
Tại NEOHouse, chúng tôi luôn chú trọng phương pháp thiết kế cá nhân hóa, đảm bảo mỗi công trình phản ánh rõ nhu cầu và gu thẩm mỹ riêng của gia chủ. Sự phối hợp chặt chẽ giữa các khâu thiết kế và thi công giúp công trình đạt được tính đồng bộ và ổn định lâu dài. Đây cũng là yếu tố tạo nên sự tin cậy của NEOHouse trong suốt quá trình hoạt động. Dưới đây là những lợi thế nổi bật của công ty chúng tôi mang đến cho khách hàng:
- Sáng tạo trong từng phương án thiết kế: Đội ngũ kiến trúc sư giàu kinh nghiệm, luôn cập nhật xu hướng mới, mang đến những giải pháp thiết kế khoa học, ấn tượng và thời thượng, đáp ứng đúng nhu cầu và mong muốn của chủ đầu tư.
- Thi công công trình chất lượng: Đội thợ thi công và kỹ thuật viên tay nghề cao đảm bảo công trình được thực hiện chuẩn xác từng chi tiết, đúng bản vẽ thiết kế.
- Đảm bảo tiến độ: Các giai đoạn thi công được liệt chi tiết trong hợp đồng để gia chủ có thể theo dõi cùng cam kết đảm bảo tiến độ mang đến sự yên tâm tuyệt đối cho chủ đầu tư.
- Tư vấn phong thủy: Kiến trúc sư hỗ trợ tư vấn phong thủy cơ bản, đưa ra giải pháp bố trí công năng hài hòa với mệnh tuổi của gia chủ, vừa đảm bảo thẩm mỹ, vừa mang lại may mắn và thuận lợi.
- Chính sách ưu đãi: Miễn phí 100% chi phí thiết kế kiến trúc và giảm 50% phí thiết kế nội thất khi khách hàng chọn gói dịch vụ xây nhà trọn gói.

Quy trình thiết kế biệt thự phố tại NEOHouse
Quy trình thiết kế và thi công biệt thự tại NEOHouse JSC được xây dựng dựa trên sự phối hợp chặt chẽ giữa kiến trúc sư, kỹ sư và chủ đầu tư ngay từ những bước đầu tiên. Mỗi giai đoạn đều có sự trao đổi, đối soát và thống nhất liên tục, giúp phương án thiết kế bám sát nhu cầu sử dụng thực tế, đồng thời đảm bảo tính đồng bộ khi triển khai thi công. Cách làm này giúp kiểm soát tốt chất lượng công trình, tiến độ thực hiện và hạn chế tối đa các phát sinh không cần thiết trong quá trình xây dựng. Dưới đây là các bước chính trong quy trình NEOHouse đang áp dụng cho những dự án của mình:
Bước 1: Tiếp nhận thông tin và tư vấn sơ bộ
Kiến trúc sư NEOHouse tiếp nhận thông tin về nhu cầu sử dụng, số lượng phòng, phong cách kiến trúc mong muốn, ngân sách đầu tư, diện tích khu đất và các yêu cầu riêng của chủ đầu tư. Trên cơ sở đó, NEOHouse tư vấn định hướng thiết kế ban đầu và giải đáp các thắc mắc liên quan.
Bước 2: Ký hợp đồng và khảo sát hiện trạng khu đất
Sau khi thống nhất phương án làm việc, hai bên ký hợp đồng thiết kế. Đội ngũ kỹ thuật tiến hành khảo sát thực tế khu đất, đo đạc kích thước, đánh giá địa hình và các yếu tố ảnh hưởng đến phương án thiết kế.
Bước 3: Lên phương án bố trí mặt bằng và dựng phối cảnh 3D
Dựa trên những dữ liệu thu thập từ các bước trên, kiến trúc sư lên phương án bố trí mặt bằng công năng các tầng, bố trí không gian chức năng phù hợp với nhu cầu sinh hoạt. Đồng thời, phối cảnh 3D ngoại thất được dựng chi tiết để khách hàng hình dung rõ hình khối, phong cách và diện mạo tổng thể của công trình.
Bước 4: Triển khai hồ sơ kỹ thuật thi công
Công ty NEOHouse thực hiện triển khai đầy đủ hồ sơ kỹ thuật gồm kiến trúc, kết cấu và hệ thống điện nước, do các kiến trúc sư và kỹ sư chuyên môn đảm nhiệm. Ngoài ra, khách hàng được hỗ trợ hồ sơ xin cấp phép xây dựng theo quy định.
Bước 5: Bàn giao hồ sơ kiến trúc
Toàn bộ hồ sơ được kiểm tra, đối soát kỹ lưỡng giữa các bộ phận với nhau để đảm bảo tính thống nhất và khả thi khi thi công thực tế trước khi bàn giao cho chủ đầu tư.
Bước 6: Triển khai nội thất
Sau khi hoàn thiện hồ sơ kiến trúc, NEOHouse tiếp tục triển khai thiết kế nội thất dựa trên mức đầu tư, phong cách và nhu cầu sử dụng của gia đình. Phối cảnh 3D nội thất được thực hiện từ không gian chính đến toàn bộ các khu vực còn lại, đảm bảo sự đồng bộ với kiến trúc tổng thể.
Bước 7: Bàn giao hồ sơ nội thất
Hồ sơ nội thất được rà soát kỹ lưỡng, khớp nối với hồ sơ kiến trúc để đảm bảo thuận lợi khi thi công, mang lại không gian sống hài hòa, tiện nghi và đúng định hướng thiết kế ban đầu.

Bảng giá thiết kế biệt thự phố tại NEOHouse
Chi phí thiết kế và thi công biệt thự trọn gói được xác định dựa trên nhiều yếu tố như quy mô công trình, phong cách kiến trúc, mức độ hoàn thiện và nhu cầu sử dụng của từng gia đình. Nhằm giúp gia chủ dễ dàng tham khảo và chủ động hơn trong việc dự trù ngân sách, NEOHouse tổng hợp bảng đơn giá cho các hạng mục thiết kế và thi công hiện đang áp dụng. Từ đó, khách hàng có thể lựa chọn phương án phù hợp với nhu cầu và kế hoạch đầu tư của mình.
Chi phí thiết kế kiến trúc
| Phong cách kiến trúc | Đơn giá (VNĐ/m2) |
|---|---|
| Phong cách kiến trúc hiện đại | 90.000Đ – 110.000Đ/m2 |
| Phong cách kiến trúc tân cổ điển | 130.000Đ – 145.000.000Đ/m2 |
| Phong cách kiến trúc cổ điển | 155.000Đ – 170.000Đ/m2 |
Chi phí thi công biệt thự
| Hạng mục | Đơn giá (VNĐ/m2) | Ưu đãi | |
|---|---|---|---|
| Phần thô | Thi công phần thô | 3.450.000 Đ/m2 | Miễn phí 100% chi phí thiết kế khi thi công trọn gói |
| Hoàn thiện
|
Gói cơ bản | 5.000.000 – 5.500.000 Đ/m2 | |
| Gói khá | 5.800.000 – 6.500.000 Đ/m2 | ||
| Gói cao cấp | 6.800.000 trở lên |
Lưu ý: Mức chi phí trên chỉ mang tính tham khảo. Đơn giá thực tế sẽ được xác định dựa trên diện tích xây dựng, phong cách kiến trúc và các yêu cầu cụ thể của từng công trình. Để được tư vấn và nhận báo giá phù hợp, quý khách có thể liên hệ trực tiếp NEOHouse qua hotline 0937.100.202. Đội ngũ kiến trúc sư và nhân viên tư vấn sẽ hỗ trợ chi tiết, giúp gia chủ chủ động hơn trong việc lập kế hoạch xây dựng.

Kết luận
Như vậy, thông qua bài viết trên, NEOHouse đã giới thiệu đến quý khách hàng và bạn đọc các mẫu thiết kế nhà đẹp, kèm theo phân tích phối cảnh kiến trúc, mặt bằng công năng và những lưu ý quan trọng trong quá trình thiết kế thi công. Đồng thời, bài viết cũng chia sẻ rõ hơn về dịch vụ, quy trình làm việc và chi phí tham khảo tại NEOHouse, giúp gia chủ có thêm cơ sở để cân nhắc và chuẩn bị kế hoạch xây dựng phù hợp. Hy vọng những thông tin này sẽ hỗ trợ bạn lựa chọn được phương án thiết kế ưng ý và chủ động hơn trong quá trình triển khai ngôi nhà của mình.