Hồ sơ thiết kế biệt thự 3 tầng là yếu tố then chốt quyết định chất lượng, thẩm mỹ và quá trình thi công của một công trình. Vì thế, một bộ hồ sơ đầy đủ không chỉ giúp gia chủ hình dung rõ không gian sống tương lai, mà còn là cơ sở quan trọng để xin phép xây dựng, kiểm soát chi phí và triển khai thi công chính xác. Trong bài viết này, NEOHouse sẽ chia sẻ đến các bạn các thông tin về hồ sơ thiết kế biệt thự 3 tầng là gì? Vì sao lại quan trọng? Hồ sơ thiết kế biệt thự gồm những gì? Đồng thời, gửi đến bạn đọc mẫu hồ sơ thiết kế biệt thự 3 tầng chi tiết nhất để cùng tham khảo!
Hồ sơ thiết kế biệt thự 3 tầng là gì?
Hồ sơ thiết kế biệt thự 3 tầng là tập hợp đầy đủ các bản vẽ, tài liệu và thông số kỹ thuật thể hiện toàn bộ ý tưởng, giải pháp và phương án triển khai xây dựng công trình biệt thự 3 tầng. Thông qua hồ sơ này, gia chủ có thể hình dung rõ quy mô, hình thức kiến trúc, cách bố trí không gian cũng như các giải pháp kỹ thuật của ngôi nhà trước khi bước vào thi công.

Bên cạnh vai trò mô tả thiết kế, hồ sơ thiết kế biệt thự 3 tầng còn là tài liệu quan trọng để các đơn vị thi công, giám sát và các bên liên quan hiểu chính xác yêu cầu kỹ thuật của công trình. Đây chính là cơ sở để tổ chức thi công đồng bộ, hạn chế sai sót, kiểm soát rủi ro và đảm bảo công trình được xây dựng đúng theo phương án đã thống nhất.
Vì sao hồ sơ thiết kế biệt thự 3 tầng lại quan trọng?
Hồ sơ thiết kế biệt thự 3 tầng có thể xem như “kim chỉ nam” cho toàn bộ quá trình xây dựng, giúp gia chủ, kiến trúc sư và đơn vị thi công phối hợp chặt chẽ và thống nhất ngay từ đầu. Khi sở hữu một bộ hồ sơ được đầu tư bài bản, mọi hạng mục từ ý tưởng đến kỹ thuật đều được định hướng rõ ràng. Cụ thể, hồ sơ thiết kế biệt thự mang lại những giá trị quan trọng như:
- Cơ sở pháp lý để xin phép xây dựng: Hồ sơ thiết kế là thành phần không thể thiếu trong bộ hồ sơ xin giấy phép xây dựng, giúp quá trình thẩm định và cấp phép diễn ra thuận lợi.
- Tính thẩm mỹ và công năng sử dụng: Công trình được thiết kế hài hòa về hình thức, đồng thời đáp ứng đúng nhu cầu sinh hoạt của gia đình.
- Đảm bảo an toàn kết cấu công trình: Hồ sơ thiết kế thể hiện rõ giải pháp móng, hệ dầm – cột – sàn phù hợp với quy mô biệt thự 3 tầng, giúp công trình vận hành ổn định và an tâm trong quá trình sử dụng.
- Hạn chế sai sót trong thi công: Bản vẽ chi tiết, rõ ràng giảm thiểu nhầm lẫn và các lỗi phát sinh ngoài ý muốn.
- Tối ưu thời gian và chi phí: Việc chuẩn bị kỹ lưỡng từ giai đoạn thiết kế giúp tránh chỉnh sửa nhiều lần, qua đó tiết kiệm chi phí và rút ngắn tiến độ xây dựng.
- Thuận lợi cho bảo trì, cải tạo về sau: Các thông tin kỹ thuật được lưu trữ trong hồ sơ giúp việc sửa chữa, nâng cấp hoặc cải tạo công trình sau này trở nên dễ dàng và chính xác hơn.

Chính vì vậy, trước khi bắt tay vào xây dựng biệt thự 3 tầng, việc tìm hiểu và đầu tư một bộ hồ sơ thiết kế hoàn chỉnh là bước khởi đầu không thể bỏ qua.
Một bộ hồ sơ thiết kế biệt thự 3 tầng gồm những gì?
Một bộ hồ sơ thiết kế biệt thự 3 tầng đầy đủ không chỉ dừng lại ở các bản vẽ mặt bằng cơ bản mà là hệ thống tài liệu kỹ thuật chi tiết nhằm giúp công trình được triển khai đồng bộ, chính xác và hiệu quả. Tùy theo quy mô, mức độ đầu tư và nhu cầu của gia chủ, hồ sơ có thể mở rộng hoặc tinh gọn, nhưng về cơ bản sẽ bao gồm các hạng mục sau:
Hồ sơ kiến trúc
Hồ sơ kiến trúc là phần cốt lõi, thể hiện toàn bộ hình dáng, không gian và công năng của biệt thự 3 tầng. Hồ sơ kiến trúc đóng vai trò định hướng thẩm mỹ và tổ chức không gian, là nền tảng để triển khai các bộ môn kỹ thuật khác. Thông thường, hồ sơ này sẽ bao gồm:
- Mặt bằng bố trí công năng các tầng (tầng trệt, tầng lầu, sân thượng)
- Mặt đứng các hướng, thể hiện hình thức kiến trúc tổng thể
- Mặt cắt công trình, làm rõ cao độ, kết cấu không gian bên trong
- Phối cảnh 3D ngoại thất giúp gia chủ hình dung trực quan ngôi nhà sau khi hoàn thiện
- Bản vẽ chi tiết cầu thang, cửa đi, cửa sổ, ban công, vệ sinh
- Ghi chú vật liệu hoàn thiện và các yêu cầu kỹ thuật kiến trúc
Hồ sơ kết cấu
Hồ sơ kết cấu là bản vẽ thể hiện khả năng chịu lực và sự ổn định của công trình biệt thự 3 tầng trong suốt quá trình sử dụng. Một hồ sơ kết cấu được thiết kế chi tiết sẽ giúp công trình thi công an toàn, hạn chế rủi ro nứt lún và phát sinh kỹ thuật về sau. Phần hồ sơ này bao gồm:
- Phương án móng phù hợp với điều kiện nền đất (móng cọc, móng băng, móng đơn,…)
- Bản vẽ kết cấu dầm, sàn, cột, vách cho từng tầng
- Chi tiết bố trí thép, mặt cắt cấu tạo kết cấu
- Thuyết minh tính toán kết cấu, tải trọng và giải pháp kỹ thuật


Hồ sơ điện – nước
Hồ sơ điện – nước (MEP) đảm bảo hệ thống kỹ thuật vận hành ổn định và thuận tiện cho quá trình sinh hoạt. Việc thiết kế điện – nước ngay từ đầu tránh chồng chéo, đục phá và sửa chữa trong quá trình thi công. Thông thường, hồ sơ này sẽ có:
- Mặt bằng bố trí hệ thống điện, chiếu sáng, ổ cắm, công tắc
- Sơ đồ nguyên lý điện, tủ điện, cấp nguồn
- Hệ thống cấp nước sinh hoạt, thoát nước thải, thoát nước mưa
- Bố trí thiết bị vệ sinh, bồn nước, bể phốt (nếu có)
- Ghi chú kỹ thuật phục vụ thi công và lắp đặt


Hồ sơ nội thất
Hồ sơ nội thất là không gian bên trong biệt thự 3 tầng được bố trí hài hòa, tiện nghi và đồng bộ với kiến trúc tổng thể. Thiết kế nội thất không bắt buộc nhưng giúp gia chủ dễ hình dung không gian sống và hạn chế thay đổi trong quá trình hoàn thiện. Theo đó, hồ sơ nội thất sẽ gồm có:
- Mặt bằng bố trí nội thất từng phòng
- Phối cảnh 3D nội thất các không gian chính như phòng khách, bếp, phòng ngủ
- Bản vẽ chi tiết đồ nội thất cố định: tủ bếp, tủ quần áo, kệ tivi, giường,…
- Gợi ý vật liệu, màu sắc và phong cách nội thất


Hồ sơ cảnh quan và sân vườn
Đối với biệt thự 3 tầng có diện tích sân vườn, hồ sơ cảnh quan góp phần nâng cao giá trị thẩm mỹ và trải nghiệm sống. Hồ sơ bản vẽ này gồm có:
- Mặt bằng tổng thể khuôn viên sân vườn
- Thiết kế cổng, hàng rào, lối đi, sân xe
- Bố trí cây xanh, tiểu cảnh, hồ cá (nếu có)
- Hệ thống chiếu sáng sân vườn và cảnh quan
Dự toán chi phí xây dựng
Dự toán là phần quan trọng để giúp gia chủ kiểm soát ngân sách và kế hoạch tài chính. Theo đó, dự toán chi phí xây dựng sẽ bao gồm:
- Bảng bóc tách khối lượng chi tiết theo từng hạng mục
- Ước tính chi phí phần thô và phần hoàn thiện
- Cơ sở để làm việc với nhà thầu và so sánh báo giá

Tổng hợp full hồ sơ thiết kế biệt thự 3 tầng chi tiết nhất tại NEOHouse
Để giúp quý khách và bạn đọc có có thể hiểu rõ hơn cũng như tham khảo hồ sơ thiết kế biệt thự 3 tầng, dưới đây NEOHouse đã chọn lọc 3 mẫu hồ sơ gửi đến mọi người cùng chiêm ngưỡng.
Full hồ sơ thiết kế biệt thự 3 tầng 7x16m tân cổ điển
- Chủ đầu tưAnh Ân
- Địa điểmHồ Chí Minh
- Diện tích7,5x16m
- Nhóm thiết kếNEOHOUSE JSC
Hồ sơ phối cảnh 3D và bố trí mặt bằng công năng
Hồ sơ thiết kế biệt thự 3 tầng 7x16m phong cách tân cổ điển này được NEOHouse triển khai cho gia đình anh Ân tại Hồ Chí Minh. Công trình thiết kế hướng đến vẻ đẹp sang trọng, mặt tiền trang trí những đường gờ, phào chỉ đắp nổi bắt mắt trên mảng tường, kết hợp hệ cửa kính vòm, cửa hình chữ nhật, tất cả mang đến một tổng thể vô cùng cuốn hút và có tính thẩm mỹ cao.



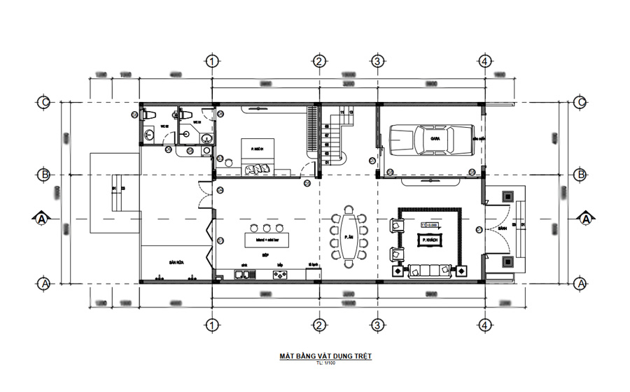
Về mặt bằng công năng, hồ sơ thiết kế biệt thự 3 tầng này bố trí bao gồm tầng trệt có khu vực sân trước, gara ô tô, phòng làm việc, bên trong là phòng khách và khu vực bếp – ăn cùng sân sau.

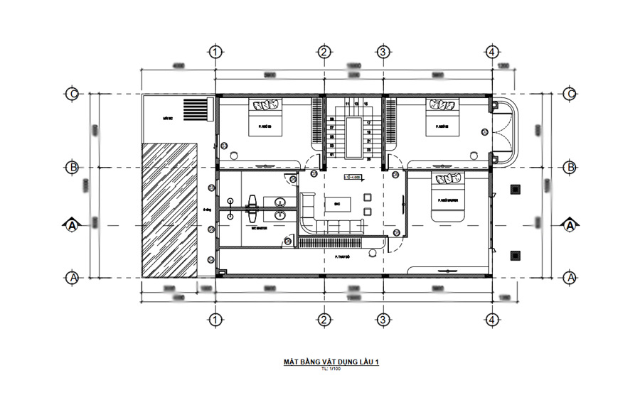
Lầu 1 thiết kế gồm có 2 phòng ngủ master rộng lớn, có phòng thay đồ và WC riêng, đảm bảo tính riêng tư và thoải mái trong quá trình sử dụng, phòng làm việc đặt hướng ra trước mặt tiền.

Công năng lầu 2 của căn biệt thự 3 tầng bố trí dùng để thư giãn và giải trí của gia đình, gồm có sân thượng rộng rãi, bố trí bàn trà ngồi trò chuyện phía bên góc, phía bên trong là không gian sinh hoạt chung, có bộ bàn ghế sofa êm ái cùng lối ra sân thượng sau nhà.

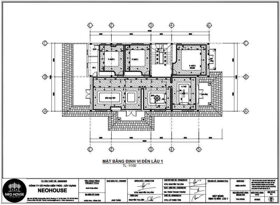
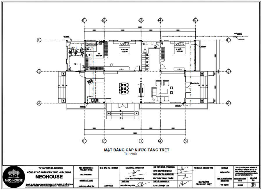
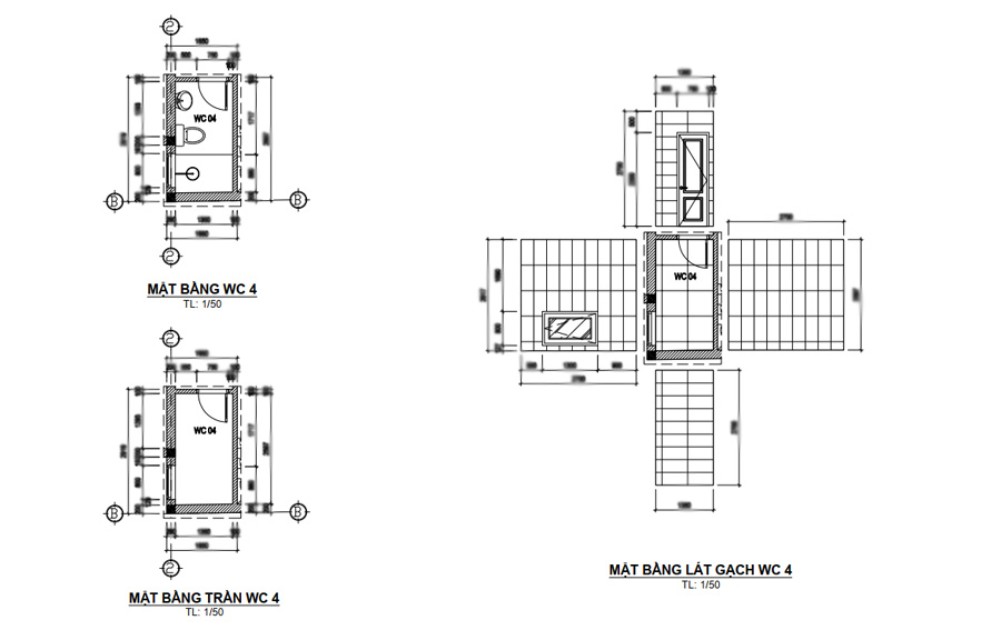
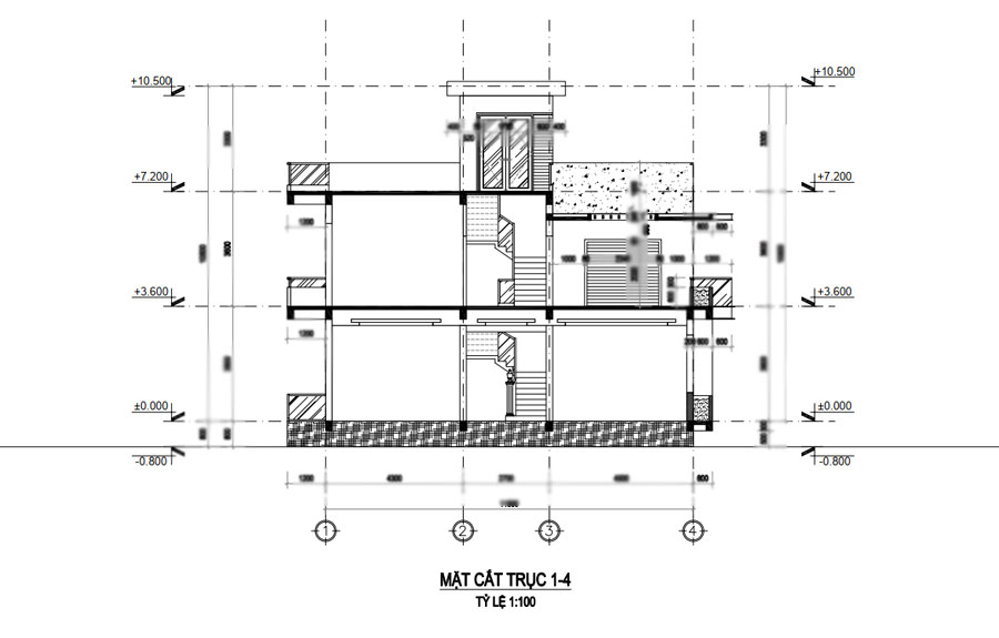
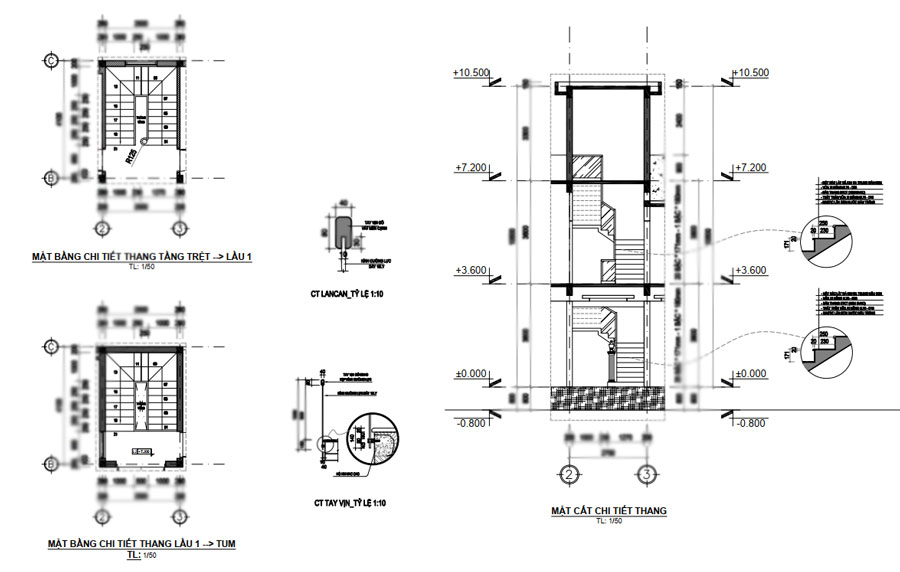
Hồ sơ thiết kế kỹ thuật thi công
Do tính chất bảo mật dự án của chủ đầu tư nên công ty NEOHouse chỉ có thể chia sẻ một số bản vẽ kỹ thuật thi công và làm mờ kích thước trong hồ sơ thiết kế biệt thự 3 tầng này đến các bạn cùng tham khảo! Để xem chi tiết và đầy đủ nhất hoặc cần hỗ trợ tư vấn, quý khách có thể đến trực tiếp địa chỉ văn phòng của chúng tôi: hoặc liên hệ hotline/zalo: 093.100.202 để được hỗ trợ miễn phí nhé!





Full bộ hồ sơ thiết kế biệt thự 3 tầng kiểu Pháp 10x19m tại Tây Ninh
- Chủ đầu tưAnh Sơn
- Địa điểmTây Ninh
- Diện tích10x19m
- Quy mô dự ánBiệt thự tân cổ điển 3 tầng mái Mansard
- Kinh phíKiến trúc 5 tỷ, nội thất 1,8 tỷ
- Nhóm thiết kếNEOHouse
Hồ sơ phối cảnh 3D và bố trí mặt bằng công năng
Bộ hồ sơ thiết kế biệt thự này được NEOHouse thực hiện trọn gói cho gia đình anh Sơn tại Tây Ninh với diện tích 10x19m. Là một người yêu thích vẻ đẹp tinh tế, sang trọng và thời thượng, do đó chủ đầu tư đã chọn phong cách thiết kế tân cổ điển cho công trình của mình. Sau khi trao đổi cùng với sự tư vấn của kiến trúc sư NEOHouse, bộ hồ sơ thiết kế biệt thự đã nhanh chóng hoàn thiện trong khoảng gần 2 tuần mà không có quá nhiều chỉnh sửa.



Mặt bằng công năng được bố trí bao quanh ngôi nhà là tiểu cảnh sân vườn và khoảng không gian sân vui chơi rộng rãi, thiết kế gara, phòng khách, phòng ăn – bếp liên thông với nhau, 1 phòng ngủ có nhà vệ sinh khép kín, 1 phòng vệ sinh chung đặt cuối nhà.


Công năng lầu 1 là không gian sinh hoạt riêng tư dành cho các thành viên trong gia đình, bao gồm có 3 phòng ngủ, trong đó 1 phòng ngủ master dành cho vợ chồng gia chủ tích hợp phòng thay đồ và nhà vệ sinh riêng, diện tích rộng lớn và thông thoáng. Còn 2 phòng ngủ dành cho các con, kế bên có nhà vệ sinh chung, đảm bảo sự tiện nghi và thoải mái nhất định trong quá trình sử dụng. Trung tâm của lầu là khu vực sinh hoạt chung của gia đình, thiết kế bộ ghế sofa êm ái, không gian thoáng mát, gắn kết các thành viên.

Hồ sơ thiết kế kỹ thuật thi công
Dưới đây NEOHouse gửi đến các bạn hồ sơ thiết kế kỹ thuật thi công biệt thự 3 tầng 10x19m tại Tây Ninh, hồ sơ bao gồm có phần triển khai kiến trúc, kết cấu, điện nước,… tuy nhiên, NEOHouse chỉ cung cấp một số hình ảnh tham khảo để các bạn có thể hình dung vì tính chất bảo mật hồ sơ của khách nên chúng tôi không thể công khai. Để có thể xem trọn bộ hồ sơ đầy đủ, đừng ngần ngại mà liên hệ trực tiếp cho NEOHouse nhé!









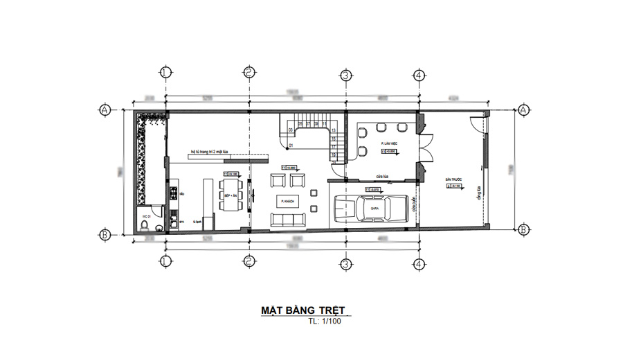
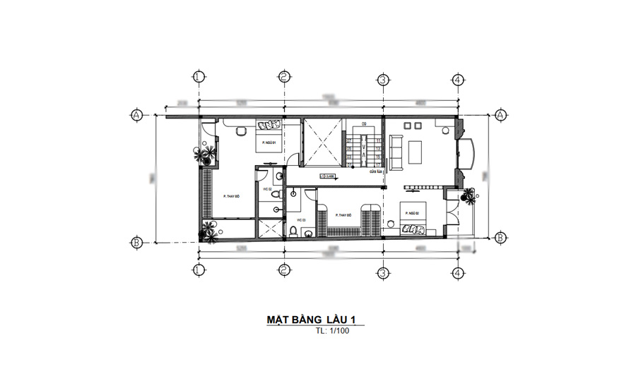
Full hồ sơ thiết kế biệt thự 3 tầng hiện đại 8x12m tại Phú Quốc
- Chủ đầu tưAnh Thao
- Địa điểmPhú Quốc
- Diện tích8x12m
- Quy mô dự ánBiệt thự 3 tầng hiện đại 3 phòng ngủ
- Kinh phíHoàn thiện kiến trúc 3.25 tỷ, nội thất 850 triệu
- Nhóm thiết kếNEOHOUSE
Hồ sơ phối cảnh 3D và bố trí mặt bằng công năng
Dự án này được NEOHouse thiết kế thi công trọn gói cho gia đình anh Thao tại Phú Quốc, công trình thiết kế theo phong cách hiện đại, vẻ đẹp được toát lên qua các mảng hình khối tự do, đan xen bất đối xứng nhưng vô cùng bắt mắt. Kết hợp cùng các vật liệu mới như đá tự nhiên ốp lát, lam gỗ, sắt, kính,… nổi bật trên nền sơn trắng tinh khôi, tạo hiệu ứng thẩm mỹ sang trọng, cách tân mới mẻ. Tổng chi phí hoàn thiện cho kiến trúc 3.25 tỷ, hoàn thiện nội thất 850 triệu.

Về mặt bằng công năng sử dụng, căn biệt thự bố trí tầng trệt với phòng khách, phòng bếp – ăn, 1 phòng ngủ có nhà vệ sinh riêng, các không gian đều thông thoáng và rộng rãi, đáp ứng nhu cầu sinh hoạt vừa tiện nghi, vừa thoải mái.


Mặt bằng lầu 1 gồm có 2 phòng ngủ, cả 2 phòng đều thiết kế nhà vệ sinh riêng, kế bên là không gian thờ kết hợp với bàn làm việc hướng ra sân thượng. Khu vực trung tâm của tầng lầu được tận dụng bố trí xe chạy bộ để gia đình có thể vận động, tập luyện thể dục, rèn luyện sức khỏe mỗi ngày.

Hồ sơ thiết kế kỹ thuật thi công
Cũng tương tự như 2 hồ sơ trên, vì tính chất bảo mật, NEOHouse chỉ cung cấp một số bản vẽ kỹ thuật để các bạn đọc và quý khách tham khảo. Mục đích nhằm giúp mọi người có thể hình dung rõ hồ sơ thiết kế biệt thự 3 tầng gồm những gì? Bản vẽ thể hiện những chi tiết gì? Từ đó có thêm kinh nghiệm đọc hiểu bản vẽ sơ bộ. Nếu cần được tư vấn, thiết kế và thi công biệt thự 3 tầng hay xem trọn bộ hồ sơ này, hãy liên hệ cho NEOHouse.






Quy trình lập hồ sơ thiết kế biệt thự 3 tầng
Quy trình lập hồ sơ thiết kế biệt thự 3 tầng tại NEOHouse được thực hiện theo các bước rõ ràng, khoa học nhằm đảm bảo công trình đáp ứng đúng nhu cầu sử dụng, phù hợp điều kiện thực tế và thuận lợi khi thi công. Dưới đây là các giai đoạn cơ bản trong quá trình triển khai thiết kế của chúng tôi:
Thu thập nhu cầu & khảo sát hiện trạng
Ở giai đoạn đầu, NEOHouse sẽ tiến hành làm việc trực tiếp với gia chủ để:
- Ghi nhận nhu cầu sử dụng, số lượng phòng, công năng mong muốn
- Tìm hiểu phong cách kiến trúc yêu thích, mức độ đầu tư dự kiến
- Thu thập thông tin pháp lý khu đất, chỉ giới xây dựng, quy hoạch liên quan
Song song đó, kiến trúc sư và kỹ sư tiến hành khảo sát hiện trạng khu đất như diện tích, hình dáng, địa chất nền đất, hướng nắng gió và môi trường xung quanh. Đây là cơ sở quan trọng để đưa ra giải pháp thiết kế phù hợp và khả thi.
Lên phương án mặt bằng – concept 3D
Dựa trên thông tin khảo sát và thu thập thông tin nhu cầu của gia chủ, chúng tôi sẽ:
- Đề xuất phương án bố trí mặt bằng công năng cho từng tầng
- Lên phối cảnh 3D kiến trúc tổng thể
Phương án thiết kế sẽ được trao đổi, điều chỉnh nhiều lần theo ý kiến đóng góp của gia chủ để đảm bảo thống nhất trước khi chuyển sang giai đoạn kỹ thuật. Số lần chỉnh sửa tại NEOHouse là không giới hạn.

Hoàn thiện hồ sơ kỹ thuật
Khi phương án thiết kế đã được duyệt, hồ sơ sẽ được triển khai chi tiết ở mức độ kỹ thuật để phục vụ thi công. Giai đoạn này đòi hỏi độ chính xác cao, đảm bảo các bộ phận phối hợp đồng bộ và không chồng chéo. Công việc sẽ bao gồm:
- Bản vẽ kiến trúc thi công
- Bản vẽ kết cấu móng, dầm, cột, sàn
- Hồ sơ điện – nước và các hệ thống kỹ thuật liên quan
- Hồ sơ nội thất, cảnh quan (nếu có)
- Lập dự toán chi phí xây dựng
Bàn giao hồ sơ & hỗ trợ triển khai thi công
Sau khi hoàn tất các bước trên, NEOHouse sẽ tiến hành:
- Bàn giao đầy đủ hồ sơ thiết kế theo danh mục đã thống nhất
- Hướng dẫn gia chủ và nhà thầu cách đọc, hiểu bản vẽ
- Giải đáp các thắc mắc kỹ thuật trong quá trình chuẩn bị thi công
- Hỗ trợ điều chỉnh kỹ thuật hợp lý nếu phát sinh trong quá trình xây dựng
Việc hỗ trợ sau bàn giao giúp hồ sơ thiết kế được áp dụng đúng thực tế, đảm bảo công trình biệt thự 3 tầng được thi công chính xác và hiệu quả.
Chi phí hồ sơ thiết kế biệt thự 3 tầng là bao nhiêu?
Chi phí hồ sơ thiết kế biệt thự 3 tầng luôn là vấn đề được nhiều gia chủ quan tâm ngay từ giai đoạn chuẩn bị xây dựng. Bên cạnh ý tưởng kiến trúc, việc dự trù ngân sách thiết kế giúp chủ đầu tư chủ động hơn trong kế hoạch tài chính và lựa chọn phương án phù hợp cho công trình của mình.
Thực tế, chi phí thiết kế biệt thự 3 tầng không có mức cố định, mà được xác định dựa trên nhiều yếu tố như quy mô, phong cách kiến trúc và mức độ chi tiết của hồ sơ. Đây là giai đoạn nền tảng, ảnh hưởng trực tiếp đến hình thức, công năng sử dụng và khả năng triển khai thi công sau này, nên cần được đầu tư bài bản ngay từ đầu.

Tại NEOHouse, chi phí thiết kế kiến trúc biệt thự 3 tầng được tính theo m2 sàn xây dựng và chi phí sẽ chênh lệch tùy theo phong cách kiến trúc, mức giá thiết kế dao động như sau:
- Biệt thự phong cách hiện đại: khoảng 90.000 – 110.000 đồng/m2
- Biệt thự phong cách tân cổ điển: khoảng 130.000 – 145.000 đồng/m2
- Biệt thự phong cách cổ điển: khoảng 155.000 – 170.000 đồng/m2
Đối với những gia chủ lựa chọn thiết kế thi công trọn gói, NEOHouse áp dụng chính sách miễn phí 100% chi phí thiết kế, giúp tối ưu ngân sách và đảm bảo sự đồng bộ giữa bản vẽ và quá trình thi công thực tế.
Kinh nghiệm lựa chọn đơn vị thiết kế hồ sơ biệt thự 3 tầng
Lựa chọn đơn vị thiết kế hồ sơ biệt thự 3 tầng uy tín là một trong những bước quan trọng khi xây dựng nhà ở, bởi nó ảnh hưởng trực tiếp đến chất lượng công trình, tiến độ và chi phí đầu tư của gia đình. Do đó, trước khi thiết kế xây biệt thự 3 tầng, chủ đầu tư cần biết những kinh nghiệm sau đây:
- Ưu tiên đơn vị có kinh nghiệm thiết kế biệt thự thực tế: Biệt thự 3 tầng là loại hình công trình có quy mô và yêu cầu kỹ thuật cao. Do đó, gia chủ nên ưu tiên các đơn vị đã từng thiết kế và triển khai nhiều công trình biệt thự, có hồ sơ năng lực rõ ràng và sản phẩm thực tế để tham khảo.
- Kiểm tra chất lượng hồ sơ thiết kế: Một đơn vị thiết kế chuyên nghiệp cần cung cấp hồ sơ bản vẽ đầy đủ, rõ ràng và dễ thi công. Vì vậy mà chủ đầu tư nên yêu cầu xem mẫu hồ sơ đã thực hiện để đánh giá mức độ chi tiết, sự đồng bộ giữa kiến trúc, kết cấu và hệ thống kỹ thuật.
- Đánh giá quy trình làm việc: Công ty thiết kế uy tín thường có quy trình làm việc minh bạch, từ khảo sát, lên phương án, chỉnh sửa đến bàn giao hồ sơ. Một đơn vị uy tín, chuyên nghiệp sẽ có quy trình rõ ràng giúp giúp hai bên dễ trao đổi, hạn chế hiểu lầm và đảm bảo tiến độ thiết kế.
- Có hỗ trợ trong quá trình thi công: Đơn vị thiết kế sẵn sàng hỗ trợ kỹ thuật, giải đáp thắc mắc hoặc điều chỉnh hợp lý trong quá trình thi công sẽ giúp công trình được triển khai đúng bản vẽ và hạn chế sai sót.
- Hợp đồng minh bạch, cam kết cụ thể: Gia chủ cần đảm bảo hợp đồng thiết kế thể hiện rõ phạm vi công việc, thời gian thực hiện, số lần chỉnh sửa, quyền và nghĩa vụ của các bên. Đây là cơ sở quan trọng để bảo vệ quyền lợi trong suốt quá trình hợp tác.
NEOHouse – Đơn vị thiết kế hồ sơ biệt thự 3 tầng uy tín, chuyên nghiệp
Hoạt động hơn 12 năm trong lĩnh vực kiến trúc – xây dựng, NEOHouse được biết đến là đơn vị chuyên tư vấn và triển khai hồ sơ thiết kế biệt thự 3 tầng với định hướng chú trọng vào tính ứng dụng thực tế và khả năng thi công. Thay vì áp dụng những bản vẽ rập khuôn, chúng tôi tập trung nghiên cứu từng khu đất, nhu cầu sinh hoạt và mong muốn của gia chủ để xây dựng phương án thiết kế phù hợp cho từng công trình.

Sở hữu đội ngũ kiến trúc sư và kỹ sư có kinh nghiệm nhiều năm, NEOHouse có thể triển khai đa dạng các phong cách kiến trúc, từ hiện đại, tân cổ điển đến cổ điển hay các mẫu biệt thự mái Thái, mái Nhật. Mỗi phương án thiết kế đều được cân nhắc kỹ lưỡng về công năng, hình khối kiến trúc và giải pháp kỹ thuật, nhằm mang đến một công trình sở hữu tính thẩm mỹ cao, riêng biệt và giá trị sử dụng lâu dài.
Hồ sơ thiết kế biệt thự 3 tầng do NEOHouse thực hiện được triển khai đầy đủ các hạng mục cần thiết như kiến trúc, kết cấu, hệ thống điện – nước, nội thất và cảnh quan theo yêu cầu. Bản vẽ thể hiện chi tiết, dễ đọc, giúp quá trình thi công diễn ra thuận lợi và hạn chế tối đa các sai sót phát sinh.

Không chỉ dừng lại ở việc bàn giao bản vẽ, NEOHouse còn đồng hành cùng gia chủ trong suốt quá trình chuẩn bị và thi công công trình. Đơn vị luôn sẵn sàng hỗ trợ kỹ thuật, giải đáp thắc mắc và điều chỉnh hợp lý khi cần thiết. Với phong cách làm việc minh bạch, tư vấn tận tâm và giải pháp thiết kế phù hợp thực tế, NEOHouse là lựa chọn đáng tin cậy cho những gia chủ đang tìm kiếm một đơn vị thiết kế hồ sơ biệt thự 3 tầng chuyên nghiệp.
FAQs – Câu hỏi thường gặp về hồ sơ thiết kế biệt thự 3 tầng
Hồ sơ thiết kế biệt thự 3 tầng gồm những phần nào?
Tùy theo nhu cầu và gói dịch vụ, hồ sơ có thể được triển khai ở mức cơ bản hoặc trọn gói. Thông thường, một bộ hồ sơ thiết kế biệt thự 3 tầng đầy đủ thường bao gồm các hạng mục chính sau:
- Hồ sơ kiến trúc: mặt bằng công năng, mặt đứng, mặt cắt, phối cảnh 3D, chi tiết kiến trúc.
- Hồ sơ kết cấu: phương án móng, dầm – cột – sàn, chi tiết thép và thuyết minh tính toán.
- Hồ sơ điện – nước: hệ thống điện chiếu sáng, ổ cắm, cấp – thoát nước sinh hoạt.
- Hồ sơ nội thất: bố trí nội thất, phối cảnh 3D và chi tiết đồ nội thất (nếu gia chủ có nhu cầu).
- Hồ sơ cảnh quan – sân vườn: áp dụng cho biệt thự có khuôn viên sân vườn.
- Dự toán chi phí xây dựng: bóc tách khối lượng và dự trù ngân sách thi công.
Mất bao lâu để hoàn thành bản vẽ thiết kế biệt thự 3 tầng?
Tại NEOHouse, để hoàn thành trọn bồ hồ sơ thiết kế biệt thự 3 tầng thông thường dao động từ 1 tuần cho đến 2 tuần. Tùy theo độ phức tạp, phong cách, diện tích, có chỉnh sửa hay không mà hồ sơ sẽ không có thời gian nhất định.
Có cần thiết kế nội thất trong hồ sơ không?
Tuy thiết kế nội thất không bắt buộc nhưng khuyên các bạn nên sử dụng dịch vụ trọn gói từ kiến trúc cho đến nội thất bởi nó sẽ đồng bộ tổng thể từ trong ra ngoài, hạn chế tình trạng thay đổi, phát sinh trong quá trình hoàn thiện cũng như có phương án bố trí không gian sử dụng hợp lý ngay từ đầu.
Thiết kế có được điều chỉnh theo yêu cầu gia chủ không?
Có. Hồ sơ thiết kế biệt thự 3 tầng luôn được điều chỉnh theo nhu cầu thực tế của gia chủ trong quá trình thiết kế. Việc trao đổi, góp ý và chỉnh sửa phương án thường diễn ra ở giai đoạn mặt bằng công năng và concept 3D, nhằm đảm bảo phương án cuối cùng phù hợp với mong muốn sử dụng và ngân sách đầu tư. Tại NEOHouse, số lần điều chỉnh là không giới hạn.
Hồ sơ thiết kế có dùng được cho tất cả đơn vị thi công không?
Nếu hồ sơ được triển khai đầy đủ và chi tiết, gia chủ hoàn toàn có thể sử dụng cho mọi đơn vị thi công độc lập. Hồ sơ kỹ thuật chi tiết và rõ ràng sẽ giúp nhà thầu dễ đọc bản vẽ, thi công đúng thiết kế và hạn chế sai sót trong quá trình xây dựng.
Lời kết
Việc có hồ sơ thiết kế biệt thự 3 tầng đầy đủ và chi tiết chính là nền tảng quan trọng để thi công thuận lợi, đúng định hướng ban đầu và hạn chế tối đa những phát sinh không mong muốn. Đồng thời, thông qua hồ sơ này, gia chủ có thể hình dung trọn vẹn không gian sống trong tương lai cũng như kiểm soát công năng, kỹ thuật và chi phí đầu tư được tốt hơn.
Và NEOHousevn hy vọng những thông tin trong bài viết này đã giúp các bạn hiểu rõ hơn về hồ sơ thiết kế biệt thự 3 tầng và có thêm cơ sở để chuẩn bị tốt cho dự án của mình. Và đừng quên, nếu cần tư vấn, thiết kế và thi hay báo giá công trình dựa trên khu đất, mong muốn và chi phí đầu tư của gia đình mình, hãy liên hệ trực tiếp cho chúng tôi qua hotline/zalo: 0937.100.202 để được kiến trúc sư, tư vấn viên hỗ trợ miễn phí nhé!