Những mẫu nhà ống 1 tầng đẹp 5×20 được xem là một trong những loại hình kiến trúc tuyệt vời dành cho các gia đình trẻ mới cưới, ít vốn và yêu thích sự trẻ trung, hiện đại. Do đó, trong bài viết này, chúng tôi xin gợi ý đến các bạn những mẫu nhà ống 1 tầng đẹp 5×20 hiện đại, sang trọng, cùng tham khảo để có thêm ý tưởng mới nhé.
Mẫu nhà ống 1 tầng đẹp 5×20 là gì?
Mẫu nhà ống 1 tầng đẹp 5×20 là một trong những loại hình nhà ở được nhiều gia đình Việt lựa chọn nhờ sự hợp lý về diện tích, chi phí và công năng sử dụng. Ngôi nhà được xây dựng trên lô đất hình chữ nhật, chiều ngang (mặt tiền) rộng 5m và chiều dài 20m, tổng diện tích sàn 100m2 – đủ để bố trí đầy đủ các không gian sinh hoạt thiết yếu.
Với diện tích này, nhà ống 1 tầng 5×20 đặc biệt phù hợp cho gia đình nhỏ từ 3 đến 5 thành viên, mang lại sự tiện nghi nhưng vẫn giữ được sự thoải mái, ấm cúng. Đây cũng là lựa chọn tối ưu cho cặp vợ chồng trẻ đang tìm kiếm một không gian sống vừa túi tiền, hay người cao tuổi cần môi trường sinh hoạt đơn giản, thuận tiện, hạn chế việc di chuyển cầu thang.
Điểm nổi bật của mẫu nhà ống này nằm ở tính linh hoạt trong thiết kế. Tùy theo nhu cầu và phong cách của gia chủ, không gian có thể được sắp xếp 2–3 phòng ngủ, phòng khách, bếp – phòng ăn và khu vực vệ sinh một cách khoa học. Đồng thời, khoảng sân trước – sân sau có thể tận dụng làm nơi để xe, trồng cây xanh hoặc phơi phóng, mang lại cảm giác thoáng đãng, gần gũi thiên nhiên.

Ưu điểm nổi bật của mẫu nhà ống 1 tầng đẹp 5×20
Với diện tích có phần hạn hẹp là 5x20m, trong khu thành thị có mật độ dân cư đông đúc, đội ngũ kiến trúc sư phải khảo sát, nghiên cứu và thiết kế đưa ra giải pháp tối ưu nhất cho ngôi nhà. Mẫu nhà phố 1 tầng 5x20m vẫn có thể đáp ứng được đầy đủ về tính thẩm mỹ, sự tiện nghi và thoải mái trong quá trình sử dụng, hãy cùng điểm qua một số ưu điểm của mẫu nhà này để hiểu rõ hơn nhé.
Tiết kiệm tối đa diện tích xây dựng
Với phương án thiết kế nhà đẹp này thì ưu điểm của mẫu nhà phố 1 tầng đẹp 5×20 đó chính là tiết kiệm tối đa diện tích hiệu quả. Với kiến trúc có chiều ngang hẹp, chiều dài rộng cũng là đặc trưng chung của những căn nhà ống, đây là mẫu thiết kế nhà phố điển hình và thể hiện ưu điểm tiết kiệm diện tích của công trình. Công năng của nhà ống 1 tầng 5x20m vẫn đáp ứng đầy đủ công năng, gia chủ có thể bố trí gồm 1 phòng khách, 1 phòng bếp + ăn, 2 phòng ngủ, phòng thờ, phòng vệ sinh chung. Bố trí và sắp xếp bố cục khoa học sẽ mang đến một không gian sống thoải mái cho từng thành viên trong gia đình.

Tiết kiệm tối đa chi phí xây dựng
Tiếp nối ưu điểm của mẫu nhà ống 1 tầng đẹp 5×20 là chi phí xây dựng vừa phải, không quá cao. Đặc biệt là những cặp vợ chồng mới cưới, có điều kiện kinh tế thấp, xây nhà ở thành phố còn tốn kém nhiều chi phí hơn so với xây nhà tại nông thôn nên việc lựa chọn nhà ống 1 tầng 5x20m là hoàn toàn chính xác và đúng đắn. Khi xây dựng mẫu nhà ống 1 tầng đẹp này, giá cả vừa phải chăng, không gây thiệt hại quá nhiều về kinh tế nhưng vẫn đảm bảo đầy đủ công năng sử dụng với phòng khách, phòng bếp + ăn, phòng ngủ, nhà vệ sinh chung.

Hướng đến không gian mở, tạo sự thông thoáng
Đối với mẫu nhà ống 1 tầng đẹp 5x20m có diện tích tương đối hẹp nhưng với thiết kế hiện đại, thông minh, tối ưu không gian tạo sự thông thoáng và kết nối giữa các khu vực chức năng cũng như thông gió từ ngoài vào trong nhà.

Bạn có thể tận dụng sân trước vừa làm gara ô tô, vừa trồng nhiều cây xanh, kết hợp cùng vật liệu kính cường lực trong suốt, thiết kế liên thông giữa các phòng chức năng trong nhà hứa hẹn sẽ mang đến một không gian sống lý tưởng và trong lành.
#15 mẫu nhà ống 1 tầng đẹp 5×20 được yêu thích nhất
Sau đây là một số dự án thiết kế mẫu nhà ống 1 tầng đẹp 5×20 được yêu thích và lựa chọn nhiều nhất trong những năm vừa qua. Hy vọng sẽ đem đến cho bạn một cái nhìn rõ nét hơn về loại hình kiến trúc nhà ở này.
Mẫu nhà ống 1 tầng 5x20m mái bằng
Thiết kế nhà mái bằng rất phù hợp với phong cách hiện đại, nhẹ nhàng. Đây được xem là loại mái được sử dụng phổ biến tại thành phố và cả nông thôn. Kiểu dáng mái bằng cũng khá đa dạng, chủ đầu tư có kể kết hợp giữa mái bằng với một phần mái thái, mái chéo để tạo điểm nhấn ấn tượng cho mặt tiền ngôi nhà.

Kiến trúc mái bằng có khả năng chống thấm và chống các tác nhân xấu từ bên ngoài môi trường thiên nhiên một cách hiệu quả. Bên cạnh đó, bạn có thể kết hợp cùng mái chống nóng để ngôi nhà trở nên mát mẻ và thông thoáng hơn.
Ngoài ra, để gia tăng thêm nét đẹp trẻ trung và mới mẻ cho mẫu nhà ống 1 tầng đẹp 5×20, bạn có thể sử dụng gam màu trắng chủ đạo, vật liệu mới cùng các hình khối vuông vức. Hơn nữa, khoảng sân rộng rãi trước nhà có thể làm sân chơi cùng sân vườn.
Mẫu nhà ống cấp 4 đẹp 5×20
Mẫu thiết kế nhà ống cấp 4 5x20m có chi phí thấp, thiết kế mặt tiền đơn giản, hiện đại với những đường nét kiến trúc khỏe khoắn cho toàn bộ công trình.

Khoảng sân vườn rộng cùng hệ thống cửa kính trong suốt khung nhôm xingfa sẽ góp phần tạo điểm nhấn không gian ấn tượng cho mẫu nhà đẹp này. Đồng thời hệ thống bậc tam cấp được xây dựng khá cao giúp ngôi nhà trông cao ráo và mát mẻ hơn rất nhiều.
Bản vẽ thiết kế nhà ống 5x20m 1 tầng
Bản vẽ mẫu nhà ống 1 tầng đẹp 5x20m mái bằng được rất nhiều hộ gia đình yêu thích trong thời gian gần đây. Nhìn vào bản vẽ phối cảnh mặt tiền của ngôi nhà, ta thấy được vẻ đẹp đơn giản, hiện đại cùng không gian sinh hoạt thông thoáng. Với hệ mái bằng đổ bê tông kiên cố kết hợp hệ thống sân vườn giúp ngôi nhà trở nên phóng khoáng và mát mẻ.

Kiến trúc mặt tiền với gam màu trắng chủ đạo nhã nhặn kết hợp gam màu đen giúp toàn bộ ngôi nhà trông trang nhã và cuốn hút hơn. Toàn bộ cửa chính, cửa sổ đều được thiết kế bằng vật liệu kính cường lực, khung nhôm xingfa cao cấp đón ánh sáng và gió mát vào bên trong nhà hiệu quả.
Mẫu thiết kế nhà ống 1 tầng mái thái 5x20m
Đây được đánh giá là một mẫu nhà ống 1 tầng đẹp 5×20 nhận được nhiều sự quan tâm nhất. Với kiến trúc mái thái hiện đại và kiên cố, không những đem đến một vẻ đẹp gần gũi sang trọng mà còn giúp điều hòa không khí trong nhà luôn mát mẻ.

Bên cạnh đó, mái thái cũng giúp ngôi nhà của bạn trông cao ráo và bề thế hơn. Đồng thời, mái thái còn thoát nước nhanh chóng, chống ẩm, chống thấm và có độ bền trường tồn.
Nhà ống 1 tầng 2 phòng ngủ 5×20
Thiết kế nhà ống 1 tầng 2 phòng ngủ được xem là xu hướng của nhiều cặp vợ chồng trẻ. Với diện tích có phần khiêm tốn nên bạn có thể kết hợp sử dụng cửa kính để có thể đón nắng và tạo không gian mở, thông thoáng, tiết kiệm được tối đa điện năng cho hệ thống điều hòa và chiếu sáng trong ngôi nhà.

Nhà ống 1 tầng 2 phòng ngủ 5x20m với thiết kế hiện đại, đơn giản nhưng vẫn đem đến nét đẹp cuốn hút và một không gian sống thoải mái cho gia chủ.
Thiết kế nhà ống 1 tầng 5x20m chi phí 300 triệu
Bạn yêu thích những mẫu nhà đẹp có lối thiết kế tối giản cùng mức chi phí tối ưu thì mẫu nhà ống 1 tầng đẹp 5×20 300 triệu sẽ là sự lựa chọn hoàn hảo nhất.

Mẫu nhà đẹp này sở hữu thiết kế tối giản với hệ mái bằng truyền thống. Để tránh sự đơn điệu, nhàm chán trong thiết kế, kiến trúc sư đã tạo điểm nhấn bằng gạch inax ốp tường màu đen trên nền sơn trắng chủ đạo tạo hiệu ứng thẩm mỹ chung cho tổng thể ngôi nhà.
Mẫu nhà ống 1 tầng đẹp 5x20m 400 triệu
Mẫu nhà ống cấp 4 đẹp 5x20m với chi phí 400 triệu nổi bật với kiến trúc kiên cố, đầy đủ tiện nghi, đầy đủ công năng sử dụng với 1 phòng khách, 2 phòng ngủ, 1 phòng thờ và phòng vệ sinh chung. Mái bằng vững chãi kết hợp cùng mảng khối vuông vức giúp ngôi nhà trở nên cao ráo, mát mẻ và thoáng đãng.

Mẫu nhà ống 1 tầng đẹp 5×20 ở nông thôn
Nhìn tổng thể mẫu nhà ống 1 tầng đẹp 5×20 ở nông thôn đẹp cuốn hút làm điêu đứng mọi ánh nhìn. Bởi sự phối màu sắc tươi sáng kết hợp hệ mái chéo độc đáo làm nên nét đẹp mới mẻ cho ngôi nhà. Ý tưởng thiết kế nhà đẹp phù hợp với những cặp vợ chồng trẻ sinh sống và có điều kiện kinh tế không dư giả mong muốn có một ngôi nhà hiện đại và tiện nghi.

Nhà ống 1 tầng 5x20m phong cách hiện đại
Xu hướng thiết kế nhà ống 1 tầng 5x20m phong cách hiện đại, đơn giản cũng được rất nhiều cặp vợ chồng trẻ ít vốn yêu thích và lựa chọn. Kiến trúc sư tận dụng mọi khoảng trống trước nhà để làm khu vực trồng cây cảnh và hoa lá. Đi cùng với công trình hiện đại, phóng khoáng giúp toàn bộ mặt tiền tràn ngập sức sống và bắt mắt hơn.

Các bản vẽ mặt bằng công năng mẫu nhà 1 tầng đẹp 5×20
Bản vẽ nhà ống 1 tầng 5x20m 3 phòng ngủ
Phương án thiết kế mặt bằng nhà ống 1 tầng 5x20m 3 phòng ngủ mang đến sự tiện nghi tối đa, phù hợp cho gia đình từ 4–6 thành viên. Bản vẽ được bố trí khoa học, tận dụng hiệu quả diện tích để đảm bảo sự thoáng đãng và đầy đủ công năng cho sinh hoạt hằng ngày.

Ngay từ sân trước, không gian rộng rãi đủ để bố trí gara ô tô, xe máy, đồng thời kết hợp mảng xanh giúp mặt tiền thêm sinh động và gần gũi thiên nhiên. Tiến vào trong là phòng khách, không gian tiếp khách và sinh hoạt chung, được thiết kế rộng rãi, thoáng sáng nhờ kết nối trực tiếp với cửa chính. Bên cạnh đó, khu vực phòng thờ được đặt ở vị trí trang nghiêm, vừa thuận tiện trong sinh hoạt, vừa đảm bảo yếu tố phong thủy.
Tiếp đến là phòng ăn và phòng bếp được bố trí liền kề, không gian mở, giúp việc nấu nướng và quây quần của gia đình trở nên ấm cúng, tiện lợi. Khu vực này còn được kết hợp với tiểu cảnh xanh và ghế ngồi thư giãn, mang đến sự thông thoáng, bổ sung ánh sáng và gió tự nhiên cho toàn bộ ngôi nhà.
Cuối nhà là 3 phòng ngủ được phân bổ hợp lý, tạo sự riêng tư, yên tĩnh cho các thành viên. Mỗi phòng đều bố trí khoa học và tập trung vào không gian nghỉ ngơi, thư giãn, không trang trí quá cầu kỳ. Cùng với đó là khu giặt sấy và WC tiện lợi, phục vụ nhu cầu sinh hoạt hằng ngày.
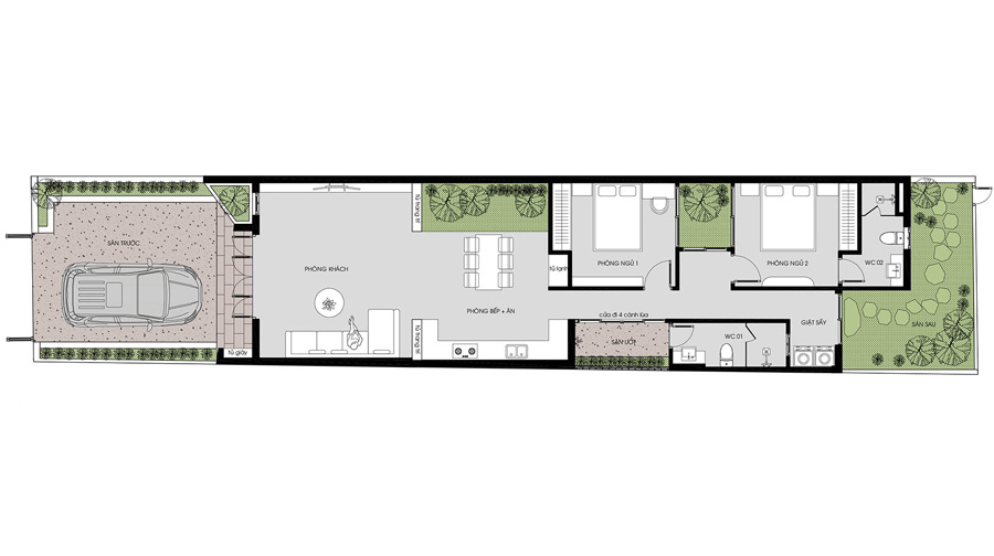
Bản vẽ mẫu nhà ống 1 tầng 5x20m 2 phòng ngủ
Mặt bằng công năng của mẫu nhà ống 1 tầng 5x20m 2 phòng ngủ được bố trí khoa học, tận dụng hiệu quả từng khoảng diện tích, mang lại sự tiện nghi và thoải mái cho gia đình nhỏ từ 3–4 thành viên.

Ngay từ khoảng sân trước rộng rãi, gia chủ sử dụng không gian bố trí chỗ để xe ô tô, xe máy, đồng thời tạo một khoảng xanh nhỏ tăng tính thẩm mỹ và sự thoáng mát cho mặt tiền. Bước vào trong là phòng khách được thiết kế liền kề cửa chính, vừa rộng rãi vừa thông thoáng, thích hợp để tiếp khách và làm không gian sinh hoạt chung của cả gia đình.
Kế tiếp là khu vực bếp – ăn nằm giữa nhà, bố trí theo không gian mở, kết nối trực tiếp với phòng khách. Cách sắp xếp này giúp tiết kiệm diện tích, đồng thời tạo sự liền mạch trong sinh hoạt. Bên cạnh đó, khoảng tiểu cảnh xanh nhỏ đóng vai trò điều hòa không khí, tạo sự gần gũi thiên nhiên, khiến không gian bếp và phòng ăn luôn thoáng đãng và mát mẻ.
Đi sâu vào phía sau là 2 phòng ngủ, được bố trí song song, đảm bảo sự riêng tư cho các thành viên. Mỗi phòng đều có cửa sổ hướng ra khoảng xanh, tận dụng ánh sáng và gió trời để mang lại sự thoải mái. Gần khu vực này có 2 phòng vệ sinh tách biệt, cùng với khu giặt phơi riêng ở cuối nhà, thuận tiện cho sinh hoạt hằng ngày. Cuối cùng là khu vực sân sau, không chỉ đóng vai trò làm nơi phơi phóng mà còn tạo thêm không gian thoáng, cân bằng không khí trong toàn bộ ngôi nhà.
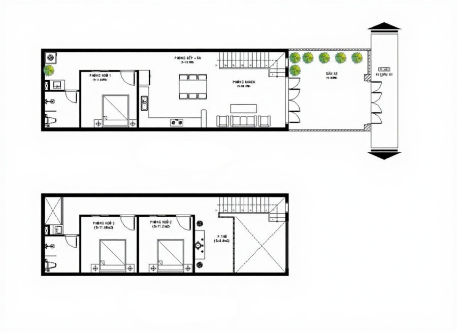
Bản vẽ mẫu nhà ống 1 tầng 5x20m có gác lửng
Mẫu nhà ống 1 tầng 5x20m có gác lửng mang đến giải pháp tối ưu diện tích cho gia đình đông thành viên, đồng thời tạo không gian sống thoáng đãng và tiện nghi hơn. Bản vẽ công năng được bố trí hợp lý, đảm bảo sự cân bằng giữa sinh hoạt chung và không gian riêng tư.

Tầng trệt bắt đầu với sân trước rộng rãi, vừa làm nơi để xe, vừa tạo khoảng đệm thoáng cho ngôi nhà. Tiếp nối là phòng khách thoáng rộng, nằm ngay sau cửa chính, thuận tiện cho việc tiếp khách và sinh hoạt chung. Không gian này liên thông với phòng bếp – ăn, giúp gắn kết các thành viên trong gia đình, đồng thời tận dụng ánh sáng tự nhiên từ sân trước và khoảng thông tầng. Phía cuối nhà là phòng ngủ số 3 cùng khu WC tiện nghi, đảm bảo sự riêng tư và thoải mái cho người sử dụng.
Tầng lửng được thiết kế khoa học để gia tăng diện tích sử dụng. Tại đây, gia đình có thêm hai phòng ngủ, thích hợp cho vợ chồng và con cái. Ngoài ra, gác lửng còn có phòng thờ riêng biệt, đặt ở vị trí cao ráo, trang nghiêm, hợp phong thủy. Bên cạnh đó là khu vực WC chung, đáp ứng nhu cầu sinh hoạt hàng ngày.
Chi phí xây dựng mẫu nhà ống 1 tầng đẹp 5×20
Để bạn có thể dự trù được chi phí thiết kế và thi công mẫu nhà ống 1 tầng đẹp 5×20 thì chúng tôi gửi đến bạn bảng báo giá thiết kế thi công nhà ống để cùng tham khảo.
Đơn giá thiết kế nhà phố được tính theo m2:
- Phong cách hiện đại: 80.000Đ – 100.000Đ/m2
- Phong cách tân cổ điển: 115.000Đ – 125.000.000Đ/m2
- Phong cách cổ điển: 135.000Đ – 145.000Đ/m2
Đơn giá thi công nhà phố tính theo m2:
- Đơn giá thi công phần thô: 3.400.000 – 3.700.000Đ/m2
- Đơn giá thi công hoàn thiện: 5.000.000- 8.000.000Đ/m2

Đây là bảng báo giá thiết kế thi công nhà ống mang tính chất tham khảo bởi đơn giá còn phụ thuộc vào phong cách, vật liệu,… thì sẽ có đơn giá khác nhau. Nếu bạn cần báo giá chi tiết cho công trình của mình hoàn toàn miễn phí, có thể liên hệ qua hotline: 0937.100.202 để được tư vấn nhé.
Những lưu ý khi xây dựng mẫu nhà ống 1 tầng đẹp 5×20
Để có phương án thiết kế mẫu nhà ống đẹp 5×20 tiện nghi và đẹp mắt, các bạn nên cần lưu ý một số vấn đề như sau:
- Bố trí và sắp xếp bố cục các phòng chức năng hợp lý, chuẩn phong thủy để tối ưu không gian sử dụng khoa học.
- Cân nhắc việc sử dụng hệ mái che sao cho phù hợp với thiết kế kiến trúc và chi phí.
- Thiết kế các phòng sinh hoạt dựa trên nhu cầu và mong muốn của các thành viên trong gia đình để tạo sự tiện nghi và thoải mái nhất.
- Nên sử dụng cửa kính, thiết kế liên thông, có thể xây giếng trời để ngôi nhà không bị thiếu sáng và gió tự nhiên từ bên ngoài vào.
- Tìm hiểu và tham khảo bản vẽ phối cảnh ngôi nhà trước khi quyết định tiến hành xây dựng.
- Tìm hiểu về phong thủy, hướng nhà, màu sắc sao cho hợp mệnh.

NEOHouse – Công ty chuyên thiết kế thi công mẫu nhà ống 1 tầng đẹp 5x20m
Nếu bạn đang tìm kiếm một mẫu nhà ống 1 tầng 5x20m vừa đẹp mắt, vừa đầy đủ công năng, thì NEOHouse chính là lựa chọn đáng tin cậy ngay lúc này. Với hơn 12 năm kinh nghiệm trong ngành kiến trúc – xây dựng, NEOHouse đã khẳng định vị thế của mình thông qua hàng trăm công trình thực tế được khách hàng đánh giá cao.

Điểm mạnh của NEOHouse không chỉ nằm ở ý tưởng thiết kế sáng tạo, mà còn ở khả năng thi công chuẩn xác, bền vững và cân đối ngân sách phù hợp cho từng chủ đầu tư. Từng chi tiết nhỏ trong bản vẽ đều được tính toán kỹ lưỡng để tối ưu diện tích, đem lại không gian sống thoáng đãng, tiện nghi cho gia đình. Đặc biệt, các mẫu nhà ống 1 tầng 5x20m được NEOHouse triển khai luôn có sự cân bằng giữa thẩm mỹ, phong thủy và chi phí, phù hợp với nhiều nhu cầu và ngân sách khác nhau.

Với đội ngũ kiến trúc sư – kỹ sư tâm huyết cùng xưởng sản xuất nội thất riêng, NEOHouse đảm bảo khách hàng sẽ nhận được giải pháp toàn diện từ thiết kế đến thi công, hạn chế phát sinh chi phí và rút ngắn thời gian hoàn thiện. Mỗi công trình không chỉ là một ngôi nhà, mà còn là tổ ấm thể hiện phong cách và dấu ấn riêng của gia chủ.
Trên đây là bài viết chia sẻ về những mẫu nhà ống 1 tầng đẹp 5×20 được yêu thích và lựa chọn nhiều nhất trong những năm vừa qua. Hy vọng với những chia sẻ trên đã giúp bạn hiểu rõ hơn về mẫu nhà ống 1 tầng 5x20m này và đừng quên tiếp tục theo dõi NEOHOUSE để cập nhật những mẫu nhà đẹp, xu hướng nhé.