Trong những năm gần đây, thiết kế nhà 5x10m 2 tầng 3 phòng ngủ ngày càng được nhiều gia đình lựa chọn nhờ khả năng tối ưu diện tích, chi phí và công năng sử dụng. Trong bài viết này, NEOHouse mời bạn cùng khám phá các mẫu nhà 2 tầng 3 phòng ngủ 5x10m được thiết kế theo nhiều phong cách khác nhau như hiện đại, tân cổ điển, mái Thái, mái Nhật hay mái bằng. Mỗi mẫu đều được tối ưu công năng, bố trí không gian hợp lý, mang đến sự thoải mái và tiện nghi cho mọi thành viên trong gia đình.
Tham khảo thêm: 20+ mẫu thiết kế nhà ống 2 tầng 3 phòng ngủ hiện đại đẹp
Tham khảo bản thiết kế nhà 5x10m 2 tầng 3 phòng ngủ
Bản thiết kế nhà 5x10m 2 tầng 3 phòng ngủ mái lệch
Bố trí mặt bằng công năng nhà 5x10m 2 tầng 3 phòng ngủ mái lệch mang đến không gian sống hài hòa và tiện nghi cho gia đình. Ở tầng 1, phòng khách được thiết kế liên thông với khu bếp ăn, tạo sự kết nối liền mạch và giúp không gian thêm thông thoáng. Phía sau là phòng ngủ master dành cho ba mẹ, đảm bảo tính riêng tư và thuận tiện trong sinh hoạt hằng ngày. Trong khi đó, khu vực lầu 2 là khu vực nghỉ ngơi của các con với hai phòng ngủ bố trí đối xứng, mỗi phòng đều được thiết kế cửa sổ lớn để đón sáng và gió tự nhiên. Nhờ cách phân chia hợp lý, tổng thể ngôi nhà đem lại cảm giác ấm cúng, hiện đại và đáp ứng đầy đủ nhu cầu sinh hoạt của cả gia đình.


Bản thiết kế nhà 5x10m 2 tầng 3 phòng ngủ mái Thái
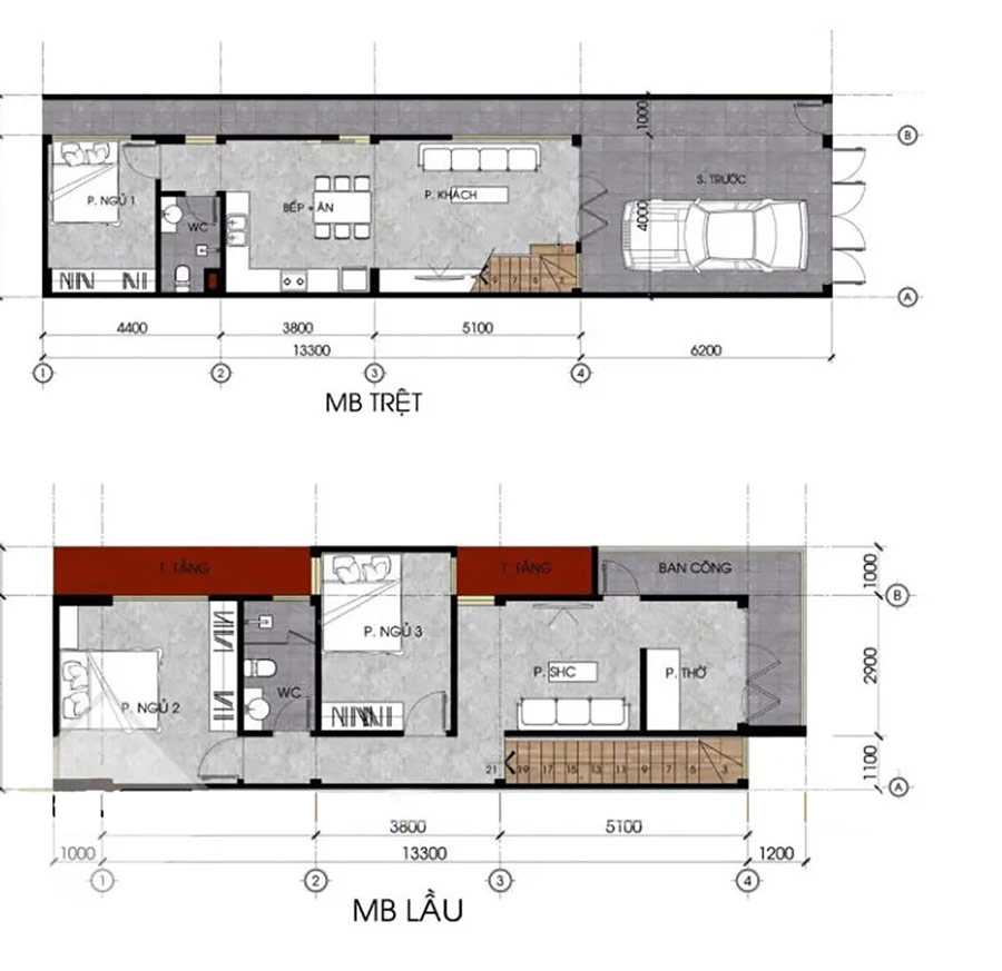
Mẫu thiết kế công năng nhà 5x10m 2 tầng 3 phòng ngủ mái thái được các kiến trúc sư bố trí khoa học tối ưu không gian và diện tích sử dụng. Với tầng 1 gồm phòng khách liên thông bếp ăn, tạo sự kết nối liền mạch và thoáng sáng. Phía sau là phòng ngủ nằm ngay trong góc nhà, đảm bảo sự riêng tư và yên tĩnh cho không gian nghỉ ngơi. Đặc biệt phía đối diện là 1 nhà vệ sinh nhằm đảm bảo sự thuận tiện trong sinh hoạt. Bên cạnh đó, khu vực lầu 2 bao gồm 2 phòng ngủ liền kề nhau với đầy đủ công năng như tivi bàn học trong phòng. Ngoài ra, tầng này còn được bố trí thêm 1 phòng làm việc chung rộng rãi, nơi mà các thành viên có thể đọc sách, làm việc cùng nhau tạo nên sự gắn kết cho các thành viên trong gia đình.

Bản thiết kế nhà 5x10m 2 tầng 3 phòng ngủ mái bằng
Thiết kế 5x10m 2 tầng 3 phòng ngủ mái bằng giúp tối ưu hóa không gian sinh hoạt và nghỉ ngơi. Tầng trệt có sân trước rộng rãi có thể bố trí cây cảnh, sân vườn nhỏ kết nối với khu vực để xe máy và phòng khách phía trong. Ngoài ra, ở đây còn được bố trí 1 phòng ngủ ở phía cuối nhà dành cho ông bà hoặc người lớn tuổi để đảm bảo sự thuận tiện trong di chuyển và sinh hoạt. Cùng với đó, lầu 2 được bố trí 2 phòng ngủ mang lại sự yên tĩnh cho các thành viên, cùng khu vực sinh hoạt chung ở trung tâm, lý tưởng cho cả gia đình quây quần. Phòng thờ đặt phía trước, gần ban công, tạo không gian thoáng đãng và trang nghiêm, đồng thời ban công giúp lưu thông không khí và đón ánh sáng tự nhiên.


Bản thiết kế nhà 5x10m 2 tầng 3 phòng ngủ mái nhật
Mẫu thiết kế nhà 5x10m 2 tầng 3 phòng ngủ mái Nhật được bố trí thông minh, đáp ứng nhu cầu sinh hoạt của gia đình nhiều thế hệ. Ngôi nhà được bố trí công năng bao gồm 1 gara, 1 phòng khách, 1 phòng bếp+ ăn, 1 phòng thờ, 3 phòng ngủ và 2 nhà vệ sinh ở các tầng. Phía trước nhà được bố trí 1 gara, giúp cho không gian được gọn gàng, có chổ đổ xe oto thoải mái và thuận tiện cho quá trình duy chuyển và sinh hoạt của gia đình. Bước vào ngôi nhà là không gian mở với phòng khách rộng rãi kết hợp với khu vực bếp ăn tạo ra cảm giác rộng rãi và thoáng đãng cho ngôi nhà. Ở tầng này còn được bố trí 1 phòng ngủ dành cho ba mẹ hoặc ông bà, giúp việc đi lại dễ dàng, đặc biệt phù hợp với người lớn tuổi. Trên lầu là khu vực riêng tư của các con, gồm hai phòng ngủ thoáng sáng cùng nhà vệ sinh bố trí giữa, đảm bảo tiện nghi và riêng tư. Tổng thể ngôi nhà vừa hiện đại, vừa gần gũi, mang đến cảm giác ấm áp cho cả gia đình.

Bản thiết kế nhà 5x10m 2 tầng 3 phòng ngủ có gara
Mẫu thiết kế nhà 5x10m 2 tầng 3 phòng ngủ có gara là một giải pháp quy hoạch vô cùng thông minh trên những khu đất có diện tích hẹp. Khu vực gara ô tô được bố trí ngay phía trước, tiếp giáp cổng chính, đảm bảo việc ra vào xe thuận tiện tối đa mà không làm ảnh hưởng đến không gian sống. Sự kết nối liền mạch được tạo ra nhờ lối đi từ gara thẳng vào phòng khách, giúp tối ưu hóa diện tích mặt tiền hẹp. Bên trong, phòng khách vẫn đảm bảo sự riêng tư nhờ lớp cửa ngăn cách tinh tế, tiếp nối là khu bếp và bàn ăn. Tầng trệt khép lại bằng phòng ngủ 1 tiện nghi và nhà vệ sinh chung đặt ở cuối. Lầu 2 là không gian nghỉ ngơi riêng biệt với hai phòng ngủ, một phòng thờ trang trọng và nhà vệ sinh chung, mang lại sự yên tĩnh và đầy đủ tiện nghi cho cả gia đình.

Gợi ý các mẫu thiết kế nhà 5x10m 2 tầng 3 phòng ngủ được ưa chuộng hiện nay
Mẫu thiết kế nhà 5x10m 2 tầng 3 phòng ngủ hiện đại
Mẫu thiết kế nhà 5x10m 2 tầng 3 phòng ngủ hiện đại mang phong cách tối giản, chú trọng vào công năng và khả năng đón sáng tự nhiên. Những ngôi nhà với diện tích 5x10m nổi bật với những khối kiến trúc vuông vức kết hợp với cửa kính và gam màu trung tính tạo nên diện mạo trẻ trung, thanh lịch. Mỗi chi tiết vật liệu đều được chọn lọc kỹ lưỡng nhằm đảm bảo độ bền vững và tính thẩm mỹ theo thời gian, phản ánh rõ nét lối sống hiện đại, phóng khoáng của gia chủ.



Thiết kế nhà 5x10m 2 tầng 3 phòng ngủ mái bằng
Thiết kế nhà 5x10m 2 tầng 3 phòng ngủ mái bằng gây ấn tượng bởi vẻ đẹp hiện đại, tinh tế và bố cục gọn gàng. Các đường nét kiến trúc được xử lý vuông vức, rõ ràng nhưng vẫn mềm mại nhờ sự kết hợp hài hòa giữa mảng tường, cửa kính và chi tiết trang trí. Kiểu mái bằng mang lại dáng vẻ khỏe khoắn, vững chãi, đồng thời giúp tổng thể công trình trở nên thanh thoát và sang trọng hơn. Đặc biệt, phần mái có thể được tận dụng linh hoạt để bố trí sân thượng xanh mát, khu vực trồng cây cảnh, đặt bàn trà hoặc làm góc thư giãn ngoài trời. Nhờ đó, ngôi nhà không chỉ gia tăng giá trị sử dụng mà còn mang đến không gian nghỉ ngơi lý tưởng, gần gũi với thiên nhiên và đáp ứng trọn vẹn nhu cầu sinh hoạt của gia đình.

Thiết kế nhà 5x10m 2 tầng 3 phòng ngủ mái thái
Thiết kế nhà 5x10m 2 tầng mái Thái chinh phục người nhìn ngay từ ánh mắt đầu tiên nhờ vẻ đẹp sang trọng và bề thế. Kiểu mái dốc đặc trưng không chỉ tôn lên dáng nhà thanh thoát mà còn thể hiện gu thẩm mỹ tinh tế của gia chủ. Phong cách này đặc biệt phù hợp với lối kiến trúc tân cổ điển nhẹ hoặc hơi hướng truyền thống, nơi màu ngói đỏ đậm hay xanh than kết hợp cùng gam trung tính và những đường phào chỉ mềm mại. Bên cạnh giá trị thẩm mỹ, mái Thái còn ghi điểm nhờ khả năng chống nóng, thoát nước hiệu quả, giúp ngôi nhà luôn cao ráo và bền đẹp theo thời gian.


Thiết kế nhà 5x10m 2 tầng 3 phòng ngủ mái nhật
Mái Nhật là lựa chọn được yêu thích trong các mẫu nhà 5x10m nhờ sự dung hòa hoàn hảo giữa nét hiện đại và cảm giác ấm cúng, gần gũi. Với mặt tiền 5m, kiểu mái này tạo điểm nhấn thanh thoát, giúp ngôi nhà trông rộng và cao hơn so với thực tế. Mái có độ dốc nhẹ, thường lợp ngói màu xám ghi hoặc xanh than, kết hợp tinh tế cùng gam tường trắng sữa và lam gỗ ở mặt tiền, mang lại vẻ đẹp nhã nhặn mà sang trọng. Bên cạnh đó, phần mái được thiết kế có lớp đệm không khí giúp giảm nhiệt hiệu quả, giữ cho không gian bên trong luôn mát mẻ, dễ chịu. Chính nhờ sự cân đối và linh hoạt trong hình khối, mái Nhật trở thành lựa chọn lý tưởng cho những ngôi nhà phố diện tích 5x10m muốn hướng đến vẻ đẹp tinh tế, hài hòa và bền vững.


Thiết kế nhà 5x10m 2 tầng 3 phòng ngủ mái lệch
Thiết kế nhà 5x10m 2 tầng 3 phòng ngủ mái lệch là lựa chọn lý tưởng cho những gia chủ tìm kiếm sự phá cách và kiến trúc hiện đại độc đáo. Mặc dù bị giới hạn về diện tích 5x10m nhưng kiểu mái lệch vẫn giúp ngôi nhà nổi bật hơn với phần mái độc đáo, phá cách và giúp tổng thể ngôi nhà trở nên cao ráo, thoáng đãng hơn. Những ngôi nhà 5x10m mái lệch này ưu tiên kết hợp kính lớn, lam nhôm cùng gam màu trung tính (trắng, ghi, nâu gỗ) để tạo nên vẻ ngoài hài hòa, sang trọng.



Mẫu thiết kế nhà 5x10m 2 tầng 3 phòng ngủ có gác lửng
Đối với những công trình có diện tích không quá lớn chỉ 5x10m, thiết kế gác lửng chính là giải pháp tối ưu không gian vô cùng hiệu quả, tạo ra một tầng lửng đa năng. Khu vực này có thể tận dụng làm phòng ngủ thứ ba riêng tư, một phòng thờ trang nghiêm, hoặc là không gian đọc sách ấm cúng. Kiến trúc gác lửng giúp không gian tổng thể trở nên hài hòa, thoáng đãng, đồng thời tăng chiều cao và sự rộng rãi cho khu vực sinh hoạt chung bên dưới, rất phù hợp với phong cách hiện đại, năng động.



Nhà ống 2 tầng 5x10m 1 tum 3 phòng ngủ
Thiết kế nhà 5x10m 2 tầng 3 phòng ngủ có tầng tum được xem là giải pháp tối ưu, giúp mở rộng không gian sử dụng mà không làm thay đổi quy mô xây dựng chính. Khu vực tầng tum được tận dụng linh hoạt với nhiều công năng khác nhau như phòng giặt, sân phơi hoặc khoảng sân vườn nhỏ mang lại không gian thư giãn xanh mát. Nhiều gia chủ còn bố trí thêm phòng thờ tại đây để đảm bảo sự yên tĩnh và tính trang nghiêm cho ngôi nhà. Để công trình đạt độ bền và thẩm mỹ cao, khi thi công cần đặc biệt quan tâm đến kết cấu chịu lực cũng như khả năng chống thấm, thoát nước cho tầng tum.


Mẫu thiết kế nhà 5x10m 2 tầng 3 phòng ngủ có gara ô tô
Trong xu hướng nhà phố hiện nay, việc tích hợp không gian để xe ngay trong nhà đang trở thành nhu cầu thiết yếu của nhiều gia đình hiện đại. Đặc biệt với những ngôi nhà có mặt tiền 5m, thiết kế 5x10m 2 tầng 3 phòng ngủ có gara ô tô không chỉ mang lại sự tiện lợi mà còn giúp tối ưu diện tích sử dụng hiệu quả. Khu vực gara thường được bố trí gọn gàng ở tầng trệt, liền kề phòng khách hoặc bếp tùy theo nhu cầu sinh hoạt, vừa đảm bảo tính thẩm mỹ, vừa tạo sự thuận tiện trong di chuyển và sử dụng hằng ngày.


Gợi ý các mẫu nội thất cho thiết kế nhà 5x10m 2 tầng 3 phòng ngủ
Thiết kế nội thất cho phòng khách
Phòng khách trong nhà 5x10m 2 tầng 3 phòng ngủ được thiết kế với tông màu trung tính như trắng, be hoặc xám, tạo cảm giác sang trọng và hiện đại. Bộ sofa tối giản kết hợp bàn trà gỗ hoặc mặt kính giúp không gian thêm tinh tế. Ánh sáng tự nhiên từ cửa kính lớn giúp căn phòng luôn thông thoáng, mát mẻ. Gia chủ có thể điểm xuyết cây xanh hoặc tranh treo tường để tăng sức sống cho không gian.

Thiết kế nội thất phòng bếp
Phòng bếp nên sử dụng gam màu ấm như nâu gỗ hoặc trắng sáng, mang đến cảm giác sạch sẽ và gần gũi. Cách bố trí bếp chữ L hoặc chữ I giúp tiết kiệm diện tích, thuận tiện khi nấu nướng. Bàn ăn đặt gần cửa sổ để đón sáng tự nhiên, tạo không gian ấm cúng khi quây quần. Một chiếc đèn chùm nhỏ hoặc lọ hoa tươi sẽ là điểm nhấn nhẹ nhàng, tinh tế.

Thiết kế nội thất phòng ngủ
Phòng ngủ được thiết kế tối giản với gam màu nhẹ như be, trắng hoặc xám để mang lại cảm giác thư giãn. Giường, tủ và bàn trang điểm được bố trí sát tường giúp không gian gọn gàng, thoáng đãng. Cửa sổ lớn giúp đón sáng tự nhiên và không khí trong lành. Phòng ngủ trẻ em có thể phối màu tươi sáng để tạo sự vui tươi, năng động.

Kinh nghiệm thiết kế nhà 5x10m 2 tầng 3 phòng ngủ
Dưới đây là những kinh nghiệm quan trọng giúp bạn sở hữu mẫu thiết kế nhà 5x10m 2 tầng 3 phòng ngủ vừa đẹp mắt, tiện nghi, vừa tối ưu chi phí xây dựng và đáp ứng trọn vẹn nhu cầu sinh hoạt của gia đình.
- Phong cách thiết kế: Trước khi bắt đầu xây dựng, gia chủ cần xác định rõ phong cách thiết kế tổng thể của ngôi nhà – hiện đại, tân cổ điển hay tối giản. Việc này giúp kiến trúc sư dễ dàng lên ý tưởng mặt bằng, lựa chọn vật liệu, màu sắc và trang trí phù hợp. Nếu yêu thích sự trẻ trung, bạn có thể chọn phong cách hiện đại với hình khối vuông vắn, đường nét đơn giản. Ngược lại, nếu thích sự tinh tế, nhẹ nhàng, phong cách tân cổ điển sẽ là lựa chọn lý tưởng.
- Công năng từng khu vực: Với diện tích 5x10m, việc bố trí công năng cần được tính toán kỹ để đảm bảo tiện nghi và không gian thông thoáng. Tầng trệt thường gồm phòng khách, bếp – ăn và nhà vệ sinh, tầng 2 là nơi bố trí phòng ngủ, phòng thờ hoặc khu sinh hoạt chung. Cách sắp xếp hợp lý không chỉ mang lại sự thuận tiện trong sinh hoạt mà còn giúp căn nhà trông rộng rãi hơn.
- Phong thủy nhà ở: Yếu tố phong thủy có ảnh hưởng lớn đến sức khỏe, tài vận và hòa khí trong gia đình. Khi thiết kế, nên chọn hướng nhà, hướng cửa chính và cầu thang phù hợp với mệnh gia chủ. Ngoài ra, cần tránh đặt bếp đối diện cửa chính hoặc phòng ngủ nằm ngay trên bếp để đảm bảo năng lượng trong nhà luôn lưu thông tốt. Màu sắc nội thất cũng nên chọn theo ngũ hành để mang lại may mắn và thịnh vượng.
- Tone màu chủ đạo: Một ngôi nhà hài hòa về màu sắc sẽ giúp không gian trở nên thống nhất và có chiều sâu hơn. Gia chủ nên chọn từ 2 đến 3 màu làm chủ đạo, kết hợp giữa tông sáng (trắng, kem, be) và tông nhấn (xám, nâu gỗ, xanh navy…). Nên chú ý phối hợp đồng nhất giữa màu sơn ngoại thất và nội thất để tạo sự liền mạch trong thiết kế.
- Thông gió và ánh sáng tự nhiên: Nhà ống thường có chiều ngang hẹp nên cần được thiết kế khéo léo để đảm bảo thông gió và đón sáng hiệu quả. Giếng trời, cửa sổ lớn hoặc vách kính trượt là giải pháp lý tưởng giúp không gian luôn thoáng mát và tiết kiệm điện năng. Bên cạnh đó, việc sử dụng rèm mỏng, gương phản chiếu cũng giúp mở rộng tầm nhìn và tăng cảm giác rộng rãi cho ngôi nhà.
- Dự trù chi phí và lựa chọn đơn vị thi công: Trước khi xây dựng, bạn cần lập kế hoạch tài chính chi tiết, bao gồm chi phí vật liệu, nhân công, nội thất và các khoản phát sinh. Nên chia sẻ ngân sách với kiến trúc sư và nhà thầu để họ đưa ra phương án tối ưu nhất. Cuối cùng, hãy lựa chọn đơn vị thi công uy tín, có kinh nghiệm trong thiết kế và xây dựng nhà ống để đảm bảo chất lượng công trình, tiến độ thi công và độ bền lâu dài.

NEOHouse đơn vị thiết kế nhà 5x10m 2 tầng 3 phòng ngủ uy tín tại TP.HCM
NEOHouse JSC tự hào là một trong những đơn vị hàng đầu trong lĩnh vực thiết kế nhà phố đẹp tại TP.HCM. Với hơn 12 năm kinh nghiệm, chúng tôi sở hữu đội ngũ kiến trúc sư, kỹ sư chuyên nghiệp, không ngừng cập nhật xu hướng thiết kế hiện đại và tối ưu công năng. Chúng tôi hiểu rằng, ngôi nhà không chỉ là nơi ở mà còn là không gian thể hiện phong cách sống và cá tính riêng của gia chủ. Vì vậy, NEOHouse luôn mang đến những mẫu thiết kế tinh tế, độc đáo và những công trình thi công chất lượng vượt trội, đáp ứng trọn vẹn mong muốn của khách hàng.

Chất lượng và uy tín là giá trị cốt lõi
Với phương châm chất lượng và uy tín đặt lên hàng đầu. Vì thế từ bước lên ý tưởng, thiết kế chi tiết đến thi công thực tế, mọi giai đoạn đều được thực hiện theo quy trình tiêu chuẩn và giám sát chặt chẽ. Chúng tôi luôn lựa chọn vật liệu xây dựng có chất lượng, đảm bảo độ bền, an toàn và tính thẩm mỹ cho công trình. NEOHouse cam kết bàn giao đúng tiến độ, đúng chất lượng và đảm bảo sự hài lòng tuyệt đối cho khách hàng.

Dịch vụ thiết kế chuyên nghiệp và tận tâm
Bên cạnh việc mang đến những bản thiết kế nhà đẹp, chúng tôi còn đặc biệt chú trọng đến trải nghiệm và mong muốn của khách hàng. Đội ngũ tư vấn NEOHouse luôn lắng nghe, thấu hiểu để đưa ra giải pháp thiết kế tối ưu về phong cách, công năng và ngân sách. Mỗi không gian sống được chúng tôi chăm chút từ cách bố trí, lựa chọn màu sắc đến ánh sáng tạo nên tổng thể hài hòa, hiện đại và tiện nghi.

Lợi thế khi lựa chọn NEOHouse
Khi lựa chọn NEOHouse, bạn không chỉ nhận được một bản thiết kế nhà đẹp mà còn là giải pháp xây dựng trọn gói chuyên nghiệp. Giúp bạn tiết kiệm chi phí, hạn chế phát sinh và đảm bảo công trình đạt chất lượng cao nhất. Với hơn 12 năm kinh nghiệm, NEOHouse JSC luôn là đối tác đáng tin cậy trong lĩnh vực thiết kế nhà phố và biệt thự đẹp đẹp tại TP.HCM.

Lời kết
Trên đây là tổng hợp những mặt bằng công năng và mẫu thiết kế nhà 5x10m 2 tầng 3 phòng ngủ được ưa chuộng nhất hiện nay. Mỗi thiết kế đều mang một phong cách cũng như điểm nhấn riêng nhưng điểm chung là sự tối ưu trong công năng, tính thẩm mỹ và chi phí xây dựng hợp lý, phù hợp với nhu cầu của nhiều gia đình trẻ tại đô thị. Nếu bạn đang tìm kiếm một giải pháp mẫu thiết kế nhà đẹp tiện nghi vừa thể hiện được phong cách sống riêng, hãy để NEOHouse đồng hành cùng bạn trong hành trình kiến tạo tổ ấm lý tưởng nơi mỗi không gian đều được tính toán kỹ lưỡng, mang đến trải nghiệm sống thoải mái và trọn vẹn nhất.


