Mẫu biệt thự chữ L ngày càng được rất nhiều chủ đầu tư lựa chọn xây dựng cho mái ấm của gia đình mình, đặc biệt là tại các vùng nông thôn, vùng ven ngoại ô, các khu vực có diện tích đất rộng lớn. Không chỉ đáp ứng một công trình thẩm mỹ cao, gần gũi, biệt thự chữ L còn đáp ứng công năng sử dụng tiện nghi cùng một không gian sống trong lành và mát mẻ. Chính vì thế, trong bài viết chia sẻ ngày hôm nay, NEOHouse xin giới thiệu đến quý khách và bạn đọc những mẫu thiết kế biệt thự chữ L được xây dựng phổ biến nhất hiện nay. Cùng tham khảo nhé!
Ưu điểm nổi bật của biệt thự chữ L
Hiện nay, mẫu biệt thự chữ L ngày càng được nhiều gia đình yêu thích và lựa chọn xây dựng do sở hữu kiến trúc độc đáo, hiện đại cùng những ưu điểm nổi bật sau đây:
- Tối ưu diện tích sử dụng: Với kiểu dáng hình chữ L, ngôi nhà tạo ra khoảng không gian sống phía trước, chủ nhà có thể tận dụng làm khuôn viên sân vườn, gara để xe hoặc sân chơi cho trẻ nhỏ. Đồng thời mang đến không gian sống trong lành, gần gũi thiên nhiên cho căn biệt thự.
- Phù hợp khu đất bị hạn chế: Nhiều chủ đầu tư sở hữu khu đất không vuông vắn, bị khuyết góc hoặc không định hình được, nên sẽ rất khó để xây nhà theo hình chữ nhật thông thường. Lúc này, biệt thự chữ L có kiểu dáng linh hoạt sẽ là giải pháp tối ưu nhất ngay lúc này.
- Nhà chữ L dễ dàng bố trí công năng bên trong: Bố trí công năng sử dụng biệt thự chữ L có thể tách riêng giữa các phòng nhưng vẫn đảm bảo sự tiện nghi, sự thông thoáng và thuận tiện trong quá trình sử dụng.
- Nhà chữ L phù hợp kiến trúc của người Việt: Nhà chữ L là một mô hình nhà ở được phát triển từ những ngôi nhà ba gian hai trái hoặc ba gian một trái, có thêm nhà phụ vuông góc với nhà chính. Do nhu cầu sử dụng của gia đình đông thành viên, loại hình nhà ở này được nâng thêm số tầng nhưng vẫn giữ nguyên giá trị văn hóa truyền thống của người Việt.

Tổng hợp những mẫu biệt thự chữ L đẹp được ưa chuộng nhất hiện nay
Trong những năm trở lại đây, mẫu biệt thự chữ L ngày càng được nhiều gia đình lựa chọn bởi vẻ đẹp thẩm mỹ, tính tiện nghi và chi phí xây dựng hợp lý. Nếu bạn đang có ý định xây biệt thự chữ L để làm mái ấm cho gia đình, đừng bỏ lỡ các mẫu thiết kế biệt thự chữ L đẹp, ấn tượng dưới đây!
Biệt thự chữ L hiện đại
Mẫu biệt thự chữ L phong cách hiện đại sở hữu những mảng khối kiến trúc được sắp xếp theo hình chữ L độc đáo và mới lạ. Với thiết kế này, biệt thự tận dụng tối đa không gian trước nhà để tạo sân chơi, gara và tiểu cảnh xanh đáp ứng nhu cầu giải trí, thư giãn cho gia đình. Ngoài ra, biệt thự chữ L hiện đại còn sử dụng vật liệu kính cường lực trong suốt, giúp tối ưu nguồn ánh sáng tự nhiên và gió trời, kết nối giữa sân vườn và không gian nội thất với nhau góp phần mở rộng tầm nhìn và mang đến không khí trong lành, mát mẻ.




Biệt thự chữ L tân cổ điển
Được thiết kế theo phong cách tân cổ điển, mẫu biệt thự chữ L phô diễn trọn vẹn vẻ đẹp sang trọng, tinh tế và đẳng cấp. Hệ cột trụ vuông vắn và kiên cố, họa tiết hoa văn, phào chỉ trang trí tối giản nhẹ nhàng tại đầu và chân cột mang lại nét đẹp thanh thoát, bắt mắt cho công trình. Bên cạnh đó, khoảng không gian phía trước được tận dụng thiết kế sân vườn, khu vực để xe và không gian vui chơi cho trẻ em, đem lại một khu vực giải trí và thư giãn tuyệt vời cho các thành viên trong gia đình.




Biệt thự chữ L mái thái
Biệt thự chữ L mái thái mang vẻ đẹp hiện đại và truyền thống, thiết kế đơn giản nhưng vô cùng ấn tượng và lôi cuốn bởi những đường nét kiến trúc dứt khoát, mạnh mẽ kết hợp sân vườn rộng lớn, thoáng mát làm nên một tổng thể không gian sống vô cùng lý tưởng và sinh động. Hệ thống mái thái là một điểm nhấn nổi bật của tổng thể ngôi nhà, hệ mái có độ dốc lớn, giật cấp theo các hình khối công trình, vừa tăng hiệu ứng thẩm mỹ, vừa giúp thoát nước nhanh chóng và bền vững.




Biệt thự chữ L mái Nhật
So với những hệ mái thái hay các kiểu mái nhà khác, mái Nhật có độ dốc nhẹ và kết cấu bê tông kiên cố. Ngoài việc giúp thoát nước dễ dàng, chống ẩm, chống thấm hiệu quả, mái Nhật còn là điểm nhấn ấn tượng trong tổng thể công trình. Căn biệt thự chữ L mái Nhật được trang trí không quá cầu kỳ, không sử dụng những họa tiết phức tạp nhưng vẫn toát lên vẻ đẹp sang trọng và cuốn hút qua các hình khối, màu sắc và vật liệu kết hợp hài hòa. Khoảng sân vườn rộng phía trước được bố trí linh hoạt, vừa đáp ứng yếu tố phong thủy và công năng, vừa không chiếm diện tích đất xây dựng.




Biệt thự chữ L 1 tầng
Những mẫu biệt thự chữ L 1 tầng là một trong những loại hình nhà ở phù hợp với gia đình trẻ, ít thành viên sinh sống. Mẫu biệt thự này thường thiết kế theo phong cách hiện đại, tối ưu không gian và diện tích sử dụng, mỗi phòng chức năng đều được bố trí và sắp xếp khoa học, tạo sự thoải mái và thuận tiện trong quá trình sinh hoạt cũng như phù hợp yếu tố phong thủy.




Biệt thự chữ L 2 tầng
Biệt thự chữ L 2 tầng là một mẫu nhà được xây dựng phổ biến tại các vùng ngoại ô và nông thôn, phù hợp với những gia đình đông thành viên sinh sống. Mẫu biệt thự sở hữu những hình khối hộp vuông vức xếp chồng lên nhau tạo nên vẻ ngoài khỏe khoắn, vững chắc. Tô điểm thêm các gam màu trung tính như màu sơn trắng chủ đạo, màu nâu và đen cùng hệ mái màu trầm ấm, đem đến một công trình trẻ trung và năng động. Với thiết kế chữ L độc đáo, các kiến trúc sư đã xử lý tạo ra một khoảng sân vườn vừa đủ để tạo khoảng không thiên nhiên thoáng đãng cùng sân chơi cho gia đình.



Biệt thự chữ L 3 tầng
Mẫu thiết kế biệt thự 3 tầng chữ L phù hợp với những gia đình đa thế hệ sinh sống và mong muốn một không gian sống rộng rãi, thoáng đãng. Mẫu thiết kế đề cao sự tự do với đường nét phóng khoáng, tối giản, hình khối cân đối và chú trọng đến không gian mở. Ưu điểm nổi bật là kiến trúc cao ráo, bề thế, tối ưu công năng sử dụng tiện nghi. Đây là lựa chọn hoàn hảo cho gia đình yêu thích sự trẻ trung, hiện đại và không gian mở gần gũi thiên nhiên.




Biệt thự chữ L có tầng hầm
Thiết kế biệt thự chữ L có tầng hầm là một gợi ý tuyệt vời dành cho những gia đình sở hữu khu đất không quá rộng nhưng vẫn muốn tích hợp gara và sân vườn, tăng thêm diện tích sử dụng. Tầng hầm ngoài việc thiết kế gara, gia chủ có thể tận dụng bố trí thêm phòng ngủ, phòng gym,… tùy theo nhu cầu sử dụng và mong muốn của gia đình.




Biệt thự chữ L có gara
Mẫu biệt thự chữ L có gara là một trong những phương án thiết kế biệt thự phổ biến hiện nay. Với khuyết góc chữ L, gia chủ có thể tận dụng bố trí sân vườn và gara để xe thuận lợi, không chiếm diện tích xây dựng. Gara xe bố trí riêng biệt, đối diện cổng ra vào tạo sự thuận tiện cho quá trình di chuyển. Công trình biệt thự chữ L có gara thường chú trọng đến không gian tiện nghi và thông thoáng, không chú trọng quá nhiều chi tiết trang trí mà chủ yếu tập trung công năng sử dụng.




Biệt thự chữ L có hồ bơi
Mẫu thiết kế biệt thự chữ L có hồ bơi đã và đang được rất nhiều chủ đầu tư quan tâm, không chỉ mang đến không gian sống rộng rãi, thoáng đãng mà trong kiến trúc còn thể hiện sự đẳng cấp, sang trọng. Bên cạnh một công trình hiện đại, tinh tế cùng công năng sử dụng khoa học thì chủ đầu tư còn bố trí một hồ bơi rộng rãi, tạo khu vực thư giãn lý tưởng, còn gì tuyệt vời khi ngâm mình vào trong nước hồ mát mẻ vào buổi sáng sớm hay những ngày nắng nóng. Hơn nữa, sát bên hồ bơi còn bố trí các tiểu cảnh cây xanh, hoa lá xung quanh nhà, tạo điểm nhấn không gian cũng như mang lại cảm giác gần gũi thiên nhiên và bầu không khí trong lành.




Biệt thự nhà vườn chữ L
Biệt thự nhà vườn chữ L là loại hình kiến trúc được xây dựng trên khu đất có diện tích rộng lớn, không gian dành cho sân vườn, tiểu cảnh và các tiện ích khác như hồ cá, hồ bơi, chòi nghỉ, khu vực nướng BBQ,… được thiết kế rộng rãi, khoa học, mang đến những trải nghiệm thú vị cho gia đình. Về kiến trúc, biệt thự tập trung vào khai thác những hình khối đơn giản, khỏe khoắn kết hợp với những ô cửa kính lớn tạo sự thông thoáng, đón ánh sáng và gió tự nhiên hiệu quả, cũng như kết nối giữa sân vườn và nội thất bên trong chặt chẽ, mang đến tầm nhìn rộng rãi và gần gũi thiên nhiên.



Biệt thự mini chữ L
Không quá đồ sộ hay bề thế như những căn biệt thự lớn, mẫu biệt thự mini chữ L ngày càng được ưa chuộng và yêu thích bởi thiết kế tinh tế, tối ưu nhưng không kém phần ấn tượng và sang trọng. Mẫu biệt thự mini thường không quá chú trọng đến việc trang trí mặt tiền cầu kỳ, mà thiết kế đơn giản, nhẹ nhàng chủ yếu tập trung vào các không gian sống khoa học, tiện nghi và thoải mái, đáp ứng các nhu cầu sinh hoạt cho các thành viên trong gia đình.



Biệt thự phố chữ L
Biệt thự phố là khái niệm chỉ những căn biệt thự mặt phố, được xây dựng tại các khu đô thị, thành phố có diện tích hạn chế. Các căn biệt thự phố chữ L thường có diện tích lớn hơn so với các căn nhà phố thông thường, mặt tiền thường dao động từ 6-10m. Mặc dù xây dựng trong không gian diện tích có phần hạn hẹp nhưng căn biệt thự luôn chú trọng đến khuôn viên sân vườn, yếu tố thiên thiên và không khí mát mẻ, tạo vẻ đẹp gần gũi và sang trọng mang đến cảm giác thoải mái, tiện nghi cho gia đình.



Kinh nghiệm thiết kế thi công biệt thự chữ L chuẩn phong thủy
Thiết kế biệt thự chữ L ngày càng được nhiều gia đình đón nhận và trở thành xu hướng kiến trúc ngày nay. Để sở hữu một công trình kiến trúc biệt thự chữ L đẹp, chuẩn phong thủy, chủ đầu tư cần xem xét các yếu tố như sau:
Hóa giải yếu tố phong thủy
Theo quan niệm xưa, hình dáng ngôi nhà có liên quan đến sự may mắn, tài lộc, hạnh phúc và sự thịnh vượng của mỗi gia đinh. Và nhà hình chữ L tựa như một chiếc dao, do đó không được đánh giá cao và thường bị nhiều người xem là điềm xấu, không tốt và không có lợi cho chủ nhà. Tùy theo từng mệnh của chủ nhà mà sẽ có những hóa giải khác nhau, vì vậy mà chủ đầu tư nên chọn đơn vị tư vấn phong thủy kết hợp với kiến trúc sư thiết kế để có giải pháp tốt nhất. Tuy nhiên, dưới đây NEOHouse chia sẻ một số yếu tố phong thủy quan trọng mà gia chủ cần cân nhắc:
- Tránh bố trí phòng ngủ, phòng làm việc hoặc không gian sinh hoạt chính tại các vị trí khuyết góc của biệt thự chữ L, đặc biệt là khu vực được xem như “lưỡi dao”, mục đích để hạn chế ảnh hưởng tiêu cực đến sức khỏe và tinh thần của gia chủ.
- Tăng cường yếu tố thiên nhiên bằng cách trồng cây xanh, bố trí thảm cỏ hoặc tiểu cảnh tại khu vực sân trước để điều hòa sinh khí và tạo cảm giác hài hòa cho tổng thể công trình.
- Thiết kế đài phun nước, hồ cá nhỏ hoặc các yếu tố nước phù hợp trước nhà giúp kích hoạt dòng năng lượng tích cực, hỗ trợ thu hút tài lộc và mang lại sự thịnh vượng.
- Bố trí thêm cây cảnh trong nhà tại các khu vực như phòng khách, sảnh hoặc hành lang để cân bằng âm dương, tạo không gian sống trong lành và dễ chịu.
- Sắp xếp nội thất khoa học, hạn chế góc nhọn và ưu tiên các đường nét mềm mại nhằm giúp dòng khí lưu thông thuận lợi, góp phần mang đến sự may mắn và bình an cho gia đình.

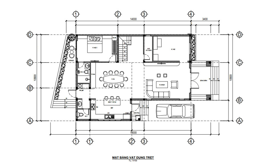
Giải pháp bố trí công năng theo hình dáng khu đất và mục đích sử dụng
Việc bố trí mặt bằng công năng biệt thự chữ L khá phức tạp vì vừa phải đảm bảo yếu tố phong thủy và các yếu tố công năng. Tùy theo mỗi công trình mà sẽ có giải pháp và phương án khác nhau, dựa trên nhu cầu sử dụng, số lượng thành viên trong gia đình, mức đầu tư và quy mô xây dựng mà chủ đầu tư bố trí công năng sử dụng phù hợp nhất.

Bố trí công năng cần đảm bảo yếu tố phong thủy và tiện ích sử dụng
Biệt thự chữ L cần bố trí các không gian chức năng khoa học, đảm bảo sự hài hòa giữa kiến trúc bên ngoài và công năng sử dụng bên trong của biệt thự. Việc tính toán các không gian này phải đảm bảo sự hài hòa, tính liên kết giữa không gian, thỏa mãn các tiện ích sử dụng, thẩm mỹ nhưng vẫn đáp ứng nhu cầu, sở thích và mong muốn của chủ nhà. Theo đó, gia chủ cần lưu ý khi bố trí công năng như sau:
- Ưu tiên bố trí không gian sinh hoạt chung tại các vị trí thông thoáng, đón được ánh sáng và gió tự nhiên, giúp dòng khí lưu thông tốt và tạo cảm giác thoải mái trong quá trình sử dụng.
- Sắp xếp phòng ngủ tại những khu vực yên tĩnh, tránh các vị trí khuyết góc hoặc luồng giao thông chính nhằm đảm bảo sự riêng tư, đồng thời phù hợp với các nguyên tắc phong thủy cơ bản.
- Khu vực bếp và phòng ăn bố trí hợp lý, thuận tiện cho sinh hoạt hằng ngày, đồng thời tránh đối diện trực tiếp với cửa chính để hạn chế thất thoát năng lượng.
- Phòng thờ nên đặt tại vị trí trang nghiêm, cao ráo và tách biệt tương đối với các không gian sinh hoạt, đảm bảo sự hài hòa giữa yếu tố tâm linh và công năng sử dụng.
- Các khu vực phụ trợ như vệ sinh, kho hoặc kỹ thuật cần được bố trí khoa học, đúng vị trí, không ảnh hưởng đến luồng khí chính và trải nghiệm sinh hoạt chung của gia đình.

Chi phí thiết kế và thi công biệt thự chữ L bao nhiêu tiền?
Chi phí thiết kế và thi công biệt thự chữ L bao nhiêu tiền? Là một trong những câu hỏi được rất nhiều khách hàng quan tâm và liên hệ cho chúng tôi. Do đó, dưới đây NEOHouse gửi đến quý khách hàng và bạn đọc bảng báo giá chi tiết để giúp mọi người có thể dự trù kinh phí xây dựng cho ngôi nhà trong tương lai của gia đình mình. Theo đó:
Chi phí thiết kế biệt thự chữ L phụ thuộc vào phong cách kiến trúc:
- Phong cách thiết kế hiện đại: 90.000Đ – 110.000Đ/m2
- Phong cách thiết kế tân cổ điển: 130.000Đ – 145.000Đ/m2
- Phong cách thiết kế cổ điển: 155.000Đ – 170.000Đ/m2

Chi phí thi công biệt thự chữ L bao gồm hạng mục:
- Thi công phần thô: 3.500.000 – 3.800.000Đ/m2
- Thi công hoàn thiện (chìa khóa trao tay): 5.800.000- 7.000.000Đ/m2
Chú ý: Chi phí xây dựng biệt thự chữ L sẽ phụ thuộc vào phong cách thiết kế, vật tư xây dựng, địa điểm, thời gian,… nên mỗi công trình sẽ có mức đầu tư khác nhau. Do đó, để có báo giá cụ thể và chính xác dựa trên những yếu tố trên hãy liên hệ cho NEOHouse qua hotline: 0937.100.202, mọi tư vấn và báo giá đều hoàn toàn miễn phí!
Những lưu ý khi thiết kế và thi công biệt thự chữ L
Để sở hữu một căn biệt thự chữ L đẹp, ấn tượng và chuẩn phong thủy cũng như tối ưu chi phí xây dựng, chủ đầu tư cần lưu ý một số yếu tố như sau:
Dự trù chi phí xây dựng
Việc dự trù ngân sách xây dựng biệt thự chữ L đóng vai trò quan trọng trong quá trình thi công, nó quyết định đến quy mô, phong cách, mức độ sang trọng của ngôi nhà. Chính vì vậy, chủ đầu tư cần chủ động dự trù tài chính, có kế hoạch rõ ràng và cụ thể để có được phương án tài chính phù hợp, chủ động hơn về ngân sách để tiết kiệm chi phí và thời gian thi công, tránh phát sinh và các rủi ro không đáng có.
Thông thường, các khoản chi phí xây dựng biệt thự bao gồm: chi phí thiết kế, chi phí thi công phần thô, chi phí hoàn thiện kiến trúc và hoàn thiện nội thất,… chủ đầu tư cần trao đổi cụ thể và rõ ràng với kiến trúc sư, đơn vị xây dựng để có giải pháp phù hợp nhất.

Lựa chọn phong cách thiết kế
Kiến trúc biệt thự chữ L hiện nay có thể được thiết kế theo nhiều phong cách kiến trúc khác nhau như cổ điển, tân cổ điển, hiện đại, phong cách châu Âu hay kiểu Pháp. Mỗi phong cách đều sở hữu những đặc trưng riêng về hình khối, đường nét và chi tiết trang trí cũng như chi phí đầu tư, qua đó thể hiện gu thẩm mỹ cũng như cá tính và vị thế của gia chủ. Việc lựa chọn phong cách kiến trúc phù hợp với hình dáng chữ L không chỉ giúp công trình đạt hiệu quả thẩm mỹ cao mà còn góp phần tối ưu công năng sử dụng và tạo nên không gian sống hài hòa, cân đối.

Quy mô và công năng biệt thự chữ L
Khi thiết kế biệt thự chữ L, gia chủ cần xác định rõ số lượng thành viên cũng như nhu cầu sinh hoạt thực tế của gia đình để từ đó tính toán số lượng phòng và phương án bố trí công năng hợp lý. Việc tổ chức không gian khoa học sẽ giúp đảm bảo sự thoải mái, tiện nghi và thuận tiện trong quá trình sử dụng hằng ngày của gia đình.

Bên cạnh các không gian chức năng chính như phòng khách, bếp và phòng ngủ, gia chủ cũng nên cân nhắc bố trí thêm các khu vực hành lang, giao thông nội bộ và các không gian thư giãn, giải trí như phòng karaoke, phòng tập gym, phòng xông hơi,… từ đó, nâng cao chất lượng sống và đáp ứng nhu cầu sinh hoạt đa dạng của gia đình.
Tham khảo các công trình thực tế
Việc tham khảo những công trình biệt thự chữ L đã hoàn thiện thực tế sẽ giúp chủ nhà có được những đánh giá chân thực, khách quan về chi phí xây dựng, tiến độ thi công cũng như các thuận lợi và khó khăn trong quá trình thi công,… Dựa trên những thông tin thu thập được, chủ đầu tư sẽ lên kế hoạch xây dựng cho tổ ấm của mình được tốt nhất từ việc rút kết kinh nghiệm và sai sót của các công trình trước đó.

Vật liệu hoàn thiện
Việc lựa chọn vật liệu hoàn thiện có vai trò quan trọng trong việc tô điểm vẻ đẹp thẩm mỹ, diện mạo của ngôi nhà, và đây là giai đoạn chiếm chi phí khá lớn. Do đó, chủ đầu tư hãy tham khảo các vật liệu hoàn thiện từ lát sàn, ốp tường, trần thạch cao, sơn tường, thiết bị vệ sinh,… với sự đa dạng về mẫu mã, thương hiệu, kiểu dáng, chất lượng và giá thành, chủ nhà có thể dựa trên mức đầu tư và mong muốn cá nhân mà lựa chọn sao cho phù hợp nhất.

Biệt thự chữ L yêu cầu năng lực chuyên môn và kinh nghiệm
Như đã đề cập trong bài viết, biệt thự chữ L tựa như chiếc dao, không tốt về mặt phong thủy nên đòi hỏi kiến trúc sư thiết kế phải có năng lực chuyên môn cao, giàu kinh nghiệm và sáng tạo, am hiểu về phong thủy để hóa giải những điềm xấu qua các bố trí, sắp xếp bố cục công năng, trang trí nội – ngoại thất phù hợp.
Các kiến trúc dựa trên vào đặc điểm của từng khu đất để xác định điểm khuyết góc và các vấn đề liên quan đến yếu tố phong thủy cùng cung mệnh của chủ nhà để đưa ra giải pháp tốt nhất cho gia đình.

Nên chọn dịch vụ tư vấn phong thủy kết hợp đơn vị xây dựng
Để sở hữu một căn biệt thự chữ L đẹp, sang trọng, tiện nghi và công năng sử dụng tối ưu, đặc biệt là chuẩn phong thủy thì chủ đầu tư nên ưu tiên lựa chọn dịch vụ tư vấn phong thủy kết hợp với đơn vị nhà thầu để có phương án tốt nhất cho công trình trong tương lai của gia đình mình.
Chuyên gia phong thủy sẽ xem xét và đánh giá các vấn đề về phong thủy của từng căn biệt thự, từ đó kết hợp với kiến trúc sư để có phương án thiết kế khoa học nhất, hóa giải các điềm xấu của phong thủy nhằm mang đến những năng lượng, sinh khí tốt và may mắn, tài lộc cho chủ đầu tư nhưng vẫn đảm bảo tính thẩm mỹ, công năng sử dụng tối ưu, đáp ứng các nhu cầu sử dụng của gia đình.

Cùng với đó, chủ đầu tư kết hợp cùng nhà thầu xây dựng để có kiến trúc sư thiết kế và kỹ sư xây dựng thống nhất về ý tưởng và phương án của bản vẽ thiết kế, thi công chính xác và nhanh chóng. Chủ nhà cũng dễ dàng kiểm soát được chi phí, tiến độ thi công và chất lượng của công trình.
NEOHouse – Công ty thiết kế thi công biệt thự chữ L chuẩn phong thủy
NEOHouse là một trong những đơn vị hàng đầu trong lĩnh vực thiết kế, thi công biệt thự tại Việt Nam, sở hữu đội ngũ kiến trúc sư và kỹ sư có chuyên môn cao, giàu kinh nghiệm. Trải qua hơn 200+ dự án thực tế, NEOHouse đã mang đến những công trình biệt thự chữ L được chủ đầu tư đánh giá cao về tính thẩm mỹ, công năng sử dụng và chất lượng thi công cũng như tối ưu ngân sách phù hợp. Với phương châm “Độc đáo trong thiết kế – Chất lượng trong thi công”, NEOHouse luôn nỗ lực đem đến cho khách hàng những giải pháp kiến trúc tối ưu và phù hợp nhất.

Với mỗi công trình biệt thự chữ L, NEOHouse luôn khảo sát kỹ lưỡng đặc điểm địa hình, hình dáng khu đất, đồng thời lắng nghe mong muốn, nhu cầu và sở thích của gia chủ để đưa ra phương án thiết kế phù hợp phong thủy, công năng khoa học và tính thẩm mỹ hài hòa. Mỗi thiết kế đều được nghiên cứu kỹ để kiến tạo nên một không gian sống tiện nghi, thoải mái và mang dấu ấn riêng của từng gia đình.
Bên cạnh đó, hồ sơ thiết kế và thi công do NEOHouse triển khai luôn được thể hiện chi tiết, rõ ràng, đi kèm bảng dự toán kinh phí cụ thể cho từng hạng mục và giai đoạn thi công. Điều này giúp gia chủ dễ dàng chủ động ngân sách, tối ưu chi phí vật liệu, nhân công cũng như kiểm soát tiến độ thi công, đảm bảo chất lượng và thẩm mỹ cho toàn bộ công trình.
Quy trình thiết kế biệt thự chữ L chuyên nghiệp tại NEOHouse
Theo đó, quy trình thiết kế biệt thự chữ L tại NEOHouse chuẩn hóa theo từng bước rõ ràng và khoa học, cụ thể như sau:
Bước 1: Tiếp nhận nhu cầu và tư vấn ban đầu
Kiến trúc sư NEOHouse tiếp nhận đầy đủ thông tin từ gia chủ như nhu cầu sử dụng, số lượng phòng, phong cách kiến trúc mong muốn, ngân sách đầu tư, diện tích khu đất cũng như các yêu cầu riêng biệt khác. Dựa trên những thông tin này, kiến trúc sư sẽ tư vấn sơ bộ các giải pháp thiết kế phù hợp và giải đáp các thắc mắc để gia chủ có định hướng rõ ràng ngay từ đầu.
Bước 2: Ký hợp đồng thiết kế và khảo sát hiện trạng
Sau khi thống nhất phương án làm việc, hai bên tiến hành ký kết hợp đồng thiết kế. Đội ngũ kiến trúc sư và kỹ sư sẽ trực tiếp khảo sát hiện trạng khu đất, đo đạc kích thước, đánh giá địa hình, hướng nắng – gió và các yếu tố ảnh hưởng đến quá trình thiết kế biệt thự chữ L.

Bước 3: Triển khai phương án thiết kế sơ bộ
Kiến trúc sư tiến hành bố trí mặt bằng công năng các tầng, sắp xếp phòng ốc, giao thông, cầu thang và khu vực phụ trợ theo nhu cầu sử dụng thực tế. Song song đó, phối cảnh 3D ngoại thất được dựng chi tiết giúp gia chủ dễ dàng hình dung tổng thể kiến trúc, hình khối và phong cách của biệt thự chữ L.
Bước 4: Triển khai hồ sơ kỹ thuật thi công
Công ty NEOHouse triển khai hồ sơ thiết kế kỹ thuật đầy đủ bao gồm kiến trúc, kết cấu và hệ thống điện nước. Mỗi hạng mục đều được thực hiện bởi kiến trúc sư và kỹ sư chuyên môn, đảm bảo độ chính xác cao và phù hợp với điều kiện thi công thực tế. Đồng thời, NEOHouse hỗ trợ hồ sơ xin cấp phép xây dựng khi khách hàng có nhu cầu.
Bước 5: Bàn giao hồ sơ thiết kế kiến trúc
Toàn bộ hồ sơ được kiểm duyệt kỹ lưỡng, đối chiếu và khớp nối giữa các bộ môn kiến trúc – kết cấu – điện nước trước khi bàn giao. Quy trình kiểm tra nhiều lớp giúp đảm bảo an toàn, chất lượng và hạn chế tối đa sai sót trong quá trình thi công.

Bước 6: Triển khai thiết kế nội thất
Sau khi hoàn thiện hồ sơ kiến trúc, NEOHouse tiếp tục triển khai thiết kế nội thất. Kiến trúc sư tiếp nhận yêu cầu về mức đầu tư, phong cách yêu thích và nhu cầu sử dụng chi tiết của gia chủ. Trên cơ sở đó, phương án thiết kế nội thất được tư vấn, điều chỉnh và thể hiện bằng phối cảnh 3D, bắt đầu từ không gian chính như phòng khách – bếp, sau đó triển khai đồng bộ cho toàn bộ các khu vực còn lại.
Bước 7: Bàn giao hồ sơ thiết kế nội thất
Hồ sơ nội thất được kiểm duyệt kỹ lưỡng và khớp nối đồng bộ với hồ sơ kiến trúc nhằm đảm bảo tính thống nhất trong quá trình thi công. Toàn bộ bản vẽ được hoàn thiện với độ chi tiết cao, đáp ứng yêu cầu thẩm mỹ và công năng sử dụng lâu dài.
Bảng báo giá thiết kế biệt thự chữ L tại NEOHouse
Chi phí thiết kế biệt thự chữ L luôn nhận được sự quan tâm hàng đầu của các chủ đầu tư khi có nhu cầu xây dựng. Việc dự tính ngân sách đầu tư ngay từ đầu không chỉ giúp chủ đầu tư chủ động trong việc chuẩn bị tài chính mà còn đảm bảo các yếu tố về thẩm mỹ, công năng sử dụng của ngôi nhà. Chính vì thế, dưới đây là bảng báo giá thiết kế biệt thự được NEOHouse chia sẻ gửi đến quý khách cùng tham khảo!
| STT | Phong cách kiến trúc | Đơn giá (VNĐ/m2) |
|---|---|---|
| 1 | Phong cách hiện đại | 85.000 – 105.000 |
| 2 | Phong cách tân cổ điển | 125.000 – 140.000 |
| 3 | Phong cách cổ điển | 150.000 – 165.000 |
Như vậy, chi phí thiết kế biệt thự chữ L sẽ phụ thuộc vào phong cách kiến trúc mà gia chủ lựa chọn, mỗi một phong cách sẽ có mức giá khác nhau, tùy theo độ phức tạp và mức độ đầu tư của gia đình. Do đó, chi phí trên chỉ mang tính chất tham khảo và con số chưa chính xác hoàn toàn. Chính vì vậy, để có báo giá chi tiết. chính xác nhất và hoàn toàn miễn phí hãy liên hệ cho NEOHouse qua thông tin:
- NEOHOUSE – HCM
Đ/c: 8B, Bàu Cát 8, P. 11, Q. Tân Bình, TP. Hồ Chí Minh.
Tel: 0906 100 202 - NEOHOUSE – ĐÀ NẴNG
Đ/c: 63 Phan Đăng Lưu, Q. Hải Châu, Tp. Đà Nẵng
Tel: 0903 544 641 - LH Đối tác: neohousedoitac@gmail.com
- LH Tư vấn khách hàng: tuvan.neohouse@gmail.com
Bên cạnh chi phí thiết kế thì tiến độ hoàn thiện và chi tiết full hồ sơ thiết kế biệt thự chữ L cũng được rất nhiều gia chủ quan tâm và liên hệ cho NEOHouse, cụ thể:
- Lên phương án bố trí mặt bằng công năng: 2 – 3 ngày
- Phối cảnh 3D ngoại thất: 5 – 6 ngày
- Phối cảnh 3D nội thất: 10 – 15 ngày
- Hồ sơ thiết kế kiến trúc: 20 ngày trở lại
- Hồ sơ thiết kế nội thất: 20 – 30 ngày

Chi tiết full hồ sơ kỹ thuật theo tiêu chuẩn thi công biệt thự sẽ được bàn giao cho gia chủ bao gồm như sau:
- Hồ sơ xin cấp phép xây dựng (nếu chủ đầu tư có yêu cầu)
- Hồ sơ bản vẽ thiết kế kiến trúc
- Hồ sơ bản vẽ thiết kế kết cấu
- Hồ sơ bản vẽ hệ thống điện
- Hồ sơ bản vẽ cấp – thoát nước
- Hồ sơ bản vẽ thiết kế nội thất (áp dụng với gói thiết kế nội thất hoặc thiết kế trọn gói)
- Hồ sơ bản vẽ thiết kế sân vườn – cảnh quan
Cam kết của NEOHouse đối với khách hàng
Cam kết về thiết kế:
Công ty NEOHouse cam kết mang đến cho khách hàng những giải pháp thiết kế chất lượng, đáp ứng đầy đủ nhu cầu sử dụng và giá trị thẩm mỹ:
- Tối ưu không gian sử dụng, bố trí công năng khoa học, phù hợp với đặc điểm từng công trình.
- Thiết kế cá nhân hóa theo nhu cầu, sở thích, ngân sách và phong cách sống của từng gia chủ.
- Đảm bảo tiến độ thiết kế đúng cam kết, tuân thủ các tiêu chuẩn kỹ thuật và quy định xây dựng.
- Đội ngũ kiến trúc sư, kỹ sư có chuyên môn cao, nhiều năm kinh nghiệm trong lĩnh vực thiết kế biệt thự.
- Hỗ trợ chỉnh sửa phương án thiết kế đến khi khách hàng hài lòng.

Cam kết về thi công xây dựng:
NEOHouse cam kết đảm bảo chất lượng thi công và hiệu quả sử dụng cho mỗi công trình:
- Hỗ trợ tư vấn và thực hiện các thủ tục pháp lý liên quan như xin giấy phép xây dựng, hoàn công theo quy định.
- Sử dụng vật tư, vật liệu đúng chủng loại, nguồn gốc rõ ràng, thi công đúng theo hồ sơ thiết kế và báo giá đã thống nhất.
- Đảm bảo tiến độ thi công theo kế hoạch, hạn chế tối đa phát sinh không cần thiết.
- Có kỹ sư giám sát trực tiếp tại công trình, thường xuyên kiểm tra và báo cáo tiến độ, chất lượng thi công.
- Thực hiện chính sách bảo hành công trình rõ ràng, minh bạch sau khi bàn giao.
- Miễn phí 100% chi phí thiết kế khi chọn dịch vụ xây nhà trọn gói

Cam kết đồng hành và hậu mãi:
Ngoài thiết kế và thi công, NEOHouse còn chú trọng đến trải nghiệm và quyền lợi lâu dài của khách hàng:
- Tư vấn tận tâm, minh bạch thông tin trong suốt quá trình làm việc.
- Hỗ trợ điều chỉnh phương án thi công phù hợp với thực tế sử dụng và ngân sách của gia chủ.
- Đồng hành cùng khách hàng trong suốt quá trình sử dụng công trình, kịp thời hỗ trợ khi có phát sinh kỹ thuật.

Như vậy, bài viết trên đã chia sẻ tất cả các thông tin về biệt thự chữ L cũng như những mẫu thiết kế được ưa chuộng và phổ biến nhất hiện nay. Hy vọng từ những chia sẻ trên sẽ giúp mọi người tìm được ý tưởng và phương án thiết kế biệt thự chữ L phù hợp cho gia đình mình. Và cũng đừng quên, nếu cần hỗ trợ tư và báo giá miễn phí hãy liên hệ cho NEOHouse qua số điện thoại/zalo: 0937.100.202.