Mẫu Nhà Phố 3 Tầng Mặt Tiền 6m Tân Cổ Điển Tại Đà Nẵng -NP88

Thiết Kế Nhà Phố / Nhà Phố 3 Tầng

nha pho 3 tang mat tien 6m
  • Chủ đầu tưChị Lan
  • Địa điểmĐà Nẵng
  • Diện tích6x15m2
  • Quy mô dự ánNhà phố 3 tầng
  • Nhóm thiết kếNEOHouse
  • Năm thiết kế2025
  • Mã dự ánNP88
  • “Neohouseへようこそ—Welcome to NEOhouse”

Trong bối cảnh đô thị ngày càng chật hẹp, những mẫu nhà phố 3 tầng mặt tiền 6m nổi lên như một lựa chọn tối ưu cho nhiều gia đình hiện đại. Không chỉ sở hữu thiết kế trẻ trung, tinh tế, kiểu nhà này còn được đánh giá cao nhờ khả năng phân chia không gian khoa học, đáp ứng đầy đủ nhu cầu sinh hoạt và nghỉ ngơi. Sự kết hợp giữa công năng tiện nghi và phong cách kiến trúc tân cổ điển vừa đảm bảo thẩm mỹ vừa phù hợp với lối sống năng động hiện nay. Trong bài viết này, hãy cùng NEOHouse khám phá ý tưởng thiết kế nổi bật của mẫu nhà 3 phố tầng mặt tiền 6m để tìm ra giải pháp phù hợp nhất cho tổ ấm của bạn.

Yêu cầu thiết kế nhà phố 3 tầng mặt tiền 6m đẹp, đầy đủ công năng

Với diện tích đất 6x15m, chị Lan mong muốn sở hữu một ngôi nhà phố 3 tầng mang phong cách tân cổ điển. Phong cách này là sự kết hợp giữa nét cổ kính sang trọng và sự nhẹ nhàng tinh tế của hiện đại. Ngôi nhà được sử dụng các vật liệu như đá ốp tường Marble và cửa nhôm kính Xingfa không chỉ đảm bảo tính bền vững mà còn tôn lên nét thẩm mỹ tinh tế. Ngoài ra, nhờ việc sử dụng nhiều cửa kính lớn giúp ngôi nhà đón được ánh sáng tự nhiên vào ngôi nhà, giúp không gian trở nên thông thoáng hơn.

Chị Lan mong muốn ngôi nhà được thiết kế với công năng tối ưu nhất, nhằm đảm bảo đáp ứng tốt nhu cầu sinh hoạt của gia đình. Bao gồm: 5 phòng ngủ,1 phòng khách, 1 khu bếp, mang đến không gian sinh hoạt chung tiện lợi. Ngoài ra, gia chủ mong muốn bố trí thêm 1 khu vực giải trí và 1 phòng tập thể dục trên sân thượng để phục vụ nhu cầu thư giãn và rèn luyện sức khỏe hàng ngày.

Khám phá ý tưởng thiết kế nhà phố 3 tầng mặt tiền 6m

Sau quá trình tìm hiểu và lắng nghe nhu cầu mong muốn thiết kế của khách hàng, các KTS của NEOHouse đã tiến hành lên ý tưởng và triển khai phương án thiết kế phù hợp. Mẫu nhà này là sự kết hợp hài hòa giữa vẻ đẹp kiến trúc và công năng sử dụng tối ưu, phù hợp với yêu cầu của gia chủ. Các khoảng không gian mở được bố trí hợp lý, giúp ngôi nhà luôn trở nên rộng rãi và thông thoáng hơn. 

Nhìn từ xa, tổng thể mặt tiền ngôi nhà phố 3 tầng mặt tiền 6m gây ấn tượng với thiết kế theo dáng chữ L ấn tượng, tạo nên sự khác biệt so với những mẫu nhà mặt tiền thông thường. Khối nhà chính vươn dài ra phía trước thể hiện vẻ đẹp bề thế, trong khi khối thấp phía trong tạo sự hài hòa và cân đối cho tổng thể kiến trúc.

Mặt tiền tầng trệt gây ấn tượng với mảng tường ốp đá Marble cao cấp, kết hợp cùng hệ cửa nhôm kính Xingfa tinh tế, làm nổi bật vẻ tinh xảo và hiện đại của công trình. Những đường vân đá tạo nên một diện mạo tinh tế, hài hòa và toát lên sự thanh lịch. Lan can ban công bằng sắt nghệ thuật hoa văn mạ vàng sắc sảo, kết hợp cùng mái lam che nắng ở tầng thượng và cây xanh trang trí, mang đến một tổng thể kiến trúc cân đối và cuốn hút hơn.

Dọc theo lối vào sân, những bồn hoa được sắp đặt khéo léo, tạo thành một hàng xanh mát dẫn lối vào ngôi nhà. Sự kết hợp của nhiều loại cây và hoa đủ màu sắc không chỉ làm mềm mại phần kiến trúc vuông vức mà còn mang lại cảm giác gần gũi, thư thái cho gia chủ và khách ghé thăm.

Giải pháp bố trí mặt bằng khoa học cho nhà phố 3 tầng mặt tiền 6m

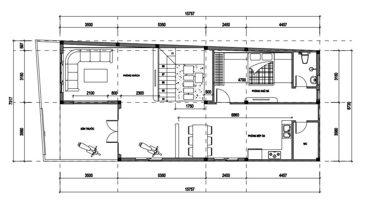
Ngôi nhà có khoảng sân trước rộng rãi, phù hợp để đỗ xe hoặc các buổi tiệc ăn uống bên ngoài. Bước vào ngôi nhà là khu vực phòng khách được bố trí ngay gần lối vào, tạo thuận tiện cho việc tiếp đón khách cũng như sinh hoạt gia đình. Khu vực bếp và phòng ăn thiết kế mở, tạo ra một không gian rộng rãi mang đến sự kết nối thoải mái cho các thành viên.

Đặc biệt, tầng trệt còn có một phòng ngủ riêng dành cho ông bà, đảm bảo sự yên tĩnh và thuận tiện trong sinh hoạt, hạn chế việc di chuyển lên xuống cầu thang. Đi kèm là một nhà vệ sinh nhỏ gọn gần bếp, giúp không gian trở nên đầy đủ và tiện nghi hơn.

Lầu 1 được thiết kế như không gian riêng tư cho các thành viên trong gia đình. Ngay khi bước lên cầu thang là khu sinh hoạt chung, nơi cả nhà có thể đọc sách, làm việc hoặc trò chuyện. Lầu được bố trí 3 phòng ngủ bao gồm: 1 phòng ngủ Master và 2 phòng ngủ tiện nghi. Trong đó phòng Master rộng rãi sở hữu ban công riêng, mang lại tầm nhìn thoáng đãng và bầu không khí trong lành. Mỗi phòng đều được thiết kế hợp lý, đảm bảo sự thoải mái và yên tĩnh.

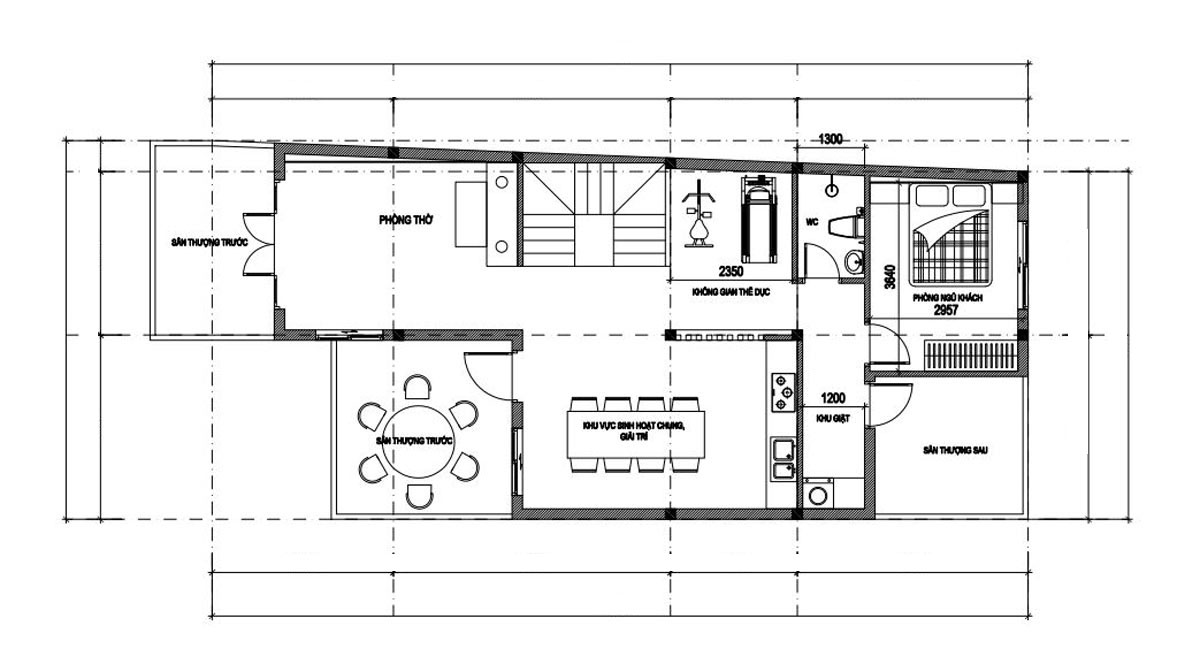
Lầu 2 được bố trí đa năng, vừa đáp ứng nhu cầu tinh thần vừa phục vụ cho các hoạt động thể chất của gia đình. Không gian phòng thờ được đặt ở vị trí trang trọng, yên tĩnh, thể hiện sự tôn kính với truyền thống và tổ tiên. Bên cạnh đó là một khu sinh hoạt chung thoải mái, nơi cả nhà có thể thư giãn hoặc trò chuyện riêng tư. Ngoài ra, lầu này còn có một phòng ngủ dành cho khách, đảm bảo sự tiện nghi và thoải mái khi có bạn bè hay người thân ghé thăm. Đặc biệt, khu vực phòng gym để các thành viên có thể tập luyện và rèn luyện sức khỏe. 

Kết luận: 

Mẫu nhà phố 3 tầng mặt tiền 6m do NEOHouse thiết kế không chỉ đáp ứng trọn vẹn công năng với 5 phòng ngủ và không gian sinh hoạt đa dạng, mà còn gây ấn tượng bởi kiến trúc sang trọng và cảnh quan gần gũi thiên nhiên. Đây chính là giải pháp hoàn hảo cho gia đình trẻ tại đô thị muốn kết hợp tiện nghi và phong cách sống đẳng cấp. Nếu bạn yêu thích mẫu thiết kế này, hãy liên hệ với NEOHouse để được tư vấn cụ thể, phù hợp với nhu cầu và mong muốn của bạn nhất.

Trả lời