Bản vẽ thiết kế điện nhà biệt thự là một trong những hạng mục quan trọng trong quá trình xây dựng, ảnh hưởng trực tiếp đến sự tiện nghi, an toàn và thẩm mỹ của công trình. Thực tế cho thấy, nhiều bất tiện trong quá trình sử dụng như ổ cắm bố trí chưa hợp lý, thiếu điểm cấp điện hoặc khó khăn khi nghiệm thu thường xuất phát từ việc thiếu hoặc chưa hiểu rõ bản vẽ thiết kế điện. Đối với những công trình có quy mô lớn và nhiều thiết bị điện, bản vẽ điện đóng vai trò như “kim chỉ nam” cho cả thi công và giám sát. Bài viết dưới đây, NEOHouse JSC sẽ giúp bạn nắm rõ các nội dung cần biết về bản vẽ thiết kế điện nhà biệt thự trước khi bắt đầu xây dựng.
Vì sao bản vẽ thiết kế điện nhà biệt thự lại quan trọng?
Trong quá trình thiết kế và thi công biệt thự, hệ thống điện là hạng mục kỹ thuật có ảnh hưởng trực tiếp đến mức độ an toàn, tiện nghi và chi phí vận hành của ngôi nhà. Tuy nhiên, nhiều gia chủ chỉ quan tâm đến kiến trúc và nội thất mà chưa thực sự chú trọng đến bản vẽ thiết kế điện. Trên thực tế, một bộ bản vẽ thiết kế điện nhà biệt thự bài bản chính là nền tảng để hệ thống điện vận hành ổn định, dễ thi công và dễ kiểm soát trong suốt quá trình sử dụng.

Đảm bảo an toàn điện cho công trình có quy mô và công suất lớn
Thông thường, những căn biệt thự thường sử dụng nhiều thiết bị điện công suất cao như điều hòa trung tâm, bình nóng lạnh, thang máy hay hệ thống smarthome. Nếu không có bản vẽ thiết kế điện bài bản, việc phân bổ nguồn điện rất dễ bị sai, dẫn đến quá tải hoặc rò điện trong quá trình sử dụng. Bản vẽ thiết kế điện nhà biệt thự thể hiện rõ sơ đồ nguyên lý hệ thống điện, tức là cách dòng điện được cấp từ nguồn chính, qua tủ điện tổng rồi phân phối đến từng khu vực. Nhờ đó, hệ thống điện vận hành ổn định và đảm bảo an toàn lâu dài cho công trình.

Giúp thi công chính xác, hạn chế đục phá và sửa chữa về sau
Bản vẽ thiết kế điện nhà biệt thự xác định rõ vị trí ổ cắm, công tắc, đèn chiếu sáng và đường dây âm tường ngay từ giai đoạn thiết kế biệt thự. Khi thi công đúng theo bản vẽ, thợ điện sẽ lắp đặt chính xác theo cao độ và công năng sử dụng của từng không gian. Điều này giúp tránh tình trạng thiếu ổ cắm, đặt sai vị trí buộc phải đục phá tường sau khi đã hoàn thiện. Điều này đặc biệt quan trọng để giữ trọn vẻ đẹp và chất lượng của dự án. Ngoài ra, còn tiết kiệm cho gia chủ hạn chế chi phí phát sinh cũng như gây mất thời gian.

Tối ưu chi phí đầu tư nhờ tính toán đúng kỹ thuật điện
Trong bản vẽ điện, kỹ sư sẽ tính toán tiết diện dây dẫn và phân tải điện cho từng khu vực trong nhà. Hiểu đơn giản, đây là việc chọn độ dày dây điện phù hợp và chia các thiết bị vào những đường điện riêng để tránh quá tải hoặc lãng phí vật tư. Nếu thiết kế không chuẩn, hệ thống điện có thể nhanh xuống cấp hoặc phải thay thế sớm. Ngược lại, bản vẽ thiết kế điện nhà biệt thự chi tiết giúp gia chủ tối ưu chi phí thi công và tiết kiệm chi phí vận hành về lâu dài.

Là cơ sở để gia chủ kiểm tra, giám sát và nghiệm thu
Bản vẽ thiết kế điện không chỉ dành cho kỹ sư hay thợ điện mà còn rất cần thiết đối với gia chủ. Dựa vào bản vẽ, gia chủ có thể kiểm tra xem các đường điện, ổ cắm và thiết bị bảo vệ có được lắp đặt đúng thiết kế hay không. Khi nghiệm thu, bản vẽ thiết kế điện nhà biệt thự giúp đối chiếu rõ ràng từng hạng mục, hạn chế tình trạng làm thiếu hoặc làm sai kỹ thuật. Đây là cơ sở quan trọng để gia chủ bảo vệ quyền lợi trong quá trình thi công.

Đảm bảo sự đồng bộ với kiến trúc và các hệ thống kỹ thuật khác
Thiết kế điện nhà biệt thự luôn cần phối hợp chặt chẽ với kiến trúc, nội thất và hệ thống cấp thoát nước. Bản vẽ thiết kế điện nhà biệt thự giúp bố trí thiết bị chiếu sáng, ổ cắm và đường dây sao cho không ảnh hưởng đến thẩm mỹ không gian sống. Đồng thời, các hệ thống như điện nhẹ, camera an ninh, internet hay smarthome cũng được tích hợp đồng bộ ngay từ đầu. Nhờ đó, ngôi nhà vận hành khoa học, tiện nghi và dễ dàng nâng cấp trong tương lai.

Bản vẽ thiết kế điện nhà biệt thự gồm những gì?
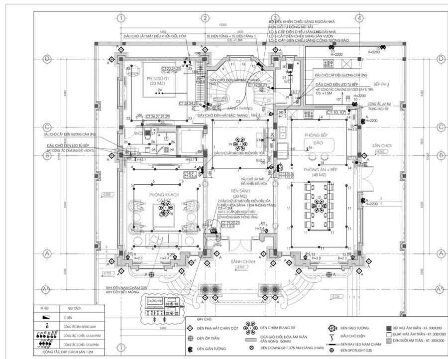
Bản vẽ thiết kế điện nhà biệt thự bao gồm nhiều hạng mục kỹ thuật khác nhau, phản ánh toàn bộ cách hệ thống điện được tổ chức và vận hành trong công trình. Mỗi hạng mục đảm nhiệm một vai trò riêng, từ cấp nguồn, phân phối điện cho đến đảm bảo an toàn và tiện nghi khi sử dụng. Khi được thiết kế đầy đủ và đồng bộ, bản vẽ thiết kế điện nhà biệt thự sẽ giúp thi công chính xác, vận hành ổn định hơn.
Sơ đồ nguyên lý hệ thống điện tổng thể
Sơ đồ nguyên lý thể hiện cách nguồn điện được cấp vào công trình, đi qua tủ điện tổng và phân phối đến từng khu vực sử dụng. Thông qua sơ đồ này, kỹ sư xác định phương án phân tải điện, tức là chia tải cho các nhánh điện khác nhau để tránh quá tải. Nhìn vào sơ đồ nguyên lý, có thể hình dung được toàn bộ “dòng chảy” của điện trong ngôi nhà. Đây là cơ sở quan trọng để đảm bảo hệ thống điện vận hành an toàn và ổn định.

Mặt bằng bố trí chiếu sáng, ổ cắm, công tắc từng tầng
Mặt bằng bố trí thể hiện vị trí đèn, ổ cắm và công tắc tại từng vị trí của biệt thự. Chính vì thế, quá trình thi công sẽ được thực hiện dễ dàng và chính xác hơn. Ngoài ra, thông qua đó gia chủ có thể kiểm tra, tránh tình trạng sai sót hoặc thiếu sót khi hoàn thiện. Gây ra khó khăn khi sửa chữa, tốn chi phí và mất thẩm mỹ cho ngôi nhà.

Sơ đồ cấp điện thiết bị lớn
Đối với những căn biệt thự, thường sẽ sử dụng rất nhiều thiết bị điện có công suất lớn chẳng hạn như điều hòa, thang máy hay hệ thống nóng lạnh,… Sơ đồ cấp điện thiết bị lớn sẽ giúp phân bổ nguồn điện riêng cho các hệ thống một cách phù hợp. Do đó, làm cho các hệ thống này vận hành ổn định, không sụt áp và tăng độ bền khi sử dụng lâu dài.
Hệ thống tiếp địa & chống sét
Hệ thống tiếp địa và chống sét được thể hiện thông qua vị trí cọc tiếp địa, dây dẫn và phương án chống sét cho công trình. Tiếp địa có nhiệm vụ dẫn dòng điện rò xuống đất khi xảy ra sự cố, từ đó giảm nguy cơ giật điện cho gia đình. Trong khi đó, chống sét giúp bảo vệ công trình trước tác động của sét đánh trực tiếp hoặc lan truyền. Đặc biệt là những ngôi nhà biệt thự cao tầng hoặc có diện tích mái lớn, hạng mục này đặc biệt quan trọng.

Hệ thống điện nhẹ
Hệ thống điện nhẹ bao gồm các hạng mục như internet, camera, truyền hình, chuông cửa hay smarthome tuy nhỏ nhưng cũng cần được tính toán kỹ lưỡng. Bản vẽ này sẽ thể hiện cách đi dây, vị trí của từng thiết bị một cách chính xác. Từ đó, hạn chế tình trạng chồng chéo dây dẫn và hạn chế đục phá, chỉnh sửa sau khi hoàn thiện. Khiến gia chủ tốn thời gian, tài chính và gây mất thẩm mỹ.

Thống kê vật tư – bảng bố trí – chi tiết lắp đặt
Phần thống kê vật tư liệt kê đầy đủ chủng loại dây dẫn, ống luồn, thiết bị điện và số lượng sử dụng trong công trình. Bảng bố trí và chi tiết lắp đặt hỗ trợ nhà thầu thi công đúng chủng loại, đúng vị trí và đúng kỹ thuật. Đối với gia chủ, đây là căn cứ quan trọng để kiểm soát vật tư và hạn chế phát sinh chi phí ngoài dự toán. Một bộ bản vẽ thiết kế điện nhà biệt thự biệt thự đầy đủ luôn đi kèm hệ thống thống kê rõ ràng và minh bạch.

Các tiêu chuẩn kỹ thuật cần tuân thủ khi thiết kế điện biệt thự
Thiết kế điện biệt thự cần tuân theo các tiêu chuẩn kỹ thuật nhằm đảm bảo an toàn, khả năng vận hành ổn định và thuận tiện cho quá trình sử dụng lâu dài. Những tiêu chuẩn này chi phối cách bố trí chiếu sáng, ổ cắm, phân tải điện và lựa chọn vật tư trong bản vẽ. Khi nắm được các nguyên tắc cơ bản, gia chủ sẽ dễ hiểu bản vẽ thiết kế điện nhà biệt thự hơn và chủ động hơn trong việc kiểm tra, giám sát thi công. Đây là nền tảng quan trọng trước khi đi vào cách đọc chi tiết từng loại bản vẽ thiết kế điện nhà biệt thự.
Cách hiểu bản vẽ thiết kế điện nhà biệt thự dành cho gia chủ
Bản vẽ thiết kế điện thường chứa nhiều thông tin kỹ thuật, tuy nhiên gia chủ không cần hiểu toàn bộ chi tiết chuyên môn. Trên thực tế, chỉ cần nắm được một số nội dung cốt lõi, gia chủ đã có thể theo dõi thi công, kiểm tra tính hợp lý của thiết kế và chủ động hơn khi nghiệm thu. Những nội dung quan trọng mà gia chủ nên quan tâm khi xem bản vẽ thiết kế điện nhà biệt thự bao gồm:
- Vị trí bố trí đèn, ổ cắm và công tắc trong từng không gian: Gia chủ cần kiểm tra xem các vị trí này có phù hợp với công năng sử dụng thực tế hay không, tránh tình trạng thiếu ổ cắm hoặc bố trí bất tiện khi sinh hoạt.
- Cách phân chia nguồn điện cho các khu vực và thiết bị: Bản vẽ thiết kế điện nhà biệt thự thể hiện việc phân tải giữa chiếu sáng, ổ cắm và thiết bị công suất lớn, giúp gia chủ nhận biết hệ thống có được thiết kế hợp lý và an toàn hay không.
- Các ký hiệu điện cơ bản trên bản vẽ: Hiểu các ký hiệu phổ biến như đèn, ổ cắm, công tắc, tủ điện giúp gia chủ dễ đối chiếu bản vẽ với thực tế thi công, hạn chế nhầm lẫn khi giám sát.
- Bảng thống kê vật tư và chủng loại thiết bị sử dụng: Phần này cho biết dây dẫn, thiết bị điện và số lượng được sử dụng trong công trình, là cơ sở để gia chủ kiểm soát vật tư và chi phí.
- Vị trí đặt CB, cầu dao tổng: Đây được xem là vấn đề quan trọng nhất liên quan đến cách xử lí sự cố, đảm bảo an toàn cho các thành viên trong gia đình.
Khi nắm được những nội dung trên, gia chủ có thể đọc bản vẽ thiết kế điện nhà biệt thự một cách chủ động hơn, hạn chế sai sót trong quá trình thi công và thuận lợi khi nghiệm thu hệ thống điện nhà biệt thự.

Ý nghĩa các ký hiệu trong bản vẽ điện
Trong hồ sơ thiết kế diện, các ký hiệu được sử dụng sẽ biểu diễn cho các thiết bị thay cho việc ghi chú bằng chữ. Những kí hiệu này được sử dụng dựa trên tiêu chuẩn quốc tế IEC và tiêu chuẩn Việt Nam (TCVN) nhằm thống nhất cách biểu diễn thiết bị, chức năng và đường dây trong hồ sơ kỹ thuật cũng như khi thi công thực tế. Gia chủ không cần nắm kỹ những kí hiệu chuyên môn nhưng cần phải nhận biết các ký hiệu quan trọng như đèn chiếu sáng, ổ cắm, công tắc, tủ điện hay CB, cầu dao,… Thông thường, các kí hiệu này sẽ được đính kèm qua bảng chú thích, giúp gia chủ tiện theo dõi và đối chiếu trực quan hơn. Dưới đây là bảng tổng hợp những kí hiệu phổ biến nhất:

Cách tra vật tư trong bảng thống kê
Bảng thống kê vật tư là phần tổng hợp toàn bộ dây dẫn, ống luồn và thiết bị điện sử dụng trong công trình. Gia chủ có thể dựa vào bảng này để nắm được chủng loại vật tư chính và quy mô hệ thống điện trong ngôi nhà. Khi thi công, bảng thống kê đóng vai trò làm cơ sở đối chiếu giữa thiết kế và vật tư thực tế được lắp đặt. Khi hiểu cách tra bảng vật tư giúp gia chủ kiểm soát chi phí tốt hơn và hạn chế phát sinh ngoài dự toán.

NEOHouse – Đơn vị thiết kế bản vẽ điện nhà biệt thự uy tín
Với hơn 12 năm hoạt động trong lĩnh vực thiết kế và thi công nhà phố, biệt thự trên toàn quốc, NEOHouse có được kinh nghiệm thực tế phong phú trong việc triển khai các hệ thống kỹ thuật cho công trình nhà ở cao cấp. Đặc biệt, các bản vẽ thiết kế điện biệt thự luôn được nghiên cứu kỹ lưỡng dựa trên hiện trạng công trình, nhu cầu sử dụng và định hướng lâu dài của gia chủ. Cách tiếp cận này giúp hệ thống điện vận hành ổn định, an toàn và phù hợp với từng loại hình biệt thự.
- Bám sát nhu cầu sử dụng thực tế: Mỗi hồ sơ thiết kế điện tại NEOHouse đều được xây dựng dựa trên thói quen sinh hoạt và công năng cụ thể của từng gia đình. Hệ thống chiếu sáng, ổ cắm, thiết bị công suất lớn và điện nhẹ được bố trí linh hoạt, tránh áp dụng rập khuôn theo mẫu có sẵn. Nhờ đó, bản vẽ thiết kế điện nhà biệt thự không chỉ đáp ứng yêu cầu kỹ thuật mà còn thuận tiện khi đưa vào sử dụng thực tế, hạn chế phát sinh điều chỉnh trong quá trình thi công.
- Dễ triển khai thi công: bản vẽ thiết kế điện nhà biệt thự nhà biệt thự do NEOHouse thực hiện luôn thể hiện đầy đủ mặt bằng bố trí, sơ đồ nguyên lý và bảng thống kê vật tư. Các hạng mục được trình bày rõ ràng, giúp đơn vị thi công dễ dàng triển khai đúng thiết kế đã thống nhất. Điều này góp phần hạn chế sai sót, giảm tình trạng làm thiếu hoặc làm sai trong quá trình thi công hệ thống điện.
- Giải pháp kỹ thuật đảm bảo an toàn: Trong quá trình thiết kế, NEOHouse đặc biệt chú trọng đến việc phân tải điện hợp lý, lựa chọn tiết diện dây dẫn phù hợp và bố trí thiết bị bảo vệ đúng tiêu chuẩn. Hệ thống điện được tính toán để đáp ứng nhu cầu sử dụng lâu dài, kể cả khi gia chủ có kế hoạch bổ sung thiết bị trong tương lai. Đây là yếu tố quan trọng giúp công trình vận hành ổn định và an toàn theo thời gian.
- Chi phí thiết kế minh bạch, dễ kiểm soát: NEOHouse xây dựng hồ sơ thiết kế điện với bảng thống kê vật tư và khối lượng rõ ràng ngay từ đầu. Gia chủ có thể dễ dàng nắm được phạm vi công việc và dự trù chi phí thi công tương ứng. Cách làm này giúp kiểm soát ngân sách hiệu quả và hạn chế phát sinh ngoài kế hoạch trong quá trình xây dựng biệt thự.

Những câu hỏi nên hỏi kiến trúc sư/điện khi nghiệm thu
Thiết bị điện trong nhà được bảo hành như thế nào?
Khi nghiệm thu, gia chủ nên hỏi rõ chế độ bảo hành của từng nhóm thiết bị điện như công tắc, ổ cắm, aptomat, đèn chiếu sáng hay các thiết bị smarthome. Trên thực tế, mỗi thiết bị có thể áp dụng hình thức bảo hành khác nhau: có thiết bị được bảo hành chính hãng, có thiết bị do đơn vị thi công trực tiếp chịu trách nhiệm. Việc làm rõ ngay từ đầu giúp gia chủ biết cần liên hệ với ai khi xảy ra sự cố, tránh mất thời gian và tranh cãi trong quá trình sử dụng.
Ổ cắm điện này chịu được công suất bao nhiêu? Nếu cắm thiết bị quá tải thì sẽ xảy ra điều gì?
Không phải tất cả các ổ cắm trong nhà đều có cùng khả năng chịu tải. Một số ổ cắm chỉ phù hợp cho thiết bị sinh hoạt thông thường, trong khi các thiết bị công suất lớn cần ổ cắm và đường điện riêng. Nếu sử dụng ổ cắm quá tải, dây dẫn và ổ cắm có thể bị nóng, nhanh xuống cấp, thậm chí tiềm ẩn nguy cơ chập điện hoặc cháy nổ. Hỏi rõ vấn đề này giúp gia chủ sử dụng điện đúng cách và đảm bảo an toàn lâu dài.
Các thiết bị điện trong nhà cần sử dụng như thế nào cho đúng?
Những thiết bị như aptomat, công tắc tổng, bộ điều khiển chiếu sáng hay hệ thống smarthome thường không quen thuộc với nhiều gia chủ. Nếu không được hướng dẫn cụ thể, việc sử dụng sai cách có thể gây bất tiện hoặc ảnh hưởng đến tuổi thọ thiết bị. Việc trao đổi ngay khi nghiệm thu giúp gia chủ nắm được cách vận hành cơ bản và yên tâm hơn khi bắt đầu sinh hoạt trong ngôi nhà mới.
Mỗi công tắc trong nhà đang điều khiển thiết bị hoặc khu vực nào?
Trong các công trình biệt thự, số lượng công tắc thường nhiều và có thể điều khiển nhiều nhóm đèn hoặc thiết bị khác nhau. Nếu không được giải thích rõ ràng, gia chủ rất dễ nhầm lẫn trong quá trình sử dụng hằng ngày. Việc hỏi kỹ chức năng của từng công tắc giúp sử dụng thuận tiện hơn, đồng thời phát hiện sớm các trường hợp đấu sai hoặc bố trí chưa phù hợp với nhu cầu thực tế.
Khi xảy ra sự cố điện thì nên xử lý như thế nào và cần liên hệ với ai?
Gia chủ nên nắm rõ cách xử lý ban đầu khi gặp các tình huống như mất điện cục bộ, nhảy aptomat hoặc nghi ngờ rò rỉ điện. Bên cạnh đó, cần biết rõ thông tin liên hệ của đơn vị thi công, bảo hành hoặc kỹ thuật để được hỗ trợ kịp thời khi cần thiết. Câu hỏi này giúp gia chủ chủ động hơn trong các tình huống khẩn cấp và hạn chế rủi ro về an toàn.

FAQs – Câu hỏi thường gặp về bản vẽ thiết kế điện nhà biệt thự
Vì sao biệt thự phải có bản vẽ thiết kế điện nhà biệt thự chi tiết?
Bản vẽ thiết kế điện chi tiết đóng vai trò quan trọng trong quá trình thiết kế và xây dựng biệt thự. Hồ sơ này giúp phân bổ nguồn điện chính xác theo công suất của từng thiết bị, từ chiếu sáng, ổ cắm đến các thiết bị công suất lớn. Đồng thời, bản vẽ thiết kế điện nhà biệt thự là cơ sở để thi công đúng kỹ thuật và giúp gia chủ dễ dàng giám sát, hạn chế sai sót hoặc thiếu hạng mục trong quá trình xây dựng. Do đó, hệ thống điện vận hành an toàn, ổn định và thuận tiện khi đưa vào sử dụng lâu dài.
Có thể sử dụng bản vẽ điện mẫu cho biệt thự không?
Các bản vẽ thiết kế điện nhà biệt thự sẽ được triển khai dựa trên nhu cầu, công năng sử dụng thực tế của từng gia chủ. Mỗi công trình thường có cách bố trí công năng, các thiết bị điện có công suất khác nhau vì vậy việc sử dụng bản vẽ điện mẫu là không thể cho biệt thự. Việc sử dụng bản vẽ mẫu dễ dẫn đến bố trí bất hợp lý, thiếu ổ cắm hoặc quá tải hệ thống điện.
Bản vẽ điện có giúp tiết kiệm chi phí thi công không?
Có. Khi thực hiện bản vẽ điện chi tiết sẽ giúp tính toán được chủng loại vật tư, khối lượng thi công cũng như vị trí lắp đặt ngay từ đầu. Chính vì thế, quá trình thi công sẽ hạn chế được nhiều chi phí phát sinh về vật liệu, khối lượng công việc và sai sót gây mất thời gian, chi phí sửa chữa.
Tôi có cần bản vẽ điện khi xin phép xây dựng không?
Trong hồ sơ xin phép xây dựng, phần bản vẽ điện thường không yêu cầu chi tiết như hồ sơ thi công. Tuy nhiên, khi bước vào giai đoạn xây dựng thực tế, bản vẽ thiết kế điện là hạng mục bắt buộc để đảm bảo thi công đúng kỹ thuật và an toàn. Vì vậy, gia chủ nên chuẩn bị bản vẽ thiết kế điện nhà biệt thự đầy đủ trước khi triển khai xây dựng biệt thự.

Kết luận
Như vậy, qua nội dung bài viết, NEOHouse cũng đã gửi đến quý khách hàng và bạn đọc những thông tin cần thiết liên quan đến bản vẽ thiết kế điện nhà biệt thự, giúp gia chủ hiểu rõ hơn vai trò và tầm quan trọng của hạng mục này trong quá trình xây dựng. Nếu quý khách còn thắc mắc về thiết kế bản vẽ thiết kế điện và tìm kiếm những thiết kế nhà đẹp. Hãy liên hệ với NEOHouse qua nút gọi trên màn hình hoặc hotline/zalo: 0937.100.202. Đội ngũ tư vấn của chúng tôi sẽ liên hệ và hỗ trợ nhanh chóng, chính xác theo nhu cầu thực tế của gia chủ.