Dù mới du nhập vào Việt Nam trong những năm gần đây, tuy nhiên biệt thự kiểu Nhật với vẻ đẹp mới lạ và độc đáo đã có sức hút mạnh mẽ trong kiến trúc hiện nay. Sở hữu rất nhiều ưu điểm từ thẩm mỹ kiến trúc, công năng sử dụng cho đến yếu tố phong thủy mà nhiều loại hình nhà ở khác không có được. Do đó, trong nội dung bài viết hôm nay, NEOHouse giới thiệu đến các bạn top các mẫu thiết kế biệt thự kiểu Nhật đẹp, ấn tượng nhất để cùng tham khảo và chiêm ngưỡng.
Xem thêm: 150+ Mẫu Thiết Kế Biệt Thự Kiểu Pháp Đẹp Bậc Nhất 2026
Biệt thự kiểu Nhật là gì?
Biệt thự kiểu Nhật là một tác phẩm nghệ thuật kiến trúc, mang đậm dấu ấn văn hóa và truyền thống của đất nước mặt trời mọc. Với thiết kế tối giản, chú trọng đến sự hài hòa giữa không gian sống và yếu tố thiên nhiên, những ngôi biệt thự này mang đến cảm giác yên bình và thư thái cho gia chủ. Đặc trưng bởi những đường nét tinh tế, hệ mái Nhật dốc vừa phải, vật liệu tự nhiên như gỗ, tre, đá và hướng đến không gian mở, biệt thự kiểu Nhật là sự lựa chọn hoàn hảo cho những ai yêu thích vẻ đẹp mộc mạc, giản dị và tinh tế.
Đặc biệt, những yếu tố truyền thống như vườn zen, cửa trượt shoji và phòng trà trong biệt thự kiểu Nhật không chỉ mang đến vẻ đẹp thẩm mỹ sang trọng và hiện đại mà còn tạo ra không gian sống đậm chất thiền, giúp các thành viên trong gia đình thư giãn và tìm lại sự cân bằng trong cuộc sống.

Đặc trưng của biệt thự kiểu Nhật
Dưới đây là một số những đặc trưng nổi bật của biệt thự kiểu Nhật so với những công trình thông thường khác.
Hệ mái nhà
Điểm nhấn đầu tiên mà chúng ta dễ dàng nhận biết nhất của biệt thự kiểu Nhật đó chính là hệ mái nhà. Với thiết kế nghiêng một góc 45 độ và diện tích mái đua ra rộng, mái Nhật không chỉ góp phần mang đến vẻ đẹp thẩm mỹ mà còn giúp điều hòa không khí bên trong nhà luôn được mát mẻ vào mùa hè, ấm áp mùa đông và thoát nước mưa hiệu quả, rất phù hợp với khí hậu nhiệt đới của Việt Nam ta.

Màu sắc chủ đạo
Biệt thự kiểu Nhật sử dụng các gam màu trung tính, tone trầm cùng các gam màu tự nhiên của các vật liệu như tre, gỗ, nứa,… góp phần mang đến một không gian sống gần gũi và hài hòa với thiên nhiên. Các gam màu chủ đạo thường là các gam màu trắng, xám, be, nâu,… được phối hợp một cách ăn ý, bổ trợ cho nhau để tạo nên vẻ đẹp thời thượng và cách tân cho công trình kiến trúc kiểu Nhật.

Ưu tiên sử dụng vật liệu tự nhiên
Biệt thự kiểu Nhật luôn chú trọng đến việc sử dụng các vật liệu tự nhiên như gỗ, nứa, tre,… mang đến nét đẹp mộc mạc và gần gũi. Những chất liệu này không chỉ bền bỉ theo thời gian mà còn tạo ra không gian sống gần gũi và hòa hợp với thiên nhiên. Sự kết hợp hài hòa giữa kiến trúc và thiên nhiên cùng vật liệu tự nhiên chính là một trong những yếu tố tạo nên nét đẹp độc đáo và đặc trưng của biệt thự phong cách Nhật Bản.

Tận dụng tối đa không gian sống
Bên cạnh việc chú trọng đến yếu tố thiên nhiên, thì biệt thự kiểu Nhật còn đề cao đến việc tận dụng tối đa không gian sử dụng. Mỗi góc nhỏ trong biệt thự đều được tận dụng triệt để, thiết kế thông minh cho phép sử dụng mọi ngóc ngách của ngôi nhà, từ những góc tường cho đến các khu vực dưới cầu thang, giúp cho gia đình tăng thêm không gian sử dụng. Đồng thời, công năng sử dụng thiết kế liên thông giữa các không gian chức năng, vừa tạo thêm sự rộng rãi, vừa gắn kết tình cảm, sự tương tác giữa các thành viên trong gia đình.

Tham khảo thêm: 55+ Mẫu Biệt Thự Châu Âu Hiện Đại Đẹp Sang Trọng Nhất 2026
Phân loại các biệt thự kiểu Nhật hiện nay
Hiện tại, biệt thự kiểu Nhật được chia thành hai phong cách chính, mỗi phong cách đều mang đến những nét đẹp riêng biệt và cuốn hút, cụ thể:
- Biệt thự phong cách Nhật cổ điển: Phong cách kiến trúc này thừa kế và phát huy những giá trị văn hóa truyền thống của Nhật Bản. Công trình thường có thiết kế đơn giản, thanh thoát nhưng tinh tế, các gam màu sắc chủ đạo nhẹ nhàng như trắng, be và nâu. Không gian sống tập trung vào việc tạo ra những khu vực thư giãn, gần gũi thiên nhiên, bố trí nhiều mảng cây xanh và tận dụng tối đa ánh sáng tự nhiên. Nội thất sử dụng nhiều vật liệu tự nhiên gỗ, bố trí nội thất tối giản, thông thoáng.
- Biệt thự phong cách Nhật hiện đại: Phong cách kiểu Nhật hiện đại mang đến sự mới mẻ và trẻ trung hơn, sử dụng các gam màu tươi sáng và bắt mắt, thiết kế sáng tạo và phá cách hơn. Không gian sống chú trọng đến sự thoải mái và hài hòa với thiên nhiên, bố trí sân vườn và tiểu cảnh xanh xung quanh. Nội thất sử dụng các đồ dùng đa năng và thông minh, tối ưu hóa diện tích và công năng sử dụng tiện nghi.

Những yếu tố cốt lõi tạo nên biệt thự phong cách Nhật Bản hoàn hảo
Tổ chức mặt bằng và bố cục không gian hài hòa
Trong thiết kế biệt thự kiểu Nhật, mặt bằng luôn được chú trọng theo hướng linh hoạt, tối giản nhưng tối ưu trải nghiệm sống. Các không gian chức năng như phòng khách, phòng ăn, bếp và phòng ngủ được bố trí khoa học, đảm bảo sự thuận tiện trong sinh hoạt hằng ngày mà vẫn giữ được tính kết nối tổng thể.

Một đặc trưng dễ nhận thấy là việc sử dụng các hệ vách ngăn di động như shoji (cửa giấy khung gỗ) hay fusuma. Những vách ngăn này cho phép không gian dễ dàng mở rộng hoặc thu gọn tùy theo nhu cầu sử dụng, mang lại sự linh hoạt hiếm thấy trong các mô hình nhà ở truyền thống.

Sự cân bằng giữa khu vực sinh hoạt chung và không gian nghỉ ngơi riêng tư cũng là yếu tố then chốt. Phòng khách thường được đặt gần lối vào, đóng vai trò là nơi đón tiếp và gắn kết các thành viên trong gia đình. Ngược lại, khu vực phòng ngủ được bố trí sâu hơn, tách biệt và yên tĩnh, giúp đảm bảo sự riêng tư và cảm giác thư thái. Cách tổ chức này phản ánh rõ triết lý sống của người Nhật: hài hòa giữa giao tiếp và tĩnh tại, giữa cộng đồng và cá nhân.
Vườn Nhật – linh hồn của không gian sống
Trong biệt thự kiểu Nhật, khu vườn không chỉ là mảng xanh trang trí mà được xem như một tác phẩm nghệ thuật sống, nơi hội tụ triết lý thẩm mỹ và tinh thần thiền định. Vườn Nhật thường được tạo nên từ những yếu tố quen thuộc như đá, nước, cây xanh, rêu và đèn lồng, mỗi chi tiết đều mang một giá trị biểu trưng riêng.

Đá đại diện cho sự vững bền và trường tồn, nước mang đến chuyển động mềm mại và cảm giác mát lành, cây cối tạo bóng mát và sắc xanh tự nhiên, rêu gợi lên sự trầm mặc của thời gian, còn đèn lồng góp phần tạo nên ánh sáng ấm áp và không khí thơ mộng khi chiều xuống. Tất cả được sắp đặt có chủ đích, không ngẫu nhiên, nhằm tạo nên một bố cục cân bằng và hài hòa.

Điểm đặc biệt của vườn Nhật nằm ở chiều sâu ý nghĩa. Mỗi viên đá, lối đi hay dòng nước đều được tính toán kỹ lưỡng để truyền tải tinh thần wabi-sabi – vẻ đẹp của sự giản dị, tự nhiên và không hoàn hảo. Đây không chỉ là nơi ngắm cảnh mà còn là không gian giúp con người lắng lại, tìm thấy sự bình yên và kết nối sâu sắc hơn với thiên nhiên.
Ánh sáng tự nhiên và bảng màu đặc trưng
Ánh sáng tự nhiên đóng vai trò trung tâm trong thiết kế biệt thự phong cách Nhật. Việc tận dụng tối đa nguồn sáng tự nhiên không chỉ giúp không gian trở nên thoáng đãng, tiết kiệm năng lượng mà còn mang lại cảm giác nhẹ nhàng, thư thái cho người sử dụng. Những hệ cửa trượt lớn, cửa sổ rộng hay mái hiên sâu được thiết kế để ánh sáng có thể lan tỏa khắp các không gian, đồng thời hạn chế ánh nắng gắt trực tiếp.

Về màu sắc, biệt thự kiểu Nhật sử dụng các các gam màu trung tính đặc trưng như trắng, be, nâu gỗ và xám nhạt. Những tông màu này được kết hợp một cách tinh tế và hài hòa, khiến không gian trở nên thanh lịch, tinh tế và dễ dàng tạo cảm giác cân bằng thị giác. Bên cạnh đó, yếu tố mùa vụ cũng được khéo léo đưa vào thiết kế nội thất. Mùa xuân là sắc hồng nhẹ của hoa anh đào, mùa thu là gam vàng – cam ấm áp của lá phong, tạo nên sự thay đổi tinh tế nhưng đầy cảm xúc theo từng thời điểm trong năm.

Tổng hợp những mẫu biệt thự kiểu Nhật đẹp, độc đáo nhất 2026
Không quá cầu kỳ hay trang trí phức tạp nhưng những mẫu biệt thự kiểu Nhật hiện nay vẫn có một sức hút mạnh mẽ đến kỳ lạ. Sức hút đó được hình thành bởi sự hài hòa, tinh tế trong phương án thiết kế kiến trúc cho đến nội thất bên trong. Nếu bạn đang tìm kiếm ý tưởng thiết kế biệt thự kiểu Nhật, hãy cùng NEOHouse khám phá top những mẫu biệt thự kiểu Nhật đẹp, độc đáo được yêu thích nhất hiện nay.
Mẫu biệt thự kiểu Nhật 1 tầng hiện đại
Mẫu biệt thự kiểu Nhật 1 tầng phong cách hiện đại ngày càng trở nên phổ biến và được nhiều gia đình ưa chuộng bởi nhiều ưu điểm nổi bật, đặc biệt là khu đất xây dựng rộng lớn. Với lối thiết kế đơn giản, tối ưu hóa công năng sử dụng cùng không gian sống mở, hệ mái Nhật kiên cố và bề thế, mang đến một không gian sống yên bình, gần gũi với thiên nhiên, đồng thời đáp ứng nhu cầu sử dụng thoải mái cho gia đình trẻ sinh sống.


Sở hữu diện tích xây dựng 100m2, căn biệt thự kiểu Nhật 1 tầng bố trí thành 2 phòng ngủ khá rộng rãi, đáp ứng không gian sử dụng riêng tư cho gia đình trẻ. Các không gian chính khác như phòng khách, phòng bếp + ăn, phòng vệ sinh được sắp xếp và phân chia hợp lý, chuẩn phong thủy, vừa mang lại sự thuận tiện và thoải mái trong quá trình sử dụng, vừa đảm bảo sự may mắn, tài lộc cho gia đình.

Mẫu biệt thự kiểu Nhật 2 tầng tân cổ điển kiểu Pháp
Biệt thự kiểu Nhật 2 tầng tân cổ điển kiểu Pháp này kết hợp hệ mái Nhật ấn tượng, có độ dốc vừa phải, đua ra rộng phía trước, không chỉ giúp thoát nước nhanh, chống ẩm mốc, chống nóng hiệu quả mà còn mang đến hiệu ứng thẩm mỹ cao trong tổng thể cho công trình. Các chi tiết trang trí như họa tiết hoa văn, phào chỉ, những đường gờ được kiến trúc sư thiết kế tối giản, chỉ giữ lại những tinh hoa của phong cách kiến trúc này. Tuy nhiên vẫn đảm bảo vẻ đẹp kiêu sa và sang trọng cho căn biệt thự kiểu Nhật 2 tầng tân cổ điển kiểu Pháp này.


Với quy mô xây dựng 2 tầng trên diện tích đất rộng 120m2, căn nhà được bố trí 4 phòng ngủ, phòng khách, phòng ăn + bếp, phòng sinh hoạt chung, phòng thờ, phòng vệ sinh. Trong đó, có 1 phòng ngủ master có diện tích lớn, tích hợp phòng thay đồ và phòng vệ sinh riêng tư.

Mặt bằng tầng trệt bố trí bao gồm: 1 phòng khách, 1 phòng ăn + bếp, 1 phòng thờ, 1 phòng ngủ và 1 phòng vệ sinh chung.

Mặt bằng lầu 1 thiết kế gồm có 3 phòng ngủ, 1 phòng ngủ master, 1 phòng sinh hoạt chung và 1 phòng vệ sinh chung.
Mẫu biệt thự kiểu Nhật 3 tầng tân cổ điển
Mẫu biệt thự kiểu Nhật 3 tầng tân cổ điển là một trong những sự lựa chọn hoàn hảo dành cho gia đình yêu thích vẻ đẹp sang trọng và đẳng cấp cùng công năng sử dụng thoải mái từ 4-6 thành viên cùng chung sống. Ngoại thất công trình này nổi bật với gam màu sơn tươi sáng, màu trắng chủ đạo kết hợp hệ cửa kính khung nhôm màu đen và hệ mái Nhật màu ghi đậm, tạo nên sự nổi bật, thu hút thị giác mạnh mẽ so với những công trình bên cạnh.

Hình khối kiến trúc cân đối thể hiện sự kiên cố và vững chắc, kết hợp hệ thức cột được trang trí những đường gờ chỉ kẻ lõm và họa tiết trang trí trên mảng tường giúp công trình toát lên vẻ đẹp mềm mại và uyển chuyển.

Bên cạnh kiến trúc tráng lệ và cao ráo thì hệ thống sân vườn cũng được chủ đầu tư quan tâm đến. Hệ thống sân vườn rộng rãi, bố trí hệ tiểu cảnh xanh sẽ là nơi để xe, không gian giải trí và thư giãn cho các thành viên trong gia đình.
Mặt bằng công năng của căn biệt thự kiểu Nhật 3 tầng tân cổ điển bố trí bao gồm có 4 phòng ngủ, 1 phòng khách, 1 phòng làm việc, 1 phòng sinh hoạt chung, 1 phòng gym, 1 phòng thờ và khu vực sân thượng.

Mặt bằng công năng sử dụng tầng trệt bao gồm có 1 phòng khách, 1 phòng ngủ master và 1 phòng ngủ thường cùng 1 phòng vệ sinh chung. Vì để tránh đọng mùi thức ăn vào không gian sinh hoạt, gia chủ đã bố trí phòng bếp và bàn ăn riêng bên ngoài nhà.

Mặt bằng công năng lầu 1 của biệt thự kiểu Nhật 3 tầng tân cổ điển thiết kế có 2 phòng ngủ, 1 phòng sinh hoạt chung, 1 phòng làm việc và 1 phòng vệ sinh chung.

Lầu 2 là không gian thư giãn của gia đình cũng như là nơi thờ cúng ông bà tổ tiên. Bao gồm 1 phòng thờ hướng ra trước mặt tiền nhà, phía sau là phòng gym và kế bên là khu vực sân thượng.
Có thể bạn quan tâm: 60+ Mẫu Biệt Thự Indochine (Đông Dương) Đậm Chất Hoài Cổ
Mẫu biệt thự vườn kiểu Nhật sang trọng
Mẫu biệt thự vườn kiểu Nhật này có tọa lạc tại một vùng ngoại ô rộng lớn và yên bình. Rời xa khỏi chốn đô thị đông đúc, ồn ã và náo nhiệt, khi bước chân đến đây bạn sẽ ngỡ như đang lạc vào một thế giới khác hoàn toàn, một thế giới trong lành, gần gũi và yên bình đến kỳ lạ. Đây chính là nơi “đi để trở về” đúng nghĩa mà hầu hết các gia đình hiện nay ai cũng mong ước có được.


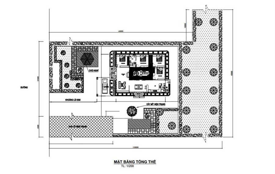
Căn biệt thự vườn kiểu Nhật 1 tầng gây ấn tượng bởi diện mạo khá đơn giản và gọn gàng với kiến trúc mái Nhật. Hệ mái Nhật có kết cấu kiên cố và khả năng thoát nước, điều hòa không khí tốt. Tổng thể biệt thự khoác lên mình tone màu trắng tinh khôi làm chủ đạo đúng chất hiện đại. Các ô cửa kính bố trí xuyên suốt mặt tiền giúp cho mẫu biệt thự vườn kiểu Nhật luôn thông thoáng và đón nhận ánh sáng từ bên ngoài.


Ngoài ra, cảnh quan sân vườn xung quanh cũng là một trong các điểm nhấn của ngôi biệt thự vườn kiểu Nhật này. Đó là một khoảng sân vườn có diện tích rộng rãi, những thảm cỏ xanh mượt, bố trí đá và cây cảnh theo xu hướng Nhật cùng chòi nghỉ, tạo nên một không gian sống đồng bộ, chan hòa và gần gũi thiên nhiên.

Công năng của biệt thự vườn kiểu Nhật 1 tầng được bố trí cực kỳ khoa học, hợp lý bao gồm các không gian chức năng như sau: 1 phòng khách, 1 phòng bếp + ăn, 4 phòng ngủ, 1 phòng thờ, phòng vệ sinh. Điều đặc biệt của mặt bằng biệt thự vườn này chính là trung tâm ngôi nhà bố trí khu vực tiểu cảnh xanh, tiếp giáp với 4 phòng ngủ của gia đình, tạo không gian sinh hoạt gần gũi thiên nhiên, không khí trong lành và yên bình, nâng cao chất lượng sống.
Mẫu biệt thự kiểu Nhật ở nông thôn
Rời xa thành thị náo nhiệt và ồn ào, những mẫu biệt thự kiểu Nhật ở nông thôn ngày càng được nhiều chủ đầu tư hiện nay ưa chuộng và lựa chọn làm mái ấm cho gia đình của mình. Với lợi thế khu đất rộng thoáng, không khí trong lành, chủ đầu tư đã bố trí sân vườn với nhiều mảng cây xanh, tích hợp cùng tiện ích hồ bơi, chòi nghỉ, tạo sự thuận lợi và không gian thư giãn, giải trí cho các thành viên trong gia đình sau những ngày làm việc, học tập căng thẳng.


Kiến trúc biệt thự kiểu Nhật 2 tầng ở nông thôn thiết kế khang trang và bề thế. Hình khối cân đối với bố cục cân bằng, vuông vức cùng hệ mái Nhật dốc giúp tôn lên nét đẹp khỏe khoắn và phóng khoáng cho tổng thể công trình. Căn biệt thự “khoác” lên mình gam màu trắng chủ đạo kết hợp màu xám của gạch inax ốp tường tạo sự tương phản màu sắc tinh tế. Cửa kính bố trí dày đặc và thông minh để ánh sáng tự nhiên và gió trời len lỏi dễ dàng vào bên trong nội thất ngôi nhà. Từ đó, giúp không gian sống luôn tràn ngập một bầu không khí mát mẻ và trong lành.

Một công trình hoàn hảo cần phải đảm bảo hai yếu tố ngoại thất và bố trí mặt bằng công năng. Mẫu biệt thự kiểu Nhật ở nông thôn 2 tầng đã thể hiện rõ sự hoàn mỹ đó trong bản vẽ mặt bằng công năng dưới đây.

Tầng trệt là không gian sinh hoạt chung của gia đình, bố trí các phòng chức năng như phòng khách + thờ, phòng ăn + bếp, 2 phòng ngủ, trong đó 1 phòng ngủ master và 1 phòng ngủ cho khách, 1 phòng gia nhân, khu vực tập thể dục, phòng xông hơi, phòng kho và phòng vệ sinh chung.

Lầu 1 sẽ bao gồm các không gian gian chức năng sinh hoạt riêng tư cho các thành viên trong gia đình. Trong đó có 4 phòng ngủ đều có nhà vệ sinh khép kín, diện tích rộng rãi và tiện nghi. Trung tâm lầu 1 là không gian sinh hoạt chung cho gia đình giải trí và thư giãn.
Mẫu biệt thự phố kiểu Nhật 3 tầng tân cổ điển
Mẫu biệt thự phố kiểu Nhật 3 tầng tân cổ điển hiện lên vững chãi và khang trang với kiến trúc cân đối. Những chi tiết trang trí phào chỉ, hệ kèo cột, hoa văn uyển chuyển hòa quyện vào nhau kiến tạo nên một công trình sang trọng và bắt mắt. Việc kết hợp giữa kiến trúc tân cổ điển cộng hưởng hệ mái Nhật cách tân đã giúp căn nhà trở nên thanh thoát, tinh tế và cuốn hút hơn rất nhiều. Sự kết hợp này hiện tại được sử dụng phổ biến và thịnh hành với xu hướng kiến trúc ngày nay.


Mẫu thiết kế biệt thự phố kiểu Nhật sở hữu diện tích hạn hẹp, do đó việc bố trí nhiều hệ cửa kính giúp tạo cảm giác rộng rãi và tràn ngập ánh sáng tự nhiên. Cửa kính cũng góp phần gia tăng hiệu ứng thẩm mỹ cho tổng thể ngôi nhà.

Mặt bằng công năng biệt thự phố kiểu Nhật được bố trí tối ưu hóa, tận dụng triệt để không gian sử dụng. Theo đó, mặt bằng tầng trệt được thiết kế bao gồm phòng khách kết hợp phòng thờ thiên chúa, bên trong là phòng ngủ ông bà và phòng bếp + ăn.

Công năng lầu 1 bố trí gồm có 3 phòng ngủ đều có nhà vệ sinh khép kín, phòng sinh hoạt chung và khu vực sảnh tầng bố trí bàn ghế sofa ngồi thư giãn.

Lầu 2 được thiết kế 3 phòng ngủ, trong đó 1 phòng ngủ giường đôi và 1 phòng ngủ có nhà vệ sinh khép kín, 1 phòng vệ sinh chung và khu vực sân thượng.
Mẫu biệt thự kiểu Nhật 2 mặt tiền đẹp
Mẫu biệt thự kiểu Nhật 2 mặt tiền mở ra không gian sống rộng rãi gấp đôi so với những căn nhà phố 1 mặt tiền, tạo điều kiện thuận lợi cho kiến trúc sư thoải mái sáng tạo và phô diễn những đường nét kiến trúc tinh tế, đẳng cấp, thu hút mọi ánh nhìn.


Phương án thiết kế biệt thự kiểu Nhật 2 mặt tiền với công năng 3 tầng theo phong cách tân cổ điển. Công năng tầng trệt bố trí bao gồm có khu vực gara, phòng khách, phòng ăn + bếp, 1 phòng ngủ và phòng vệ sinh chung.

Mặt bằng lầu 1 của mẫu biệt thự thiết kế có 3 phòng ngủ, tất cả đều có phòng vệ sinh khép kín, tạo không gian sinh hoạt và thư giãn riêng tư cho các thành viên trong gia đình.

Công năng lầu 2 bố trí 1 phòng ngủ có phòng vệ sinh riêng, 1 phòng thờ, khu vực giặt phơi và sân thượng.

Bài viết liên quan: Top 30+ Mẫu Biệt Thự Địa Trung Hải Đẹp Được Yêu Thích Nhất
Những lưu ý cần nắm rõ trước khi thiết kế thi công biệt thự kiểu Nhật
Để sở hữu một công trình biệt thự kiểu Nhật đẹp hoàn hảo từ kiến trúc cho đến công năng tiện nghi và đảm bảo yếu tố phong thủy, phù hợp với từng nhu cầu sử dụng của gia đình, chủ đầu tư cần lưu ý những vấn đề quan trọng sau đây:
Lập kế hoạch và dự trù chi phí chi tiết
Việc lập kế hoạch tài chính và tính toán chi phí chi tiết là việc làm trong quá trình xây nhà biệt thự kiểu Nhật hay bất kỳ công trình nào khác. Việc dự trù chi phí sẽ giúp chủ nhà cân đối khả năng tài chính của mình để đưa ra phương án thiết kế, quy mô xây dựng, bố trí công năng và vật liệu hoàn thiện,… sao cho phù hợp với mong muốn và nhu cầu của gia đình. Mặt khác, có kế hoạch tài chính chi tiết, chủ đầu tư có thể kiểm soát tốt chi phí cho từng giai đoạn từ thiết kế cho đến thi công một cách hợp lý và tiết kiệm, hạn chế các phát sinh không đáng có, cũng như không bị gián đoạn trong quá trình xây dựng.

Mặt tiền của ngôi nhà
Mặt tiền ngôi nhà chính là bộ mặt của cả công trình, phô diễn vẻ đẹp một cách trọn vẹn của kiến trúc, tạo dấu ấn đầu tiên với bất kỳ ai ghé thăm. Hơn nữa, mặt tiền còn thể hiện rõ gu thẩm mỹ, cá tính và khẳng định vị thế của chủ đầu tư. Chính vì vậy, mặt tiền của biệt thự kiểu Nhật cần được quan tâm đặc biệt trong quá trình thiết kế. Hình khối kiến trúc, bố cục cho đến hệ cột trụ, họa tiết trang trí phải được tính toán và sắp xếp khoa học với tỷ lệ phù hợp. Cùng với sự kết hợp giữa vật liệu và màu sắc một cách khéo léo và tài tình sẽ đem lại vẻ đẹp sang trọng, đẳng cấp cùng hiệu ứng thẩm mỹ bắt mắt và cuốn hút.

Quy mô xây dựng và công năng sử dụng
Khi xây biệt thự kiểu Nhật, chủ đầu tư cần xác định theo diện tích khu đất và nhu cầu sử dụng thực tế, số lượng thành viên để tính toán quy mô và công năng sử dụng cần bố trí để đáp ứng đầy đủ nhu cầu cho từng thành viên. Tính toán diện tích, số tầng, số lượng phòng chức năng, diện tích từng phòng sao cho một cách khoa học, tối ưu diện tích, phù hợp với thói quen sinh hoạt và kết cấu của thế hệ gia đình.

Chú ý đến độ dốc của mái Nhật
Độ dốc của mái nhà quyết định đến khả năng thoát nước, tính ổn định lâu dài của mái trong xuyên suốt quá trình sử dụng. Do đó, hệ mái Nhật cần được tính toán độ dốc chính xác, phù hợp để đảm bảo an toàn và tiện ích sử dụng. Thông thường, mái Nhật thường sẽ có độ dốc từ 30 – 45 độ để căn bằng các yếu tố về kỹ thuật và thẩm mỹ, đây được xem là tỷ lệ vàng trong lĩnh vực kiến trúc. Tuy nhiên, mỗi một công trình biệt thự sẽ có diện tích rộng, cao và dài khác nhau, khối kiến trúc đưa ra, thụt vào cũng vậy, do đó để cân đối độ dốc, độ vẩy ra của mái nhà bao nhiêu độ thì cũng phải dựa trên các yếu tố này.

Chú trọng đến yếu tố phong thủy
Yếu tố phong thủy là một vấn đề cần được chú trọng trong thiết kế và thi công nhà ở nói chung cũng như mẫu biệt thự kiểu Nhật nói riêng. Theo quan niệm phong thủy, việc thiết kế biệt thự đáp ứng các yếu tố phong thủy như hướng nhà, hướng cửa chính, hướng phòng ngủ, hướng bếp,… sẽ mang đến tài lộc, sức khỏe và thịnh vượng cho gia đình cũng như hóa giải những điềm xấu, mang đến những điều tốt đẹp cho gia đình. Vì thế, khi thiết kế biệt thự kiểu Nhật, chủ đầu tư cần chú trọng đến yếu tố phong thủy này.

Tìm hiểu thêm: 200+ Mẫu Biệt Thự Tân Cổ Điển Đẹp Sang Trọng Bậc Nhất 2026
Lựa chọn đơn vị thiết kế thi công biệt thự uy tín, chuyên nghiệp
Lưu ý cuối cùng khi thiết kế thi công biệt thự kiểu Nhật hay bất kỳ công trình nào khác thì việc lựa chọn đơn vị nhà thầu xây dựng uy tín, chuyên nghiệp là việc làm hết sức quan trọng. Các kiến trúc sư sẽ hỗ trợ tư vấn phong cách thiết kế, mặt bằng công năng, kết cấu, vật liệu hoàn thiện,… sao cho phù hợp với mong muốn, nhu cầu và ngân sách đầu tư của gia đình mình.

Hiện nay trên thị trường có rất nhiều nhà thầu xây dựng, chủ đầu tư nên tham khảo các dự án đã thiết kế, công trình hoàn thiện trên trang web và cả trên thực tế, tham khảo giá cả, quy trình làm việc, ý kiến phản hồi của khách hàng đã sử dụng dịch vụ. Dựa trên những cơ sở đánh giá này sẽ giúp chủ nhà lựa chọn được một nhà thầu uy tín và phù hợp.
NEOHouse – Đơn vị chuyên thiết kế biệt thự kiểu Nhật uy tín, giá rẻ
NEOHouse với hơn 12 năm kinh nghiệm trong lĩnh vực thiết kế thi công biệt thự, chúng tôi tự hào đã thực hiện hàng trăm dự án trên khắp 63 tỉnh thành tại Việt Nam, đem đến những phương án thiết kế độc đáo, xu hướng của thời đại cũng như đáp ứng công năng sử dụng thoải mái, tiện nghi và tiết kiệm chi phí.
- NEOHouse sở hữu đội ngũ kiến trúc sư luôn học hỏi, nghiên cứu và cập nhật xu hướng kiến trúc mới, do đó tất cả các công trình thiết kế đều đáp ứng tính thẩm mỹ thời thượng, không lỗi mốt và phong cách riêng của mỗi chủ đầu tư.
- Đội ngũ thợ thi công có nhiều năm kinh nghiệm, nhiệt tình, cam kết về chất lượng và tiến độ thi công, luôn đồng hành cùng chủ đầu tư từ giai đoạn đầu cho đến khi bàn giao công trình. Do đó, việc sai sót trong quá trình thi công được giảm thiểu đáng kể, tránh phát sinh các khoản chi phí không đáng có.
- Ưu đãi đặc biệt dành cho khách hàng chọn gói thi công trọn gói (chìa khóa trao tay) đó là giảm 100% chi phí thiết kế.
- NEOHouse có xưởng sản xuất trực tiếp, máy móc và trang thiết bị hiện đại, cam kết về chất lượng, thẩm mỹ và giá thành cạnh tranh.

Với định hướng lấy khách hàng làm trung tâm, NEOHouse tin rằng mỗi công trình biệt thự kiểu Nhật không chỉ là một ngôi nhà, mà còn là không gian sống mang giá trị tinh thần, thể hiện gu thẩm mỹ và phong cách riêng của từng gia đình. Mọi chi tiết tư vấn, thiết kế và thi công hãy liên hệ qua thông tin:
- NEOHOUSE – HCM
Đ/c: 8B, Bàu Cát 8, P. 11, Q. Tân Bình, TP. Hồ Chí Minh.
Tel: 0906 100 202 - NEOHOUSE – ĐÀ NẴNG
Đ/c: 63 Phan Đăng Lưu, Q. Hải Châu, Tp. Đà Nẵng
Tel: 0903 544 641 - LH Đối tác: neohousedoitac@gmail.com
- LH Tư vấn khách hàng: tuvan.neohouse@gmail.com
Quy trình thiết kế biệt thự kiểu Nhật chuyên nghiệp tại NEOHouse
Quy trình thiết kế của NEOHouse được chuẩn hóa theo 7 bước thực hiện chuyên nghiệp, trách nhiệm, cụ thể:
Bước 1: Tiếp nhận nhu cầu và tư vấn ban đầu
- Kiến trúc sư NEOHouse tiếp nhận đầy đủ thông tin từ khách hàng bao gồm nhu cầu sử dụng, công năng mong muốn, phong cách biệt thự kiểu Nhật hướng đến, mức ngân sách dự kiến, diện tích khu đất và các yêu cầu riêng biệt khác.
- Dựa trên những thông tin ban đầu, kiến trúc sư sẽ tư vấn các giải pháp thiết kế phù hợp với đặc trưng kiến trúc Nhật Bản, định hướng bố cục không gian, vật liệu, ánh sáng và cảnh quan, đồng thời giải đáp chi tiết các thắc mắc của khách hàng.

Bước 2: Ký hợp đồng thiết kế và khảo sát hiện trạng
- Sau khi thống nhất phương án làm việc, hai bên tiến hành ký hợp đồng thiết kế và thực hiện tạm ứng theo thỏa thuận.
- Đội ngũ kiến trúc sư – kỹ sư NEOHouse sẽ trực tiếp khảo sát hiện trạng khu đất, đo đạc kích thước thực tế, đánh giá địa hình, hướng nắng – gió và các yếu tố liên quan nhằm đảm bảo phương án thiết kế sát thực tế và tối ưu khi triển khai.
Bước 3: Triển khai phương án thiết kế sơ bộ
- Kiến trúc sư tiến hành bố trí mặt bằng công năng các tầng, sắp xếp không gian phòng khách, bếp, phòng ngủ, khu sinh hoạt chung theo tinh thần kiến trúc Nhật – đề cao sự thông thoáng, kết nối và cân bằng giữa các không gian.
- NEOHouse triển khai phối cảnh 3D ngoại thất tổng thể giúp khách hàng hình dung rõ ràng về hình khối kiến trúc, tỷ lệ, vật liệu, màu sắc và cảnh quan tổng thể của biệt thự kiểu Nhật.
Bước 4: Triển khai hồ sơ kỹ thuật kiến trúc
- Sau khi phương án sơ bộ được thống nhất, NEOHouse tiến hành triển khai hồ sơ kỹ thuật thi công kiến trúc bao gồm đầy đủ các hạng mục: kiến trúc, kết cấu, hệ thống điện – nước. Mỗi phần đều do kiến trúc sư và kỹ sư chuyên môn phụ trách nhằm đảm bảo tính chính xác và an toàn kỹ thuật. Bên cạnh đó, NEOHouse hỗ trợ khách hàng hoàn thiện hồ sơ xin cấp phép xây dựng theo đúng quy định.
Bước 5: Bàn giao hồ sơ thiết kế kiến trúc
- Hồ sơ kiến trúc được kiểm duyệt nhiều lần, đối chiếu và khớp nối chặt chẽ giữa các bộ phận kiến trúc – kết cấu – điện nước trước khi bàn giao cho khách hàng.
- Quy trình kiểm tra được thực hiện nghiêm ngặt để đảm bảo hồ sơ có thể triển khai thi công thực tế một cách an toàn, chính xác và hiệu quả.

Bước 6: Triển khai thiết kế nội thất biệt thự kiểu Nhật
- Sau khi hoàn thiện hồ sơ kiến trúc, NEOHouse tiếp tục triển khai thiết kế nội thất. Khách hàng cung cấp các thông tin về mức đầu tư, phong cách nội thất yêu thích, thói quen sinh hoạt và các yêu cầu sử dụng chi tiết.
- Dựa trên nhu cầu thực tế, kiến trúc sư sẽ tư vấn, điều chỉnh phong cách nội thất phù hợp với tinh thần Nhật Bản và triển khai phối cảnh 3D nội thất không gian chính như phòng khách và bếp để định hình tổng thể phong cách.
- Khi phương án không gian chính được thống nhất, NEOHouse sẽ tiếp tục triển khai phối cảnh 3D nội thất cho toàn bộ các không gian còn lại trong biệt thự.
Bước 7: Bàn giao hồ sơ thiết kế nội thất
- Hồ sơ thiết kế nội thất được kiểm duyệt kỹ lưỡng, đảm bảo phù hợp với thực tế thi công và thống nhất với hồ sơ kiến trúc đã triển khai trước đó.
- Trước khi bàn giao, NEOHouse thực hiện khớp nối lần cuối giữa hồ sơ kiến trúc và nội thất nhằm đảm bảo sự đồng bộ, liền mạch và tính thẩm mỹ xuyên suốt cho toàn bộ công trình.
Bảng báo giá thiết kế biệt thự kiểu Nhật tại NEOHouse
Chi phí thiết kế biệt thự kiểu Nhật được tính toán dựa trên tổng diện tích sàn xây dựng, phong cách kiến trúc lựa chọn và mức độ đầu tư chi tiết cho từng hạng mục trong công trình. Mỗi phương án thiết kế sẽ có những yêu cầu riêng về bố cục không gian, hình khối kiến trúc, vật liệu sử dụng cũng như giải pháp kỹ thuật, từ đó ảnh hưởng trực tiếp đến đơn giá thiết kế tổng thể.

Với đặc trưng đề cao sự tinh giản, hài hòa với thiên nhiên nhưng vẫn đòi hỏi sự chỉn chu trong từng chi tiết, thiết kế biệt thự kiểu Nhật cần được nghiên cứu kỹ lưỡng để đảm bảo cân bằng giữa thẩm mỹ, công năng và chi phí đầu tư. Và để gia chủ dễ dàng hình dung và chủ động trong việc dự trù ngân sách, NEOHouse xin gửi đến bảng đơn giá thiết kế kiến trúc biệt thự tham khảo hiện nay:
| STT | Phong cách kiến trúc | Đơn giá (VNĐ/m2) |
|---|---|---|
| 1 | Phong cách hiện đại | 85.000 – 105.000 |
| 2 | Phong cách tân cổ điển | 125.000 – 140.000 |
| 3 | Phong cách cổ điển | 150.000 – 165.000 |
Lưu ý: Bảng giá trên chỉ mang tính chất tham khảo, để có báo giá chính xác hãy trực tiếp liên hệ cho NEOHouse qua hotline hoặc chat Zalo: 0937 100 202, bộ phận chăm sóc khách hàng và kiến trúc sư sẽ hỗ trợ mình nhé, hoàn toàn miễn phí.
Như vậy, bài viết trên đã chia sẻ tất cả các thông tin về biệt thự kiểu Nhật cũng như các mẫu biệt thự kiểu Nhật đẹp, độc đáo được yêu thích nhất hiện nay. Hy vọng nội dung trên mang đến cho các bạn những thông tin hữu ích và ý tưởng thiết kế mới cho ngôi nhà của gia đình mình. Nếu cần tư vấn, báo giá thiết kế và thi công biệt thự, hãy liên hệ cho NEOHousevn để được hỗ trợ miễn phí nhé!