Trong xu hướng kiến trúc hiện nay, biệt thự 3 tầng chữ L đang được nhiều gia đình quan tâm và lựa chọn bởi khả năng tối ưu diện tích, bố trí công năng linh hoạt, phù hợp cả nông thôn lẫn thành thị. Bên cạnh việc đáp ứng tính thẩm mỹ, công năng sử dụng đa dạng thì công trình khuyết góc này còn tạo thêm khoảng không có thể bố trí sân vườn, gara, khu vui chơi,… nâng cao trải nghiệm sống và thư giãn cho gia đình. Nếu bạn đang tìm hiểu và tham khảo những biệt thự 3 tầng chữ L đẹp, hãy cùng NEOHouse khám phá chi tiết trong nội dung bài viết sau để dễ dàng lựa chọn giải pháp phù hợp cho nhu cầu và điều kiện thực tế của gia đình mình.
Đặc trưng của mẫu thiết kế biệt thự 3 tầng chữ L
Kiến trúc biệt thự 3 tầng chữ L là loại hình kiến trúc có bố cục đặc trưng riêng biệt được nhiều gia chủ quan tâm bởi cách tổ chức không gian linh hoạt và phù hợp với nhiều dạng khu đất. Trước khi tìm hiểu sâu hơn về các mẫu biệt thự này, việc nắm rõ các đặc trưng cơ bản sẽ giúp các bạn có cái nhìn tổng quan và có định hướng phù hợp cho công trình của mình.
- Góc khuyết trong bố cục tổng thể: Do đặc điểm mặt bằng chữ L, công trình luôn hình thành một khoảng khuyết tại vị trí giao nhau giữa hai khối nhà. Khoảng khuyết này trở thành điểm nhấn không gian kiến trúc, là dấu hiệu nhận diện đặc trưng của loại hình nhà ở này.
- Bố cục kiến trúc phi đối xứng, linh hoạt: Khác với các mẫu biệt thự vuông vức, đối xứng truyền thống, biệt thự 3 tầng chữ L có bố cục phi đối xứng. Hình khối công trình được xử lý linh hoạt theo đặc điểm khu đất, nhu cầu sử dụng và định hướng thiết kế tổng thể.
- Nhiều mặt tiếp xúc với không gian bên ngoài: Nhờ cấu trúc chữ L, biệt thự thường có từ hai đến ba mặt thoáng, giúp kiến trúc sư dễ dàng bố trí cửa sổ, ban công và các mảng mở.
- Phù hơp nhiều loại hình khu đất: Với kiểu dạng chữ L linh hoạt, mẫu biệt thự này thường được áp dụng cho các khu đất không vuông vắn, đất góc, đất nở hậu hoặc những khu đất cần chừa khoảng sân bên, sân trước theo quy hoạch.
- Đa dạng hình thức mái: Biệt thự chữ L 3 tầng có thể kết hợp nhiều loại mái khác nhau như mái bằng, mái Thái hoặc mái Nhật. Việc lựa chọn kiểu mái phụ thuộc vào phong cách kiến trúc, điều kiện khí hậu và định hướng thẩm mỹ của gia chủ.

Ưu và nhược điểm của mẫu biệt thự 3 tầng chữ L
Những mẫu thiết kế biệt thự 3 tầng chữ L chính là loại hình nhà ở phổ biến được nhiều gia đình ưa chuộng từ nông thôn cho đến ven thành phố, khu đô thị nhờ khả năng thích ứng nhiều điều kiện khu đất. Tuy nhiên, bên cạnh những ưu điểm nổi bật, loại hình này cũng có một số hạn chế nhất định mà chủ đầu tư cũng cần lưu ý. Cùng NEOHouse đánh giá chi tiết qua nội dung dưới đây:
Ưu điểm nổi bật nhà 3 tầng chữ L
- Tối ưu diện tích và không gian sử dụng: Biệt thự 3 tầng chữ L cho phép khai thác tối đa diện tích xây dựng, đặc biệt phù hợp với những lô đất không vuông vắn hoặc cần chừa khoảng trống cho sân vườn, lối xe vào. Nhờ cách tổ chức mặt bằng theo hai khối nhà liên kết, không gian bên trong được sắp xếp hợp lý, hạn chế diện tích thừa và tạo sự thông thoáng trong quá trình sử dụng.
- Dễ bố trí công năng linh hoạt: Với cấu trúc chữ L, việc phân chia công năng giữa các khu vực trở nên thuận tiện hơn rất nhiều. Theo đó, gia chủ có thể bố trí tầng trệt cho các không gian sinh hoạt chung như phòng khách, bếp – ăn; lầu 1 dành cho khu vực nghỉ ngơi riêng tư; lầu 2 là phòng thờ, phòng giặt phơi hoặc khu sinh hoạt phụ trợ. Với lợi thế cao tầng và kiểu dáng chữ L, căn biệt thự đáp ứng đa dạng nhu cầu sử dụng cho gia đình đa thế hệ chung sống.
- Thuận lợi trong việc bố trí sân vườn – gara – hồ bơi: Phần khuyết góc chữ L thường được tận dụng làm sân vườn, gara ô tô, hồ bơi hoặc khu vui chơi ngoài trời. Đây là điểm đặc trưng giúp biệt thự không chỉ đáp ứng nhu cầu sinh hoạt trong nhà mà còn mở rộng không gian sống, thư giãn cho gia đình, cũng như kết nối giữa kiến trúc và cảnh quan thiên nhiên.
- Tăng khả năng đón gió – ánh sáng tự nhiên: Với lợi thế sở hữu nhiều mặt thoáng, biệt thự 3 tầng chữ L dễ dàng bố trí cửa sổ, cửa kính lớn và ban công ở các hướng khác nhau. Từ đó, ánh sáng tự nhiên và gió trời được đưa vào không gian bên trong một cách tối đa và đồng đều, khiến không gian lúc nào cũng thông thoáng và mát mẻ.
- Phù hợp nhiều phong cách kiến trúc: Từ phong cách hiện đại, tối giản đến tân cổ điển, hay các kiểu mái như mái Thái, mái Nhật, mái bằng, biệt thự 3 tầng chữ L đều có thể linh hoạt áp dụng. Hình khối chữ L tạo điều kiện thuận lợi cho việc xử lý mặt tiền, phối hợp vật liệu và màu sắc, đáp ứng nhiều gu thẩm mỹ khác nhau.

Nhược điểm & hạn chế cần lưu ý
- Góc khuyết theo quan niệm phong thủy: Theo quan niệm phong thủy truyền thống, khuyết góc ảnh hưởng đến sự cân bằng tổng thể của ngôi nhà. Do đó, khi thiết kế biệt thự 3 tầng chữ L, gia chủ cần cân nhắc các giải pháp bổ trợ như bố trí tiểu cảnh, cây xanh, đèn chiếu sáng hoặc yếu tố trang trí để giảm cảm giác thiếu hụt.
- Hình khối kiến trúc bất đối xứng: Do bố cục phi đối xứng, nếu không được xử lý khéo léo, biệt thự chữ L 3 tầng có thể tạo cảm giác rời rạc hoặc thiếu cân đối. Điều này đòi hỏi kiến trúc sư phải có kinh nghiệm trong việc tổ chức mặt đứng, tỷ lệ khối và các điểm nhấn kiến trúc.
- Yêu cầu kỹ thuật cao trong bố trí mặt bằng: Thiết kế chữ L với nhiều hướng tiếp xúc bên ngoài khiến việc bố trí kết cấu, giao thông nội bộ và hệ thống kỹ thuật trở nên phức tạp hơn. Các vấn đề như chống thấm, thoát nước, liên kết không gian cần được tính toán tỉ mỉ và cẩn thận, đòi hỏi đơn vị thiết kế và thi công có kinh nghiệm thực tế nhiều năm.

Tổng hợp mẫu biệt thự 3 tầng chữ L đẹp thịnh hành nhất
Các mẫu thiết kế biệt thự chữ L 3 tầng ngày càng được ưa chuộng nhờ thiết kế linh hoạt, dễ bố trí công năng và phù hợp với nhiều phong cách kiến trúc khác nhau. Dưới đây là tổng hợp những mẫu biệt thự 3 tầng chữ L đẹp, thịnh hành hiện nay, được nhiều gia chủ quan tâm và lựa chọn.
Biệt thự 3 tầng chữ L hiện đại
Phong cách hiện đại không còn quá xa lạ đối với nhiều chủ đầu tư hiện nay, một phong cách rất phổ biến từ nhà ở dân dụng cho đến những công trình lớn. Với biệt thự 3 tầng chữ L hiện đại, thiết kế chú trọng đến hình khối mạch lạc và tự do, đường nét dứt khoát, không xuất hiện các chi tiết trang trí quá rườm rà nhưng không kém phần sang trọng và cuốn hút. Không gian bên trong và bên ngoài được kết nối chặt chẽ qua hệ thống cửa kính lớn, bố trí dày đặt thay thế hoàn toàn mảng tường bê tông, vừa mở rộng không gian, tạo cảm giác rộng rãi, vừa đem nguồn ánh sáng tự nhiên lan tỏa khắp ngôi nhà, nâng cao chất lượng sống. Cùng các gam màu trung tính được phối hợp một cách tinh tế, tô điểm vẻ đẹp đặc trưng của phong cách kiến trúc này.



Mẫu biệt thự chữ L 3 tầng tân cổ điển
Khác với phong cách hiện đại, những mẫu biệt thự chữ L 3 tầng tân cổ điển gây ấn tượng mạnh mẽ bởi vẻ đẹp sang trọng, đẳng cấp nhưng không quá cầu kỳ. Kiến trúc được khai thác trên nền tảng cân đối và đối xứng về hình khối cùng các chi tiết cột, phào chỉ và hoa văn tinh tế, tạo điểm nhấn nổi bật cho mặt tiền kiến trúc. Bố cục chữ L độc đáo, bố trí tiểu cảnh sân vườn, hồ cá và cây xanh, góp phần đáp ứng nhu cầu sinh hoạt, thư giãn và công năng sử dụng cho các thành viên. Đây là lựa chọn lý tưởng dành cho những gia chủ yêu thích vẻ đẹp kiến trúc sang trọng và thời thượng, tuy nhiên chi phí đầu tư khá cao, gia chủ cần cân nhắc trước khi lựa chọn.



Thiết kế biệt thự 3 tầng chữ L đẹp ở nông thôn
Các mẫu biệt thự 3 tầng chữ L đẹp ở nông thôn thường sở hữu khuôn viên rộng rãi, thuận lợi cho việc bố trí sân trước, sân bên và không gian xanh bao quanh nhà. Kiến trúc thường được định hướng theo lối đơn giản, chú trọng sự thoáng đãng và tính thực tế, kết hợp các vật liệu quen thuộc như mái ngói, sơn tường màu sáng, vừa tạo cảm giác gần gũi, vừa mang tính thẩm mỹ cao. Mẫu biệt thự này phù hợp với những gia chủ mong muốn một không gian sống yên tĩnh, tiện nghi và gắn liền với thiên nhiên vùng quê.



Mẫu nhà biệt thự 3 tầng chữ L thiết kế tối giản
Thiết kế biệt thự 3 tầng chữ L theo phong cách tối giản được nhiều gia đình trẻ yêu thích nhờ hình thức cách tân mới mẻ và dễ ứng dụng. Thiết kế này tập trung vào các mảng khối vuông vức, mặt tiền đơn giản, hạn chế chi tiết trang trí cầu kỳ. Các gam màu trung tính kết hợp cùng vật liệu hiện đại như kính, thép, gỗ nhựa, nhôm,… tạo nên một tổng thể công trình thanh thoát, hiện đại mà vẫn đảm bảo sự tiện nghi trong quá trình sử dụng.



Mẫu biệt thự chữ L 3 tầng mái Thái
Trong các thiết kế biệt thự hiện nay, mẫu biệt thự chữ L 3 tầng mái Thái luôn được nhiều gia chủ quan tâm, đặc biệt tại khu vực ngoại thành và nông thôn. Kiểu mái dốc đặc trưng này không chỉ tạo nên diện mạo thanh thoát, cao ráo cho công trình mà còn giúp tổng thể kiến trúc trở nên hài hòa và ấn tượng hơn rất nhiều. Phần mái Thái thường được thiết kế đua ra rộng giúp che chắn nắng – mưa hiệu quả cho hệ tường và không gian bên trong. Đặc biệt, khi kết hợp cùng bố cục chữ L, ngôi nhà càng trở nên mát mẻ, gần gũi thiên nhiên bởi thuận tiện cho việc bố trí sân vườn và khu vực sinh hoạt ngoài trời. Đây là lựa chọn phù hợp với những gia đình yêu thích phong cách truyền thống, đề cao sự tiện nghi và phù hợp với điều kiện khí hậu Việt Nam.



Mẫu thiết kế biệt thự 3 tầng chữ L mái nhật
Mang nét đặc trưng của kiến trúc Á Đông, biệt thự 3 tầng chữ L mái Nhật được nhiều gia chủ lựa chọn nhờ hình thức thanh thoát và dễ tạo thiện cảm cho người xem. Phần mái có độ dốc thấp, trải rộng giúp tổng thể công trình trở nên cân đối hơn so với các kiểu mái truyền thống. Thiết kế này không chỉ hỗ trợ việc thoát nước, chống ẩm hiệu quả mà còn góp phần giữ cho không gian bên trong luôn mát mẻ vào mùa hè, ấm áp vào mùa đông. Khi kết hợp cùng kiến trúc chữ L, mẫu biệt thự mái Nhật tạo nên vẻ đẹp tinh tế, sang trọng và nổi bật hơn so với những kiến trúc thông thường.



Mẫu biệt thự 3 tầng chữ L mái bằng
Mẫu biệt thự 3 tầng chữ L mái bằng mang đến diện mạo hiện đại, khỏe khoắn và phù hợp nhịp sống đương đại hiện nay. Kiểu mái bằng thể hiện rõ nét tính dứt khoát trong hình khối, góp phần hoàn thiện tổng thể công trình theo hướng đơn giản và trẻ trung. Bên cạnh giá trị thẩm mỹ, hệ mái bằng còn thuận tiện cho việc bố trí các hạng mục như hệ thống năng lượng mặt trời, sân thượng sinh hoạt hoặc không gian xanh trên cao, qua đó gia tăng công năng và tiện ích sử dụng cho ngôi nhà.



Thiết kế biệt thự 3 tầng chữ L 3 phòng ngủ
Phương án thiết kế biệt thự 3 tầng chữ L 3 phòng ngủ thường được ưu tiên lựa chọn cho những gia đình ít thành viên hoặc gia đình trẻ mong muốn một không gian sống vừa đủ, khoa học và tiện nghi. Với đặc trưng bố cục hình chữ L, các phòng ngủ được bố trí tách biệt với không gian sinh hoạt chung, do đó đảm bảo tính riêng tư cần thiết cho các thành viên. Bên cạnh đó, các phòng ngủ đều thiết kế hệ cửa sổ, ban công bằng vật liệu kính trong suốt, tạo điều kiện kết nối giữa không gian bên ngoài và bên ngoài, đồng thời mang đến bầu không khí mát mẻ, nâng cao chất lượng nghỉ ngơi.



Mẫu nhà biệt thự chữ L 3 tầng 4 phòng ngủ
Mẫu biệt thự chữ L 3 tầng 4 phòng ngủ đáp ứng nhu cầu sinh hoạt tiện nghi cho gia đình đông người hoặc gia đình nhiều thế hệ. Các không gian sinh hoạt chung và sinh hoạt riêng được sắp xếp, phân chia bố cục rõ ràng dựa trên mong muốn của gia đình. Thông thường, tầng trệt sẽ thiết kế phòng khách, phòng bếp – ăn, phòng ngủ dành cho ông bà, WC, lầu 1 sẽ bao gồm có 2 phòng ngủ, phòng sinh hoạt chung, WC, lầu 2 bố trí thêm 1 phòng ngủ, phòng thờ, khu vực giặt – phơi, tùy theo nhu cầu sử dụng của mỗi gia đình mà kiến trúc sư sẽ đưa ra phương án thiết kế tối ưu và phù hợp nhất cho mình.



Thiết kế nhà chữ L 3 tầng 5 phòng ngủ
Mẫu nhà chữ L 3 tầng 5 phòng ngủ thường được thiết kế theo phong cách hiện đại hoặc tân cổ điển, ưu tiên sự tiện nghi và tính ứng dụng cao trong quá trình sinh hoạt hằng ngày. Kiến trúc chú trọng vào hình khối khỏe khoắn, dứt khoát, cùng đường nét mạch lạc, kết hợp hài hòa giữa thẩm mỹ và công năng, phù hợp với những gia đình đông thành viên hoặc nhiều thế hệ cùng chung sống. Về công năng, thông thường tầng trệt thường sẽ được bố trí phòng khách, bếp – ăn, kết hợp một phòng ngủ dành cho người lớn tuổi hoặc phòng ngủ phụ, thuận tiện cho sinh hoạt. Lầu 1 sắp xếp từ 2 đến 3 phòng ngủ, trong đó có phòng ngủ chính với diện tích rộng hơn và không gian vệ sinh riêng. Còn lầu 2 thường bố trí các phòng ngủ còn lại, kết hợp phòng thờ, khu giặt phơi hoặc sân thượng, đáp ứng đầy đủ nhu cầu sinh hoạt và nghỉ ngơi cho toàn bộ gia đình.



Mẫu nhà chữ L 3 tầng 2 mặt tiền
Nhà chữ L 3 tầng sở hữu hai mặt tiền mang lại lợi thế lớn trong việc khai thác tối đa công năng sử dụng. Mẫu thiết kế này không chỉ đáp ứng nhu cầu sinh hoạt của gia đình mà còn thuận lợi để kết hợp kinh doanh, mở cửa hàng hoặc bố trí làm văn phòng làm việc. Với vị trí đắc địa tiếp giáp hai tuyến đường, chủ đầu tư có thể linh hoạt định hướng không gian theo mục đích sử dụng, đồng thời gia tăng giá trị khai thác và hiệu quả sử dụng lâu dài cho công trình.



Thiết kế biệt thự đẹp 3 tầng chữ L có gara
Trong điều kiện quỹ đất đô thị ngày càng hạn chế, nhu cầu bố trí không gian để xe an toàn và tiện lợi ngày càng được nhiều gia đình quan tâm đặc biệt, vì vậy các mẫu biệt thự 3 tầng chữ L có gara trở thành lựa chọn phù hợp của nhiều gia đình. Thiết kế chữ L cho phép gara được thiết kế tại bên hông nhà hoặc nằm gọn dưới phần chữ L mà vẫn đảm bảo sự tách biệt với khu vực sinh hoạt chính. Giải pháp này tạo điều kiện thuận lợi cho việc di chuyển xe ra vào, hạn chế ảnh hưởng đến quá trình sinh hoạt của gia đình.



Biệt thự 3 tầng chữ L có hồ bơi
Mẫu thiết kế biệt thự 3 tầng chữ L có hồ bơi thường được xây dựng trên những khu đất rộng, gia đình ưu tiên không gian nghỉ ngơi và sinh hoạt ngoài trời. Theo đó, hồ bơi có thể được bố trí tại phần sân trong hoặc khu vực tiếp giáp góc chữ L, vừa tạo điểm nhấn kiến trúc, gia tăng hiệu ứng thẩm mỹ trong tổng thể, vừa mang đến những giây phút giải trí tuyệt vời cùng các thành viên trong gia đình. Tuy nhiên, khi thiết kế hồ bơi, chủ đầu tư cần chú ý đến vị trí, an toàn sử dụng cũng như giải pháp thoát nước và chống thấm hiệu quả để không ảnh hưởng đến quá trình sinh hoạt.



Thiết kế nhà biệt thự 3 tầng chữ L 80m2
Với diện tích xây dựng 80m2, đặc biệt là những lô đất có hình dáng không cân đối, thiết kế biệt thự 3 tầng chữ L mang đến phương án bố trí không gian phù hợp và dễ ứng dụng. Thiết kế này không quá tập trung vào việc khai thác tính thẩm mỹ mặt tiền kiến trúc mà chủ yếu khai thác không gian sống tiện nghi, thông thoáng và thoái mái. Tuy nhiên, công trình vẫn toát lên vẻ đẹp tinh tế qua mảng khối tự do, màu sắc trẻ trung cùng các vật liệu hiện đại được phối hợp một cách ăn ý và hài hòa.



Nhà biệt thự chữ L 3 tầng 100m2
Mẫu thiết kế biệt thự chữ L 3 tầng diện tích 100m2 được nhiều gia đình đông thành viên lựa chọn hiện nay bởi nhờ mặt bằng công năng rộng rãi, có thể bố trí từ 4 đến 5 phòng ngủ, kết hợp phòng thờ, khu giặt phơi, sân chơi hoặc gara ô tô, đảm bảo sự tiện nghi và phù hợp cho sinh hoạt thoải mái, riêng tư.




Mẫu biệt thự chữ L đẹp 3 tầng 150m2
Với 150m2, một diện tích xây dựng biệt thự khá phổ biến từ nông thôn cho đến thành thị. Kết hợp công năng 3 tầng, ngôi nhà đáp ứng đầy đủ một không gian sống tiện nghi và rộng rãi dành cho gia đình đông thành viên, nhiều thế hệ cùng sinh sống. Với lợi thế nhà chữ L tạo khoảng không góc khuyết, gia chủ có thể bố trí thêm sân vườn, tiểu cảnh xanh hoặc gara để xe, vừa đem đến cho công trình yếu tố thiên nhiên trong lành, vừa gia tăng thêm tiện ích sử dụng mà không chiếm diện tích sử dụng chính.



Thiết kế nhà chữ L 3 tầng đẹp 200m2
Mẫu nhà chữ L 3 tầng đẹp diện tích 200m2 là lựa chọn lý tưởng dành cho những gia đình đa thế hệ hoặc gia chủ mong muốn một không gian sống rộng rãi, thoáng đãng. Bên cạnh các phòng chức năng sử dụng chính thì gia chủ còn có thể tích hợp thêm phòng làm việc, phòng giải trí, phòng xông hơi, phòng gym,… dựa trên nhu cầu sử dụng của các thành viên trong gia đình mà có phương án bố trí hợp lý nhất.



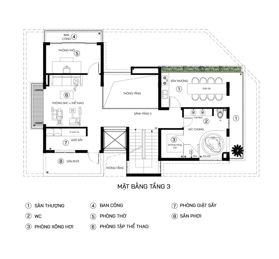
Mặt bằng công năng biệt thự 3 tầng chữ L
Mặt bằng công năng biệt thự 3 tầng chữ L được thiết kế linh hoạt, tận dụng tối đa lợi thế hình khối chữ L để tạo không gian thông thoáng, tách biệt rõ khu sinh hoạt chung và khu nghỉ ngơi, đồng thời tăng khả năng lấy sáng và thông gió tự nhiên.
Mặt bằng công năng tầng trệt
Tầng trệt thường bố trí các không gian sinh hoạt chung của gia đình như phòng khách, phòng bếp – ăn, 1 phòng ngủ (cho người lớn tuổi hoặc khách) và nhà vệ sinh chung. Cách sắp xếp theo hình chữ L giúp kết nối không gian giao thông thuận tiện và mở rộng tầm nhìn ra sân vườn.

Mặt bằng công năng lầu 1
Công năng lầu 1 là khu vực nghỉ ngơi chính của gia đình, bao gồm phòng ngủ master và các phòng ngủ phụ, mặt bằng ưu tiên thiết kế nhà vệ sinh khép kín để đảm bảo sự riêng tư nhất định cho các thành viên. Ngoài ra có thể bố trí thêm phòng sinh hoạt chung hoặc phòng làm việc.

Mặt bằng công năng lầu 2
Mặt bằng lầu 2 thường sẽ được bố trí các không gian chức năng phụ như phòng thờ, phòng giải trí, phòng gym, kết hợp sân thượng trước – sau. Thiết kế tầng này chú trọng sự thông thoáng, yên tĩnh và yếu tố phong thủy.

Những lưu ý quan trọng khi thiết kế biệt thự 3 tầng chữ L
Để sở hữu một mẫu biệt thự 3 tầng chữ L đẹp, kiến trúc hài hòa, công năng tiện nghi và phù hợp phong thủy, quá trình thiết kế cần được nghiên cứu kỹ lưỡng ngay từ đầu. Dưới đây là những yếu tố quan trọng mà chủ đầu tư không nên bỏ qua.
Quy hoạch tổng thể khu đất
Quy hoạch tổng thể khu đất đóng vai trò nền tảng, ảnh hưởng trực tiếp đến thẩm mỹ và chất lượng không gian sống của gia đình. Việc bố trí khoa học các khu chức năng như khối nhà, sân vườn, lối đi, gara,… sẽ giúp tổng thể công trình cân đối, thông thoáng và thuận tiện khi sử dụng. Khi lên phương án quy hoạch, chủ đầu tư và kiến trúc sư cần dựa trên diện tích khu đất, thế đất thực tế, nhu cầu sinh hoạt của gia đình và kết hợp các yếu tố phong thủy để tạo nên không gian sống hài hòa, mang lại sinh khí và tài lộc.

Phong thủy kiến trúc chữ L
Trong phong thủy, hình dáng ngôi nhà có tác động nhất định đến vận khí tài lộc, may mắn và thịnh vượng của gia chủ. Nhà chữ L thường bị ví như hình lưỡi dao, tạo cảm giác khuyết góc, không được đánh giá cao và thường được xem là không tốt, có thể ảnh hưởng đến quá trình sinh sống của gia đình nếu không được xử lý không khéo. Tuy nhiên, tùy theo mệnh và hướng nhà, kiến trúc sư có thể đưa ra các giải pháp hóa giải phù hợp như bố trí sân vườn, tiểu cảnh, hồ nước hoặc điều chỉnh công năng bên trong. Vì vậy, gia chủ nên kết hợp tư vấn phong thủy ngay từ giai đoạn thiết kế để đảm bảo sự hài hòa và yên tâm khi sử dụng lâu dài.

Tối ưu công năng sử dụng tiện nghi
Việc bố trí và phân chia công năng sử dụng cho căn biệt thự 3 tầng chữ L có vai trò cực kỳ quan trọng và khá phức tạp bởi vừa phải đảm bảo yếu tố công năng, vừa bố trí chuẩn phong thủy. Tùy theo mỗi công trình sẽ có phương án bố trí khác nhau, dựa trên nhu cầu, thói quen sinh hoạt, số lượng thành viên của gia đình để phân chia diện tích, số phòng và vị trí không gian hợp lý nhất. Việc sắp xếp các phòng chức năng khoa học sẽ giúp các không gian sống liên kết chặt chẽ, thuận tiện di chuyển và mang lại cảm giác thoải mái trong quá trình sử dụng của các thành viên trong gia đình.

Giải pháp đón sáng, thông gió
Như đã đề cập trước đó, mẫu biệt thự 3 tầng chữ L có ưu điểm là khả năng mở rộng mặt thoáng, dễ dàng tận dụng tối đa ánh sáng và gió tự nhiên từ bên ngoài. Trong phương án thiết kế này, gia chủ cần chú trọng đến việc bố trí hệ cửa sổ, cửa kính, ban công và khoảng sân trong sao cho hợp lý để không gian bên trong luôn đón nhận bầu không khí trong lành, mát mẻ và nguồn ánh sáng từ bên ngoài. Giải pháp thông gió hiệu quả không chỉ giúp tiết kiệm năng lượng mà còn nâng cao chất lượng sống và sức khỏe cho các thành viên trong gia đình.

Lựa chọn phong cách phù hợp
Thiết kế nhà biệt thự 3 tầng hình chữ L là một khoản đầu khá lớn, không chỉ về mặt tài chính mà còn tính cả thời gian cũng như công sức bỏ ra. Vì thế mà việc lựa chọn phong cách kiến trúc phù hợp cho tổ ấm của gia đình trong tương lai là điều vô cùng quan trọng bởi nó còn ảnh hưởng trực tiếp đến thẩm mỹ, công năng và cá tính của gia chủ. Theo đó, thì công trình biệt thự 3 tầng chữ L có thể được xây dựng theo nhiều phong cách kiến trúc khác nhau như: tân cổ điển, kiểu Pháp, hiện đại, châu Âu,… dựa theo sở thích cá nhân, mức đầu tư của mình mà đưa ra lựa chọn phù hợp.

Tìm kiếm và chọn đơn vị thiết kế uy tín
Một đơn vị thiết kế chuyên nghiệp và giàu kinh nghiệm sẽ giúp chủ đầu tư hiện thực hóa ý tưởng một cách trọn vẹn. Không chỉ mang đến giải pháp kiến trúc sáng tạo, công năng tối ưu và chuẩn phong thủy, đơn vị uy tín còn cung cấp hồ sơ thiết kế chi tiết, rõ ràng, giúp quá trình thi công diễn ra thuận lợi, tiết kiệm chi phí và thời gian. Đây là yếu tố quan trọng để đảm bảo chất lượng và giá trị lâu dài cho công trình biệt thự.

Kinh nghiệm thi công biệt thự 3 tầng chữ L
Sau khi hoàn thiện phương án thiết kế và hồ sơ kỹ thuật chi tiết, giai đoạn thi công chính là bước quan trọng để biến bản vẽ thành công trình thực tế. Để quá trình xây dựng biệt thự 3 tầng chữ L diễn ra suôn sẻ, đảm bảo chất lượng, tiến độ và tối ưu chi phí, chủ đầu tư cần lưu ý một số kinh nghiệm như sau:
Lập kế hoạch tài chính
Chi phí xây dựng là yếu tố then chốt quyết định quy mô, phong cách và mức độ hoàn thiện của biệt thự. Việc lập kế hoạch tài chính chi tiết ngay từ đầu sẽ giúp chủ đầu tư chủ động nguồn vốn, kiểm soát ngân sách theo từng giai đoạn và hạn chế tối đa các khoản phát sinh ngoài dự kiến. Bên cạnh đó, ngân sách cũng ảnh hưởng trực tiếp đến việc lựa chọn phong cách kiến trúc, vật liệu hoàn thiện và mức độ đầu tư. Thông thường, chi phí xây dựng biệt thự 3 tầng bao gồm: chi phí thiết kế, chi phí thi công phần thô, chi phí hoàn thiện, chi phí nội thất, chi phí xin giấy phép xây dựng và một khoản dự phòng cho các phát sinh trong quá trình thi công.

Tham khảo các công trình thực tế
Việc tham khảo các công trình đã thi công thực tế là cách hiệu quả nhất để chủ đầu tư tích lũy kinh nghiệm trước khi xây nhà. Qua việc trao đổi với những gia đình đã xây dựng biệt thự tương tự, chủ đầu tư có thể hiểu rõ hơn về phong cách kiến trúc, cách bố trí công năng, mức đầu tư thực tế cũng như những vấn đề thường phát sinh trong quá trình thi công. Đây là cơ sở quan trọng giúp đưa ra quyết định phù hợp, tránh sai sót và tiết kiệm chi phí cho tổ ấm của mình trong tương lai.

Chuẩn bị đầy đủ các thủ tục pháp lý
Xây dựng nhà ở là hoạt động chịu sự quản lý của pháp luật, vì vậy trước khi khởi công, chủ đầu tư cần hoàn thiện đầy đủ các thủ tục pháp lý cần thiết để tránh rủi ro và gián đoạn thi công. Các hồ sơ cơ bản bao gồm: giấy chứng nhận quyền sử dụng đất, giấy phép xây dựng, thủ tục thông báo khởi công và các giấy tờ liên quan theo quy định địa phương.

Lựa chọn thời điểm xây dựng
Chắc hẳn các bạn cũng nắm qua, thời điểm thi công ảnh hưởng trực tiếp đến tiến độ, chất lượng công trình và chi phí xây dựng. Vì vây, chủ đầu tư cần cân nhắc thật kỹ lưỡng để lựa chọn thời điểm khởi công xây dựng biệt thự 3 tầng chữ L phù hợp nhất. Thông thường, gia chủ nên ưu tiên khởi công vào mùa khô để thuận lợi cho việc đổ bê tông nhanh khô, thi công liên tục và hạn chế tác động của thời tiết xấu, đẩy nhanh tiến độ, tiết kiệm thời gian và chi phí xây dựng đáng kể.

Vật liệu hoàn thiện phù hợp
Vật liệu hoàn thiện quyết định lớn đến diện mạo, độ bền và sự tiện nghi của biệt thự 3 tầng chữ L, đồng thời chiếm tỷ trọng đáng kể trong tổng chi phí xây dựng. Việc lựa chọn vật liệu cần dựa trên phong cách kiến trúc, nhu cầu sử dụng, gu thẩm mỹ và ngân sách của gia đình. Theo đó, chọn vật liệu càng cao cấp thì giá thành sẽ càng cao nhưng đổi lại công trình mang đến vẻ đẹp sang trọng và thời thượng, cũng như thể hiện vị thế và tiềm lực tài chính của chủ nhà. Đồng thời, đối với những chủ đầu tư có ngân sách vừa phải, cần tiết kiệm chi phí vật tư cũng không quá phải lo lắng bởi trên thị trường hiện nay có rất nhiều mẫu mã, kiểu dáng, chất lượng và giá thành từ phân khúc giá rẻ đến cao cấp. Từ đó, giúp gia chủ có thể linh hoạt lựa chọn vật liệu hoàn thiện phù hợp về tính thẩm mỹ, công năng và khả năng tài chính của mình. Tuy nhiên, khi lựa chọn vật liệu, chủ đầu tư cần lưu ý như không chạy theo số đông hay thương hiệu đắt tiền nếu không thực sự cần thiết, ưu tiên vật liệu phù hợp công năng và độ bền.

Giám sát quá trình thi công hoàn thiện
Việc giám sát thi công là một bước không thể thiếu để đảm bảo công trình được thực thi đúng với bản vẽ, đúng kỹ thuật và đạt chất lượng cao. Việc theo dõi sát sao tiến độ, vật tư và tay nghề thi công sẽ giúp phát hiện sớm các sai sót để kịp thời điều chỉnh, đồng thời hạn chế lãng phí vật liệu và phát sinh chi phí không cần thiết.

Lựa chọn nhà thầu xây dựng chuyên nghiệp, giàu kinh nghiệm
Nhà thầu là đơn vị trực tiếp thi công, quyết định đến chất lượng, tiến độ và tính thẩm mỹ của công trình. Đối với các mẫu biệt thự 3 tầng chữ L, đặc biệt là biệt thự tân cổ điển, cổ điển hoặc kiểu Pháp có thiết kế phức tạp, việc lựa chọn nhà thầu chuyên nghiệp, có đội ngũ kỹ sư và thợ lành nghề là yếu tố then chốt để đảm bảo công trình hoàn thiện đạt chất lượng cao cũng như tối ưu ngân sách phù hợp. Chủ đầu tư nên tìm hiểu kỹ năng lực, các công trình đã thực hiện và đánh giá thực tế trước khi lựa chọn để đảm bảo công trình được hoàn thiện đúng kỳ vọng.

Dịch vụ tư vấn, thiết kế và thi công biệt thự 3 tầng chữ L tại NEOHouse
Với hơn 12 năm kinh nghiệm thực tế trong lĩnh vực thiết kế và thi công biệt thự, NEOHouse.vn mang đến giải pháp trọn gói cho các công trình biệt thự 3 tầng chữ L, đáp ứng đồng thời yêu cầu về thẩm mỹ, công năng sử dụng lẫn yếu tố phong thủy. Chúng tôi đồng hành cùng chủ đầu tư từ khâu ý tưởng đến khi công trình hoàn thiện, đảm bảo mỗi công trình đều mang dấu ấn riêng và phù hợp với nhu cầu sinh hoạt lâu dài.
Vì sao nên chọn NEOHouse thiết kế thi công biệt thự
Thiết kế biệt thự 3 tầng chữ L không chỉ đòi hỏi tư duy thẩm mỹ mà còn yêu cầu kiến trúc sư am hiểu công năng và phong thủy để đưa ra phương án bố trí tối ưu, hạn chế nhược điểm hình khối chữ L và tạo sự hài hòa giữa kiến trúc cùng không gian sống. Vì vậy, việc lựa chọn một đơn vị thiết kế – thi công chuyên nghiệp là yếu tố then chốt quyết định chất lượng công trình.
Công ty NEOHouse là đơn vị có hơn 12 năm kinh nghiệm trong lĩnh vực thiết kế và thi công biệt thự, với hàng trăm công trình lớn nhỏ trải dài trên khắp cả nước. Đội ngũ kiến trúc sư, kỹ sư của NEOHouse được đào tạo bài bản, chuyên nghiệp, có tư duy tổng thể từ kiến trúc, công năng đến phong thủy, mang đến giải pháp phù hợp với từng gia đình.

Các phương án thiết kế tại NEOHouse luôn được tối ưu chi phí theo nhu cầu thực tế, đảm bảo tiến độ triển khai minh bạch và chất lượng thi công được kiểm soát chặt chẽ. Bên cạnh đó, NEOHouse áp dụng chính sách làm việc rõ ràng, cam kết chỉnh sửa phương án đến khi khách hàng hài lòng, đồng thời hỗ trợ tư vấn phong thủy và định hướng thiết kế nội thất đồng bộ cho toàn bộ công trình. Đây chính là nền tảng giúp khách hàng an tâm khi lựa chọn NEOHouse làm đơn vị đồng hành xây dựng không gian sống.

Quy trình triển khai thiết kế thi công biệt thự tại NEOHouse
Quy trình thiết kế và thi công biệt thự tại NEOHouse được chuẩn hóa rõ ràng, khoa học, kiểm soát tốt chất lượng và tiến độ trong từng giai đoạn. Cụ thể:
Bước 1: Tiếp nhận thông tin và tư vấn sơ bộ
Kiến trúc sư NEOHouse tiếp nhận thông tin về nhu cầu sử dụng, số lượng phòng, phong cách kiến trúc mong muốn, ngân sách đầu tư, diện tích khu đất và các yêu cầu riêng của chủ đầu tư. Trên cơ sở đó, NEOHouse tư vấn định hướng thiết kế ban đầu và giải đáp các thắc mắc liên quan.
Bước 2: Ký hợp đồng và khảo sát hiện trạng khu đất
Sau khi thống nhất phương án làm việc, hai bên ký hợp đồng thiết kế. Đội ngũ kỹ thuật tiến hành khảo sát thực tế khu đất, đo đạc kích thước, đánh giá địa hình và các yếu tố ảnh hưởng đến phương án thiết kế.
Bước 3: Lên phương án bố trí mặt bằng và dựng phối cảnh 3D
Dựa trên những dữ liệu thu thập từ các bước trên, kiến trúc sư lên phương án bố trí mặt bằng công năng các tầng, bố trí không gian chức năng phù hợp với nhu cầu sinh hoạt. Đồng thời, phối cảnh 3D ngoại thất được dựng chi tiết để khách hàng hình dung rõ hình khối, phong cách và diện mạo tổng thể của công trình.

Bước 4: Triển khai hồ sơ kỹ thuật thi công
Công ty NEOHouse thực hiện triển khai đầy đủ hồ sơ kỹ thuật gồm kiến trúc, kết cấu và hệ thống điện nước, do các kiến trúc sư và kỹ sư chuyên môn đảm nhiệm. Ngoài ra, khách hàng được hỗ trợ hồ sơ xin cấp phép xây dựng theo quy định.
Bước 5: Bàn giao hồ sơ kiến trúc
Toàn bộ hồ sơ được kiểm tra, đối soát kỹ lưỡng giữa các bộ phận với nhau để đảm bảo tính thống nhất và khả thi khi thi công thực tế trước khi bàn giao cho chủ đầu tư.
Bước 6: Triển khai nội thất
Sau khi hoàn thiện hồ sơ kiến trúc, NEOHouse tiếp tục triển khai thiết kế nội thất dựa trên mức đầu tư, phong cách và nhu cầu sử dụng của gia đình. Phối cảnh 3D nội thất được thực hiện từ không gian chính đến toàn bộ các khu vực còn lại, đảm bảo sự đồng bộ với kiến trúc tổng thể.
Bước 7: Bàn giao hồ sơ nội thất
Hồ sơ nội thất được rà soát kỹ lưỡng, khớp nối với hồ sơ kiến trúc để đảm bảo thuận lợi khi thi công, mang lại không gian sống hài hòa, tiện nghi và đúng định hướng thiết kế ban đầu.
Bảng báo giá thiết kế, thi công nhà chữ L 3 tầng
Để gia chủ có thể dự trù chi phí và chủ động hơn trong việc lập kế hoạch xây dựng, dưới đây là bảng báo giá thiết kế và thi công nhà biệt thự 3 tầng chữ L tại NEOHouse, tổng hợp dựa trên từng hạng mục cụ thể và tiêu chuẩn thi công hiện hành.
Báo giá thiết kế biệt thự 3 tầng chữ L
Dưới đây là bảng giá tham khảo dịch vụ thiết kế chữ L 3 tầng do NEOHouse cung cấp. Mức giá thiết kế biệt thự được tính theo m2, dựa trên phong cách kiến trúc mà sẽ có đơn giá khác nhau, cụ thể:
| Phong cách kiến trúc | Đơn giá/m2 |
|---|---|
| 🔰️ Phong cách hiện đại | 🟢 90.000Đ – 110.000Đ/m2 |
| 🔰️ Phong cách tân cổ điển | 🟢 130.000Đ – 145.000Đ/m2 |
| 🔰️ Phong cách cổ điển | 🟢 155.000Đ – 170.000Đ/m2 |
Lưu ý: Giá thiết kế có thể thay đổi và điều chỉnh theo yêu cầu về phong cách, diện tích, vị trí, thời điểm, mức độ chi tiết. Do đó, mỗi hồ sơ thiết kế biệt thự 3 tầng đều sẽ có chi phí khác nhau, để có báo giá chính xác dựa theo các yếu tố trên, quý khách hãy liên hệ cho NEOHouse qua hotline/zalo: 0937.100.202 sẽ có tư vấn viên và kiến trúc sư hỗ trợ cho mình.

Báo giá thi công biệt thự chữ L 3 tầng
Thi công biệt thự 3 tầng chữ L là giai đoạn ảnh hưởng trực tiếp đến độ bền kết cấu, tính thẩm mỹ và hiệu quả sử dụng của công trình. Với kinh nghiệm thực tế trong thiết kế – thi công các mẫu biệt thự chữ L quy mô 3 tầng, NEOHouse cung cấp dịch vụ thi công trọn gói chuyên nghiệp, đảm bảo tiến độ, an toàn lao động và chất lượng theo đúng hồ sơ kỹ thuật đã được phê duyệt. Sau đây là bảng báo giá thi công biệt thự cập nhật mới nhất năm 2026, áp dụng cho nhiều quy mô và phong cách kiến trúc khác nhau:
| Hạng mục thi công | Đơn giá/m2 |
|---|---|
| 🔰️ Đơn giá nhân công (không bao gồm chi phí vật tư) | 🟢 1.500.000 – 1.700.000đ/m2 |
| 🔰️ Đơn giá thi công phần thô | 🟢 3.500.000 – 3.800.000Đ/m2 |
| 🔰️ Đơn giá thi công hoàn thiện (trọn gói) | 🟢 5.800.000- 7.000.000Đ/m2 |
| 🔰️ Miễn phí 100% chi phí thiết kế khi thi công trọn gói | |
Lưu ý:
- Đơn giá được tính trên diện tích xây dựng thực tế theo phương pháp bóc tách khối lượng.
- Chi phí có thể thay đổi tùy theo phong cách thiết kế (hiện đại, tân cổ điển, mái Thái, mái Nhật…), chủng loại vật tư hoàn thiện, điều kiện thi công và vị trí xây dựng.
- Với các mẫu biệt thự 3 tầng chữ L có gara, hồ bơi, sân vườn hoặc kết cấu phức tạp, NEOHouse sẽ lập dự toán chi tiết riêng để đảm bảo chính xác và minh bạch.
Kết luận
Trên đây là những thông tin tổng hợp về biệt thự 3 tầng chữ L, từ đặc điểm thiết kế, ưu nhược điểm, các mẫu nhà thịnh hành cho đến giải pháp bố trí công năng và chi phí thiết kế, thi công. Hy vọng qua bài viết này đã mang đến cho các bạn những kiến thức hữu ích, tìm kiếm và lựa chọn cho riêng mình một phương án thiết kế thi công nhà phù hợp cho gia đình trong tương lai. Và nếu cần hỗ trợ tư vấn và báo giá thiết kế thi công biệt thự miễn phí, thì đừng quên liên hệ trực tiếp cho NEOHouse để được kiến trúc sư hỗ trợ mình nhé!