Biệt thự 3 tầng mái bằng mang đến không gian sống hiện đại, nơi mà kiến trúc sư có thể thỏa sức sáng tạo hình khối và tối ưu công năng theo nhu cầu sử dụng thực tế của chủ đầu tư. Với thiết kế linh hoạt, thẩm mỹ cao và phù hợp với xu hướng kiến trúc của thời đại, loại hình biệt thự này ngày càng được nhiều gia đình quan tâm và xây dựng cho tổ ấm của mình. Do đó, dưới đây NEOHouse giới thiệu đến các bạn cùng tham khảo những mẫu biệt thự 3 tầng mái bằng đẹp, ấn tượng nhất để giúp gia đình mình có thể lựa chọn được một tổ ấm thích hợp trong tương lai.
Có thể bạn quan tâm: 25+ Mẫu Biệt Thự 2 Tầng Mái Bằng Đẹp Hiện Đại Mới 2025
Đặc trưng kiến trúc của biệt thự 3 tầng mái bằng
Mẫu biệt thự 3 tầng mái bằng là loại hình nhà ở cao cấp mang đậm tinh thần kiến trúc đương đại, nổi bật bởi hình khối kiến trúc cân đối, kết cấu vững chắc và tư duy bố trí không gian mở. Không chỉ đơn thuần là giải pháp nâng tầng để tăng diện tích sử dụng, biệt thự 3 tầng mái bằng còn thể hiện gu thẩm mỹ, lối sống và cá tính riêng của gia chủ thông qua từng chi tiết thiết kế.
Hình khối kiến trúc vuông vức, mạch lạc
Một trong những đặc trưng dễ nhận thấy nhất của biệt thự 3 tầng mái bằng là kiến trúc sở hữu hình khối mạnh mẽ, thường được tạo thành từ các khối hộp vuông hoặc chữ nhật xếp chồng, đan xen và giật cấp có chủ ý. Cách tổ chức này tạo nên công trình trông cân đối, dứt khoát, đồng thời tạo chiều sâu cho mặt tiền. Kiến trúc sư có thể linh hoạt xử lý các mảng đặc – rỗng, ban công, logia để tăng tính thẩm mỹ và giảm cảm giác nặng nề của công trình cao tầng.

Kết cấu mái bằng hiện đại, đa năng
Khác với mái dốc truyền thống, mái bằng trong biệt thự 3 tầng được thiết kế bằng bê tông cốt thép, đảm bảo kết cấu chịu lực và tuổi thọ cao. Phần mái ngoài việc che chắn mà còn có thể được tận dụng làm không gian sử dụng như sân thượng, vườn trên cao, khu thư giãn, khu BBQ hoặc bố trí phòng kỹ thuật. Đây là một điểm cộng lớn, đặc biệt trong bối cảnh xu hướng sống xanh và tối ưu diện tích ngày càng được quan tâm.

Ưu tiên không gian mở và ánh sáng tự nhiên
Kiến trúc biệt thự 3 tầng mái bằng thường được ưu tiên thiết kế theo hướng mở rộng tối đa, sử dụng nhiều hệ cửa kính lớn, vách kính hoặc lan can kính. Điều này giúp công trình tận dụng triệt để nguồn ánh sáng tự nhiên, tăng khả năng thông gió và tạo sự kết nối giữa không gian bên trong và cảnh quan thiên nhiên bên ngoài. Các khoảng thông tầng, giếng trời cũng được khai thác bố trí một cách khoa học để đưa ánh sáng và không khí lan tỏa đều khắp các tầng.

Vật liệu hoàn thiện đương đại
Những mẫu nhà biệt thự 3 tầng mái bằng cho phép sử dụng đa dạng vật liệu như bê tông, kính, thép, gỗ, đá tự nhiên hoặc vật liệu hoàn thiện mới. Việc kết hợp khéo léo các vật liệu này góp phần nâng cao giá trị thẩm mỹ mà còn giúp công trình phù hợp hơn với điều kiện khí hậu và nhu cầu sử dụng thực tế. Hơn nữa, khi kết hợp cùng các gam màu trung tính như trắng, xám, be, nâu gỗ thường được ưu tiên để làm nổi bật vẻ đẹp hiện đại và tinh tế.

Phù hợp đa dạng phong cách kiến trúc
Nhờ hình thức mái bằng có kết cấu linh hoạt, biệt thự 3 tầng có thể dễ dàng ứng dụng nhiều phong cách khác nhau như hiện đại, tân cổ điển cách tân, Tropical hay phong cách tối giản. Dù theo xu hướng nào, mái bằng vẫn đóng vai trò là “nền tảng” giúp kiến trúc sư sáng tạo không gian sống vừa thẩm mỹ, vừa đáp ứng đầy đủ công năng.

Tổng thể, đặc trưng kiến trúc của biệt thự 3 tầng mái bằng nằm ở sự kết hợp hài hòa giữa hình khối hiện đại, công năng khoa học và khả năng thích ứng cao với nhu cầu sống mới hiện nay. Đây chính là lý do loại hình biệt thự này ngày càng được nhiều gia chủ lựa chọn trong các khu đô thị và khu dân cư cao cấp.
Ưu điểm và hạn chế của biệt thự 3 tầng mái bằng
Nhà biệt thự 3 tầng mái bằng là loại hình nhà ở được nhiều gia chủ quan tâm bởi vẻ đẹp cách tân hiện đại và tối ưu không gian sống vượt trội. Tuy nhiên, bên cạnh những lợi thế đó, loại hình kiến trúc này cũng tồn tại một số điểm hạn chế nhất định mà gia chủ cần cân nhắc kỹ trước khi lựa chọn.
Ưu điểm
- Tối ưu diện tích sử dụng và công năng sinh hoạt: Với kết cấu 3 tầng, biệt thự mái bằng đáp ứng nhu cầu sinh hoạt của gia đình đông thành viên hoặc nhiều thế hệ. Không gian được tận dụng theo chiều cao, tận dụng tối đa quỹ đất, đặc biệt phù hợp với các khu đô thị có diện tích xây dựng hạn chế.
- Kiến trúc hiện đại, thẩm mỹ cao: Biệt thự 3 tầng mái bằng sở hữu hình khối vuông vức, đường nét rõ ràng, mang đến cảm giác kiên cố, trẻ trung và thời thượng. Kiểu mái này dễ dàng kết hợp với các phong cách kiến trúc như hiện đại, tối giản, tân cổ điển cách tân hay Tropical, giúp gia chủ lựa chọn phong cách theo sở thích và ngân sách đầu tư của gia đình.
- Tận dụng mái làm không gian chức năng: Một trong những ưu điểm nổi bật của mái bằng là khai thác không gian phía trên. Gia chủ có thể bố trí sân thượng, tiểu cảnh xanh, khu vực thư giãn, khu BBQ,… Điều này không chỉ gia tăng diện tích sử dụng mà còn nâng cao chất lượng sống.
- Thuận lợi ứng dụng công nghệ và giải pháp xanh: Mái bằng rất phù hợp để lắp đặt hệ thống năng lượng mặt trời, bồn nước, hệ thống chống nóng hoặc mái xanh. Đây là giải pháp được nhiều gia đình hiện đại quan tâm nhằm tiết kiệm năng lượng và hướng đến lối sống thân thiện với môi trường.

Hạn chế
- Yêu cầu kỹ thuật thi công cao: Hình thức mái bằng đòi hỏi quá trình thi công chính xác, đặc biệt là các hạng mục chống thấm và thoát nước. Nếu xử lý không đúng kỹ thuật, hệ mái rất dễ xảy ra tình trạng thấm nước, đọng nước hoặc nứt bề mặt sau thời gian sử dụng.
- Khả năng hấp nhiệt lớn: So với mái dốc, mái bằng có xu hướng hấp thụ nhiệt nhiều hơn. Nếu không có giải pháp cách nhiệt phù hợp như chống nóng mái, trồng cây xanh hoặc sử dụng vật liệu cách nhiệt, không gian bên dưới có thể bị nóng, ảnh hưởng đến sự thoải mái trong quá trình sinh hoạt.
- Đòi hỏi thiết kế chuẩn chỉnh để tránh cảm giác nặng nề: Nếu hình khối không được xử lý khéo léo, biệt thự 3 tầng mái bằng có thể tạo cảm giác khô cứng hoặc nặng nề về thị giác. Do đó, thiết kế cần có sự cân đối giữa mảng đặc – rỗng, kết hợp ban công, cây xanh và vật liệu phù hợp.

Tổng hợp mẫu biệt thự 3 tầng mái bằng đẹp thịnh hành nhất
Phương án thiết kế biệt thự 3 tầng mái bằng ngày càng đa dạng về phong cách, quy mô và công năng sử dụng, đáp ứng trọn vẹn về tính thẩm mỹ cũng như nhu cầu sử dụng của từng gia đình. Từ những công trình mang hơi thở kiến trúc đương đại, tối giản cho đến những phương án thiết kế kế hợp sân vườn hay hồ bơi thư giãn, mỗi công trình đều thể hiện dấu ấn kiến trúc riêng biệt. Vì thế, dưới đây là tổng hợp các mẫu biệt thự 3 tầng mái bằng đẹp và được ưa chuộng nhất hiện nay được NEOHouse chọn lọc gửi đến các bạn cùng tham khảo để có thêm phương án thiết kế cho tổ ấm của gia đình mình.
Biệt thự 3 tầng mái bằng hiện đại
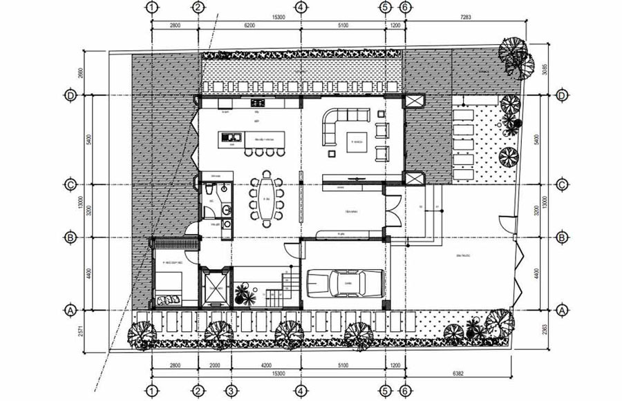
Dự án biệt thự 3 tầng mái bằng phong cách hiện đại được NEOHouse JSC triển khai cho gia đình chủ đầu tư Chị Nga tại Củ Chi, TP. Hồ Chí Minh trên khu đất có kích thước 9x14m. Công trình được triển khai theo phong cách kiến trúc hiện đại, tập trung vào hình khối mạnh mẽ, bố cục mạch lạc và tận dụng tối ưu ánh sáng tự nhiên, mang đến không gian sống hiện đại và tiện nghi cho gia chủ.

Ngoại thất kiến trúc sử dụng các lớp vật liệu hiện đại kết hợp những mảng khối nhô ra, thụt vào, tạo nên bức tranh kiến trúc ấn tượng và bắt mắt. Mặt tiền tầng trệt được ốp đá tự nhiên tạo cảm giác chắc chắn, trong khi các tầng trên sử dụng gạch ốp tường và kính cường lực để gia tăng hiệu ứng mở, giúp ngôi nhà trông nhẹ nhàng và tinh tế hơn rất nhiều. Hệ cửa kính lớn không chỉ tạo điểm nhấn mà còn giúp tối ưu ánh sáng và thông gió toàn bộ không gian nội thất.

Công năng tầng trệt được bố trí là không gian sinh hoạt chung, đóng vai trò trung tâm kết nối các thành viên trong gia đình. Ngay từ sảnh chính bước vào là khu vực phòng khách rộng rãi, thiết kế thông thoáng với tầm nhìn hướng ra bên ngoài, tận dụng tối đa ánh sáng tự nhiên. Phòng khách liên thông với khu bếp và phòng ăn, tạo nên không gian mở, thuận tiện cho sinh hoạt hàng ngày cũng như tiếp đón khách.
Ngoài ra, tầng trệt còn được bố trí gara ô tô riêng biệt, đảm bảo thuận tiện trong quá trình di chuyển mà không ảnh hưởng đến không gian sinh hoạt chung. Khu vực vệ sinh chung được đặt khéo léo, kín đáo nhưng vẫn dễ tiếp cận.



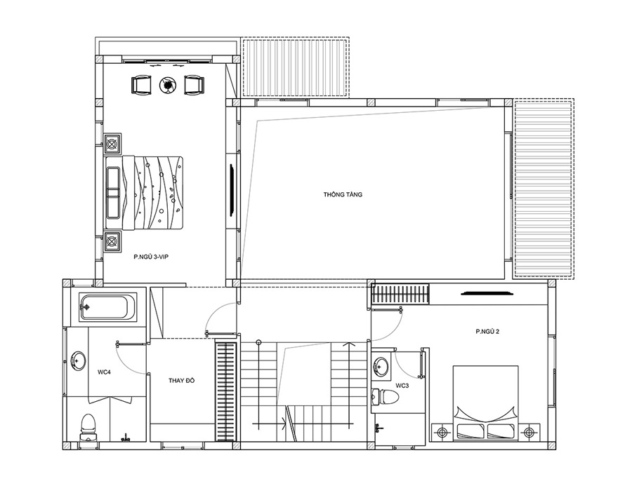
Mặt bằng lầu 2 được định hướng là không gian nghỉ ngơi riêng tư, nơi bố trí các phòng ngủ chính của gia đình. Theo đó, phòng ngủ master được ưu tiên diện tích lớn, có cửa sổ và ban công riêng lấy sáng và thông gió tự nhiên. Không gian này còn tích hợp phòng vệ sinh khép kín, mang lại sự tiện nghi và riêng tư tuyệt đối cho gia chủ.

Bên cạnh đó, các phòng ngủ phụ được bố trí hợp lý, đảm bảo sự thoải mái cho các thành viên khác trong gia đình. Mỗi phòng đều có cửa sổ lớn hướng ra bên ngoài, giúp không gian luôn thông thoáng và dễ chịu. Khu vực vệ sinh chung tầng 2 được đặt ở vị trí thuận tiện, phục vụ nhu cầu sinh hoạt hàng ngày.

Có thể bạn quan tâm: 55+ Mẫu Biệt Thự 3 Tầng Mái Thái Hiện Đại Đẹp Nhất 2025
Mẫu biệt thự 3 tầng mái bằng tân cổ điển
Mẫu biệt thự 3 tầng mái bằng phong cách tân cổ điển được NEOHouse thiết kế cho gia đình anh Thắng tại Tiền Giang trên khu đất vuông vắn 150m2/sàn. Kiến trúc được triển khai chú trọng đến sự cân đối, hài hòa và có tính thẩm mỹ cao, kết hợp sân vườn, cổng tường rào bao quanh, tạo nên tổng thể vô cùng sang trọng và tiện nghi cho không gian sống.

Phương án thiết kế được định hình ngay từ đầu là phong cách tân cổ điển, do đó các đặc trưng về kiến trúc đối xứng, phào chỉ tinh tế và cột trụ mặt tiền mang tính trang trí đậm chất cổ điển nhưng tiết chế để phù hợp với nhịp sống hiện đại. Điểm xuyết cùng gam màu trắng chủ đạo, kết hợp các gam màu trung tính khác, đặc biệt là màu đen của khung cửa và lan can, làm nổi bật cấu trúc và thu hút mạnh mẽ mọi ánh nhìn.

Mặt bằng tầng trệt bố trí bao gồm gara để xe, khu vực bếp và phòng ăn, 1 phòng ngủ giúp việc, 1 phòng kho và WC. Các khu vực chức năng được phân chia rõ ràng nhưng vẫn đảm bảo sự liên thông cần thiết.

Công năng lầu 1 được thiết kế gồm có 1 phòng khách, 1 phòng ngủ Master, WC và ban công. Sảnh chính đóng vai trò là không gian chuyển tiếp giữa bên ngoài và bên trong, có thể bố trí thêm tủ giày hoặc ghế chờ nhỏ. Phòng khách nằm ở vị trí trung tâm, rộng rãi và thoải mái, phù hợp cho tiếp đón khách và sinh hoạt chung. Phòng ngủ Master được đặt phía sau phòng khách, ngăn cách bằng một hành lang nhỏ, đảm bảo sự riêng tư. Phòng ngủ có diện tích hợp lý, tích hợp WC riêng, đáp ứng đầy đủ nhu cầu sử dụng của gia chủ.

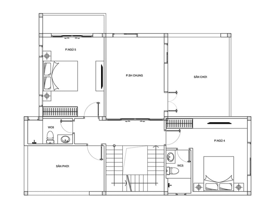
Mặt bằng lầu 2 gồm phòng sinh hoạt chung (SHC), 2 phòng ngủ, WC và ban công. Phòng SHC được bố trí tại vị trí trung tâm, đóng vai trò kết nối các không gian trên tầng. Hai phòng ngủ có diện tích tương đương nhau, mỗi phòng đều được bố trí WC riêng, đảm bảo sự tiện nghi và riêng tư cho người sử dụng.

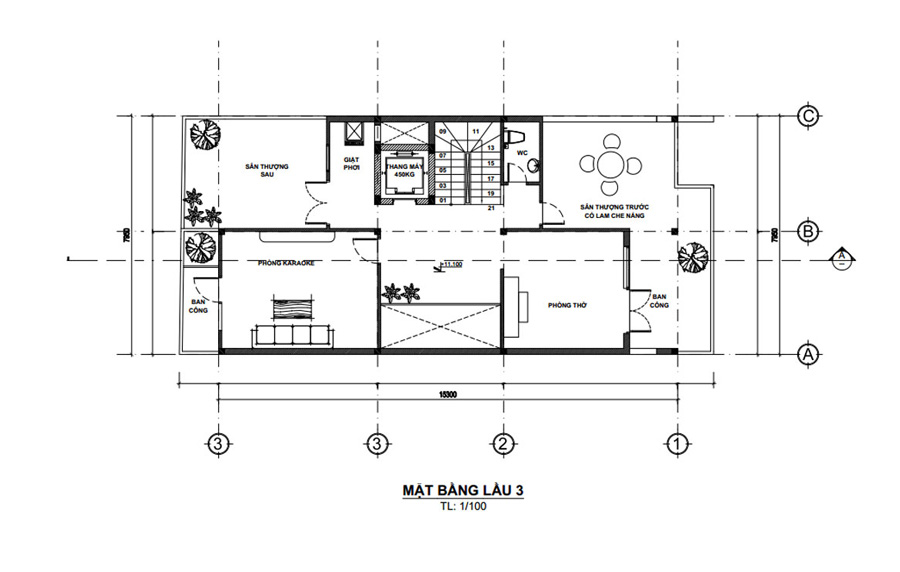
Tầng tum bao gồm phòng tiền tế, phòng thờ, phòng giặt phơi, phòng kho, phòng kỹ thuật và ban công. Do đặc thù là tầng cao nhất của ngôi nhà, không gian tâm linh được ưu tiên bố trí tại đây. Phòng tiền tế và phòng thờ được thiết kế trang nghiêm, ấm cúng, phù hợp với mong muốn của gia chủ. Các khu vực phụ trợ như giặt phơi, kho và phòng kỹ thuật được sắp xếp hợp lý, đảm bảo công năng sử dụng mà vẫn giữ sự đồng bộ về phong cách nội thất với toàn bộ căn biệt thự.
Thiết kế biệt thự 3 tầng mái bằng phong cách Tropical
Thiết kế biệt thự 3 tầng mái bằng phong cách Tropical tọa lạc tại Đồng Nai, diện tích đất 15x25m và diện tích xây dựng khoảng 580m2. Với đặc trưng của phong cách Tropical, công trình mang lại cảm giác thư thái, hòa quyện với thiên nhiên thông qua cây xanh, yếu tố nước và vật liệu tự nhiên đặc trưng.


Ngắm nhìn tổng thể công trình, căn biệt thự 3 tầng mái bằng này gây sự chú ý bởi cửa kính lớn full-trần, vật liệu gỗ ấm, cây nhiệt đới như Monstera, dương xỉ,… được bố trí xuyên suốt, đem lại cảm giác nghỉ dưỡng như một resort tại gia. Kiến trúc được phát triển từ hình khối hiện đại kết hợp yếu tố nhiệt đới, sử dụng vật liệu đá ốp màu xám, vật liệu giả gỗ và cây xanh để mang đến hiệu ứng thẩm mỹ tổng thể hài hòa, gần gũi. Từ ngoại thất đến nội thất đều ưu tiên sự thông thoáng, kết nối với thiên nhiên và yếu tố thư giãn, phản ánh đúng tinh thần nghỉ dưỡng của phong cách Tropical.


Công năng tầng trệt được bố trí là không gian sinh hoạt và thư giãn chính của các thành viên trong gia đình, mặt bằng bố trí gồm có phòng khách liên thông bếp – ăn và bếp phụ, tạo sự thuận tiện trong sinh hoạt hàng ngày. Các khu chức năng phụ trợ như phòng kho, WC và phòng kỹ thuật được sắp xếp khoa học, kín đáo. Điểm nhấn nổi bật của tầng trệt là khu vực hồ bơi, khu relax và phòng tắm ngoài trời, mang đậm tinh thần nghỉ dưỡng Tropical, giúp không gian luôn thoáng mát và gần gũi thiên nhiên.



Lầu 1 là khu vực nghỉ ngơi riêng tư của gia đình, bố trí phòng sinh hoạt chung ở vị trí trung tâm, kết nối các không gian. Lầu này gồm có 3 phòng ngủ, trong đó có 1 phòng ngủ master, mỗi phòng đều được trang bị WC riêng, đảm bảo sự tiện nghi và thoải mái.


Mặt bằng công năng lầu 2 được thiết kế đa chức năng, phục vụ nhu cầu giải trí và sinh hoạt nâng cao bao gồm có phòng giải trí, phòng gym, phòng thờ và phòng ngủ khách. Bên cạnh đó là các không gian phụ trợ như phòng kho, phòng giặt sấy, phòng giúp việc và WC. Khu BBQ ngoài trời trên lầu 2 là điểm nhấn, tạo không gian tụ họp, thư giãn lý tưởng cho gia đình và bạn bè.


Mẫu biệt thự mái bằng 3 tầng có gara
Thiết kế biệt thự 3 tầng mái bằng có gara hiện đại tại LaGi, Bình Thuận là công trình được NEOHouse thiết kế cho gia đình anh Tuấn. Kiến trúc được định hướng theo phong cách hiện đại, thiết kế mái bằng và nhấn mạnh vào bố cục hình khối đơn giản mà tinh tế, đồng thời tối ưu công năng sử dụng khoa học cùng không gian sống thoáng đãng, phù hợp nhu cầu sinh hoạt mà gia đình hướng đến.

Tổng thể biệt thự 3 tầng mái bằng này sở hữu bố cục hình khối vuông vức và bố cục mạch lạc. Phần gara được tích hợp khéo léo ngay trong tổng thể kiến trúc tầng trệt, không chỉ đơn thuần là không gian để xe, gara còn đóng vai trò quan trọng trong việc nâng cao chất lượng sống cho gia đình. Việc bố trí gara một cách khoa học mang đến sự thuận tiên trong quá quá trình di chuyển, an toàn, đồng thời góp phần giữ cho không gian sinh hoạt bên trong luôn ngăn nắp, mạch lạc.

Mẳt bằng tầng trệt được sắp xếp bao gồm không gian sinh hoạt chung là phòng khách, khu vực bếp – ăn liên thông với nhau, tạo sự rộng rãi và tiện nghi trong quá trình sinh hoạt hằng ngày. Không gian này được ngăn cách linh hoạt bằng tiểu cảnh xanh để tăng tính mảng xanh, bầu không khí trong lành. WC chung được bố trí gần khu bếp để thuận tiện cho sử dụng, đồng thời tối ưu diện tích hiệu quả cho tầng trệt.

Công năng lầu 1 là không gian nghỉ ngơi chính của gia đình, bố trí có 3 phòng ngủ, trong đó một phòng ngủ Master lớn. Thiết kế logic và tiết chế hành lang giúp tầng này vừa đảm bảo riêng tư vừa giữ tính kết nối giữa các không gian phòng ngủ với ban công và đón sáng tự nhiên từ bên ngoài.

Mặt bằng lầu 2 gồm có phòng thờ trang nghiêm, thiết kế không gian mở hướng ra trước mặt tiền. Kế bên là khu vực tập thể dục của gia đình, diện tích khá rộng rãi và thoáng đãng, góp phần nâng cao sức khỏe ngay tại nhà.

Thiết kế nhà biệt thự 3 tầng có hồ bơi
Mẫu biệt thự 3 tầng mái bằng có hồ bơi này được NEOHouse thiết kế cho gia đình chị Ngân tại Tây Ninh. Công trình sở hữu diện tích 160m2, kiến trúc được triển khai theo phong cách hiện đại, tối giản, hướng đến không gian nghỉ dưỡng và thư giãn cho gia đình.

Tổng thể công kiến trúc mặt tiền được tổ chức theo bố cục mở, kết hợp hài hòa giữa các mảng tường phẳng, ban công đua rộng và hệ cửa kính lớn. Các tầng được phân tách rõ ràng thông qua đường nét kiến trúc, giúp công trình có nhịp điệu rõ ràng và cân đối. Việc sử dụng mái bằng càng làm nổi bật tinh thần kiến trúc đương đại, mang đến diện mạo khỏe khoắn, trẻ trung và phù hợp với xu hướng thiết kế biệt thự hiện nay.

Điểm nhấn nổi bật trong phối cảnh kiến trúc là khu vực bể bơi ngoài trời được bố trí liền kề khối nhà. Bể bơi đóng vai trò như một “lớp không gian đệm”, làm mềm kiến trúc khối hộp mạnh mẽ của biệt thự, đồng thời mang đến cảm giác nghỉ dưỡng. Sự kết hợp giữa mặt nước, mảng xanh và kiến trúc hiện đại tạo nên một tổng thể hài hòa, giúp công trình vừa sang trọng vừa gần gũi với thiên nhiên.

Công năng tầng trệt của biệt thự 3 tầng mái bằng này bố trí bao gồm từ cổng chính đi vào là khu sân vườn rộng rãi trồng cây xanh, mở ra không gian mát mẻ đầu tiên của ngôi nhà. Tiếp đến là bể bơi được bố trí ngay bên hông, kết hợp ghế tựa và tiểu cảnh, tạo điểm giải trí lý tưởng. Không gian trong nhà gồm phòng khách đặt sát cửa chính, tạo điều kiện lấy sáng và gió tự nhiên tối đa, tiếp theo là gara xe máy và ô tô tích hợp, kế đến là khu bếp + ăn thiết kế khoa học và cuối cùng là phòng ngủ tiện nghi cho người lớn tuổi hoặc khách.

Lầu 1 bố trí 2 phòng ngủ có WC khép kín, đảm bảo không gian riêng tư cho các thành viên. Nằm sâu trong tầng là phòng giải trí karaoke gia đình và khu tập thể dục, phục vụ nhu cầu thư giãn và duy trì lối sống năng động.

Mặt bằng lầu 2 được thiết kế gồm có phòng ngủ Master diện tích rộng rãi, tích hợp phòng thay đồ, phòng xông hơi và WC khép kín, mang lại trải nghiệm nghỉ dưỡng cao cấp ngay tại nhà. Bên cạnh đó là phòng làm việc mở ra sân thượng trước nhà, nơi gia chủ có thể bố trí ghế sofa và cây xanh để thư giãn hoặc tiếp khách ngoài trời.

Bài viết liên quan: 25+ Mẫu Biệt Thự 3 Tầng Mái Lệch Đẹp Được Yêu Thích Nhất
Mẫu biệt thự nhà vườn 3 tầng mái bằng
Tiếp theo là phương án thiết kế biệt thự nhà vườn 3 tầng mái bằng tại Quận 2, TP. HCM, một dự án được kết hợp hài hòa giữa kiến trúc hiện đại và không gian cảnh quan xanh trên tổng diện tích 380m2. Thiết kế tập trung khai thác tối đa lợi thế sân vườn cùng kiến trúc mở, tạo nên môi trường sống thoáng đãng, tách biệt khỏi sự ồn ào của đô thị.


Tổng thể kiến trúc thiết kế khối nhà vuông vức, mạch lạc kết hợp ban công và hệ cửa kính có kích thước lớn, giúp công trình vừa có chiều sâu thẩm mỹ, vừa kết nối trực tiếp với không gian sân vườn xung quanh. Cùng các khoảng đệm cây xanh bố trí xen kẽ giữa các khối nhà, khiến kiến trúc trở nên gần gũi hơn rất nhiều cũng như gia tăng hiệu ứng thẩm mỹ sang trọng.

Bên cạnh đó, không gian sân vườn của mẫu biệt thự 3 tầng mái bằng này được thiết kế theo phong cách sân vườn Nhật Bản, đề cao sự tĩnh tại, cân bằng và mối liên kết hài hòa giữa con người với thiên nhiên. Khác với sân vườn nhiệt đới rậm rạp, sân vườn Nhật tập trung vào bố cục có kiểm soát, tối giản chi tiết nhưng giàu chiều sâu cảm xúc.


Mặt bằng tầng trệt bố trí bao gồm có: phòng khách, phòng bếp – ăn, gara để xe, wc chung, 1 phòng ngủ cho người giúp việc.

Công năng lầu 1 thiết kế với 3 phòng ngủ, trong đó 1 phòng ngủ master và 2 phòng ngủ cho các con, phòng ngủ master có diện tích lớn, tích hợp thêm phòng vệ sinh và phòng thay đồ khép kín. Còn 2 phòng ngủ cho các con đặt cạnh nhà vệ sinh chung nên cũng rất tiện lợi cho nhu cầu sinh hoạt hằng ngày.
Mặt bằng lầu 2 thiết kế với các không gian chức năng linh hoạt, bao gồm phòng thờ, khu vực giặt, khu vực tập thể dục và không gian sân thượng.
Biệt thự 3 tầng mái bằng có sân thượng
Phương án thiết kế biệt thự 3 tầng mái bằng có sân thượng này là sự kết hợp hoàn hảo giữa phong cách hiện đại và kiến trúc Tropical được NEOHouse lên ý tưởng – triển khai cho gia đình anh Phong tại Quảng Nam. Tổng diện tích của ngôi nhà khá lớn, hơn 460m2 theo hướng không gian mở, gần gũi thiên nhiên nhưng vẫn đảm bảo sự tiện nghi, riêng tư và thư thái mỗi ngày.


Điểm nhấn của kiến trúc nằm ở tư duy không gian mở và kết nối xuyên suốt. Với diện tích xây dựng lớn, kiến trúc sư NEOHouse khai thác triệt để yếu tố mở giữa các không gian chức năng và cảnh quan xung quanh. Toàn bộ ngôi nhà được bao quanh bởi sân vườn xanh mát, tiểu cảnh đa dạng và mặt nước tĩnh lặng, mang đến cảm giác trong lành, tươi mới và thư thái mỗi ngày. Hệ cửa kính lớn ở khắp các tầng mở rộng tầm nhìn ra ngoài, đảm bảo ánh sáng tự nhiên và gió trời tràn ngập không gian nội thất.


Tổng thể kiến trúc biệt thự 3 tầng mái bằng có sân thượng vẫn theo phong cách hiện đại chủ đạo, được tiết giảm chi tiết trang trí để đạt được sự tinh giản nhưng không đơn điệu. Các mảng tường trắng, khối vuông vức cùng vật liệu mới như kính, đá và gỗ được phối hợp ăn ý, hài hòa, tạop nên tổng thể tinh tế, tươi sáng và thoáng đãng. Còn yếu tố kiến trúc Tropical được thể hiện qua các khoảng hiên, mảng xanh bao quanh, mặt nước tĩnh và ánh sáng tự nhiên, gợi mở sự giao hòa giữa trong và ngoài nhà. Kết quả là một không gian sống hiện đại nhưng vẫn gần gũi thiên nhiên và mang tính nghỉ dưỡng cao.


Bên cạnh các không gian sinh hoạt chính, ngôi nhà còn được chú trọng tạo ra các khu vực thư giãn riêng tư và giải trí đẳng cấp. Biệt thự sở hữu phòng trà với không gian mở kính lớn kết nối trực tiếp cảnh quan sân vườn, là nơi lý tưởng để gia chủ thưởng trà, ngắm cảnh và tận hưởng bầu không khí trong lành. Cùng với phòng karaoke cách âm tốt đáp ứng nhu cầu giải trí cuối tuần. Còn khu vực sân thượng rộng rãi được bố trí cây xanh và khu vực hóng mát, mang lại nơi thư giãn ngoài trời giữa nhịp sống hiện đại.

Thiết kế biệt thự 3 tầng mái bằng mặt tiền 8m
Mẫu biệt thự 3 tầng mái bằng mặt tiền 8m hiện đại này được NEOHouse thiết kế cho gia đình chú Tịnh tại Quận Sơn Trà, TP. Đà Nẵng. Công trình có diện tích 8x15m, quy mô 3 tầng có thêm tầng tum, kiến trúc hướng đến sự tối giản, ưu tiên không gian sống hiện đại, tiện nghi nhưng vẫn đảm bảo yếu tố thẩm mỹ sang trọng cùng công năng khoa học, chuẩn phong thủy.

Đối với những công trình có mặt tiền 8m khá hạn chế, do đó kiến trúc sư NEOHouse đã phát triển kiến trúc theo phong cách hiện đại, nhấn mạnh bố cục hình khối vuông vức, mặt đứng mở rộng và xử lý tỷ lệ mảng miếng một cách tinh tế. Vật liệu ngoại thất được phối hợp giữa các mảng tường sơn sáng, đá ốp trang trí và hệ lam gỗ nhựa, mang đến sự cân bằng giữa nét cứng cáp của kiến trúc và cảm giác ấm áp, gần gũi. Lan can kính cường lực và hệ cửa kính lớn được sử dụng xuyên suốt các tầng, vừa mở rộng tầm nhìn, vừa tăng khả năng lấy sáng và thông gió tự nhiên cho không gian sống bên trong.

Về công năng sử dụng, tầng trệt của mẫu biệt thự 3 tầng mặt tiền 8m bố trí gara ôtô ngay phía trước, nằm song song với không gian phòng khách rộng rãi ngay sau cửa chính để tận dụng tối đa ánh sáng tự nhiên. Tiến vào bên trong là tiểu cảnh xanh và cầu thang thông tầng, kế đến là khu bếp – bàn ăn thông thoáng với lối ra sân sau, cùng WC chung tiện ích.




Lầu 1 và tầng 2 đều bố trí 2 phòng ngủ lớn, mỗi phòng đều có phòng thay đồ riêng và WC khép kín, đồng thời đều có lối ra ban công để nhận gió – sáng tự nhiên. Giữa tầng là không gian thông tầng và một khu học tập/ sinh hoạt chung linh hoạt.



Tầng tum là không gian giải trí và tiện ích đa chức năng với phòng karaoke, khu giặt – phơi và sân thượng trước sau. Không gian phòng thờ được đặt hướng ra ban công trước nhà, đảm bảo yếu tố phong thủy, ánh sáng và tạo một nơi trang nghiêm, tĩnh lặng. Trên sân thượng trước còn bố trí bộ bàn trà thư giãn, kết hợp lam che nắng để gia chủ có thể kết nối không gian ngoài trời.

Biệt thự 3 tầng mái bằng mặt tiền 10m
Dự án biệt thự 3 tầng mái bằng mặt tiền 10m này là công trình được NEOHouse thiết kế cho gia đình anh Châu Quận Bình Tân, TP. Hồ Chí Minh. Tổng diện tích khu đất 10x20m, diện tích xây dựng 8x19m, diện tích còn lại được tận dụng làm lối đi cũng như sân vườn, gara để xe, đáp ứng đầy đủ các yêu cầu về công năng, tính thâm mỹ kiến trúc cùng yếu tố gần gũi thiên nhiên.

Phối cảnh biệt thự 3 tầng mái bằng mặt tiền 10m thể hiện rõ phong cách hiện đại, đơn giản mà sang trọng. Mặt tiền tầng trệt sử dụng các mảng tường phẳng ốp đá tự nhiên màu tối, tạo cảm giác chắc chắn và bề thế, đồng thời thiết kế cửa cuốn hiện đại cho khu vực gara ôtô, mang đến sự tiện nghi tối đa cho gia chủ. Ban công lầu 1 đua ra rộng hơn tầng trệt khoảng 2m, kết hợp lan can kính cường lực và những chậu cây cảnh trang trí, giúp công trình trở nên sinh động và giàu tính thẩm mỹ.

Phối cảnh lầu 2 tiếp tục được mở rộng với ban công bê tông khá rộng, tạo điều kiện cho không gian tiểu cảnh, nơi trồng cây hoặc khu vực thư giãn ngoài trời. Hệ lam sắt được bố trí linh hoạt để đón gió và lấy sáng, mang đến cảm giác thoáng mát và gia tăng hiệu ứng thẩm mỹ cho tổng thể. Nhìn từ xa, công trình toát lên vẻ đơn giản, vững chãi và kiến cố, phù hợp với phong cách kiến trúc hiện đại mà vẫn ưu tiên công năng sử dụng.

Mặt bằng tầng trệt: Gara ôtô rộng rãi, phòng khách, sảnh giữa có chỗ đặt piano, khu bếp – bàn ăn với quầy bar mini, sảnh hậu ra sân sau và WC chung.

Công năng lầu 1: Sảnh tầng, 3 phòng ngủ đều có ban công riêng biệt, phòng ngủ master còn tích hợp thêm phòng thay đồ và nhà vệ sinh chung. Trung tâm nhà là khu vực sảnh tầng, gia chủ tận dụng bố trí khu vực học tập và phòng vệ sinh chung.

Lầu 2: Bố trí 1 phòng ngủ, phòng thờ, WC chung, khu giặt phơi và sân thượng. Phòng thờ được bố trí gần sân thượng trước để đón sáng tự nhiên và thiết kế trang nghiêm.

Mẫu biệt thự 3 tầng mái bằng mặt tiền 15m
Dụ án thiết kế biệt thự 3 tầng mái bằng mặt tiền 15m hiện đại này được NEOHouse triển khai cho chủ đầu tư là chị Trang tại Phú Quốc. Côn trình tạo dấu ấn mạnh mẽ nhờ hình khối kiến trúc phóng khoáng và bố cục mặt đứng đầy sáng tạo. Với lợi thế chiều ngang lớn, tạo điều kiện cho công trình thể hiện trọn vẹn sự bề thế, cao ráo đồng thời cho phép kiến trúc sư khai thác các mảng khối bất đối xứng, giật cấp linh hoạt, mang đến diện mạo sang trọng và thời thượng.

Kiến trúc biệt thự được phát triển theo phong cách hiện đại, tập trung làm nổi bật đường nét dứt khoát và tỷ lệ hài hòa giữa các khối nhà. Bảng màu trung tính như xám, trắng, kem kết hợp cùng các chi tiết nhấn tối màu giúp tổng thể công trình trở nên tinh tế, thanh lịch và có chiều sâu thị giác. To điểm cùng hệ cửa kính lớn được sử dụng xuyên suốt mặt tiền, vừa tăng tính thẩm mỹ vừa hỗ trợ lấy sáng tự nhiên một cách triệt để.

Trên khu đất có diện tích khoảng 300m2, biệt thự 3 tầng mái bằng mặt tiền 15m được bố trí công năng khoa học, đáp ứng đầy đủ nhu cầu sinh hoạt của gia đình đông thành viên. Các không gian được phân chia rõ ràng theo từng tầng, đảm bảo sự tiện nghi trong sinh hoạt chung và sự riêng tư cần thiết trong nghỉ ngơi.
Mặt bằng công năng tầng trệt: Bố trí 1 phòng khách, phòng ăn – bếp, 1 phòng ngủ + WC, WC chung.

Công năng lầu 1: có 2 phòng ngủ, trong đó 1 phòng ngủ master có diện tích rộng lớn, tích hợp phòng thay đồ và phòng vệ sinh riêng, phòng ngủ còn lại cũng được tích hợp phòng vệ sinh khép kín.

Mặt bằng công năng lầu 2: bố trí 2 phòng ngủ, trong đó 1 phòng ngủ có nhà vệ sinh riêng, WC chung, khu vực sân phơi, phòng sinh hoạt chung.

Các lưu ý khi thiết kế biệt thự 3 tầng mái bằng
Để thiết kế biệt thự 3 tầng mái bằng đẹp, sang trọng và tiện nghi, chủ đầu tư cần xem xét cũng như cân nhắc kỹ lưỡng nhiều yếu tố ngay từ giai đoạn lên ý tưởng. Không chỉ dừng lại ở hình thức kiến trúc, quá trình thiết kế cần được lập kế hoạch một cách tổng thể, hài hòa giữa công năng, kỹ thuật xây dựng, cảnh quan và phong thủy.
- Quy hoạch tổng thể khu đất hợp lý: Theo đó, gia chủ cần xác định vị trí xây dựng biệt thự, sân vườn, lối đi, gara và các tiện ích ngoài trời ngay từ đầu để đảm bảo sự hài hòa và thuận tiện trong sử dụng. Biệt thự nên đặt ở vị trí cân đối trên khu đất, ưu tiên địa thế cao ráo, mặt tiền thông thoáng và hướng nhà phù hợp với tuổi mệnh gia chủ. Đối với khu đất méo hoặc khuyết góc, cần có giải pháp bố trí công trình phù hợp để khắc phục nhược điểm địa hình.
- Bố trí sân vườn và cảnh quan khoa học: Sân vườn đóng vai trò quan trọng trong việc tạo không gian sống trong lành và tôn lên giá trị kiến trúc của biệt thự. Các yếu tố như cây xanh, tiểu cảnh, hồ nước, non bộ cần được sắp xếp với mật độ hợp lý, tránh bố trí quá dày gây rối không gian hoặc ảnh hưởng đến phong thủy.
- Thiết kế mặt tiền phù hợp kiến trúc mái bằng: Mặt tiền biệt thự 3 tầng mái bằng nên được thiết kế theo phong cách hiện đại, tập trung vào hình khối, đường nét dứt khoát và tỷ lệ hài hòa. Việc lựa chọn màu sắc, vật liệu hoàn thiện như kính, đá ốp, lam kim loại hay gỗ trang trí cần được cân nhắc để vừa tạo điểm nhấn thẩm mỹ, vừa đảm bảo sự đồng bộ cho tổng thể công trình.
- Xác định quy mô và bố trí công năng hợp lý: Dựa vào số lượng thành viên và nhu cầu sử dụng để xác định diện tích xây dựng, số phòng và công năng từng khu vực. Các không gian sinh hoạt chung nên đặt ở tầng thấp, trong khi các tầng trên ưu tiên cho khu vực nghỉ ngơi, đảm bảo sự riêng tư và thuận tiện trong sinh hoạt hàng ngày.
- Kết cấu và khả năng chịu lực của công trình: Do mái bằng có trọng lượng lớn, cần được tính toán kỹ hệ móng, cột, dầm và tường chịu lực để đảm bảo an toàn và độ bền lâu dài cho biệt thự 3 tầng. Việc gia cố kết cấu phù hợp điều kiện địa chất khu đất là yêu cầu bắt buộc trong giai đoạn thiết kế.
- Chú trọng yếu tố phong thủy trong thiết kế: Khi thiết kế nhà ở, gia chủ phải quan tâm đến thế đất, hướng nhà, yếu tố sơn thủy và minh đường phù hợp với mệnh của mình để tạo sự cân bằng năng lượng cũng như mang lại may mắn, tài lộc và hạnh phúc. Trường hợp khu đất có hạn chế về phong thủy, cần có giải pháp thiết kế phù hợp để điều chỉnh và hóa giải.
- Lựa chọn đơn vị thiết kế uy tín, chuyên nghiệp: Một đơn vị thiết kế giàu kinh nghiệm sẽ giúp gia chủ có phương án kiến trúc phù hợp, hồ sơ thiết kế đầy đủ và dự toán chi phí chính xác. Gia chủ nên tham khảo các công trình thực tế, đánh giá năng lực và trao đổi rõ ràng về phạm vi công việc trước khi hợp tác.

Kinh nghiệm thi công biệt thự 3 tầng mái bằng
Để sở hữu một căn biệt thự 3 tầng mái bằng đẹp, chất lượng, đảm bảo tiến độ xây dựng và tối ưu chi phí, chủ đầu tư cần tham khảo một số kinh nghiệm thi công sau đây:
Chủ động lập kế hoạch tài chính chi tiết
Trước khi khởi công xây dựng, việc lập một kế hoạch tài chính chi tiết là bước tuyệt đối mà gia chủ không thể bỏ qua. Kiến trúc biệt thự 3 tầng mái bằng thường có chi phí đầu tư ở mức trung bình đến cao, phụ thuộc vào quy mô, vật liệu hoàn thiện và mức độ đầu tư nội thất. Do đó, gia chủ cần xác định rõ tổng mức đầu tư dự kiến, bao gồm chi phí thiết kế, thi công phần thô, hoàn thiện, nội thất và các khoản dự phòng phát sinh. Việc lập bảng kế hoạch tài chính chi tiết ngay từ đầu sẽ giúp chủ đầu tư lựa chọn phương án thiết kế phù hợp với khả năng tài chính, đồng thời kiểm soát chi phí theo từng giai đoạn thi công cũng như giúp quá trình xây dựng được diễn ra liên tục, tránh tình trạng gián đoạn do thiếu hụt tài chính.

Tham khảo các công trình thực tế trước khi thi công
Đối với những gia chủ chưa có nhiều kinh nghiệm xây dựng, việc tham khảo các công trình biệt thự 3 tầng mái bằng đã hoàn thiện là nguồn thông tin rất hữu ích. Thông qua thực tế, gia chủ có thể hình dung rõ hơn về quy mô công trình, tiến độ thi công, cách bố trí mặt bằng công năng và các giải pháp kỹ thuật phù hợp. Ngoài ra, việc tham khảo công trình thực tế còn giúp rút ra những kinh nghiệm về lựa chọn vật liệu, cách phối hợp màu sắc, cũng như những vấn đề thường phát sinh trong quá trình thi công để có phương án phòng tránh hiệu quả.

Chuẩn bị đầy đủ hồ sơ pháp lý và thủ tục xây dựng
Trước khi tiến hành thi công, chủ đầu tư cần hoàn thiện đầy đủ các thủ tục pháp lý theo quy định của pháp luật. Theo đó, hồ sơ xin phép xây dựng thường bao gồm giấy chứng nhận quyền sử dụng đất, hồ sơ thiết kế được phê duyệt, bản cam kết đảm bảo an toàn công trình và các giấy tờ liên quan khác theo yêu cầu của từng địa phương. Vì thế, việc chuẩn bị đầy đủ giấy tờ pháp lý ngay từ đầu giúp quá trình thi công diễn ra thuận lợi, tránh bị gián đoạn hoặc xử phạt do vi phạm quy định xây dựng.

Lựa chọn vật liệu hoàn thiện phù hợp
Một lưu ý cực kỳ quan trọng khi thi công biệt thự 3 tầng mái bằng hay bất kỳ loại hình nhà ở dân dụng, vật liệu hoàn thiện là một yếu tố quyết định đến diện mạo, chất lượng công trình và ảnh hưởng lớn đến chi phí đầu tư. Các vật liệu hiện đại được sử dụng phổ biến như kính, nhôm, đá ốp, gạch trang trí, gỗ công nghiệp hay vật liệu giả gỗ thường được sử dụng phổ biến cho biệt thự mái bằng. Và trên thị trường hiện nay cũng khá đa dạng về mẫu mã, kiểu dáng, chất lượng, thẩm mỹ và mức giá rẻ cho đến cao cấp. Do đó, chủ đầu tư dựa trên yếu tố thẩm mỹ, chất lượng và chi phí đầu tư mà đưa ra phương án lựa chọn tối ưu, tránh chạy theo xu hướng mà bỏ qua độ bền hoặc giá trị lâu dài.

Đảm bảo quy trình thi công mái bằng đúng kỹ thuật
Mái bằng là hạng mục đặc biệt quan trọng trong biệt thự 3 tầng, nó chịu tác động trực tiếp của thời tiết nên yêu cầu kỹ thuật thi công rất cao. Quá trình thi công mái cần được thực hiện đúng trình tự từ khâu chuẩn bị cốp pha, cốt thép, đổ bê tông đến chống thấm và chống nóng.
Trong quá trình đổ bê tông mái, gia chủ cần đảm bảo thi công liên tục, đúng kỹ thuật để tạo liên kết bền vững cho kết cấu. Sau khi hoàn thiện phần kết cấu, công tác chống thấm và cách nhiệt cần được chú trọng nhằm hạn chế tình trạng nứt, thấm dột và hấp thụ nhiệt, đồng thời tăng tuổi thọ công trình và nâng cao chất lượng không gian sống.

Giám sát chặt chẽ trong suốt quá trình thi công
Công tác giám sát đóng vai trò then chốt trong việc đảm bảo chất lượng và tiến độ thi công biệt thự 3 tầng mái bằng. Gia chủ có thể trực tiếp giám sát nếu có kiến thức chuyên môn hoặc thuê đơn vị tư vấn giám sát độc lập để theo dõi toàn bộ quá trình thi công.
Việc giám sát cần được thực hiện xuyên suốt từ giai đoạn chuẩn bị, thi công móng, thi công phần thô đến hoàn thiện. Mỗi hạng mục đều phải được nghiệm thu kỹ lưỡng trước khi chuyển sang giai đoạn tiếp theo nhằm hạn chế sai sót và phát sinh chi phí sửa chữa.

Lựa chọn nhà thầu thi công uy tín, giàu kinh nghiệm
Nhà thầu thi công là đơn vị trực tiếp biến bản vẽ thiết kế thành công trình thực tế, vì vậy việc lựa chọn nhà thầu uy tín, có kinh nghiệm thi công biệt thự mái bằng là yếu tố quyết định đến chất lượng công trình. Vì vậy mà gia chủ nên tìm hiểu kỹ năng lực nhà thầu thông qua các dự án đã thực hiện, đánh giá phản hồi từ khách hàng và trao đổi rõ ràng về phạm vi công việc, tiến độ, chi phí cũng như trách nhiệm của mỗi bên.

NEOHouse – Đơn vị thiết kế biệt thự 3 tầng mái bằng chuyên nghiệp
Với phương châm hoạt động “Độc đáo trong thiết kế – Chất lượng trong thi công” làm giá trị cốt lõi, NEOHouse từng bước khẳng định vị thế là đơn vị thiết kế biệt thự uy tín, được nhiều gia chủ tin tưởng lựa chọn. Mỗi công trình biệt thự 3 tầng mái bằng do NEOHouse thực hiện đều được nghiên cứu kỹ lưỡng từ ý tưởng kiến trúc, công năng sử dụng đến giải pháp kỹ thuật, nhằm tạo nên không gian sống thẩm mỹ, tiện nghi và phù hợp với nhu cầu thực tế của từng gia đình.

NEOHouse quy tụ đội ngũ kiến trúc sư, kỹ sư giàu kinh nghiệm, luôn cập nhật xu hướng thiết kế mới và linh hoạt trong cách tiếp cận từng dự án. Quá trình làm việc đề cao sự lắng nghe, tư vấn rõ ràng và đưa ra giải pháp tối ưu theo ngân sách đầu tư, giúp gia chủ kiểm soát chi phí mà vẫn đảm bảo giá trị thẩm mỹ và chất lượng công trình. Bên cạnh đó, hệ thống quy trình làm việc chuyên nghiệp cùng sự đồng bộ giữa thiết kế kiến trúc – nội thất – kỹ thuật là yếu tố giúp các dự án của NEOHouse đạt độ hoàn thiện cao khi triển khai thực tế.
Quy trình thiết kế biệt thự 3 tầng mái bằng tại NEOHouse
Quy trình thiết kế biệt thự 3 tầng mái bằng tại NEOHouse được xây dựng bài bản và chi tiết theo các bước nhằm đảm bảo mỗi công trình đạt chất lượng cao về thẩm mỹ, công năng và tính khả thi khi thi công. Từng bước trong quy trình đều được triển khai chặt chẽ, giúp khách hàng dễ dàng theo dõi, kiểm soát tiến độ và yên tâm trong suốt quá trình hợp tác.
Bước 1: Tiếp nhận nhu cầu và tư vấn định hướng
Đội ngũ kiến trúc sư NEOHouse tiếp nhận thông tin từ khách hàng về nhu cầu sử dụng, số lượng phòng, phong cách kiến trúc, mức đầu tư dự kiến và đặc điểm khu đất. Dựa trên cơ sở đó, kiến trúc sư sẽ tư vấn các phương án sơ bộ, định hướng phong cách và giải đáp các thắc mắc liên quan.
Bước 2: Khảo sát hiện trạng và ký kết hợp đồng thiết kế
Kiến trúc sư và kỹ thuật tiến hành khảo sát thực tế khu đất, đo đạc kích thước, đánh giá địa hình, hạ tầng xung quanh và các yếu tố ảnh hưởng đến thiết kế. Sau khi thống nhất phương án làm việc, hai bên ký hợp đồng để chính thức triển khai dự án.

Bước 3: Lên phương án mặt bằng và phối cảnh 3D ngoại thất
Kiến trúc sư sẽ lên phương án bố trí mặt bằng công năng chi tiết cho từng tầng, đảm bảo sự tiện nghi và phù hợp thói quen sinh hoạt của từng thành viên trong gia đình. Song song đó, phối cảnh 3D ngoại thất được dựng để khách hàng hình dung rõ tổng thể kiến trúc, hình khối và vật liệu của biệt thự 3 tầng mái bằng.
Bước 4: Triển khai hồ sơ thiết kế kỹ thuật thi công
Sau khi chốt phương án kiến trúc, NEOHouse triển khai đầy đủ hồ sơ kỹ thuật bao gồm kiến trúc, kết cấu, điện nước. Hồ sơ được thể hiện chi tiết, đầy đủ và cụ thể để đảm bảo phục vụ tốt cho quá trình thi công thực tế và hạn chế phát sinh.
Bước 5: Bàn giao hồ sơ thiết kế kiến trúc
Hồ sơ thiết kế được kiểm tra, rà soát kỹ lưỡng để đảm bảo sự thống nhất giữa các bộ phận với nhau trước khi bàn giao cho khách hàng. Đồng thời, NEOHouse hỗ trợ hồ sơ xin phép xây dựng theo quy định.

Bước 6: Thiết kế nội thất đồng bộ (nếu có nhu cầu)
Dựa trên phong cách kiến trúc đã thống nhất, NEOHouse tiếp tục triển khai thiết kế nội thất, từ không gian chính đến các khu vực chức năng khác, đảm bảo sự hài hòa và đồng nhất cho toàn bộ công trình.
Bước 7: Hoàn thiện và bàn giao hồ sơ nội thất
Hồ sơ nội thất được hoàn thiện, kiểm duyệt nhiều lần và khớp nối với hồ sơ kiến trúc, giúp việc thi công nội thất diễn ra thuận lợi và chính xác.
Bảng giá thiết kế biệt thự trọn gói tại NEOHouse
Chi phí thiết kế và thi công biệt thự 3 tầng mái bằng tại NEOHouse được xây dựng linh hoạt, dựa trên quy mô công trình, phong cách kiến trúc và mức độ đầu tư của từng gia chủ. Bảng giá được tư vấn minh bạch, chi tiết theo từng hạng mục, từ đó giúp khách hàng dễ dàng lựa chọn gói dịch vụ phù hợp ngân sách của mình. Cụ thể, đơn giá thiết kế dựa trên phong cách và tính theo diện tích m2.
| Phong cách kiến trúc | Đơn giá/m2 |
|---|---|
| 🔰️ Phong cách hiện đại | 🟢 90.000Đ – 110.000Đ/m2 |
| 🔰️ Phong cách tân cổ điển | 🟢 130.000Đ – 145.000Đ/m2 |
| 🔰️ Phong cách cổ điển | 🟢 155.000Đ – 170.000Đ/m2 |
Công ty NEOHouse cam kết báo giá minh bạch và chi tiết, hạn chế phát sinh ngoài dự kiến và hỗ trợ khách hàng trong việc tối ưu chi phí đầu tư ngay từ giai đoạn thiết kế. Nhờ đó, gia chủ có thể chủ động về tài chính và yên tâm khi triển khai xây dựng biệt thự trong thực tế.
Kết luận
Biệt thự 3 tầng mái bằng là lựa chọn lý tưởng cho những gia chủ yêu thích phong cách kiến trúc hiện đại, đề cao tính thẩm mỹ, công năng và sự tiện nghi trong không gian sống. Với hình khối mạnh mẽ, khả năng linh hoạt trong bố trí công năng cùng nhiều giải pháp thiết kế tối ưu, loại hình biệt thự này ngày càng được ưa chuộng trong xu hướng nhà ở hiện nay. Để sở hữu một công trình đẹp, bền vững và phù hợp với nhu cầu sử dụng, việc lựa chọn đơn vị thiết kế chuyên nghiệp và có quy trình làm việc minh bạch, rõ ràng là yếu tố then chốt. NEOHouse tự tin đồng hành cùng gia chủ trên hành trình kiến tạo tổ ấm, mang đến những giải pháp thiết kế biệt thự 3 tầng mái bằng chất lượng, tối ưu và phù hợp ngân sách.