Giữa nhịp sống đô thị ngày càng sôi động, mỗi công trình được hình thành đều mang theo câu chuyện và cá tính riêng của mỗi gia chủ. Công ty NEOHouse với hơn 12 năm kinh nghiệm trong lĩnh vực thiết kế và thi công nhà ở dân dụng cho đến những căn nhà ở cao cấp, thời thượng, đã khẳng định vị thế và nhận được nhiều tin tưởng từ khách hàng trên khắp tỉnh thành tại Việt Nam. Trong nội dung bài viết dưới đây, NEOHouse sẽ chia sẻ và phân tích chi tiết mặt bằng biệt thự song lập để giúp mọi người nắm rõ hơn về loại hình kiến trúc này, từ đó đưa ra phương án tối ưu trong quá trình thiết kế và xây dựng.
Xem thêm: Tìm hiểu thông thi chi tiết về biệt thự đơn lập
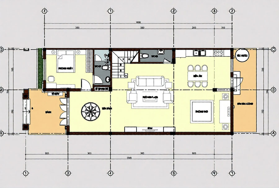
Mặt bằng biệt thự song lập là gì?
Mặt bằng biệt thự song lập là bản vẽ thể hiện cách bố trí tổng thể không gian của một căn biệt thự song lập – loại hình biệt thự gồm hai căn nhà được xây dựng liền kề, chung một tường nhưng vẫn đảm bảo tính riêng tư nhờ sở hữu ba mặt thoáng. Thông qua mặt bằng, gia chủ có thể hình dung rõ ràng quy mô công trình, diện tích từng khu vực, cũng như sự liên kết giữa các không gian sinh hoạt trong nhà.
Bản vẽ mặt bằng biệt thự song lập thường thể hiện đầy đủ kích thước, công năng từng phòng, vị trí cầu thang, lối đi, độ dày tường và vách ngăn. Ngoài ra, các chi tiết về nội thất cơ bản như phòng khách, bếp – ăn, phòng ngủ, khu vệ sinh hay không gian sân vườn xung quanh cũng được bố trí rõ ràng. Đây là cơ sở quan trọng giúp gia chủ và kiến trúc sư tối ưu công năng sử dụng, đảm bảo sự thông thoáng, tiện nghi và hài hòa trong tổng thể kiến trúc của ngôi nhà.

Biệt thự song lập khác gì biệt thự đơn lập và liền kề

Để giúp gia chủ có cái nhìn tổng quan hơn về biệt thự song lập, dưới đây NEOHouse sẽ so sánh chi tiết giữa biệt thự song lập, biệt thự đơn lập và nhà liền kề. Mỗi mô hình đều sở hữu những đặc điểm riêng về kiến trúc, không gian sống, mức độ riêng tư và giá trị sử dụng. Cụ thể:
| Tiêu chí | Biệt thự song lập | Biệt thự đơn lập | Nhà liền kề |
|---|---|---|---|
| Khái niệm | Gồm 2 căn biệt thự xây liền khối, chung 1 tường nhưng thiết kế đồng bộ | Biệt thự xây dựng độc lập hoàn toàn trên một lô đất riêng | Nhà ở xây dựng thành dãy, nhiều căn liền kề nhau |
| Số mặt thoáng | 3 mặt thoáng | 4 mặt thoáng | 1 – 2 mặt thoáng |
| Tường chung | Có 1 tường chung giữa 2 căn | Không có tường chung | Có từ 2 tường chung trở lên |
| Mức độ riêng tư | Tương đối cao, vẫn đảm bảo không gian riêng | Cao nhất, riêng tư tuyệt đối | Trung bình, chịu ảnh hưởng từ nhà liền kề |
| Diện tích đất | Trung bình (120 – 180m²/căn) | Lớn (từ 200m² trở lên) | Nhỏ – trung bình (70 – 120m²) |
| Không gian sân vườn | Có sân vườn riêng, bố trí quanh 3 mặt nhà | Sân vườn rộng, bao quanh 4 mặt nhà | Hạn chế, chủ yếu sân trước hoặc sau |
| Thiết kế kiến trúc | Đối xứng hoặc bán đối xứng, đồng bộ tổng thể | Tự do, linh hoạt, thể hiện rõ cá tính gia chủ | Thiết kế lặp lại theo dãy |
| Công năng sử dụng | Bố trí tối ưu, đầy đủ không gian sinh hoạt | Linh hoạt, dễ mở rộng, phù hợp gia đình đông người | Tối ưu diện tích ở |
| Chi phí đầu tư | Mức trung bình, thấp hơn đơn lập | Cao nhất | Thấp nhất |
| Đối tượng phù hợp | Gia đình muốn sống tiện nghi, tối ưu chi phí | Gia chủ đề cao riêng tư, đẳng cấp | Gia đình trẻ, nhu cầu ở đô thị |
| Giá trị đầu tư | Ổn định, dễ thanh khoản | Giá trị cao, tăng trưởng dài hạn | Thanh khoản tốt, linh hoạt |
| Môi trường sống | Thoáng đãng, mật độ xây dựng thấp | Yên tĩnh, nhiều mảng xanh | Đông đúc hơn |
Đặc điểm kiến trúc tạo nên mặt bằng biệt thự song lập
Trong những năm gần đây, biệt thự song lập ngày càng được nhiều gia đình lựa chọn nhờ sự kết hợp hài hòa giữa yếu tố thẩm mỹ, công năng và chi phí đầu tư. Không chỉ mang dáng dấp sang trọng, tinh tế, loại hình biệt thự này còn đáp ứng nhu cầu sinh hoạt tiện nghi, tạo nên không gian sống ấm cúng và thoải mái cho gia chủ. Để hiểu rõ hơn về mô hình nhà ở này, dưới đây là những đặc điểm kiến trúc tiêu biểu tạo nên mặt bằng biệt thự song lập, giúp gia chủ có thêm cơ sở trong quá trình thiết kế và xây dựng. Theo đó:
Biệt thự song lập được thiết kế gồm hai căn nhà đặt liền kề nhau, sử dụng chung một bức tường nhưng vẫn đảm bảo tính riêng tư cho từng không gian sống. Mỗi căn sở hữu ba mặt thoáng, cho phép bố trí sân vườn và cửa sổ xung quanh, mang lại sự thông thoáng và gần gũi với thiên nhiên.

Về quy mô, mặt bằng biệt thự song lập khá linh hoạt, phổ biến với quỹ đất dao động khoảng 120m2, 153m2, 163m2 hoặc 208m2, phù hợp với nhiều nhu cầu sử dụng khác nhau. Khoảng lùi công trình thông thường được bố trí hợp lý, với khoảng lùi phía trước khoảng 4,6m và phía sau khoảng 2m, tạo điều kiện thuận lợi cho việc bố trí sân vườn, gara hoặc tiểu cảnh.
Mặc dù được xây dựng trên nền móng chung, hai căn biệt thự vẫn có kết cấu tường riêng, được ốp sát và bố trí đối xứng qua trục trái – phải. Cách tổ chức kiến trúc này không chỉ tối ưu diện tích đất mà còn tạo nên sự cân đối, thống nhất và hài hòa cho tổng thể công trình, góp phần nâng cao giá trị thẩm mỹ cho toàn bộ khu biệt thự cũng như không gian sống của gia đình.
Các loại hình mặt bằng biệt thự song lập
Mặt bằng biệt thự song lập được phát triển đa dạng để đáp ứng linh hoạt nhu cầu sử dụng, quy mô gia đình và phong cách sống của từng gia chủ. Tùy theo số tầng, cách tổ chức không gian và các tiện ích đi kèm, mỗi loại hình mặt bằng sẽ mang đến những trải nghiệm sinh hoạt khác nhau. Dưới đây là các loại hình mặt bằng biệt thự song lập phổ biến, giúp gia chủ dễ dàng lựa chọn phương án phù hợp trong quá trình thiết kế và xây dựng tổ ấm của mình trong tương lai.
Mặt bằng biệt thự song lập 2 tầng
Trong các loại hình biệt thự song lập hiện nay, mặt bằng biệt thự song lập 2 tầng được nhiều gia chủ lựa chọn bởi sự cân đối hài hòa giữa diện tích sử dụng, công năng sinh hoạt và chi phí đầu tư. Tùy theo quy hoạch khu đất cũng như nhu cầu của từng gia đình, biệt thự song lập 2 tầng có thể đáp ứng cho cả gia đình trẻ lẫn gia đình nhiều thế hệ cùng chung sống.


Với cách tổ chức không gian theo chiều cao, tầng trệt thông thường được bố trí các khu vực sinh hoạt chung như phòng khách, bếp – ăn, phòng ngủ tạo sự kết nối giữa các thành viên. Lầu 1 là không gian nghỉ ngơi riêng tư với các phòng ngủ, phòng sinh hoạt chung hoặc phòng làm việc, đảm bảo sự thoải mái và yên tĩnh trong quá trình sử dụng.

Mặt bằng biệt thự song lập 3 tầng
Nhờ lợi thế phát triển theo chiều cao, biệt thự song lập 3 tầng cho phép tổ chức mặt bằng một cách mạch lạc và khoa học, tạo sự phân tách rõ ràng giữa các khu vực sinh hoạt chung, không gian nghỉ ngơi và tiện ích riêng. Cách bố trí này không chỉ tối ưu công năng sử dụng hiệu quả mà còn mang lại sự riêng tư cần thiết cho từng thành viên trong gia đình.

Thông thường, tầng 1 được ưu tiên cho các hoạt động sinh hoạt chung như phòng khách, bếp và khu vực ăn uống. Ngoài ra, mặt bằng tầng trệt có thể bố trí thêm một phòng ngủ nhỏ, phù hợp cho người lớn tuổi hoặc khách đến lưu trú ngắn ngày. Các không gian được thiết kế theo hướng mở hoặc bán mở, giúp tăng cảm giác rộng rãi và kết nối liền mạch giữa các khu vực.

Công năng lầu 1 sẽ là không gian sinh hoạt riêng tư, bố trí từ 2 đến 3 phòng ngủ. Trong đó, phòng ngủ chính được đầu tư diện tích lớn hơn, tích hợp đầy đủ tiện ích như phòng thay đồ, phòng tắm riêng và ban công, mang đến sự thoải mái và trải nghiệm sinh hoạt tiện nghi cho gia chủ.

Lầu 2 đóng vai trò là không gian chức năng linh hoạt, có thể bố trí phòng thờ, phòng làm việc, phòng sinh hoạt đa năng, phòng tập luyện tại nhà hoặc thêm một phòng ngủ phụ. Khu vực sân thượng thường được kết hợp tại tầng này, tạo không gian thư giãn ngoài trời, trồng cây xanh hoặc tổ chức những buổi sum họp ấm cúng cho cả gia đình.

Với cách bố trí mặt bằng được tính toán khoa học và kết nối giữa các không gian, biệt thự song lập 3 tầng đặc biệt phù hợp với những gia đình có từ 2–3 thế hệ cùng chung sống, vừa đảm bảo sự gắn kết trong sinh hoạt, vừa giữ được tính riêng tư và thoải mái cho từng thành viên.
Tìm hiểu thêm: Biệt thự liền kề là gì? Đặc điểm và ưu điểm biệt thự liền kề
Mặt bằng biệt thự song lập 4 tầng
Mặt bằng biệt thự song lập 4 tầng là lựa chọn phù hợp cho những gia đình đông thành viên hoặc nhiều thế hệ cùng chung sống, nhờ khả năng mở rộng không gian theo chiều cao và phân chia công năng tối ưu. Phương án thiết kế này được bố trí theo từng tầng với vai trò riêng biệt, tạo quá trình sinh hoạt diễn ra thuận tiện và linh hoạt hơn trong thời gian dài sử dụng.
Ở tầng trệt, không gian sinh hoạt chung được bố trí liên thông giữa phòng khách, khu bếp và bàn ăn, tạo sự kết nối xuyên suốt giữa các thành viên. Khu vực này thường được mở ra sân vườn hoặc khoảng xanh bên hông, mang lại cảm giác thông thoáng và gần gũi với thiên nhiên. Cùng với một phòng ngủ nhỏ cho người lớn tuổi hoặc khách đến chơi cũng thường được sắp xếp tại tầng này để thuận tiện di chuyển.

Mặt bằng lầu 1 đóng vai trò là không gian nghỉ ngơi chính, nơi bố trí các phòng ngủ riêng tư. Mỗi phòng đều được ưu tiên cửa sổ lớn hoặc ban công nhằm đón ánh sáng tự nhiên và tạo sự thoải mái khi sử dụng. Lên đến lầu 2, mặt bằng được thiết kế linh hoạt hơn, phù hợp để bố trí phòng sinh hoạt chung, phòng làm việc, phòng học hoặc thư viện, đáp ứng nhu cầu sinh hoạt và làm việc, giải trí tại nhà.
Lầu 3 là khu vực mang tính cá nhân hóa cao, cho phép gia chủ tự do sắp xếp các không gian theo sở thích như phòng thờ, phòng tập luyện, phòng giải trí hay khu thư giãn riêng. Với cách tổ chức mặt bằng khoa học và đa dạng công năng, biệt thự song lập 4 tầng không chỉ đáp ứng nhu cầu sinh hoạt của gia đình đa thế hệ mà còn mang đến trải nghiệm sống tiện nghi, linh hoạt và giàu cảm xúc trong từng không gian.
Bố trí mặt bằng biệt thự song lập hiện đại
Mặt bằng biệt thự song lập hiện đại thường sẽ ưu tiên tổ chức theo tư duy kiến trúc mở, chú trọng sự kết nối giữa không gian sống và cảnh quan xung quanh. Thiết kế này hướng đến việc gắn kết các thành viên trong gia đình, đồng thời tạo mối liên hệ hài hòa giữa con người và thiên nhiên, mang lại cảm giác thoải mái trong sinh hoạt hằng ngày.

Theo đó, khu vực tầng trệt được bố trí liên thông giữa phòng khách, khu vực ăn uống và bếp. Từ đó, góp phần mang đến không gian rộng rãi, thông thoáng và dễ dàng đón ánh sáng tự nhiên thông qua hệ cửa kính lớn mở ra sân vườn hoặc khoảng xanh bên hông nhà. Nhờ vậy, các hoạt động sinh hoạt chung diễn ra thuận tiện hơn, tăng sự gắn kết và tương tác giữa các thành viên trong gia đình.

Không gian các tầng trên được phân chia linh hoạt tùy theo nhu cầu sử dụng. Thông thường, mặt bằng sẽ bố trí từ 3–4 phòng ngủ kết hợp cùng không gian sinh hoạt chung, phòng làm việc, khu giải trí hoặc khu tập luyện riêng tư. Sự linh hoạt trong bố trí giúp biệt thự song lập hiện đại đáp ứng đa dạng công năng, đồng thời mang đến trải nghiệm sống tiện nghi, phóng khoáng và phù hợp với nhịp sống đô thị ngày nay.
Thiết kế mặt bằng biệt thự song lập tân cổ điển
Lấy cảm hứng từ vẻ đẹp kiến trúc châu Âu cổ điển, mặt bằng biệt thự song lập tân cổ điển được sắp xếp theo trật tự rõ ràng, đề cao tính cân bằng và sự tinh tế trong từng không gian. Thiết kế hướng đến việc tạo nên một tổng thể hài hòa, nơi yếu tố thẩm mỹ và công năng được kết hợp khéo léo để phục vụ sinh hoạt hằng ngày của gia đình.

Tại khu vực tầng trệt, không gian được tổ chức theo chiều sâu, bắt đầu từ khu vực đón tiếp sang trọng và dẫn dắt vào phòng khách trung tâm. Khu bếp và khu vực ăn uống được bố trí kế bên, thuận tiện cho sinh hoạt nhưng vẫn giữ được sự tách biệt nhất định nhờ các giải pháp phân chia mềm như vách trang trí, hệ cột hoặc đường cong kiến trúc, giúp không gian vừa liền mạch vừa kín đáo.

Các tầng trên là nơi bố trí khu vực nghỉ ngơi với các phòng ngủ được sắp xếp hợp lý về diện tích và công năng. Mỗi phòng đều được chú trọng đến sự thông thoáng, ánh sáng tự nhiên và sự yên tĩnh. Phòng ngủ chính thường được đầu tư không gian rộng hơn, đi kèm ban công, khu thay đồ và phòng vệ sinh riêng, mang đến cảm giác thoải mái và tiện nghi trong quá trình sử dụng.



Với cách tổ chức mặt bằng chặt chẽ và tinh giản trong chi tiết, biệt thự song lập tân cổ điển không chỉ thể hiện gu thẩm mỹ trang nhã của gia chủ mà còn tạo nên một không gian sống tiện nghi, đẳng cấp và thời thượng.
Mặt bằng biệt thự song lập Địa Trung Hải
Mang đậm tinh thần phóng khoáng và tự do, mặt bằng biệt thự song lập phong cách Địa Trung Hải được tổ chức theo lối mở, đúng với đặc trưng của phong cách kiến trúc này. Không gian sống hướng đến sự thoải mái, gần gũi với thiên nhiên và tạo cảm giác thư giãn như đang tận hưởng kỳ nghỉ ngay tại ngôi nhà của mình.

Ở khu vực tầng trệt, mặt bằng thường được bố trí liên thông giữa phòng khách, khu bếp và không gian ăn uống, tạo nên sự liền mạch trong sinh hoạt, đồng thời còn giúp không gian trở nên rộng rãi, dễ dàng đón ánh sáng và gió tự nhiên. Bên cạnh đó, diện tích phía trước và bên hông căn biệt thự được khai thác tối đa để bố trí sân vườn, lối dạo hoặc tích hợp hồ bơi nhỏ, góp phần hoàn thiện không gian sống mang đậm dấu ấn Địa Trung Hải.

Không gian tầng lầu được bố trí một cách tối ưu và khoa học, thường gồm từ 3–4 phòng ngủ. Mỗi phòng đều được thiết kế gắn liền với ban công hoặc logia rộng mở, kết hợp cùng các chi tiết trang trí như giàn hoa, mảng xanh tạo điểm nhấn nhẹ nhàng và thanh thoát. Nhờ vậy, tổng thể không gian sống luôn thoáng đãng, tràn đầy ánh sáng và mang lại cảm giác thư thái cho gia chủ trong quá trình sinh sống.
Mặt bằng biệt thự song lập Indochine
Biệt thự song lập phong cách Indochine là sự giao thoa tinh tế giữa giá trị văn hóa Á Đông truyền thống và nét lãng mạn, cổ điển của kiến trúc Pháp. Chính vì vậy, mặt bằng của mẫu biệt thự này thường được tổ chức theo hướng mở có chọn lọc, vừa đảm bảo sự thông thoáng cần thiết, vừa giữ được cảm giác riêng tư và yên tĩnh, đúng với tinh thần đặc trưng của phong cách Indochine.

Ở khu vực tầng trệt, mặt bằng được bắt đầu bằng sảnh đón mang tính nghi thức, tạo cảm giác trang trọng ngay từ lối vào. Phòng khách và khu vực ăn uống được phân chia khéo léo bằng các giải pháp ngăn cách mềm như lam gỗ, vách trang trí hoặc hệ cửa trượt truyền thống, giúp không gian có sự tách biệt vừa phải nhưng vẫn giữ được sự liền mạch. Tiếp đến, khu bếp được bố trí lùi về phía sau, kết nối với sân ướt hoặc hiên phụ, phù hợp với thói quen sinh hoạt và nếp sống Á Đông.

Không gian tầng lầu là khu vực nghỉ ngơi riêng tư, nơi các phòng ngủ thường được bố trí hướng ra ban công hoặc logia thoáng đãng. Đây là khoảng không gian lý tưởng để gia chủ thư giãn, tận hưởng ánh sáng tự nhiên và không khí trong lành. Bên cạnh đó, khu sinh hoạt chung tại tầng trên thường được thiết kế như một điểm kết nối giữa các thế hệ, có thể kết hợp góc đọc sách, tủ gỗ hoặc các chi tiết nội thất mang hơi hướng truyền thống, tạo nên không gian sống ấm cúng và giàu giá trị tinh thần.
Ưu điểm nổi bật của mặt bằng biệt thự song lập
Mặt bằng biệt thự song lập được đánh giá cao bởi sự cân bằng hài hòa giữa công năng sử dụng, tính thẩm mỹ và hiệu quả khai thác quỹ đất. Đây cũng chính là lý do loại hình này ngày càng được ưa chuộng trong các khu đô thị hiện đại. Dưới đây là những ưu điểm nổi bật giúp mặt bằng biệt thự song lập trở thành lựa chọn phù hợp cho nhiều gia đình.
- Tối ưu diện tích đất: Nhờ thiết kế hai căn ghép khối, chung một bức tường, mặt bằng biệt thự song lập giúp tiết kiệm diện tích xây dựng so với biệt thự đơn lập. Tuy nhiên, mỗi căn vẫn sở hữu ba mặt thoáng, dễ dàng bố trí cửa sổ, ban công và sân vườn, mang lại cảm giác rộng rãi và thông thoáng cho không gian sống.
- Bố cục công năng khoa học, tiện nghi: Mặt bằng biệt thự song lập được tổ chức không gian rõ ràng giữa nhu cầu sinh hoạt chung và khu vực nghỉ ngơi riêng tư. Cách phân chia mặt bằng này giúp quá trình sinh hoạt hằng ngày trở nên thuận tiện, đồng thời đảm bảo sự yên tĩnh và riêng tư cho từng thành viên trong gia đình.
- Tính riêng tư nhưng vẫn có sự kết nối: Dù có chung một bức tường với căn bên cạnh, mỗi căn biệt thự song lập vẫn có lối đi, sân vườn và không gian sinh hoạt riêng biệt. Thiết kế này vừa giữ được sự tách biệt cần thiết, vừa tạo cảm giác gắn kết hài hòa trong tổng thể khu dân cư.
- Tính thẩm mỹ cao, kiến trúc đồng bộ: Mặt bằng biệt thự song lập được thiết kế theo bố cục đối xứng hoặc bán đối xứng, tạo nên tổng thể kiến trúc cân đối, chỉn chu và sang trọng. Sự đồng bộ này không chỉ nâng cao giá trị thẩm mỹ mà còn góp phần tạo nên diện mạo đẹp cho toàn khu đô thị.
- Chi phí đầu tư hợp lý: So với biệt thự đơn lập, biệt thự song lập có chi phí đầu tư “dễ tiếp cận” hơn nhờ tối ưu quỹ đất và kết cấu xây dựng. Đây là giải pháp phù hợp cho những gia đình mong muốn sở hữu không gian sống chất lượng cao nhưng vẫn cân đối được ngân sách.
- Phù hợp với nhiều mô hình gia đình: Với mặt bằng linh hoạt và đa dạng, dễ điều chỉnh công năng, biệt thự song lập đáp ứng nhu cầu của gia đình trẻ, gia đình nhiều thế hệ hoặc gia đình yêu thích không gian sống gắn kết với thiên nhiên.

Kinh nghiệm khi thiết kế và thi công mặt bằng biệt thự song lập hiệu quả
Thiết kế và thi công biệt thự song lập là quá trình đòi hỏi sự tính toán hài hòa giữa yếu tố thẩm mỹ, công năng sử dụng và giải pháp kỹ thuật phù hợp. Khi được nghiên cứu và triển khai đúng cách, mặt bằng biệt thự song lập không chỉ tối ưu không gian sống mà còn mang lại hiệu quả sử dụng lâu dài cho gia chủ. Dưới đây là những kinh nghiệm thực tế trong quá trình thiết kế và xây dựng loại hình nhà ở này, mời quý gia chủ cùng tham khảo để có thêm góc nhìn hữu ích trước khi bắt tay triển khai.
Hiểu rõ đặc điểm quỹ đất và quy hoạch khu vực
Để việc thiết kế và thi công mặt bằng biệt thự song lập đạt hiệu quả, gia chủ cần bắt đầu từ việc nắm rõ đặc điểm quỹ đất và quy hoạch khu vực. Các yếu tố như diện tích lô đất, hình dáng, hướng đất, chỉ giới xây dựng, mật độ xây dựng và khoảng lùi trước – sau sẽ ảnh hưởng trực tiếp đến cách bố trí mặt bằng cũng như hình khối kiến trúc của công trình.

Bên cạnh đó, việc tìm hiểu kỹ quy hoạch tổng thể của khu vực như hạ tầng giao thông, cảnh quan xung quanh, quy định chiều cao tầng hay phong cách kiến trúc chung sẽ giúp phương án thiết kế hài hòa với môi trường sống và tránh những điều chỉnh phát sinh trong quá trình thi công. Khi quỹ đất được đánh giá đúng ngay từ đầu, mặt bằng biệt thự song lập sẽ được tổ chức hợp lý hơn, tận dụng tốt lợi thế ba mặt thoáng và đảm bảo công năng sử dụng tối ưu cho gia đình.
Giải pháp cách âm cho tường chung trong biệt thự song lập
Trong thiết kế biệt thự song lập, khu vực tường tiếp giáp giữa hai căn nhà đóng vai trò quan trọng trong việc đảm bảo sự riêng tư và yên tĩnh cho không gian sống. Nếu không được xử lý đúng cách, tiếng ồn sinh hoạt có thể dễ dàng truyền qua lại, ảnh hưởng đến trải nghiệm sống của cả hai gia đình. Vì vậy, giải pháp cách âm cho tường chung cần được tính toán kỹ lưỡng ngay từ giai đoạn thiết kế.

Theo đó, gia chủ có thể áp dụng một số phương án hiệu quả như tăng độ dày tường chung hoặc sử dụng kết cấu tường đôi kết hợp lớp vật liệu cách âm ở giữa. Bên cạnh đó, việc lựa chọn các vật liệu chuyên dụng như tấm thạch cao cách âm, gạch nhẹ chống ồn hoặc panel tiêu âm cũng giúp nâng cao khả năng hạn chế truyền âm. Ngoài ra, trong quá trình bố trí mặt bằng, kiến trúc sư thường sắp xếp lệch vị trí các phòng chức năng giữa hai căn, tránh tình trạng phòng ngủ hoặc không gian sinh hoạt chính đặt đối diện nhau qua tường chung.
Tối ưu hóa ánh sáng tự nhiên và thông gió cho mặt bằng
Do đặc thù biệt thự song lập chỉ có số lượng mặt thoáng giới hạn, việc tổ chức mặt bằng cần được tính toán kỹ lưỡng và cẩn thận để tránh tạo ra các không gian kín, thiếu sáng và bí gió ở khu vực trung tâm ngôi nhà. Nếu bố trí chưa hợp lý, ánh sáng tự nhiên khó lan tỏa đều, ảnh hưởng trực tiếp đến sự thoải mái trong sinh hoạt của gia đình.

Do đó, các giải pháp thường được ưu tiên là thiết kế các khoảng thông tầng, giếng trời hoặc cửa sổ cao sát trần để tăng khả năng đưa ánh sáng vào sâu bên trong. Ngoài ra, việc sử dụng hệ cửa kính lớn hướng ra sân vườn, ban công hoặc khoảng xanh bên hông cũng giúp không gian trở nên thông thoáng và kết nối tốt hơn với thiên nhiên.
Bên cạnh yếu tố kiến trúc, hướng nhà cũng cần được cân nhắc kỹ, trong đó các hướng như Bắc hoặc Đông Nam thường mang lại hiệu quả trong việc đón gió mát và hạn chế bức xạ nhiệt vào buổi chiều. Khi ánh sáng và thông gió được xử lý một cách khoa học và hợp lý, mặt bằng biệt thự song lập sẽ trở nên sáng sủa, dễ chịu và nâng cao chất lượng không gian sống hằng ngày cho gia đình.
Tính toán ngân sách xây dựng và chi phí phát sinh
Trước khi triển khai thiết kế và thi công biệt thự song lập, gia chủ cần chuẩn bị một kế hoạch tài chính cụ thể để kiểm soát tiến độ cũng như chất lượng công trình. Việc xác định rõ mức đầu tư ngay từ đầu sẽ giúp quá trình xây dựng diễn ra chủ động, hạn chế phát sinh và tránh ảnh hưởng đến tổng thể phương án thiết kế.

Thông thường, các ngân sách cần được phân bổ cho các hạng mục như: chi phí thiết kế, xây dựng phần thô, hoàn thiện, nội thất, hệ thống kỹ thuật điện – nước, cảnh quan sân vườn, cùng các khoản liên quan đến thủ tục pháp lý hoặc xử lý nền móng. Ngoài ra, trong quá trình thi công, biến động giá vật tư hoặc những điều chỉnh kỹ thuật là điều khó tránh khỏi. Vì vậy, gia chủ nên chủ động dành ra một khoản dự phòng, thường khoảng 10–15% tổng ngân sách, để kịp thời xử lý các tình huống phát sinh, đảm bảo công trình được hoàn thiện suôn sẻ và đúng kế hoạch.
Luôn chú trọng đến yếu tố phong thủy
Trong hành trình kiến tạo biệt thự song lập làm không gian an cư lâu dài, phong thủy không chỉ là yếu tố mang tính niềm tin mà còn đóng vai trò quan trọng trong việc cân bằng năng lượng và định hình chất lượng sống cho gia đình. Một mặt bằng được bố trí hài hòa về phong thủy sẽ giúp không gian luôn thông thoáng, tạo cảm giác an tâm, đồng thời hỗ trợ tích cực cho sức khỏe, tài lộc và sự gắn kết giữa các thành viên. Dưới đây là những yếu tố phong thủy quan trọng mà gia chủ nên lưu ý trong quá trình thiết kế và thi công biệt thự song lập.
- Hướng nhà và hướng cửa chính: Nên lựa chọn theo cung tốt, phù hợp với bản mệnh của gia chủ để đón sinh khí, hỗ trợ tài lộc và mang lại vượng khí cho gia đình.
- Vị trí bố trí phòng bếp: Phòng bếp nên đặt theo nguyên tắc “tọa hung hướng cát”, tránh đối diện trực tiếp cửa chính hoặc nhà vệ sinh nhằm hạn chế luồng khí xấu ảnh hưởng đến sức khỏe và tài vận.
- Cách sắp xếp phòng ngủ: Phòng ngủ cần đảm bảo sự yên tĩnh, tránh đặt dưới xà ngang, phía trên khu bếp hoặc nhà vệ sinh để giữ năng lượng và tạo cảm giác an toàn khi nghỉ ngơi.
- Bố trí không gian thờ cúng: Vị trí phòng thờ nên đặt tại tầng cao nhất, hướng về cung tốt, tách biệt với khu vực sinh hoạt chung và tránh những nơi ồn ào.
- Vị trí cầu thang trong nhà: Tránh bố trí cầu thang nằm giữa nhà, vì dễ gây xáo trộn dòng khí và ảnh hưởng đến sự cân bằng năng lượng tổng thể.
- Hướng và vị trí giường ngủ: Giường ngủ nên được kê tựa vào tường vững chắc, tránh đặt lệch hoặc dưới cửa sổ lớn để tạo cảm giác an toàn và dễ chịu khi nghỉ ngơi.
- Sự lưu thông khí trong không gian: Mặt bằng cần được tổ chức thông thoáng, tránh các khu vực bí gió hoặc bị cản trở luồng khí, giúp năng lượng lưu chuyển hài hòa trong toàn bộ ngôi nhà.
- Sự cân bằng giữa các yếu tố ngũ hành: Việc sử dụng vật liệu, màu sắc và bố trí không gian nên hài hòa giữa Kim – Mộc – Thủy – Hỏa – Thổ, nhằm tạo nên môi trường sống hài hòa, thuận lợi cho sinh hoạt và mang lại cảm giác thư thái cho gia đình.

Tận dụng không gian sân vườn và tiện ích ngoài trời
Không gian sân vườn và các tiện ích ngoài trời đóng vai trò quan trọng trong việc hoàn thiện trải nghiệm sống của biệt thự song lập. Với lợi thế ba mặt thoáng, gia chủ có nhiều điều kiện để bố trí các khoảng xanh, các tiện ích để tạo nên không gian sống trong lành và tăng sự kết nối giữa con người với thiên nhiên.

Tùy theo diện tích khu đất và nhu cầu sinh hoạt, sân vườn có thể được sắp xếp linh hoạt ở phía trước, bên hông hoặc phía sau ngôi nhà. Các hạng mục như lối dạo, tiểu cảnh, khu vực thư giãn, bàn trà ngoài trời hay khu BBQ bố trí khoa học đều góp phần mở rộng không gian sinh hoạt, mang đến những khoảng nghỉ ngơi thoải mái cho gia đình. Việc kết nối các khu vực này cùng với không gian bên trong thông qua cửa kính lớn hoặc hệ cửa trượt giúp ngôi nhà luôn thông thoáng, đồng thời tạo cảm giác liền mạch giữa nội thất và ngoại thất. Khi được quy hoạch một cách khoa học, không gian sân vườn không chỉ nâng cao giá trị thẩm mỹ cho mặt bằng biệt thự song lập mà còn mang lại những khoảnh khắc thư thái, gần gũi trong đời sống hằng ngày.
NEOHouse – Công ty chuyên thiết kế mặt bằng biệt thự song lập giá rẻ, uy tín
Công ty NEOHouse là đơn vị chuyên sâu trong lĩnh vực thiết kế và bố trí mặt bằng biệt thự song lập, với định hướng tạo nên không gian sống hài hòa giữa thẩm mỹ kiến trúc, công năng sử dụng và trải nghiệm sinh hoạt thực tế. Mỗi phương án thiết kế và bố trí mặt bằng tại NEOHouse đều được nghiên cứu kỹ lưỡng dựa trên đặc điểm quỹ đất, nhu cầu của gia chủ và bối cảnh quy hoạch, nhằm khai thác tối đa lợi thế ba mặt thoáng, đảm bảo sự riêng tư và tiện nghi trong quán trình sử dụng.

Với đội ngũ kiến trúc sư giàu kinh nghiệm và tư duy thiết kế luôn cập nhật xu hướng của thời đại, NEOHouse JSC không chỉ mang đến những bản vẽ mặt bằng khoa học, tối ưu không gian mà còn đồng hành cùng gia chủ trong suốt quá trình từ ý tưởng đến triển khai thực tế, giúp hiện thực hóa tổ ấm biệt thự song lập hoàn mỹ và tối ưu nhất.


Thông tin liên hệ:
- NEOHOUSE – HCM:
- Đ/c: 8B, Bàu Cát 8, P. 11, Q. Tân Bình, TP. Hồ Chí Minh.
Tel: 0906 100 202 - NEOHOUSE – ĐÀ NẴNG:
Đ/c: 63 Phan Đăng Lưu, Q. Hải Châu, Tp. Đà Nẵng
Tel: 0903 544 641 - Email Tư vấn khách hàng: tuvan.neohouse@gmail.com
- XƯỞNG NỘI THẤT: Đường Bà Điểm 3, Ấp Bắc Lân, Xã Bà Điểm, Huyện Hóc Môn.
- XƯỞNG SẮT- NHÔM KÍNH: Đường số 4, P. Bình Hưng Hòa A, Q. Bình Tân.
Câu hỏi thường gặp về mặt bằng biệt thự song lập
Mặt bằng biệt thự song lập là gì?
Mặt bằng biệt thự song lập là bản thiết kế thể hiện cách bố trí không gian sinh hoạt của một căn biệt thự nằm trong khối nhà gồm hai căn ghép liền nhau, sử dụng chung một tường tiếp giáp. Dù có kết cấu liền khối, mỗi căn biệt thự song lập vẫn được tổ chức công năng độc lập, có lối vào riêng và thường sở hữu ba mặt thoáng.
Bản vẽ mặt bằng biệt thự song lập gồm những nội dung gì?
Một bản vẽ mặt bằng biệt thự song lập sẽ thể hiện đầy đủ mặt bằng các tầng, bao gồm vị trí phòng khách, bếp, phòng ăn, phòng ngủ, khu sinh hoạt chung, cầu thang và nhà vệ sinh. Bên cạnh đó, bản vẽ còn thể hiện kích thước, diện tích từng không gian, vị trí tường chung, hệ cửa, ban công, logia và mối liên kết giữa trong nhà với sân vườn. Đối với hồ sơ chi tiết, mặt bằng còn tích hợp ký hiệu nội thất và định hướng hệ thống kỹ thuật cơ bản.
Biệt thự song lập khác gì biệt thự đơn lập và nhà liền kề?
So với biệt thự đơn lập, biệt thự song lập có ít hơn một mặt thoáng nhưng lại tối ưu hơn về quỹ đất và chi phí đầu tư. So với nhà liền kề, biệt thự song lập vượt trội về độ thoáng, không gian sân vườn và không gian sống biệt lập. Chính sự cân bằng giữa công năng, thẩm mỹ và chi phí khiến mặt bằng biệt thự song lập trở thành lựa chọn phổ biến trong các khu đô thị hiện đại.
Diện tích mặt bằng biệt thự song lập bao nhiêu là hợp lý?
Thông thường, diện tích mặt bằng biệt thự song lập khá đa dạng và linh hoạt, phổ biến trong khoảng từ 120m2 đến 208m2 mỗi căn, tùy theo quy hoạch dự án và nhu cầu sử dụng của gia đình. Với diện tích này, gia chủ có thể bố trí đầy đủ các không gian sinh hoạt cần thiết, kết hợp sân vườn và tiện ích ngoài trời mà vẫn đảm bảo sự thông thoáng và tiện nghi.
Có nên lựa chọn biệt thự song lập để ở lâu dài không?
Biệt thự song lập là lựa chọn phù hợp cho những gia đình mong muốn không gian sống thoáng đãng, tiện nghi nhưng vẫn tối ưu chi phí so với biệt thự đơn lập. Với mặt bằng được tổ chức khoa học, dễ điều chỉnh theo nhu cầu sử dụng và tiềm năng gia tăng giá trị trong các khu đô thị lớn, biệt thự song lập đáp ứng cả nhu cầu an cư lẫn đầu tư dài hạn.
Kết luận
Mỗi phương án mặt bằng biệt thự song lập đều được xây dựng dựa trên phong cách kiến trúc, quỹ đất và nhu cầu sinh hoạt riêng của từng gia đình. Dù có sự khác biệt trong cách bố trí và tổ chức không gian, điểm chung của các thiết kế này vẫn là hướng đến việc tối ưu công năng, nâng cao sự tiện nghi và mang lại trải nghiệm sống trọn vẹn cho các thành viên.
NEOHouse hy vọng những chia sẻ và gợi ý về mặt bằng biệt thự song lập trong bài viết trên sẽ giúp gia chủ có thêm góc nhìn thực tế và dễ dàng hình dung giải pháp phù hợp cho tổ ấm tương lai của gia đình. Từ đó, mỗi không gian không chỉ đáp ứng nhu cầu sử dụng lâu dài mà còn góp phần tạo nên một không gian sống thoải mái, gắn kết và giàu giá trị trong từng khoảnh khắc sinh hoạt hằng ngày.