Trong xu hướng xây dựng hiện nay, nhà vuông 2 tầng đang trở thành lựa chọn được nhiều gia đình ưa chuộng nhờ sự cân đối trong kiến trúc, tiện nghi trong sử dụng và khả năng tối ưu diện tích. Không những đáp ứng tốt nhu cầu sinh hoạt hằng ngày, kiểu nhà này còn linh hoạt trong thiết kế với nhiều phong cách khác nhau, từ hiện đại đến tân cổ điển. Trong bài viết này, NEOHouse.vn sẽ giới thiệu đến bạn những mẫu nhà vuông 2 tầng đẹp, khoa học và xu hướng mới nhất 2026, giúp bạn dễ dàng lựa chọn phương án phù hợp cho không gian sống của mình.
Đặc trưng nổi bật của mẫu nhà vuông 2 tầng
Trong quá trình tư vấn thiết kế, NEOHouse nhận thấy rằng nhà vuông 2 tầng không chỉ được ưa chuộng vì hình thức cân đối mà còn bởi tính ứng dụng rất cao trong thực tế sử dụng. Từ bố trí công năng, thẩm mỹ cho đến chi phí xây dựng,… Dưới đây là những đặc trưng nổi bật giúp mẫu nhà này luôn nằm trong lựa chọn ưu tiên của nhiều gia đình:
- Kiến trúc cân đối, tối ưu diện tích: Đầu tiên, các mẫu nhà vuông 2 tầng có thiết kế cân đối, không bị lệch hay khuyết góc giúp tổng thể trở nên hài hòa và chắc chắn hơn. Cùng với đó, thiết kế này giúp phân chia các phòng trở nên đơn giản và tận dụng hiệu quả gần như toàn bộ không gian bên trong ngôi nhà.
- Dễ bố trí nội thất, nâng cao trải nghiệm sinh hoạt: Không gian bên trong nhà vuông 2 tầng thường có tỷ lệ vuông vắn, tương đối đồng đều nên việc sắp xếp nội thất trở nên dễ dàng và thuận lợi hơn. Chính vì thế, gia chủ có thể dễ dàng bố trí đồ đạc khoa học, đồng thời tận dụng tốt ánh sáng và gió tự nhiên từ nhiều hướng để tạo cảm giác thoáng đãng, dễ chịu cho không gian sống.
- Phong cách thiết kế đa dạng: Một trong những ưu điểm nổi trội của nhà vuông 2 tầng được nhiều chủ đầu tư yêu thích nằm ở sự đa dạng trong phong cách kiến trúc. Sở hữu mặt tiền vuông vắn giúp ngôi nhà có thể ứng dụng được nhiều phong cách từ hiện đại, tân cổ điển đến kiểu Pháp,… Nhờ đó, mà gia đình có thể linh hoạt lựa chọn dựa theo ngân sách và sở thích của mình.
- Tối ưu công năng sử dụng: Thiết kế nhà vuông 2 tầng có thể bố trí đầy đủ các khu vực chức năng như phòng khách, phòng bếp, phòng ăn và 3-4 phòng ngủ. Từ đó, đáp ứng được trọn vẹn nhu cầu về một không gian sống thoải mái và đầy đủ tiện nghi cho cả gia đình.
- Thời gian thi công nhanh, tiết kiệm chi phí: Các mẫu nhà vuông 2 tầng thường có kết cấu đơn giản, ít chi tiết phức tạp nên quá trình thi công diễn ra nhanh chóng. Do đó, mà công trình có thể rút ngắn được thời gian xây dựng và tiết kiệm được chi phí xây dựng cho chủ đầu tư.
- Yếu tố phong thủy tốt: Trong quan niệm truyền thống, hình vuông tượng trưng cho sự đầy đủ, trọn vẹn và sung túc. Vì vậy, những ngôi nhà có bố cục vuông vức thường mang lại cảm giác an tâm, ổn định và giúp gia chủ yên tâm hơn trong quá trình sinh sống lâu dài.

Tổng hợp những mẫu thiết kế nhà vuông 2 tầng đẹp, xu hướng 2026
Như đã đề cập, các mẫu nhà vuông 2 tầng có thể dễ dàng ứng dụng linh hoạt nhiều phong cách kiến trúc khác nhau. Trong phần tiếp theo, cùng NEOHouse điểm qua các mẫu thiết kế nhà vuông 2 tầng đẹp, xu hướng hiện nay để có thêm ý tưởng cho ngôi nhà tương lai của mình.
Mẫu nhà vuông 2 tầng hiện đại
Thiết kế nhà vuông 2 tầng gây ấn tượng bởi nét đẹp mới mẻ, độc đáo và trẻ trung. Ngoại thất ngôi nhà được kiến tạo từ những hình khối kiến trúc vuông vức, những đường nét mạch lạc và các gam màu trung tính như trắng, kem, be,… Cùng với đó, các vật liệu trang trí như gỗ nhựa ốp tường, đá Marble, đèn Led để làm điểm nhấn cho mặt tiền. Tất cả những yếu tố này kết hợp đem lại một diện mạo đẹp mắt, thời thượng và không kém phần sang trọng cho công trình. Đặc biệt, hệ cửa nhôm kính Xingfa cũng thường được nhiều gia chủ lựa chọn để mở rộng tầm nhìn và cho ánh sáng tự nhiên có thể lan tỏa vào trong. Từ đó, mang đến nguồn năng lượng tích cực cho các thành viên trong gia đình.



Thiết kế nhà vuông 2 tầng tân cổ điển
Đối với những ai yêu thích sự đẳng cấp, quý phái mà không quá rườm rà thì có thể tham khảo mẫu nhà vuông 2 tầng tân cổ điển. Điểm nhấn của mẫu nhà này nằm ở phần mặt tiền được thiết kế cân đối, kết hợp cùng hệ cột trụ vững chắc và các chi tiết phào chỉ được đắp nổi tỉ mỉ. Bên cạnh đó, các gam màu trung tính như trắng, kem hay vàng nhạt khi kết hợp với lan can sắt nghệ thuật và hệ thống chiếu sáng sẽ góp phần làm nổi bật vẻ trang nhã cho tổng thể công trình. Ngoài ra, các kiểu mái như mái Thái, mái Nhật hoặc mái Mansard cũng được sử dụng để ngôi nhà trông cao ráo, kiên cố và thu hút hơn.



Xem thêm: 50+ mẫu nhà phố tân cổ điển 2 tầng đẹp đẳng cấp bậc nhất
Mẫu thiết kế nhà vuông 2 tầng kiểu Pháp xa hoa
Mẫu thiết kế nhà vuông 2 tầng kiểu Pháp đặc biệt phù hợp với những gia chủ yêu thích nét đẹp kiêu sa, lộng lẫy và mong muốn khẳng định đẳng cấp cá nhân qua không gian sống. Nét đặc sắc của công trình được thể hiện qua các chi tiết phào chỉ chạm trổ độc đáo, kết hợp cùng hệ thức cột Corinthian hoặc Ionic cầu kỳ mang đậm hơi thở kiến trúc châu Âu cổ điển. Sự kết hợp giữa các vật liệu cao cấp như đá hoa cương, nhôm đúc mỹ thuật và hệ mái Mansard uy nghi giúp tôn lên dáng vẻ vững chãi cho tổng thể khối nhà vuông 2 tầng. Đây không chỉ là một nơi ở, mà còn thể hiện được địa vị và tiềm lực kinh tế của chủ đầu tư.



Mẫu nhà vuông 2 tầng mái thái
Thiết kế nhà vuông 2 tầng mái thái luôn chiếm trọn tình cảm của gia đình Việt nhờ sự cân bằng giữa tính thẩm mỹ và giá trị sử dụng. Về kiến trúc, mái Thái thiết kế dạng hình chóp có độ dốc lớn (từ 35 – 45 độ) cùng các lớp ngói xếp chồng đều lên nhau tạo hiệu ứng gợn sóng đẹp mắt. Không những đẹp mắt, hệ mái này còn sở hữu khả năng thoát nước tốt, hạn chế ứ đọng và thấm dột vào mùa mưa. Hơn nữa, lớp ngói cũng đem đến khả năng cách âm và cách nhiệt hiệu quả giữ cho không gian bên trong luôn yên tĩnh và mát mẻ. Qua đó góp phần nâng cao trải nghiệm sống cho các thành viên.



Tìm hiểu thêm: 55+ Mẫu nhà mái Thái 2 tầng đẹp được yêu thích nhất
Nhà vuông 2 tầng mái Nhật
Bên cạnh mái Thái thì biệt thự mái Nhật cũng được nhiều gia đình ưa chuộng bởi nét đẹp nhẹ nhàng, thanh lịch và tính ứng dụng cao. Mẫu nhà này sở hữu phần mái có độ dốc vừa phải, xòe rộng đều về các phía tạo cảm giác hài hòa và cân đối cho tổng thể nhà vuông 2 tầng. Ngoài yếu tố thẩm mỹ, mái Nhật còn phù hợp với điều kiện khí hậu nóng ẩm, mưa nhiều ở Việt Nam nhờ khả năng thoát nước tốt và hạn chế hấp thụ nhiệt.



Xem ngay: 10+ mẫu nhà mái Nhật 2 tầng đẹp hiện đại dẫn đầu xu hướng
Mẫu nhà vuông 2 tầng mái bằng
Mẫu nhà vuông 2 tầng mái bằng hướng đến sự hiện đại, đơn giản dành cho những ai yêu thích sự hiện đại, mới mẻ và đơn giản. Thiết kế sử dụng các đường nét thẳng, hình khối vuông vức, tạo nên tổng thể cân đối và mạnh mẽ. Bên cạnh đó, việc sử dụng hệ cửa kính lớn giúp tăng khả năng kết nối giữa không gian bên trong và cảnh quan bên ngoài, đồng thời tận dụng tối đa ánh sáng tự nhiên. Nhờ sự đơn giản nhưng tinh tế, kiểu nhà này ngày càng trở thành xu hướng phổ biến trong thiết kế nhà phố hiện nay.



Tham khảo thêm: 99+ Mẫu nhà mái bằng 2 tầng đẹp nông thôn, tiết kiệm chi phí
Thiết kế nhà vuông 2 tầng mái lệch
Không còn đi theo lối thiết kế truyền thống, nhà vuông 2 tầng mái lệch đem đến một diện mạo mới lạ và đầy cá tính. Điểm nổi bật của kiểu nhà này nằm ở phần mái được thiết kế lệch về một phía, tạo ra hình khối kiến trúc độc đáo, phá vỡ sự đối xứng quen thuộc. Chính sự thay đổi này giúp tổng thể ngôi nhà trở nên năng động, hiện đại và thu hút hơn. Bên cạnh đó, mái lệch còn mang lại nhiều lợi ích trong quá trình sử dụng như khả năng thoát nước nhanh, hạn chế đọng nước. Nhờ phần mái được thiết kế chênh lệch độ cao, gia chủ có thể bố trí thêm cửa sổ hoặc ô lấy sáng ở vị trí mái cao, giúp ánh sáng tự nhiên dễ dàng đi sâu vào bên trong không gian. Tuy nhiên, để đảm bảo tính cân đối tổng thể và an toàn kết cấu, phương án thiết kế cần được tính toán kỹ lưỡng ngay từ đầu, đặc biệt là về độ dốc và hướng mái.



Mẫu nhà vuông 2 tầng ở nông thôn
Tận dụng lợi thế đất rộng lớn ở các vùng nông thôn, các mẫu nhà vuông 2 tầng được thiết kế thoải mái, rộng rãi và ưu tiên sự kết nối với cảnh quan thiên nhiên. Các phong cách kiến trúc như tân cổ điển hay hiện đại rất được các gia chủ tại đây ưa chuộng bởi tính thẩm mỹ và chi phí xây dựng hợp lý. Cùng với đó, cảnh quan sân vườn được thiết kế bài bản chòi nghỉ mát, cây ăn trái và những khoảng vườn xanh mướt tạo nên không gian sống trong lành, thoáng mát. Đây không chỉ là nơi thư giãn lý tưởng mà còn góp phần nâng cao chất lượng sống cho cả gia đình.



Dự án liên quan: 55+ mẫu nhà 2 tầng đẹp ở nông thôn hiện đại, xu hướng 2026
Nhà vuông 2 tầng kết hợp sân vườn
Các mẫu nhà vuông 2 tầng kết hợp sân vườn luôn mang lại một không gian sống thoáng đãng, gần gũi với thiên nhiên và cân bằng hơn trong sinh hoạt hằng ngày. Khu vực sân vườn không chỉ đóng vai trò làm đẹp cho tổng thể kiến trúc mà còn được tận dụng như một không gian đa chức năng, nơi gia đình có thể thư giãn, trò chuyện hoặc tổ chức các hoạt động ngoài trời. Bên cạnh đó, việc bố trí cây xanh, tiểu cảnh hay thảm cỏ xung quanh còn giúp cải thiện chất lượng không khí, giảm nhiệt và tạo cảm giác dễ chịu khi sinh sống. Đặc biệt với gia đình có trẻ nhỏ, sân vườn còn là không gian vui chơi an toàn và rộng rãi.



Mẫu thiết kế nhà vuông 2 tầng 1 tum
Mẫu nhà phố 2 tầng 1 tum phương án phù hợp khi gia chủ muốn mở rộng không gian sử dụng mà không cần xây thêm tầng hoàn chỉnh. Phần tum có thể linh hoạt bố trí làm phòng thờ, phòng làm việc hoặc khu vực thư giãn, giúp tận dụng tối đa diện tích. Bên cạnh đó, thiết kế này còn tạo điểm nhấn kiến trúc, giúp tổng thể ngôi nhà trở nên cao ráo và hiện đại hơn. Tuy nhiên, cần cân nhắc về kết cấu và quy định xây dựng để đảm bảo công trình bền vững và phù hợp pháp lý.



Mẫu nhà vuông 2 tầng 60m2
Với diện tích 60m2, nhà vuông 2 tầng cần được thiết kế đơn giản, ưu tiên công năng cần thiết và hạn chế các chi tiết rườm rà. Thông thường, tầng 1 có thể bố trí phòng khách liên thông bếp ăn để tạo cảm giác rộng hơn, kèm theo một nhà vệ sinh chung hoặc khoảng sân nhỏ phía trước. Tầng 2 phù hợp để bố trí 2 phòng ngủ, phòng vệ sinh và ban công lấy sáng. Mẫu nhà này thích hợp với gia đình trẻ, ít thành viên hoặc những gia chủ có quỹ đất vừa phải nhưng vẫn muốn không gian sống tiện nghi.



Mẫu nhà vuông 2 tầng 80m2
Nhà vuông 2 tầng 80m2 là diện tích khá lý tưởng để bố trí không gian sống thoải mái cho gia đình từ 3 – 4 thành viên. Với mặt bằng cân đối, gia chủ có thể thiết kế phòng khách, bếp ăn, 1 phòng ngủ nhỏ ở tầng 1 và 2 phòng ngủ ở tầng 2. Diện tích này cũng cho phép bố trí thêm ban công, phòng thờ hoặc góc làm việc tùy theo nhu cầu sử dụng. Ngoài ra, các giải pháp như ban công rộng, cửa sổ hay cửa kính cũng cần được cân nhắc để ngôi nhà đón nhận được nguồn không khí tự nhiên tránh tình trạng bí bách, khó chịu.



Mẫu nhà vuông 2 tầng 90m2
Ở diện tích 90m2, ngôi nhà đã có không gian khá rộng rãi để bố trí công năng linh hoạt và tiện nghi hơn. Tầng 1 thường được thiết kế gồm phòng khách riêng biệt, khu bếp – ăn rộng rãi, có thể bố trí thêm 1 phòng ngủ (phù hợp cho người lớn tuổi) và 1 nhà vệ sinh chung. Ngoài ra, gia chủ có thể tận dụng diện tích để làm sân trước, gara ô tô hoặc tiểu cảnh nhỏ tạo điểm nhấn.Cùng với đó, lầu 1 là không gian nghỉ ngơi chính với 2 – 3 phòng ngủ, trong đó có thể thiết kế 1 phòng ngủ master có nhà vệ sinh riêng. Bên cạnh đó, có thể bố trí thêm phòng thờ, phòng sinh hoạt chung hoặc góc làm việc. Diện tích này cũng cho phép thiết kế ban công rộng, nhiều cửa sổ giúp không gian luôn thông thoáng và tràn ngập ánh sáng tự nhiên. Mẫu nhà 90m² phù hợp với gia đình từ 4 – 5 thành viên, đề cao sự thoải mái và riêng tư.



Đọc thêm: 10+ Mẫu nhà phố 2 tầng 90m2 đẹp ấn tượng chi phí thấp
Mẫu nhà vuông 2 tầng 100m2
Nhà vuông 2 tầng 100m2 mang đến không gian sống lý tưởng với đầy đủ tiện nghi và sự phân chia rõ ràng giữa các khu vực chức năng. Tầng 1 có thể bố trí phòng khách rộng, bếp – ăn riêng biệt, 1 phòng ngủ, 1 nhà vệ sinh và khu vực để xe hoặc sân vườn nhỏ. Với diện tích lớn hơn, việc thiết kế thêm tiểu cảnh, giếng trời hoặc khu thư giãn cũng dễ dàng hơn, giúp nâng cao chất lượng sống. Trong khi đó, lầu 1 thường được bố trí 3 phòng ngủ (trong đó có 1 phòng master), 1 – 2 nhà vệ sinh, phòng thờ và ban công thoáng đãng. Ngoài ra, gia chủ có thể bố trí thêm phòng làm việc, phòng đọc sách hoặc khu sinh hoạt chung tùy theo nhu cầu. Mẫu nhà này phù hợp với gia đình đông thành viên hoặc những ai mong muốn không gian sống rộng rãi, hiện đại và có tính thẩm mỹ cao.



Nhà vuông 2 tầng 3 phòng ngủ
Nhà vuông 2 tầng 3 phòng ngủ là lựa chọn phổ biến với các gia đình từ nhỏ, từ 3-4 thành viên. Khi thiết kế, các kiến trúc sư thường tập trung vào việc bố trí công năng hợp lý, đảm bảo sự tiện nghi nhưng vẫn giữ được sự ấm cúng trong không gian chung. Các phòng ngủ được sắp xếp khoa học, thuận tiện cho việc di chuyển và sử dụng hằng ngày. Phương án này được nhiều gia chủ lựa chọn vì cân bằng được giữa chi phí đầu tư và công năng sử dụng.



Mẫu nhà vuông 2 tầng 4 phòng ngủ
Đối với gia đình có đa thế hệ cùng sinh sống mẫu nhà 2 tầng 4 phòng ngủ là giải pháp phù hợp giúp đảm bảo sự rộng rãi và tiện nghi trong sinh hoạt. Các phòng ngủ thường được bố trí tách biệt giữa các tầng hoặc phân chia hợp lý theo khu vực, nhằm tạo sự riêng tư cho từng thành viên nhưng vẫn giữ được sự kết nối chung của gia đình. Thiết kế này đặc biệt phù hợp với gia đình đông người hoặc nhiều thế hệ cùng sinh sống, khi mỗi thành viên đều có không gian riêng nhưng vẫn dễ dàng sinh hoạt chung. Ngoài ra, một phòng ngủ có thể linh hoạt sử dụng làm phòng khách phụ hoặc phòng dành cho khách khi cần, giúp tăng tính tiện ích cho ngôi nhà.



Bản vẽ thiết kế nhà vuông 2 tầng tiện nghi
Sau khi xem qua các mẫu phối cảnh nhà vuông 2 tầng đẹp, ấn tượng. Thì nội dung tiếp theo, NEOHouse sẽ gửi đến quý khách hàng một số mẫu bản vẽ tiêu biểu được thiết kế khoa học, tối ưu tiện nghi và dễ ứng dụng trong thực tế. Mời mọi người cùng tham khảo.
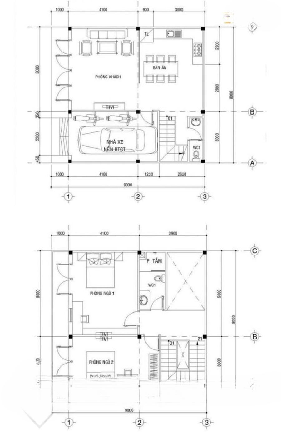
Bản vẽ nhà vuông 7x7m 2 tầng
Với diện tích 7x7m, nhà vuông 2 tầng được bố trí theo hướng tối ưu không gian, đảm bảo đầy đủ tiện nghi mà vẫn giữ được sự thông thoáng trong sinh hoạt hằng ngày. Các khu vực chức năng được sắp xếp khoa học, hạn chế lối đi dư thừa và tận dụng tối đa diện tích sử dụng. Tầng trệt là không gian sinh hoạt chung, gồm phòng khách bố trí phía trước, kết nối liền mạch với khu bếp + bàn ăn phía sau. Bên cạnh là khu để xe riêng biệt, thuận tiện cho việc di chuyển. Cầu thang đặt ở trung tâm giúp phân chia không gian hợp lý, đi kèm WC chung được bố trí gọn gàng, dễ sử dụng. Lầu 1 là khu vực nghỉ ngơi với 2 phòng ngủ được bố trí cân đối, đảm bảo sự riêng tư và có cửa sổ lấy sáng tự nhiên. Ở giữa là sảnh thang kết nối các phòng, đi kèm phòng tắm + WC phục vụ sinh hoạt. Ngoài ra, phần thông tầng/giếng trời giúp tăng khả năng thông gió, mang lại sự thông thoáng cho toàn bộ ngôi nhà.

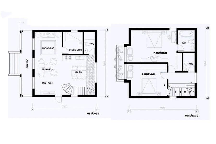
Bản vẽ nhà vuông 2 tầng 8x8m
Diện tích 8x8m, nhà vuông 2 tầng được thiết kế theo hướng tối ưu công năng, đảm bảo không gian sống rộng rãi và tiện nghi cho gia đình từ 3–5 thành viên. Các khu vực được bố trí hợp lý, vừa đảm bảo sự riêng tư vừa tạo sự liên kết trong sinh hoạt hằng ngày. Tầng trệt là không gian sinh hoạt chính, gồm phòng khách bố trí phía trước, liên kết với khu bếp + bàn ăn phía sau tạo sự liền mạch và thông thoáng. Bên cạnh đó là phòng thờ được bố trí riêng, đảm bảo sự yên tĩnh và trang nghiêm. Ngoài ra, tầng này còn có 1 phòng ngủ nhỏ, phù hợp cho người lớn tuổi hoặc khách lưu trú. Cầu thang đặt ở trung tâm, đi kèm WC chung giúp tối ưu diện tích và thuận tiện sử dụng. Lầu 1 dành cho khu vực nghỉ ngơi với 2 phòng ngủ có diện tích rộng rãi, đảm bảo sự riêng tư và thoải mái cho các thành viên. Một phòng có thể tích hợp thêm không gian sinh hoạt hoặc làm phòng ngủ chính. Khu vực WC và phòng tắm được bố trí riêng biệt, tăng tính tiện nghi trong sinh hoạt. Tổng thể không gian được thiết kế thông thoáng, tận dụng tốt ánh sáng và gió tự nhiên.

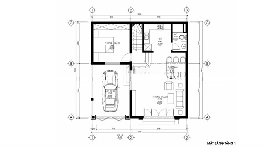
Bản vẽ thiết kế nhà vuông 10×10 2 tầng
Mẫu nhà vuông 2 tầng 10x10m mang đến không gian sống rộng rãi, cho phép bố trí công năng đầy đủ và thoải mái hơn. Các khu vực được phân chia rõ ràng, vừa đảm bảo sự riêng tư vừa tăng tính tiện nghi trong quá trình sử dụng lâu dài. Tầng 1 được tổ chức theo hướng tách biệt giữa khu sinh hoạt và khu phụ trợ, gồm phòng khách đặt phía trước, liên thông với khu bếp + bàn ăn phía trong tạo sự liền mạch. Bên cạnh là khu để xe riêng thuận tiện cho việc di chuyển hằng ngày. Ngoài ra, tầng này còn có 1 phòng ngủ phù hợp cho người lớn tuổi hoặc khách, đi kèm WC chung được bố trí gọn gàng. Cầu thang đặt ở vị trí trung tâm giúp kết nối các không gian một cách hợp lý. Tầng 2 là khu vực nghỉ ngơi kết hợp sinh hoạt chung, gồm 2 phòng ngủ với diện tích rộng rãi, đảm bảo sự thoải mái và riêng tư. Điểm nổi bật là khu sinh hoạt chung đặt tại trung tâm, đóng vai trò kết nối các thành viên trong gia đình. Bên cạnh đó, không gian còn được bố trí phòng thay đồ, WC và phòng tắm riêng biệt, giúp tăng tiện nghi và nâng cao trải nghiệm sử dụng. Tổng thể thiết kế đảm bảo sự thông thoáng, tận dụng tốt ánh sáng và gió tự nhiên.


Các lưu ý khi thiết kế nhà vuông 2 tầng
Dù nhà vuông 2 tầng có nhiều ưu điểm về công năng và chi phí, nhưng để đảm bảo ngôi nhà vừa đẹp, vừa tiện nghi khi sử dụng lâu dài, gia chủ vẫn cần lưu ý một số điểm quan trọng ngay từ giai đoạn thiết kế. Dưới đây là các lưu ý khi thiết kế nhà vuông 2 tầng:
- Xác định rõ nhu cầu sử dụng trước khi thiết kế: Trước khi bắt tay vào thiết kế, gia chủ cần xác định rõ số lượng thành viên, nhu cầu sinh hoạt và thói quen sinh hoạt của gia đình. Thông qua đó sẽ giúp các kiến trúc sư có thể bố trí công năng hợp lý để thuận tiện trong quá trình sinh hoạt hằng ngày và tránh tình trạng thừa hoặc thiếu công năng. Đặc biệt, nếu gia đình có ông bà lớn tuổi thì nên bố trí phòng ngủ tại tầng trệt để đảm bảo sự an toàn cho quá trình đi lại hằng ngày.
- Chú trọng thông gió và ánh sáng tự nhiên: Một sai lầm phổ biến là chỉ tập trung vào thẩm mỹ và công năng mà bỏ quên yếu tố thông gió, ánh sáng trong nhà. Trên thực tế, đây là yếu tố ảnh hưởng trực tiếp đến chất lượng cuộc sống và sự thoải mái trong cuộc sống hằng ngày. Các giải pháp như cửa kính lớn, hệ cửa sổ hợp lý, giếng trời hoặc ban công rộng cần được cân nhắc ứn dụng để tăng khả năng đón gió và ánh sáng tự nhiên. Nhờ đó, không gian bên trong luôn thông thoáng, hạn chế ẩm mốc và tiết kiệm chi phí điện năng trong quá trình sử dụng.
- Lựa chọn phong cách kiến trúc phù hợp với ngân sách: Mỗi phong cách thiết kế sẽ có mức chi phí khác nhau, vì vậy gia chủ cần cân nhắc kỹ trước khi lựa chọn. Nếu ngân sách vừa phải, nên ưu tiên phong cách hiện đại hoặc tối giản để tiết kiệm chi phí thi công. Trong khi đó, các phong cách tân cổ điển hay kiểu Pháp sẽ yêu cầu đầu tư cao hơn do có nhiều chi tiết trang trí. Quan trọng là lựa chọn phù hợp, không nên chạy theo xu hướng mà vượt quá khả năng tài chính.
- Lập kế hoạch và dự trù ngân sách: Trong quá trình xây dựng nhà vuông 2 tầng, việc phát sinh chi phí là yếu tố khó tránh khỏi nếu không có kế hoạch ngay từ đầu. Vì vậy, chủ đầu tư cần thực hiện dự toán ngân sách cho ngôi nhà của mình và phân bổ phù hợp theo từng giai đoạn như phần thô, hoàn thiện, nội thất và các trang thiết bị,… Để hạn chế thiếu hụt gây ảnh hưởng đến tiến độ của công trình. Đặc biệt, gia chủ cũng cần dự trù thêm từ 5-10% chi phí phát sinh để an tâm hơn trong quá trình xây dựng.
- Lựa chọn đơn vị thiết kế uy tín: Để tạo ra một bản thiết kế nhà vuông 2 tầng hoàn chỉnh, cần hội tụ nhiều yếu tố như kiến trúc, công năng, kết cấu và thẩm mỹ tổng thể. Vì vậy, việc lựa chọn đơn vị thiết kế uy tín ngay từ đầu là rất quan trọng để đảm bảo mọi hạng mục được tính toán bài bản và đồng bộ. Một đơn vị có kinh nghiệm sẽ giúp gia chủ tối ưu không gian, kiểm soát chi phí và hạn chế các sai sót trong quá trình thi công.

Báo giá thiết kế nhà vuông 2 tầng tại NEOHouse
Sau khi đã tham khảo các mẫu thiết kế và hiểu rõ những đặc điểm của nhà vuông 2 tầng, một trong những vấn đề được nhiều gia chủ quan tâm chính là chi phí thiết kế. Trên thực tế, mức giá sẽ phụ thuộc vào nhiều yếu tố như diện tích, phong cách kiến trúc, mức độ chi tiết của bản vẽ và yêu cầu riêng của từng gia đình. Trong nội dung tiếp theo, NEOHouse sẽ cung cấp bảng báo giá thiết kế nhà vuông 2 tầng đang được áp dụng, để bạn có cái nhìn tổng quan và dễ dàng dự trù ngân sách trước khi bắt đầu xây dựng.
Chi phí thiết kế kiến trúc
| STT | Phong cách kiến trúc | Đơn giá (VNĐ/m2) |
|---|---|---|
| 1 | Phong cách hiện đại | 90.000Đ – 110.000Đ/m2 |
| 2 | Phong cách tân cổ điển | 130.000Đ – 145.000Đ/m2 |
| 3 | Phong cách cổ điển | 155.000Đ – 170.000Đ/m2 |
*Tuy nhiên: Đây chỉ là mức giá tham khảo, mức giá chính xác cần được dựa trên các yếu tố về quy mô, nhu cầu cụ thể của khách hàng. Do đó, để nhận được báo giá chính xác nhất, hãy liên hệ đến Hotline/zalo: 0937.100.202 hoặc để lại tin nhắn ngay tại phần Chat. Để được bộ phận tư vấn của NEOHouse hỗ trợ nhanh chóng và chuẩn xác nhất.
Tham khảo chi tiết: Chi Phí Xây Nhà Phố 2 Tầng Trọn Gói Uy Tín 2026 Tại TPHCM
Quy trình thiết kế nhà vuông 2 tầng chuyên nghiệp tại NEOHouse
Tại NEOHouse, quy trình thiết kế nhà phố 2 tầng được xây dựng theo hướng bài bản và đồng bộ để gia chủ dễ dàng theo dõi tiến độ cũng như kiểm soát chất lượng trong từng giai đoạn. Mỗi bước đều có sự phối hợp chặt chẽ giữa kiến trúc sư, kỹ sư và chủ đầu tư nhằm đảm bảo phương án thiết kế phù hợp với nhu cầu thực tế. Từ đó, quá trình triển khai diễn ra rõ ràng, hạn chế tối đa sai sót và phát sinh chi phí không cần thiết. Dưới đây là các bước cụ thể trong quy trình làm việc tại NEOHouse:

Bước 1: Tiếp nhận nhu cầu và tư vấn định hướng
NEOHouse tiếp nhận đầy đủ thông tin từ chủ đầu tư như nhu cầu sử dụng, số lượng phòng, phong cách kiến trúc, ngân sách dự kiến và diện tích khu đất. Trên cơ sở đó, kiến trúc sư tư vấn định hướng thiết kế ban đầu, làm rõ các phương án phù hợp và giải đáp những vấn đề liên quan để thống nhất hướng triển khai.
Bước 2: Ký kết hợp đồng và khảo sát hiện trạng
Sau khi thống nhất nội dung làm việc, hai bên tiến hành ký hợp đồng thiết kế. Đội ngũ kỹ thuật NEOHouse trực tiếp khảo sát khu đất, đo đạc hiện trạng, đánh giá địa hình, hạ tầng và các yếu tố ảnh hưởng đến phương án thiết kế.
Bước 3: Thiết kế mặt bằng công năng và dựng phối cảnh 3D
Từ dữ liệu khảo sát, kiến trúc sư triển khai phương án bố trí mặt bằng công năng các tầng, đảm bảo khoa học và phù hợp với thói quen sinh hoạt của gia đình. Song song đó, phối cảnh 3D ngoại thất được dựng chi tiết để gia chủ hình dung rõ phong cách kiến trúc, tỷ lệ hình khối và diện mạo tổng thể của công trình khi hoàn thiện.

Bước 4: Triển khai hồ sơ kỹ thuật thi công
Khi phương án thiết kế được duyệt, NEOHouse tiến hành triển khai đầy đủ hồ sơ kỹ thuật thi công bao gồm kiến trúc, kết cấu và hệ thống điện nước. Hồ sơ được thực hiện bởi đội ngũ kiến trúc sư và kỹ sư chuyên môn cao, đồng thời hỗ trợ chủ đầu tư trong việc chuẩn bị hồ sơ xin cấp phép xây dựng theo quy định.
Bước 5: Bàn giao hồ sơ kiến trúc
Trước khi bàn giao, toàn bộ hồ sơ kiến trúc được kiểm tra và đối soát kỹ lưỡng giữa các bộ phận nhằm đảm bảo tính thống nhất, khả thi và thuận lợi khi thi công thực tế. Hồ sơ sau đó được bàn giao đầy đủ cho chủ đầu tư.
Bước 6: Thiết kế nội thất đồng bộ
Dựa trên hồ sơ kiến trúc đã hoàn thiện, NEOHouse tiếp tục triển khai thiết kế nội thất theo mức đầu tư, phong cách và nhu cầu sử dụng của gia đình. Phối cảnh 3D nội thất được thể hiện chi tiết cho từng không gian, đảm bảo sự đồng bộ với kiến trúc.
Bước 7: Bàn giao hồ sơ nội thất
Hồ sơ thiết kế nội thất được rà soát, khớp nối chặt chẽ với hồ sơ kiến trúc trước khi bàn giao. Điều này giúp quá trình thi công nội thất diễn ra thuận lợi, mang lại không gian sống hài hòa, tiện nghi và đúng định hướng thiết kế ban đầu.

NEOHouse – Công ty chuyên thiết kế, xây nhà vuông 2 tầng uy tín, giá tốt
NEOHouse JSC là đơn vị có hơn 12 năm kinh nghiệm trong lĩnh vực thiết kế thi công kiến trúc & nội thất nhà phố trọn gói. Chúng tôi tự hào là đơn vị uy tín hàng đầu, đã thực hiện hơn hàng trăm công trình trên khắp cả nước với đa dạng phong cách thiết kế khác nhau từ hiện đại, tân cổ điển đến phong cách tối giản,… NEOHouse không đơn thuần là mang đến cho khách hàng những mẫu thiết kế nhà đẹp, sáng tạo mà còn mang đến sự an tâm tuyệt đối với giải pháp thi công toàn diện, chuyên nghiệp cùng chi phí tối ưu nhất. Dưới đây là những giá trị mà khách hàng sẽ nhận được khi làm việc cùng NEOHouse:
- Cá nhân hóa theo nhu cầu của gia chủ: NEOHouse không áp dụng các mẫu thiết kế rập khuôn mà xây dựng phương án dựa trên thói quen sinh hoạt, số lượng thành viên và mong muốn riêng của từng gia đình. Cách tiếp cận này giúp công trình đáp ứng tốt công năng sử dụng lâu dài, đồng thời đảm bảo tính thẩm mỹ và sự tiện nghi khi đưa vào ở thực.
- Quy trình thi công bài bản, dễ kiểm soát: Mỗi công trình được triển khai theo hồ sơ thiết kế đã thống nhất ngay từ đầu, các hạng mục thi công được phân chia cụ thể theo từng giai đoạn. Quá trình thi công luôn có sự giám sát và kiểm soát chất lượng chặt chẽ bởi bộ phận giám sát. Giúp gia chủ dễ dàng theo dõi và an tâm hơn trong quá trình xây dựng.
- Cam kết tiến độ ngay từ giai đoạn ký hợp đồng: NEOHouse xây dựng kế hoạch thi công chi tiết và thể hiện rõ trong hợp đồng, bao gồm các mốc thời gian cụ thể cho từng hạng mục. Điều này giúp gia chủ chủ động sắp xếp kế hoạch, hạn chế kéo dài thời gian thi công và yên tâm hơn trong suốt quá trình xây dựng.
- Không phát sinh chi phí, thi công đúng bản vẽ đã thống nhất: Toàn bộ hạng mục thi công được triển khai bám sát hồ sơ thiết kế và dự toán ban đầu. NEOHouse kiểm soát chặt chẽ vật tư, khối lượng và quy trình thực hiện, giúp hạn chế tối đa phát sinh ngoài kế hoạch.
- Chính sách ưu đãi hấp dẫn: Khi lựa chọn dịch vụ xây dựng trọn gói, khách hàng được miễn phí 100% thiết kế kiến trúc và hỗ trợ giảm 50% chi phí thiết kế nội thất. Chính sách chi phí rõ ràng giúp gia chủ dễ dàng dự trù ngân sách, hạn chế phát sinh và chủ động hơn trong kế hoạch tài chính tổng thể.




Như vậy, NEOHouse đã gợi ý cho quý khách hàng toàn bộ các mẫu thiết kế nhà vuông 2 tầng đặc sắc, ấn tượng và được yêu thích nhất. NEOHouse mong rằng, thông qua nội dung mọi người có thể tìm thấy được mẫu nhà ưng ý và phù hợp dành cho ngôi nhà tương lai của mình. Nếu bạn có nhu cầu tư vấn thiết kế và thi công nhà phố, hãy liên hệ với chúng tôi qua hotline/zalo: 0937.100.202 để được bộ phận chuyên môn tại NEOHouse tư vấn, hỗ trợ nhanh chóng và chính xác nhất.