Thiết Kế Nhà Phố 2 Tầng 5x17m Tân Cổ Điển 3 Phòng Ngủ Tại Bình Phước – NP91

Nhà Phố Bán Cổ Điển / Thiết Kế Nhà Phố

nha pho 2 tang 5x17m tan co dien
  • Chủ đầu tưAnh Vĩnh
  • Địa điểmBình Phước
  • Diện tích5x17m
  • Quy mô dự ánNhà phố 2 tầng
  • Kinh phíKiến trúc 1 tỷ 750 triệu và nội thất 250 triệu
  • Nhóm thiết kếNEOHouse
  • Năm thiết kế2025
  • Mã dự ánBT91
  • “Neohouseへようこそ—Welcome to NEOhouse”

Các mẫu nhà 2 tầng 5x17m tân cổ điển đang là lựa chọn lý tưởng cho những gia đình mong muốn sở hữu không gian sống vừa sang trọng vừa tiện nghi. Với diện tích không quá lớn nhưng vẫn đảm bảo bố trí hợp lý 3 phòng ngủ, kiểu thiết kế này mang đến sự cân đối giữa thẩm mỹ và công năng. Trong bài viết này, hãy cùng NEOHouse tham khảo mẫu thiết kế nhà 2 tầng 5x17m tân cổ điển tại của anh Vĩnh – Bình Phước.

Tham khảo thêm: Mẫu Nhà Phố 2 Tầng 5x16m 2 Phòng Ngủ Hiện Đại Tại Ninh Thuận

Yêu cầu của chủ đầu tư về nhà phố 2 tầng 5x17m tân cổ điển

Gia đình anh Vĩnh hiện đang sinh sống tại Bình Phước trong ngôi nhà 4 thanh viên bao gồm: 2 vợ chồng anh và 2 hai con nhỏ. Năm nay, anh được tuổi làm nhà nên mong muốn chuẩn bị thật chu đáo cho việc xây dựng tổ ấm mới. Vốn là người yêu thích sự tinh tế và sang trọng, anh đặt ra yêu cầu thiết kế một ngôi nhà theo phong cách tân cổ điển và sử dụng hệ mái Thái. Phong cách thiết kế này không những mang đến vẻ đẹp bề thế, sang trọng mà còn đảm bảo đầy đủ công năng để đáp ứng nhu cầu sinh hoạt tiện nghi cho cả gia đình.

Trên lô đất rộng 9x26m, anh Vĩnh mong muốn công trình được triển khai với diện tích xây dựng 5x17m, diện tích còn lại sẽ được bố trí sân vườn, trồng cây xanh để có được một không gian mát mẻ, hài hòa với thiên nhiên bên ngoài. Về công năng, anh mong muốn bố trí: 3 phòng ngủ, 1 phòng thờ, 1 phòng khách và 1 phòng bếp – ăn nhằm mang lại không gian sinh hoạt tiện nghi, thoải mái cho các thành viên.

Bên cạnh yếu tố thẩm mỹ và công năng, anh cũng đặc biệt quan tâm đến chi phí đầu tư. Gia chủ mong muốn tổng kinh phí hoàn thiện ngôi nhà nằm trong mức dưới 2 tỷ đồng, đảm bảo vừa phù hợp với điều kiện tài chính, vừa sở hữu được không gian sống đẹp mắt, bền vững và đáp ứng nhu cầu lâu dài.

Xem ngay: Mẫu Nhà Phố 3 Tầng Tân Cổ Điển 5x12m Sang Trọng Tại Quận 3

Khám phá phối cảnh căn nhà phố 2 tầng 5x17m tân cổ điển

Nắm bắt được những yêu cầu và mong muốn của gia đình, các kiến trúc sư NEOHouse đã tư vấn cho anh Vĩnh phương án thiết kế nhà phố 2 tầng 5x17m tân cổ điển. Công trình vừa mang nét đẹp hoài cổ đặc trưng, vừa kết hợp khéo léo với các chi tiết hiện đại. Ngoài ra, việc lựa chọn vật liệu phù hợp giúp tổng thể công trình trở nên hài hòa, sang trọng nhưng vẫn có mức chi phí hợp lý, phù hợp với điều kiện của nhiều gia đình Việt.

Nhìn từ xa, tổng thể ngôi nhà phố 2 tầng 5x17m tân cổ điển gây ấn tượng ngay từ cái nhìn đầu tiên bởi vẻ đẹp thanh thoát và sang trọng. Kiến trúc được bao phủ bởi gam trắng sáng chủ đạo, kết hợp cùng các họa tiết vân đá mờ trên mặt tường và cột, tạo cảm giác bề mặt tựa đá tự nhiên đầy tinh tế. Hệ mái Thái màu xám ghi cao ráo với thiết kế dốc thoát nước tốt, giúp ngôi nhà luôn khô ráo, chống thấm dột và bền vững theo thời gian. Các chi tiết phào chỉ được đắp tỉ mỉ với đường nét sắc sảo, tạo điểm nhấn tinh tế và tôn lên vẻ đẹp kiêu sa của công trình. Đặc biệt, hệ cửa kính khung đen tạo điểm nhấn tương phản độc đáo, đồng thời giúp ngôi nhà luôn ngập tràn ánh sáng tự nhiên.

Mặt tiền chính là điểm điểm nhấn chính của ngôi nhà với tầng một nổi bật với sảnh chính bề thế, cột vuông ốp đá hoa cương sang trọng và bậc tam cấp lát đá đen. Giúp tổng thể mặt tiền trở nên sang trọng và thu hút hơn. Cửa chính của ngôi nhà 2 tầng 5x17m tân cổ điển sử dụng kính cường lực khung đen vừa mang tính hiện đại, vừa giúp nội thất thêm phần thoáng đãng. Hai bên sảnh được tô điểm bằng đèn tường cổ điển, tạo cảm giác ấm cúng và thanh lịch. Trên lầu hai, ban công vòm bán nguyệt kết hợp cùng cột tròn cân đối, lan can sắt mỹ thuật uốn lượn mềm mại, góp phần tôn lên vẻ duyên dáng đặc trưng của phong cách tân cổ điển.

Sự phối hợp hài hòa giữa sơn trắng sáng cùng mái Thái ghi xám và cửa kính khung đen đã mang lại tổng thể sang trọng, thanh lịch. Ngoài ra, phần đá ốp ở chân tường và khu vực sảnh không chỉ giúp công trình bền bỉ trước thời tiết mà còn làm nổi bật thêm vẻ sang trọng vốn có của ngôi nhà. Ngoại thất mẫu nhà phố 2 tầng 5x17m tân cổ điển cũng được đầu tư kỹ lưỡng. Hệ thống tường rào và cổng chắc chắn vừa đảm bảo an ninh, vừa giữ cho khuôn viên luôn thông thoáng. Khoảng sân lát gạch rộng rãi, sạch sẽ, thuận tiện cho việc đỗ xe, vui chơi hoặc tổ chức các hoạt động ngoài trời. Lối đi vào nhà được thiết kế khang trang, điểm xuyết thêm cây xanh, mang lại cảm giác gần gũi với thiên nhiên và sự thoải mái cho gia đình.

Xem thêm: Mẫu Nhà Phố 2 Tầng 5x19m 3 Phòng Ngủ Có Gara Tại Đồng Nai

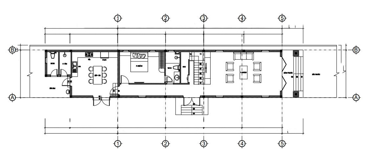
Chi tiết mặt bằng công năng nhà phố 2 tầng 5x17m tân cổ điển

Dựa theo yêu cầu về công năng của anh Vĩnh, các KTS của NEOHouse đã khéo léo bố trí không gian trong mẫu nhà phố 2 tầng 5x17m tân cổ điển một cách hợp lý và khoa học. Tầng 1 là không gian sinh hoạt chung với phòng khách rộng rãi ngay phía trước, liên thông cùng bếp và bàn ăn, mang lại sự thuận tiện và ấm cúng trong sinh hoạt hằng ngày. Phía sau được thiết kế một phòng ngủ riêng biệt, đảm bảo sự yên tĩnh, thích hợp cho người lớn tuổi. Nhà vệ sinh và cầu thang được đặt ở vị trí trung tâm, vừa gọn gàng vừa dễ di chuyển.

Lầu 2 là khu vực nghỉ ngơi và thờ cúng. Hai phòng ngủ được bố trí đối diện nhau qua sảnh thang, mỗi phòng đều có cửa sổ lớn đón ánh sáng và gió tự nhiên. Phòng thờ đặt ở phía trước, hướng ra ban công, vừa trang nghiêm vừa thông thoáng. Nhà vệ sinh chung được sắp xếp cạnh cầu thang, tiện lợi cho việc sử dụng. Nhờ cách bố trí hợp lý này, ngôi nhà vừa tối ưu diện tích, vừa đảm bảo sự tiện nghi và riêng tư cho cả gia đình.

Để xem được toàn bộ bảng thiết kế nhà 2 tầng 5x17m tân cổ điển, hãy liên hệ với NEOHouse qua hotline 0937.100.202. Đội ngũ chăm sóc khách hàng của chúng tôi luôn sẵn sàng hỗ trợ, giải đáp mọi thắc mắc và tư vấn phương án phù hợp nhất cho nhu cầu của gia đình bạn.

Kết luận 

Mẫu nhà phố 2 tầng 5x17m tân cổ điển của gia đình anh Vĩnh tại Bình Phước không chỉ đáp ứng trọn vẹn yêu cầu về thẩm mỹ, công năng và chi phí, mà còn mang lại không gian sống sang trọng, tiện nghi cho cả gia đình. Đây là một phương án thiết kế vừa tối ưu diện tích, vừa đảm bảo sự cân đối giữa kiến trúc và nhu cầu sinh hoạt thực tế. Nếu bạn cũng đang tìm kiếm ý tưởng cho tổ ấm tương lai của mình, hãy tham khảo thêm nhiều phương án thiết kế nhà phố đẹp khác tại NEOHouse.vn để lựa chọn thiết kế ưng ý nhất cho ngôi nhà của mình.

Trả lời