Khám Phá Mẫu Biệt Thự 1 Tầng Hiện Đại 150m2 Kết Hợp Nuôi Thú Cưng Tại Cà Mau – BT60

Biệt Thự 1 Tầng / Thiết Kế Biệt Thự Đẹp

Biet thu 1 tang hien dai 150m2
  • Chủ đầu tưAnh Nguyên
  • Địa điểmCà Mau
  • Diện tích150m2
  • Quy mô dự ánBiệt thự 1 tầng
  • Nhóm thiết kếNEOHouse
  • Năm thiết kế2025
  • Mã dự ánBT60
  • “Neohouseへようこそ—Welcome to NEOhouse”

Công ty kiến trúc NEOHouse tự hào là đơn vị thiết kế thi công biệt thự trọn gói uy tín với nhiều năm kinh nghiệm, mang đến cho gia đình Việt những không gian sống tiện nghi và hiện đại. Trong bài viết hôm nay, chúng tôi xin giới thiệu đến quý khách hàng mẫu biệt thự 1 tầng hiện đại 150m2 tại Cà Mau. Công trình được bố trí công năng khoa học với 1 phòng ngủ, bếp – ăn tiện nghi, đặc biệt là không gian riêng cho thú cưng cùng khu sân vườn rộng rãi, mang lại tổ ấm hài hòa và gần gũi thiên nhiên.

Tham khảo thêm: Thiết Kế Biệt Thự Vườn 1 Tầng 130m2 2 Phòng Ngủ Tại Tiền Giang

Yêu cầu tư vấn thiết kế biệt thự 1 tầng hiện đại 150m2

Anh Nguyên từ lâu đã ấp ủ mong muốn xây dựng một ngôi biệt thự hiện đại có sân vườn rộng lớn không chỉ là chốn an cư cho gia đình mà còn là không gian lý tưởng để nuôi và chăm sóc thú cưng. Sau quá trình hiểu cũng như tìm kiếm đối tác kỹ lưỡng, anh quyết định chọn NEOHouse là đơn vị sở hữu đội ngũ kiến trúc sư, kỹ sư giàu kinh nghiệm, có chuyên môn cao và luôn cập nhật những xu hướng về thiết kế biệt thự. Sau quá trình trao đổi, lắng nghe và tư vấn chi tiết, anh Nguyên đã tin tưởng lựa chọn chúng tôi để hiện thực hóa ngôi nhà biệt thự 1 tầng hiện đại diện tích 150m2 đầy tâm huyết của mình.

Trong buổi làm việc, anh Nguyên chia sẻ mong muốn về một không gian sống gần gũi với thiên nhiên, bao quanh là cây xanh, tiểu cảnh và bãi cỏ rộng để chó mèo có không gian vui chơi. Anh muốn ngôi nhà được thiết kế theo phong cách hiện đại, kết hợp hệ cửa kính lớn giúp đón gió mát, ánh sáng tự nhiên, mang đến sự thông thoáng và thoải mái.

Về mặt bằng công năng, anh Nguyên yêu cầu bố trí đơn giản, tiện nghi, bao gồm: phòng khách, bếp + ăn, một phòng ngủ và đặc biệt là một phòng dành riêng cho mèo – thú cưng mà gia đình rất yêu quý. Bố cục ngôi nhà vừa đảm bảo công năng sinh hoạt, vừa tạo môi trường sống thân thiện với thiên nhiên, đúng như mong muốn ban đầu của anh.

Tìm hiểu thêm: Mẫu Biệt Thự Sân Vườn 1 Tầng 3 Phòng Ngủ Mái Nhật Đẹp, Hiện Đại Tại Đồng Nai

Thiết kế phối cảnh biệt thự 1 tầng hiện đại 150m2 

Nhìn từ xa, ngoại thất căn biệt thự 1 tầng hiện đại 150m2 nổi bật với phong cách hiện đại, đơn giản nhưng tinh tế kết hợp mái bằng, phía trên mái tận dụng làm vườn trên cao phủ đầy cây xanh và dây leo mềm mại. Thiết kế này không chỉ mang đến vẻ đẹp độc đáo về kiến trúc mà còn giúp điều hòa không khí, mang lại sự mát mẻ dễ chịu cho không gian sống. Toàn bộ mặt tiền sử dụng hệ cửa kính lớn trong suốt, mở rộng tầm nhìn, đón trọn ánh sáng tự nhiên và tạo sự kết nối hài hòa với khu vườn. Các mảng gỗ ốp tường kết hợp cùng sắc trắng và xám của gạch lát sân tạo nên tổng thể sang trọng nhưng vẫn gần gũi, ấm áp.

Điểm nhấn quan trọng của biệt thự 1 tầng hiện đại 150m2 là sân vườn rộng lớn, được thiết kế tỉ mỉ với nhiều nhiều cây xinh kết hợp với tiểu cảnh và những bãi cỏ xanh mướt tạo nên không gian hoàn hảo để gia đình thư giãn và thú cưng vui đùa. Một góc vườn bố trí bàn ghế mây tre cho những bữa ăn ngoài trời, gần đó là ghế xích đu giữa mảng xanh nơi lý tưởng để đọc sách, ngắm cảnh. Ngôi nhà còn sở hữu lối sàn gỗ dẫn ra khu vực mặt nước, được trang bị lan can và đèn chiếu sáng, vừa an toàn vừa lãng mạn vào buổi tối. Đây cũng là nơi những chú mèo thảnh thơi dạo chơi. Bao quanh nhà là bồn hoa rực rỡ, cây cảnh gọn gàng, kết hợp cùng cây cổ thụ và thủy sinh, khẳng định sự hòa hợp tuyệt đối giữa kiến trúc và thiên nhiên sông nước.

Xem thêm: Mẫu Biệt Thự Nhà Vườn Mini 1 Tầng Mái Thái 11x18m Tại Thanh Hóa

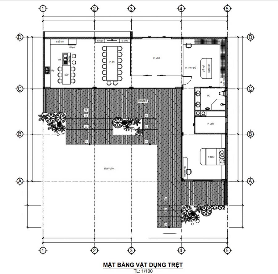
Chi tiết mặt bằng công năng biệt thự 1 tầng hiện đại 150m2

Mặt bằng công năng ngôi biệt thự 1 tầng hiện đại 150m2 được bố trí khoa học theo dạng chữ L, tạo nên không gian sống vừa tiện nghi vừa gắn kết chặt chẽ với thiên nhiên. Ở khu vực phía trước, không gian bếp hiện đại kết hợp cùng đảo bếp và phòng ăn lớn được sắp xếp liền kề, mang đến sự thuận tiện cho sinh hoạt gia đình cũng như tiếp khách. Ngay cạnh đó, anh Nguyên còn dành riêng một phòng cho thú cưng, thiết kế mở hướng ra sân vườn để chó mèo có thể vui chơi thoải mái.

Khu vực tiện ích được bố trí hợp lý với phòng thay đồ nối liền phòng vệ sinh – phòng tắm rộng rãi và một phòng giặt riêng biệt. Phòng ngủ master đặt ở góc cuối ngôi nhà, sở hữu cửa sổ lớn hướng ra vườn, mang đến không gian nghỉ ngơi yên tĩnh và thoáng mát. Tâm điểm của công trình chính là sân vườn rộng lớn ở trung tâm, lát gạch xen kẽ mảng xanh và tiểu cảnh, vừa nâng cao giá trị thẩm mỹ vừa là nơi lý tưởng để gia đình sum họp, thư giãn và thú cưng chạy nhảy mỗi ngày. Đây chính là sự kết hợp hài hòa giữa công năng và cảnh quan, làm nên sức hút riêng biệt của ngôi biệt thự 1 tầng hiện đại 150m2.

Kết luận

Ngôi biệt thự 1 tầng hiện đại 150m2 của anh Nguyên không chỉ đơn thuần là nơi ở, mà còn là không gian gắn kết tình cảm gia đình và thú cưng trong bầu không khí xanh mát, chan hòa cùng thiên nhiên. Đây chính là minh chứng cho một lối sống hiện đại, tiện nghi nhưng vẫn gần gũi, giản dị điều mà NEOHouse luôn mong muốn mang đến cho mỗi khách hàng.

Trả lời