Bản vẽ mặt bằng nhà phố đóng vai trò vô cùng quan trọng, giúp chủ đầu tư dễ dàng hình dung tổng thể cấu trúc, diện tích và cách sắp xếp từng không gian chức năng trong ngôi nhà. Dựa trên bản thiết kế này, khi các kiến trúc sư đưa ra phương án bố trí, gia chủ nắm bắt cũng như đưa ra các nhận xét và cải thiện phù hợp. Tùy thuộc vào như diện tích và nhu cầu của chủ nhà mà mặt bằng công năng có thể được bố trí khác nhau. Trong bài viết này, NEOHouse.vn sẽ cùng bạn tìm hiểu chi tiết về khái niệm mặt bằng nhà phố và gợi ý nhiều cách mẫu bố trí với nhiều quy mô, diện tích và cách bố trí khác nhau.
Mặt bằng nhà phố là gì?
Mặt bằng nhà phố là bản vẽ kỹ thuật cơ bản nhưng cực kì quan trọng, cung cấp cái nhìn tổng thể về cấu trúc và công năng của ngôi nhà. Từ đây, kiến trúc sư sẽ sắp xếp bố cục các khu vực chức năng như phòng khách, bếp, phòng ngủ, vệ sinh hay ban công một cách khoa học, hợp lý dựa trên nhu cầu sinh hoạt gia đình. Cùng với đó, bản vẽ giúp định vị chính xác các hạng mục kỹ thuật như cửa ra vào, cửa sổ và hệ thống điện nước, đảm bảo mọi chi tiết đều tối ưu, thuận tiện và an toàn khi sử dụng.
Thiết kế chính xác ngay từ đầu không chỉ tối ưu diện tích sử dụng và tránh lãng phí không gian mà còn tạo nền tảng vững chắc cho quá trình thi công. Nhờ đó, đội ngũ xây dựng có thể triển khai công việc một cách chính xác, giảm thiểu sai sót và hạn chế chi phí phát sinh. Đồng thời đảm bảo mọi ý tưởng thiết kế được thực hiện trọn vẹn, mang lại không gian sống tiện nghi và thoải mái cho gia chủ.

Đặc điểm nổi bật của mặt bằng nhà phố
Trong lĩnh vực thiết kế và xây dựng nhà ở, mặt bằng nhà phố đóng vai trò là tài liệu kỹ thuật cốt lõi và quan trọng bậc nhất. Đây không chỉ là một bản vẽ đơn thuần, mà là bản đồ chi tiết giúp trực quan hóa toàn bộ ý tưởng về bố cục không gian và công năng sử dụng giữa chủ đầu tư cùng đơn vị thiết kế, thi công. Dưới đây là những đặc điểm nổi bật của mặt bằng nhà phố:
Góc nhìn tổng thể 2D
Mặt bằng nhà phố là hình chiếu bằng, được thể hiện dưới góc nhìn trực quan 2D như thể ngôi nhà được “cắt ngang” và nhìn thẳng từ trên xuống. Đặc điểm này giúp gia chủ và kiến trúc sư dễ dàng hình dung tổng thể cấu trúc, sự phân chia không gian của từng tầng một cách rõ ràng. Với khả năng bao quát này cho phép đánh giá ngay lập tức sự lưu thông và liên kết giữa các khu vực. Từ đó giúp dễ dàng đưa ra các phương án điều chỉnh bố cục tối ưu nhất, không chỉ dựa trên nhu cầu sinh hoạt mà còn các yếu tố về phong thủy cho ngôi nhà.

Công năng và bố trí chi tiết
Bản vẽ thể hiện rõ vị trí, kích thước và hình dạng của các kết cấu như tường, cột, sàn, cầu thang cùng hướng mở của cửa đi và cửa sổ. Đồng thời, nó xác định mối liên hệ giữa các khu vực chức năng quan trọng như phòng khách, bếp – ăn, phòng ngủ, WC và sân phơi. Nhờ vậy, không gian được sắp xếp khoa học, tiện nghi, thuận tiện cho sinh hoạt hàng ngày và tối ưu diện tích sử dụng.

Tiêu chuẩn kỹ thuật và tính thống nhất cao
Bản vẽ mặt bằng áp dụng hệ thống ký hiệu kỹ thuật thống nhất theo tiêu chuẩn xây dựng, tạo thành ngôn ngữ chuyên môn chung xuyên suốt toàn bộ dự án. Tính thống nhất này là yếu tố then chốt giúp các kỹ sư và đội thi công đọc hiểu bản thiết kế dễ dàng, nhanh chóng và không sai lệch. Điều này đảm bảo quá trình xây dựng diễn ra chính xác, nhất quán theo đúng ý đồ thiết kế.

Bố trí mặt bằng nhà phố theo số tầng
Mẫu mặt bằng nhà phố 1 tầng
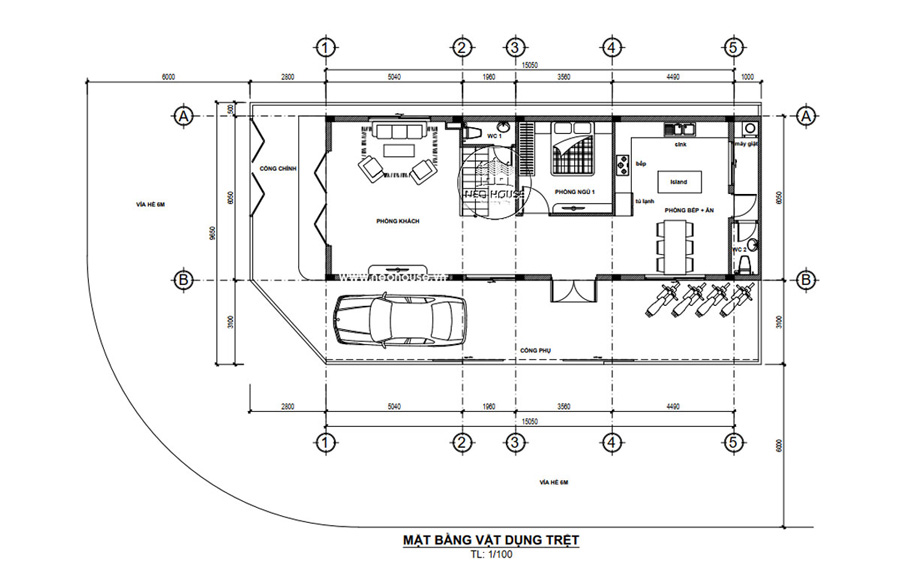
Mặt bằng nhà phố 1 tầng mang đến không gian sống tiện nghi, thoáng đãng và gần gũi với thiên nhiên. Thiết kế này được nhiều gia đình yêu thích nhờ bố trí gọn gàng, dễ di chuyển, thuận tiện trong vệ sinh và chi phí xây dựng hợp lý. Phong cách đơn giản nhưng tinh tế phù hợp với gia đình nhỏ, ít thành viên.
Khu vực sinh hoạt chung bao gồm phòng khách, bếp + ăn cùng phòng thờ được thiết kế mở tạo nên sự thông thoáng và kết nối tự nhiên giữa các không gian. Bên trong là hai phòng ngủ, gồm một phòng master có vệ sinh riêng và một phòng ngủ thường. Đối diện là khu vệ sinh chung, nhà kho và khu giặt kết hợp lối ra sân sau. Cách bố trí hợp lý giúp tối ưu diện tích, đảm bảo sự tiện nghi và mang đến cảm giác thoải mái cho cả gia đình.

Mẫu mặt bằng nhà phố 2 tầng
Mặt bằng nhà phố 2 tầng là lựa chọn lý tưởng cho gia đình 4-5 thành viên, mang đến không gian sống tiện nghi, thoáng mát và tối ưu diện tích. Với thiết kế hiện đại, bố cục khoa học, ngôi nhà đảm bảo sự hài hòa giữa thẩm mỹ và công năng, đồng thời tạo cảm giác gần gũi, thoải mái trong sinh hoạt hằng ngày.

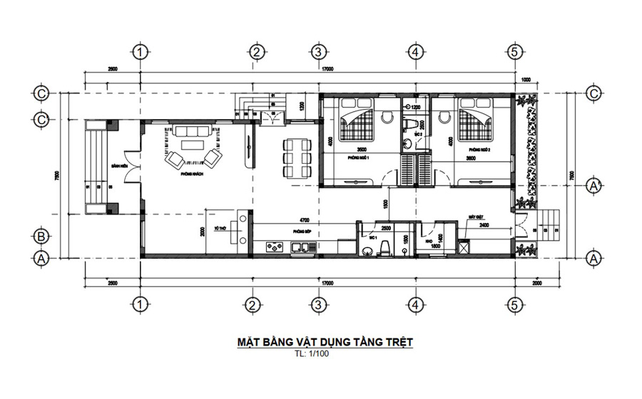
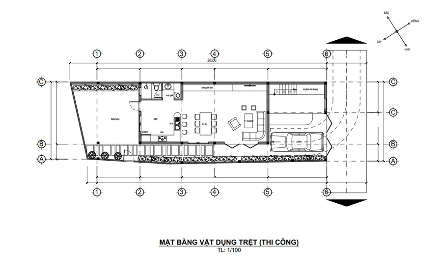
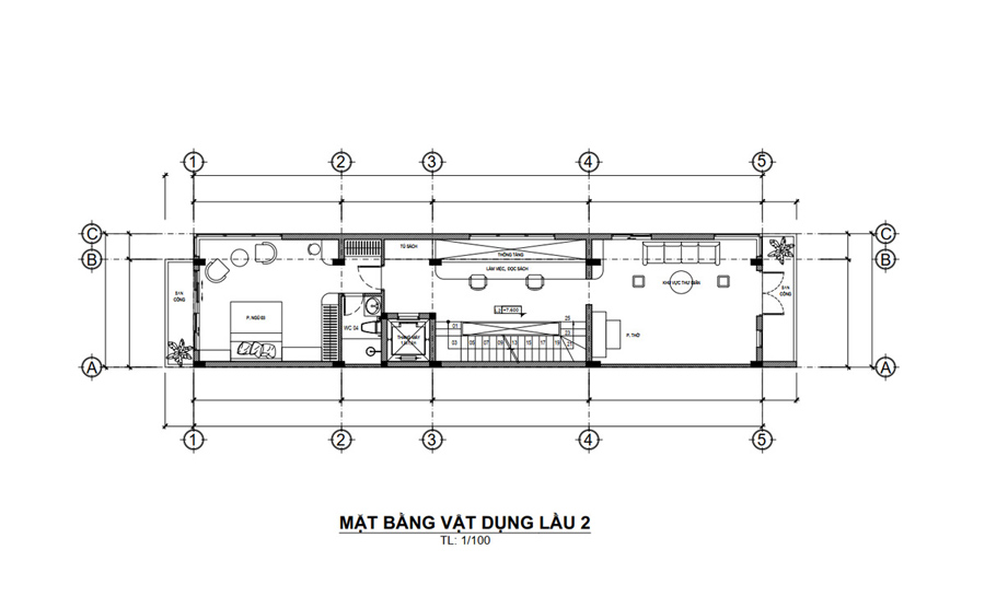
Tầng trệt bao gồm sân trước rộng rãi, phòng khách liên thông bếp – ăn tạo không gian mở, dễ di chuyển. Phía sau là hai phòng ngủ, trong đó một phòng khép kín và một phòng hướng ra sân sau mát mẻ, kèm khu giặt phơi và vệ sinh chung. Lầu 1 bố trí hai phòng ngủ cạnh nhau, một phòng có ban công sau, trung tâm là không gian sinh hoạt chung. Phòng thờ hướng ra sân thượng thoáng mát, kết hợp khu học tập và góc thư giãn nhỏ cạnh cầu thang thông tầng.

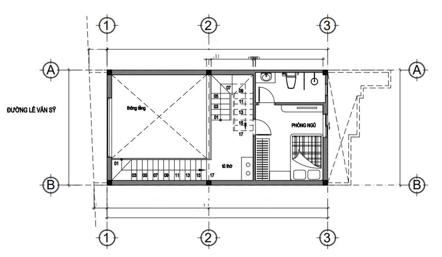
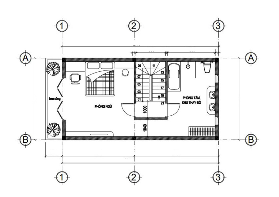
Mẫu mặt bằng nhà phố 3 tầng
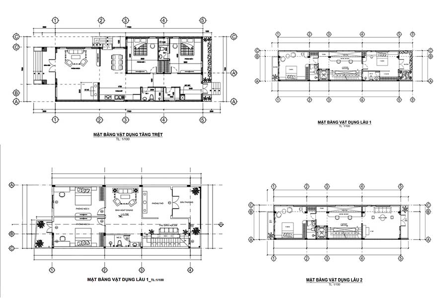
Mặt bằng nhà phố 3 tầng đặc biệt phù hợp với gia đình có nhiều thế hệ cùng sinh sống. Với tổng diện tích lớn hơn, mặt bằng ngôi nhà có thể được bố trí được nhiều phòng ngủ và bố trí linh hoạt hơn. Thiết kế này không chỉ đảm bảo công năng đầy đủ mà còn mang đến sự thông thoáng, hiện đại và phù hợp với nhịp sống đô thị. Các khu vực chức năng có được phân chia rõ ràng các khu vực sinh hoạt chung và riêng, tạo sự thuận tiện và thoải mái cho từng thành viên trong gia đình.

Tầng trệt thiết kế sân trước rộng, vừa để xe vừa tạo mảng xanh tiểu cảnh giúp mặt tiền thêm sinh động. Phòng khách nối liền bếp và bàn ăn, bố trí thông thoáng để lưu thông khí và tránh ám mùi khi nấu nướng. Cuối nhà có hai phòng ngủ, một phòng khép kín, một phòng hướng ra bàn ăn, cùng khu vệ sinh chung, sân sau kết hợp giặt phơi và tiểu cảnh nhỏ.

Lầu 1 gồm hai phòng ngủ, trong đó một phòng có ban công sau, trung tâm tầng là không gian sinh hoạt chung kết nối với phòng thờ hướng ra sân thượng trước, đảm bảo thoáng mát và trang nghiêm. Cạnh phòng thờ là khu học tập, thư giãn cùng cầu thang thông tầng. Lầu 2 là khu vực sảnh tum và sân thượng rộng, có thể bố trí cây xanh, bàn trà hoặc làm nơi thư giãn, tận hưởng không khí trong lành và ngắm cảnh thành phố.

Bố trí mặt bằng nhà phố theo diện tích mặt tiền
Mẫu mặt bằng nhà phố 4m
Đối với những gia đình sinh sống tại khu đô thị lớn, nơi quỹ đất hạn chế nhưng vẫn mong muốn có không gian sống tiện nghi và đầy đủ công năng thì mẫu mặt bằng nhà phố 4m là một giải pháp tối ưu. Với mặt tiền nhỏ gọn, thiết kế được khai thác theo chiều cao giúp ngôi nhà vừa đảm bảo thẩm mỹ, vừa tối ưu diện tích sử dụng. Cách bố trí thông minh giữa các tầng giúp không gian luôn thoáng đãng, tận dụng tối đa ánh sáng và gió tự nhiên.
Tầng trệt của ngôi nhà được bố trí phòng khách ngay cửa cửa chính, kết hợp bộ sofa và hai ghế đơn dài tạo cảm giác ấm cúng. Kế bên là khu vực piano, kệ sách và cầu thang thông tầng ở trung tâm nhà. Phía trong là không gian bếp + ăn rộng rãi, thông thoáng, cuối nhà bố trí phòng vệ sinh chung, bồn rửa tay và tiểu cảnh nhỏ tạo điểm nhấn.

Lầu 1 gồm một phòng ngủ hướng ra ban công mặt tiền, phòng vệ sinh chung ngay bên cạnh, cùng khu cầu thang và nhà kho lớn phía trong. Lầu 2 có hai phòng ngủ, một phòng hướng ra ban công trước, một phòng ở cuối nhà, giữa là cầu thang và vệ sinh chung. Tầng tum bố trí phòng thờ thông thoáng, đón sáng tự nhiên, sân thượng trước dùng để thư giãn và trồng cây xanh, sân sau làm khu giặt phơi tiện lợi.

Mẫu mặt bằng nhà phố 5m
Mẫu mặt bằng nhà phố 5m phù hợp với các gia đình sinh sống tại khu đô thị hoặc khu dân cư có diện tích vừa phải, mong muốn sở hữu không gian sống hiện đại, tiện nghi và thoáng đãng. Với chiều ngang 5m, ngôi nhà vẫn đảm bảo đầy đủ công năng nhờ cách bố trí hợp lý, tận dụng tối đa ánh sáng tự nhiên và các khoảng xanh quanh nhà. Nhờ đó, không gian sống trở nên hài hòa, dễ chịu và đáp ứng tốt nhu cầu sinh hoạt của các thành viên trong gia đình.
Về công năng sử dụng, tầng trệt được thiết kế dành cho các không gian sinh hoạt chung. Bước vào từ cửa chính là phòng khách hiện đại, thông thoáng, liền kề với khu bếp và bàn ăn thiết kế mở, không vách ngăn, giúp không gian thêm rộng rãi và dễ kết nối. Khu bếp có cửa sổ kính lớn để thông gió, tránh ám mùi, đồng thời lấy sáng tự nhiên cho căn nhà. Đối diện khu bếp là phòng vệ sinh chung, khu giặt và lối ra sân sau, tạo sự thuận tiện trong sinh hoạt hằng ngày.

Lên đến lầu 1, không gian riêng tư được bố trí hợp lý với hai phòng ngủ và một phòng vệ sinh chung. Trong đó, phòng ngủ master có diện tích rộng, tích hợp nhà vệ sinh riêng, phòng ngủ còn lại nhỏ hơn nhưng vẫn đảm bảo thông thoáng và tiện nghi. Đặc biệt, khu vực sân thượng được tận dụng làm nơi sinh hoạt ngoài trời, bố trí bàn ăn, bếp nấu mini và khu nướng BBQ. Đây là không gian lý tưởng để cả gia đình quây quần, trò chuyện và tổ chức những bữa tiệc ấm cúng vào dịp cuối tuần.

Mẫu mặt bằng nhà phố 6m
Mặt bằng công năng của nhà mặt tiền 6m được bố trí khoa học, tối ưu hóa diện tích và mang đến sự tiện nghi cho sinh hoạt gia đình. Với lợi thế chiều ngang khá rộng, không gian bên trong được sắp xếp hợp lý, đảm bảo sự thoáng đãng và tính kết nối giữa các khu vực chức năng.
Phía trước nhà là khoảng sân rộng kết hợp tiểu cảnh xanh mát và khu vực để xe ô tô, vừa tăng tính thẩm mỹ vừa tạo cảm giác gần gũi. Tiến vào bên trong là phòng khách, phòng ăn và bếp được thiết kế liên thông theo xu hướng không gian mở, giúp căn nhà luôn sáng thoáng và đón gió tự nhiên. Cuối nhà là phòng ngủ và nhà vệ sinh chung, đảm bảo sự riêng tư và thuận tiện cho sinh hoạt hàng ngày.

Không gian lầu 1 là khu vực nghỉ ngơi chính của các thành viên trong gia đình, gồm 3 phòng ngủ có diện tích tương đương nhau. Trong đó, phòng ngủ master được bố trí nhà vệ sinh khép kín, hai phòng còn lại dành cho các con. Phòng thờ hướng ra phía trước mặt tiền, đảm bảo ánh sáng và yếu tố phong thủy. Nhà vệ sinh chung được bố trí ở giữa, thuận tiện cho việc di chuyển và sử dụng.

Mẫu mặt bằng nhà phố 7m
Mặt bằng nhà phố 7m mang đến lợi thế về không gian sử dụng, đáp ứng nhu cầu về một nơi ở rộng rãi và thoáng đãng cho các gia đình hiện đại. Nhờ bề ngang lớn, ngôi nhà dễ dàng đón nắng, đón gió tự nhiên, giúp không gian sinh hoạt luôn thông thoáng và mang lại cảm giác thoải mái trong từng khu vực.

Tầng trệt là không gian sinh hoạt chung, từ sân trước bước vào là phòng khách đặt sát cửa chính, giúp đón sáng và gió tự nhiên. Đối diện phòng khách là cầu thang thông tầng cùng khu vực để xe máy gọn gàng, bên dưới cầu thang được tận dụng để bố trí nhà vệ sinh chung, tiết kiệm diện tích hiệu quả. Tiếp nối là khu vực ăn và bếp liên thông, hướng ra sân sau để đảm bảo sự thông thoáng và tránh đọng mùi thức ăn. Cạnh phòng bếp là phòng ngủ của ông bà, đầy đủ tiện nghi và thuận tiện sinh hoạt.

Trên lầu 1, công năng được bố trí gồm 2 phòng ngủ và các khu vực phụ trợ. Phòng ngủ master của vợ chồng anh có lối ra ban công phía trước, đón sáng và gió tự nhiên. Phòng ngủ còn lại dành cho bé gái, bố trí gọn gàng, ấm cúng. Đối diện phòng ngủ master là không gian phòng thờ hướng ra mặt tiền, vừa đảm bảo phong thủy vừa giúp lưu thông không khí tốt. Phía sau là khu vực giặt và sân phơi, được thiết kế tách biệt để giữ không gian tầng trên luôn sạch sẽ, tiện nghi.

Mẫu mặt bằng nhà phố 8m
Mặt bằng nhà phố 8m mang đến không gian sống rộng rãi, thông thoáng và sang trọng, rất phù hợp với các gia đình có đông thành viên hoặc mong muốn sở hữu một ngôi nhà kết hợp giữa tiện nghi và thẩm mỹ. Với lợi thế bề ngang lớn, ngôi nhà dễ dàng đón sáng, đón gió tự nhiên, giúp mọi không gian bên trong luôn thoáng mát và hài hòa.

Về công năng, tầng trệt được bố trí khoa học với khoảng sân trước rộng, có thể dùng làm gara ô tô, xe máy kết hợp tiểu cảnh xanh tạo điểm nhấn sinh động. Phòng khách đặt sát cửa chính, thiết kế cửa kính lớn giúp lấy sáng tự nhiên và tạo cảm giác mở rộng. Kế bên là cầu thang thông tầng, đối diện là khu vực bếp và bàn ăn rộng rãi, đảm bảo sự lưu thông khí và tránh đọng mùi thức ăn. Cuối nhà là phòng ngủ dành cho ông bà cùng nhà vệ sinh chung tiện lợi.

Tầng lầu gồm 3 phòng ngủ được bố trí hợp lý, trong đó phòng master có nhà vệ sinh riêng và lối ra ban công trước, hai phòng còn lại dùng cho con và khách. Phòng vệ sinh chung đặt giữa tầng, thuận tiện cho sinh hoạt. Trên tầng tum là không gian phòng thờ hướng ra sân thượng trước, đảm bảo thông thoáng và hợp phong thủy. Bên cạnh là phòng gym rộng 3×4.5m, đáp ứng nhu cầu rèn luyện sức khỏe. Phía sau là khu giặt phơi và sân thượng xanh mát nơi gia chủ có thể thư giãn, trồng cây và tận hưởng không khí trong lành.

Bố trí mặt bằng nhà phố theo diện tích xây dựng
Mẫu mặt bằng nhà phố 4x12m
Mẫu nhà phố 4x12m mang đến giải pháp tối ưu cho những gia đình sinh sống tại khu vực đô thị, nơi quỹ đất ngày càng thu hẹp. Dù diện tích không lớn, nhưng nhờ cách tổ chức không gian khoa học và thiết kế hợp lý, ngôi nhà vẫn đảm bảo sự tiện nghi, thông thoáng và đáp ứng đầy đủ nhu cầu sinh hoạt của các thành viên. Kiến trúc tổng thể hướng đến sự gọn gàng, tiết kiệm diện tích nhưng vẫn tạo cảm giác rộng rãi và thoải mái trong quá trình sử dụng.

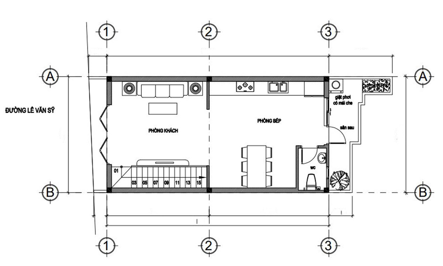
Về công năng, tầng trệt được bố trí khu vực để xe phía trước, tiếp đến là không gian bếp kết hợp bàn ăn và nhà vệ sinh chung. Do không có phòng khách nên khu vực này khá rộng rãi, thuận tiện cho các buổi sum vầy, ăn uống của gia đình. Tầng lửng được tận dụng làm phòng khách với thiết kế thông tầng, giúp không gian thêm sáng thoáng và kết nối liền mạch giữa các tầng. Nội thất sử dụng tông màu sáng, tạo cảm giác gần gũi, hiện đại và ấm cúng.

Lên đến lầu 1 và lầu 2 là các không gian nghỉ ngơi. Lầu 1 gồm 2 phòng ngủ và 1 phòng vệ sinh chung, trong đó có 1 phòng có lối ra ban công mặt tiền. Lầu 2 là phòng ngủ master rộng rãi của vợ chồng gia chủ, tích hợp phòng thay đồ, vệ sinh riêng và ban công hướng ra trước nhà. Tầng tum được bố trí khu giặt phơi, nhà vệ sinh chung và sân thượng rộng thoáng, nơi gia đình có thể trồng cây xanh, thư giãn hoặc tổ chức tiệc BBQ vào dịp cuối tuần.

Mẫu mặt bằng nhà phố 4x17m
Mẫu nhà phố 4x17m là lựa chọn lý tưởng cho những gia đình sinh sống tại khu vực đô thị, đặc biệt phù hợp với những lô đất có chiều dài sâu. Với lợi thế này, kiến trúc sư dễ dàng bố trí các không gian chức năng một cách hợp lý, tạo nên ngôi nhà vừa tiện nghi vừa thông thoáng. Dù mặt tiền không quá lớn, nhưng nhờ cách tổ chức mặt bằng khoa học và thiết kế mở, mẫu nhà 4x17m vẫn mang đến cảm giác rộng rãi, thoải mái, đồng thời đảm bảo yếu tố thẩm mỹ và công năng trong từng khu vực sinh hoạt.

Mặt bằng công năng của mẫu nhà phố 4x17m được bố trí hợp lý, mang đến không gian sống tiện nghi và thông thoáng. Tầng trệt gồm phòng khách đặt sát cửa chính, đón sáng và gió tự nhiên, kết hợp tiểu cảnh xanh giúp không gian thêm trong lành. Khu vực giữa là cầu thang thông tầng, phía trong là phòng bếp kết hợp bàn ăn thiết kế mở, đảm bảo lưu thông khí và hạn chế mùi thức ăn. Cuối cùng là nhà vệ sinh chung bố trí kín đáo, thuận tiện cho sinh hoạt.

Lầu 1 là không gian nghỉ ngơi với phòng ngủ master của vợ chồng gia chủ hướng ra ban công trước, có vệ sinh riêng và khu thay đồ. Phòng ngủ con trai nằm phía sau, có ban công và nhà vệ sinh khép kín. Lầu 2 gồm phòng ngủ con gái hướng ra trước, tích hợp vệ sinh riêng, cùng không gian sinh hoạt chung và một nhà vệ sinh chung. Tầng tum bố trí phòng thờ hướng ra sân thượng trước, đảm bảo sự thông thoáng và trang nghiêm. Sân trước là nơi thư giãn, trồng cây xanh, còn sân sau dùng để giặt phơi, mang lại sự tiện nghi và hài hòa cho ngôi nhà.

Mẫu mặt bằng nhà phố 4×20
Mẫu nhà phố 4x20m là giải pháp lý tưởng cho những gia đình mong muốn không gian sống rộng rãi và đầy đủ tiện nghi. Với chiều dài 20m, ngôi nhà cho phép bố trí các khu vực chức năng một cách khoa học, giúp việc sinh hoạt trở nên thuận tiện và linh hoạt hơn. Bố cục tổng thể được sắp xếp hợp lý, tạo sự kết nối hài hòa giữa các tầng, mang lại cảm giác thoải mái, hiện đại và phù hợp với nhịp sống đô thị ngày nay.

Mặt bằng nhà phố 4x20m được thiết kế tối ưu, đáp ứng đầy đủ nhu cầu sinh hoạt và mang lại sự thoáng đãng cho không gian sống. Tầng trệt bố trí khu vực gara để xe kết hợp sân vườn trước, sân vườn sau và sân bên hông, giúp ngôi nhà luôn xanh mát và tràn ngập ánh sáng tự nhiên. Bước vào bên trong là không gian phòng khách sang trọng, liên thông với khu vực bếp và bàn ăn, tạo sự kết nối hài hòa giữa các không gian. Khu vực cầu thang bộ, thang máy và nhà vệ sinh chung được đặt ở trung tâm nhà, đảm bảo sự thuận tiện khi di chuyển và sử dụng.

Lầu 1 gồm 2 phòng ngủ rộng rãi, mỗi phòng đều có vệ sinh riêng và lối ra ban công, mang lại không gian nghỉ ngơi riêng tư và thoải mái. Xen giữa hai phòng ngủ là khu vực làm việc và đọc sách yên tĩnh dành cho gia chủ. Tầng tum được bố trí phục vụ nhu cầu thư giãn và sinh hoạt chung, với sân thượng trước đặt bàn trà, trồng cây xanh, còn sân thượng sau là khu vực ăn uống ngoài trời lý tưởng cho các buổi tiệc BBQ hoặc họp mặt gia đình. Ngoài ra, tầng này còn có nhà vệ sinh nhỏ đặt cạnh thang máy, mang đến sự tiện nghi trong quá trình sử dụng.

Mẫu mặt bằng nhà phố 5x10m
Nhà phố 5x10m mang đến giải pháp sống tiện nghi giữa lòng đô thị chật hẹp. Mỗi không gian đều được sắp xếp tinh tế, vừa đảm bảo sự riêng tư, vừa tạo cảm giác gắn kết cho các thành viên trong gia đình. Dù diện tích nhỏ, ngôi nhà vẫn toát lên nét hiện đại, ấm cúng và tối ưu từng mét vuông sử dụng.

Mặt bằng nhà phố 5x10m được thiết kế tối ưu, phù hợp với những gia đình có diện tích đất khiêm tốn nhưng vẫn muốn đảm bảo sự tiện nghi trong sinh hoạt. Tầng trệt bố trí phòng khách liên thông với khu bếp và bàn ăn, tạo không gian mở liền mạch giúp căn nhà trở nên rộng và thoáng hơn. Phía sau là khu vực giặt phơi kết hợp sân nhỏ, hỗ trợ việc sinh hoạt hàng ngày và giữ cho ngôi nhà luôn gọn gàng, sạch sẽ. Tầng lửng được bố trí phòng ngủ có vệ sinh khép kín, phù hợp cho người lớn tuổi hoặc khách đến chơi, đảm bảo sự riêng tư và yên tĩnh. Bên cạnh đó là phòng thờ được đặt ở vị trí trung tâm, thể hiện sự trang nghiêm và tôn kính của gia chủ.

Lên đến lầu 2 là không gian nghỉ ngơi chính của gia đình, gồm phòng ngủ master tích hợp khu thay đồ và phòng tắm riêng, mang lại cảm giác thoải mái và tiện nghi. Lầu 3 bố trí hai phòng ngủ với nhà vệ sinh chung ở giữa, tạo sự cân đối trong bố cục và thuận tiện trong quá trình sử dụng, rất phù hợp cho gia đình có con nhỏ. Cuối cùng, tầng tum được tận dụng làm khu sân thượng trước và sau, nơi trồng cây xanh, phơi đồ hoặc tổ chức những buổi tiệc nhỏ. Nhờ thiết kế thông thoáng và mái kính hiện đại, không gian này vừa là góc thư giãn lý tưởng vừa góp phần mang lại sự tươi mới, trong lành cho toàn bộ ngôi nhà.

Mẫu mặt bằng nhà phố 5×20
Mặt bằng nhà phố 5x20m được thiết kế hợp lý, đảm bảo sự tiện nghi và thông thoáng trong từng không gian sử dụng. Tầng trệt gồm sân trước rộng rãi dùng làm gara để xe kết hợp tiểu cảnh xanh mát. Bước vào nhà là không gian phòng khách sang trọng liên thông với khu vực bếp và bàn ăn, tạo cảm giác liền mạch, thoáng mở. Cuối nhà bố trí sân sau và khu giặt phơi tiện lợi, giúp ngôi nhà luôn sạch sẽ và thông khí tốt. Cầu thang và nhà vệ sinh chung được đặt giữa nhà, đảm bảo lưu thông thuận tiện và cân đối không gian.

Lầu 1 gồm hai phòng ngủ rộng rãi, mỗi phòng đều có vệ sinh riêng và cửa hướng ra ban công, mang đến sự riêng tư, thoải mái cho các thành viên. Xen giữa là khu vực sinh hoạt chung, nơi gia đình có thể thư giãn hoặc đọc sách. Lầu 2 được bố trí thêm phòng ngủ master có khu thay đồ, phòng tắm riêng và ban công lớn hướng ra mặt tiền, tạo không gian nghỉ ngơi đẳng cấp cho vợ chồng gia chủ.

Tầng tum là không gian thư giãn của cả nhà, với sân thượng trước bố trí bàn trà, trồng cây xanh, còn sân sau dành cho giặt phơi hoặc tổ chức tiệc nhỏ ngoài trời. Thiết kế mái kính hiện đại giúp lấy sáng tự nhiên, mang lại cảm giác thoáng đãng và gần gũi với thiên nhiên.

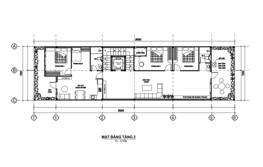
Mẫu mặt bằng nhà phố 6mx20m
Mặt bằng nhà phố 6x20m được bố trí khoa học, đảm bảo không gian sống tiện nghi, hiện đại và phù hợp với nhu cầu sinh hoạt của gia đình nhiều thế hệ. Tầng hầm được tận dụng làm khu vực để xe rộng rãi, có thêm kho chứa đồ và phòng tập gym tiện lợi, đáp ứng nhu cầu rèn luyện sức khỏe ngay tại nhà. Khu vực cầu thang thông tầng đặt gọn gàng ở vị trí trung tâm, giúp giao thông trong nhà thuận tiện và linh hoạt.

Tầng trệt gồm hai không gian sinh hoạt chính là phòng khách và khu vực bếp ăn. Phòng khách được bố trí ngay gần cửa chính, đón gió và ánh sáng tự nhiên, mang lại cảm giác thoáng đãng và sang trọng. Phía sau là phòng bếp kết hợp bàn ăn, có lối ra sân sau giúp lưu thông không khí và giảm mùi khi nấu nướng. Ở trung tâm là khu vực cầu thang, tiểu cảnh xanh và tủ trang trí tạo điểm nhấn thẩm mỹ cho toàn không gian.

Tầng 2 và tầng 3 được bố trí các phòng ngủ rộng rãi, mỗi phòng đều có nhà vệ sinh riêng và ban công hướng ra ngoài, đảm bảo sự riêng tư và thoải mái cho từng thành viên. Xen giữa là khu vực sinh hoạt chung và góc làm việc yên tĩnh.

Tầng tum gồm phòng thờ hướng ra sân thượng trước, đảm bảo yếu tố phong thủy và sự trang nghiêm. Phía sau là khu giặt phơi, sân sau thông thoáng giúp tận dụng ánh sáng và gió tự nhiên. Sân thượng trước có thể bố trí bàn trà, tiểu cảnh xanh, tạo nên không gian thư giãn và gắn kết cho các thành viên trong gia đình.

Bố trí mặt bằng nhà phố theo tiện ích sử dụng
Mẫu mặt bằng nhà phố có thang máy
Mẫu nhà phố có thang máy ngày càng được nhiều gia đình lựa chọn nhờ tính tiện nghi, hiện đại và phù hợp với những công trình nhiều tầng. Việc bố trí thang máy giúp việc di chuyển giữa các tầng trở nên dễ dàng, an toàn và tiết kiệm thời gian, đặc biệt hữu ích cho gia đình có người lớn tuổi hoặc trẻ nhỏ. Trong các mẫu thiết kế nhà phố, thang máy thường được đặt ở vị trí trung tâm hoặc phía sau cầu thang bộ, vừa đảm bảo tính thẩm mỹ, vừa thuận tiện kết nối các không gian chức năng.
Một số trường hợp, kiến trúc sư cũng bố trí thang máy ở cuối nhà để tối ưu diện tích tầng trệt, đặc biệt là khi cần dành nhiều không gian cho khu vực sinh hoạt chung như phòng khách, bếp hay gara. Tùy vào diện tích và nhu cầu sử dụng, vị trí thang máy sẽ được tính toán kỹ lưỡng nhằm mang lại sự cân đối, thông thoáng và đảm bảo công năng sử dụng hiệu quả nhất cho toàn bộ ngôi nhà.

Mẫu mặt bằng nhà phố có tầng lửng
Việc tích hợp tầng lửng (hay gác lửng) vào mặt bằng nhà phố là một giải pháp thiết kế thông minh, mang lại giá trị lớn về công năng và kinh tế. Thay vì phải xây thêm một tầng hoàn chỉnh với chi phí cao hơn và có thể bị giới hạn bởi quy định chiều cao, tầng lửng giúp gia chủ tối ưu hóa diện tích sử dụng theo chiều dọc với chi phí đầu tư thấp hơn đáng kể. Đặc biệt trong các ngôi nhà ống có mặt tiền hẹp, tầng lửng tạo ra một không gian đệm linh hoạt, có thể bố trí thành nhiều phòng chức năng khác nhau.
Cụ thể, gia chủ có thể tận dụng tầng lửng làm phòng ngủ yên tĩnh cho ông bà (nếu thiết kế cầu thang thuận tiện), phòng ngủ riêng tư cho khách ghé thăm, hoặc làm khu vực nghỉ ngơi, sinh hoạt cho người giúp việc. Ngoài ra, tầng lửng còn là vị trí lý tưởng cho phòng thờ trang nghiêm, phòng làm việc/thư viện tách biệt, hoặc khu sinh hoạt chung mở, giúp phân chia không gian hiệu quả, đồng thời giữ được sự thông thoáng và nét thẩm mỹ hiện đại cho toàn bộ tầng trệt.

Mẫu mặt bằng nhà phố lệch tầng
Thiết kế nhà phố lệch tầng là giải pháp kiến trúc hiện đại, đặc biệt phù hợp với lô đất nhà ống sâu và hẹp ngang ở đô thị. Kiểu nhà này được xác định bởi các mặt sàn bố trí so le, không cùng một mặt phẳng, kết hợp giếng trời và khoảng thông tầng, giúp không khí và ánh sáng tự nhiên lưu thông khắp nhà, loại bỏ cảm giác bí bách, đồng thời tạo tầm nhìn đa chiều và nét thẩm mỹ độc đáo.
Nhà lệch tầng tận dụng tối đa chiều sâu và chiều cao lô đất. Tầng trệt bố trí không gian sinh hoạt chung gồm phòng khách, bếp và khu vực ăn uống, kết hợp khoảng mở trước và sau để tăng sự thông thoáng. Tầng lửng có thể làm các phòng ngủ vừa tiện lợi vừa tối ưu diện tích. Các tầng trên chủ yếu là phòng ngủ với nhà vệ sinh khép kín, đảm bảo sự riêng tư cho các thành viên. Thiết kế lệch tầng kết hợp giếng trời mang đến không gian sống rộng rãi, tiện nghi và linh hoạt.

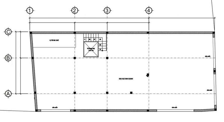
Mẫu mặt bằng nhà phố kết hợp kinh doanh
Thiết kế nhà phố kết hợp kinh doanh là một giải pháp kiến trúc tối ưu và được ưa chuộng hàng đầu tại các khu vực đô thị sầm uất, nhằm đáp ứng nhu cầu vừa có không gian sinh hoạt tiện nghi, vừa tận dụng mặt bằng đắc địa để tăng thêm thu nhập ổn định cho gia đình. Đây là sự kết hợp hoàn hảo, tận dụng lợi thế về vị trí mặt tiền để tối đa hóa giá trị sử dụng của bất động sản.
Khu vực kinh doanh thường được bố trí tại tầng trệt và được thiết kế không gian mở rộng rãi và thông suốt, tối giản vách ngăn để tối đa hóa diện tích trưng bày hoặc làm việc, đồng thời tạo sự chuyên nghiệp và thuận tiện cho khách hàng. Việc tách biệt khu vực kinh doanh với các tầng lầu sinh hoạt phía trên giúp đảm bảo sự riêng tư cần thiết, trong khi vẫn giữ được tính kết nối và tiện lợi cho gia chủ quản lý công việc kinh doanh của mình.

Mẫu mặt bằng nhà phố 2 mặt tiền
Thiết kế mặt bằng nhà phố 2 mặt tiền là lựa chọn đắc địa tại các đô thị nhờ sở hữu nhiều ưu điểm nổi bật. Ưu thế lớn nhất của loại hình này là khả năng tiếp xúc với ánh sáng và gió trời từ hai phía, giúp mọi không gian trong nhà đều thông thoáng và tràn ngập ánh sáng tự nhiên. Gia chủ có thể bố trí cửa sổ, ban công hoặc lô gia ở cả hai mặt tiền, khắc phục hoàn toàn nhược điểm bí bách thường gặp ở nhà ống truyền thống.
Nhà 2 mặt tiền còn mang lại tiềm năng kinh tế vượt trội. Vị trí hai mặt tiền lý tưởng để kết hợp kinh doanh, buôn bán hoặc cho thuê văn phòng. Thiết kế có thể phân tách lối vào riêng cho khu vực kinh doanh ở tầng trệt và khu sinh hoạt gia đình ở các tầng trên, đảm bảo tính độc lập, vừa tiện lợi vừa tối ưu hiệu quả thương mại. Đồng thời, ngôi nhà dễ dàng phô diễn kiến trúc độc đáo, với các giải pháp vát góc, ban công uốn lượn hay vật liệu kính và lam chắn, tạo tầm nhìn rộng rãi và vẻ đẹp hiện đại, sang trọng.

Bí quyết thiết kế mặt bằng nhà phố đẹp và khoa học
Trong thiết kế nhà phố hiện đại, mặt bằng không chỉ cần đảm bảo công năng mà còn phải phù hợp với phong cách sống và diện tích thực tế. Một mặt bằng được bố trí hợp lý sẽ giúp tối ưu không gian, tạo sự tiện nghi và mang lại cảm giác thoải mái cho cả gia đình. Dưới đây là những bí quyết giúp bạn tối ưu không gian sống một cách khoa học và thẩm mỹ.
Tối ưu công năng sử dụng
Tối ưu công năng sử dụng là yếu tố then chốt trong thiết kế mặt bằng do đó các khu vực chức năng chính như phòng khách, bếp, phòng ngủ cần được bố trí hợp lý, tạo lối đi thông suốt và tránh chồng chéo. Bên cạnh đó, không gian mở được ưu tiên nhằm gia tăng cảm giác rộng rãi mà không cần mở rộng diện tích xây dựng. Hơn nữa, việc thiết kế nên dựa trên thói quen sinh hoạt thực tế của từng gia đình, nhằm đảm bảo tiện dụng tối đa cho mọi thành viên.

Đảm bảo ánh sáng tự nhiên và phong thủy
Theo quan niệm Á Đông, phong thủy đóng vai trò quan trọng trong việc xây nhà bởi nó ảnh hưởng trực tiếp đến sự hài hòa năng lượng và tài lộc trong ngôi nhà. Do đó, khi thiết kế mặt bằng nhà phố cần cân nhắc vị trí cổng chính, cửa ra vào, cầu thang, bếp và khu vệ sinh theo nguyên tắc ngũ hành, giúp khí lưu thông tốt và cân bằng âm dương. Đồng thời, việc tận dụng ánh sáng tự nhiên qua giếng trời, cửa kính lớn hay ban công không chỉ tiết kiệm điện mà còn tạo không gian thoáng mát, cải thiện sức khỏe và tinh thần cho gia đình.

Lựa chọn vật liệu và kết cấu phù hợp
Việc lựa chọn vật liệu xây dựng và kết cấu chịu lực ảnh hưởng trực tiếp đến độ bền vững, chi phí và tính thẩm mỹ lâu dài của công trình. Các khu vực ẩm ướt như nhà vệ sinh cần sử dụng sàn chống trượt và vật liệu kháng ẩm chuyên dụng. Không gian cần lấy sáng ưu tiên sử dụng kính cường lực lớn hoặc vật liệu trong suốt. Về kết cấu, nền móng, dầm, cột phải được đội ngũ kỹ sư tính toán tải trọng kỹ lưỡng, đảm bảo an toàn kết cấu theo tiêu chuẩn. Ưu tiên các vật liệu thân thiện môi trường, tiết kiệm năng lượng và dễ dàng bảo trì sẽ giúp ngôi nhà vừa bền đẹp, vừa tiện nghi theo thời gian.

NEOHouse – Công ty thiết kế mặt bằng công năng nhà phố uy tín
NEOHouse không chỉ đơn thuần là một công ty thiết kế, mà còn là người bạn đồng hành đáng tin cậy trong hành trình kiến tạo không gian sống lý tưởng cho hàng ngàn gia đình Việt suốt hơn 12 năm qua. Chính nhờ kinh nghiệm và uy tín đã được khẳng định, chúng tôi tự hào là đơn vị hàng đầu trong lĩnh vực thiết kế và thi công nhà phố, đáp ứng đa dạng phong cách từ hiện đại, tân cổ điển đến mái Thái, mái Nhật. Quan trọng hơn, mỗi công trình chúng tôi thực hiện đều được chú trọng đảm bảo ba yếu tố cốt lõi: thẩm mỹ vượt trội, công năng sử dụng tối ưu và độ bền vững theo thời gian. Vì vậy, khi lựa chọn NEOHouse, khách hàng không chỉ tìm thấy một đơn vị thiết kế nhà đẹp, mà còn có được một đối tác tận tâm đồng hành trọn vẹn trong quá trình xây dựng tổ ấm mơ ước của mình

Dịch vụ thiết kế và thi công trọn gói
Chúng tôi cung cấp giải pháp trọn gói, chìa khóa trao tay từ A đến Z bao gồm toàn bộ quy trình từ tư vấn ý tưởng, thiết kế chi tiết (kiến trúc, kết cấu, điện nước,…) đến thi công hoàn thiện nội thất. Bạn chỉ cần chia sẻ rõ ràng về nhu cầu công năng sử dụng, phong cách thiết kế mong muốn và ngân sách dự kiến. Đội ngũ tư vấn và thiết kế của chúng tôi sẽ tiếp nhận, tiến hành phân tích và đưa ra những phương án tối ưu, đảm bảo phù hợp tuyệt đối với mọi yêu cầu và ngân sách của khách hàng.
Quy trình minh bạch, chất lượng cam kết
NEOHouse áp dụng quy trình làm việc khoa học và minh bạch, rõ ràng trong từng bước: từ khảo sát hiện trạng, triển khai thiết kế, giám sát thi công cho đến bàn giao công trình. Chúng tôi cam kết bằng hành động: “Xây Đúng – Làm Chuẩn – Bàn Giao Đúng Hẹn”. Mỗi giai đoạn đều được kiểm soát chặt chẽ và có báo cáo tiến độ cụ thể, mang lại sự an tâm tuyệt đối cho khách hàng. Tại NEOHouse, chất lượng công trình cùng sự hài lòng và an tâm của khách hàng luôn là ưu tiên hàng đầu.

Báo giá chi tiết, minh bạch
Chi phí xây dựng tại NEOHouse sẽ được công khai và chi tiết theo từng hạng mục, từ phần thô cho đến hoàn thiện nội thất. Nhờ đó, hạn chế tối đa các chi phí phát sinh không mong muốn trong suốt quá trình triển khai dự án. Sự minh bạch này giúp khách hàng dễ dàng theo dõi, so sánh và chủ động hoàn toàn trong việc lập kế hoạch tài chính tránh thiếu hụt ngân sách trong quá trình thi công làm ảnh hướng đến tiến độ xây dựng.
Ưu đãi miễn phí thiết kế khi xây trọn gói
Để tri ân khách hàng, NEOHouse mang đến ưu đãi độc quyền: Miễn phí 100% chi phí thiết kế cho những khách hàng lựa chọn gói xây dựng trọn gói của chúng tôi. Đây là cơ hội vàng giúp gia chủ tiết kiệm tối đa chi phí đầu tư ban đầu, đồng thời vẫn nhận được dịch vụ chất lượng cao và giải pháp thiết kế thi công toàn diện, chuyên nghiệp.

Xưởng sản xuất nội thất trực tiếp
NEOHouse sở hữu xưởng sản xuất nội thất riêng, chủ động sản xuất các cấu kiện quan trọng như tủ bếp, cửa gỗ, cầu thang và các sản phẩm trang trí. Lợi thế này giúp chúng tôi kiểm soát tuyệt đối chất lượng vật liệu đầu vào, loại bỏ chi phí trung gian không cần thiết, và đảm bảo tiến độ thi công nội thất diễn ra nhanh chóng, chính xác. Điều này mang lại sự an tâm tuyệt đối và hiệu quả kinh tế tối đa cho khách hàng.
Bảo hành và bảo trì dài hạn
Sự cam kết của NEOHouse không dừng lại ở việc bàn giao công trình chất lượng theo đúng tiến độ. Mà chúng tôi luôn đồng hành cùng khách hàng cả trước, trong và sau quá trình xây dựng. Mỗi công trình đều được áp dụng chính sách bảo hành, bảo trì lâu dài, đảm bảo mọi vấn đề phát sinh sẽ được xử lý kịp thời và triệt để. Chính sách này giúp ngôi nhà của bạn luôn được giữ gìn bền đẹp, vững chắc theo thời gian.

Lời kết
Mặt bằng nhà phố không chỉ là một bản vẽ kỹ thuật, mà còn là chìa khóa mang đến không gian sống tiện nghi và hài hòa. Việc bố trí khoa học giúp tối ưu hóa công năng, tạo cảm giác rộng rãi và thoáng đãng cho cả gia đình, đồng thời mỗi chi tiết thiết kế đều phản ánh phong cách và gu thẩm mỹ độc đáo của gia chủ. Chính vì vậy, nên việc đầu tư vào mặt bằng nhà phố với sự tính toán kỹ lưỡng ngay từ đầu sẽ giúp không gian trong ngôi nhà được tối ưu, đảm bảo tiện nghi và thuận tiện dựa trên thói quen sinh hoạt hằng ngày của gia đình.
Nếu bạn có nhu cầu thiết kế, thi công nhà phố trọn gói, hãy liên hệ với chúng tôi qua Hotline: 0937.100.202. Bộ phận tư vấn viên của chúng tôi luôn sẵn sàng tư vấn, hỗ trợ khách hàng nhanh chóng và tận tình nhất.