Bạn đang tìm kiếm ý tưởng thiết kế mặt tiền nhà 2 tầng đẹp vừa hiện đại, vừa tối ưu công năng? Tại NEOHouse, chúng tôi mang đến những mẫu nhà ống 2 tầng ấn tượng, hài hòa giữa thẩm mỹ và tiện nghi, giúp gia chủ khẳng định phong cách sống riêng biệt.
Với diện tích vừa phải nhưng đa dạng phong cách từ phong cách hiện đại đến cổ điển những thiết kế này không chỉ phù hợp xu hướng mà còn tạo nên giá trị bền vững theo thời gian. Cùng NEOHouse khám phá ngay những mẫu thiết kế mặt tiền nhà 2 tầng đẹp để lựa chọn cho mình mẫu mặt tiền ưng ý nhất.
Đặc điểm mẫu thiết kế mặt tiền nhà 2 tầng đẹp
Thiết kế nhà phố 2 tầng là loại hình kiến trúc phổ biến, thường xây dựng trên quỹ đất vừa phải. Thiết kế hai tầng giúp tối ưu diện tích, mang lại sự tiện nghi cho gia đình. Dưới đây là những đặc điểm nổi bật tạo nên sức hút riêng của mặt tiền nhà 2 tầng đẹp:
Bố trí không gian hợp lý
Với những ngôi nhà ống mặt tiền hẹp, việc bố trí không gian hợp lý là yếu tố then chốt để tạo nên một ngôi nhà tiện nghi và thoải mái. Thiết kế thường tận dụng tầng 1 cho phòng khách, khu bếp – ăn và một phòng ngủ hoặc nhà vệ sinh nhỏ, trong khi tầng 2 bố trí phòng ngủ chính, phòng ngủ phụ, phòng thờ và khu giặt phơi. Cách sắp xếp này giúp tối ưu diện tích sử dụng đồng thời đảm bảo sự riêng tư cho từng khu vực. Các lối đi và cầu thang được tính toán kỹ lưỡng, kết hợp vách ngăn hoặc cầu thang tam cấp, vừa tạo sự liên kết giữa các tầng, vừa giữ cho không gian luôn thông thoáng, tránh cảm giác chật chội hay bí bách.

Thiết kế không gian mở
Một xu hướng được nhiều gia đình ưa chuộng trong nhà ống 2 tầng là thiết kế không gian mở. Thay vì ngăn chia bằng các bức tường dày, các khu vực như phòng khách, bếp và phòng ăn được bố trí liên thông, tạo cảm giác rộng rãi, thoáng đãng và linh hoạt. Thiết kế này không chỉ tối ưu diện tích sử dụng mà còn thúc đẩy sự gắn kết giữa các thành viên trong gia đình. Đồng thời, việc kết hợp vật liệu nhẹ, nội thất thông minh và tông màu sáng giúp không gian thêm sinh động, sâu rộng và dễ chịu hơn.

Sử dụng ánh sáng tự nhiên
Do đặc điểm nhà ống có ít mặt thoáng, nên việc tận dụng ánh sáng tự nhiên là yếu tố quan trọng giúp ngôi nhà trở nên sáng sủa và tiết kiệm điện năng. Kiến trúc thường kết hợp cửa kính lớn ở mặt tiền, cửa sổ giật cấp tại tầng trên, hoặc hệ giếng trời giữa nhà, vừa lấy sáng vừa giúp không khí lưu thông hiệu quả. Ánh sáng tự nhiên không chỉ cải thiện cảm giác thoải mái cho người sử dụng mà còn hạn chế tình trạng ẩm mốc, một vấn đề thường gặp ở những ngôi nhà có ít cửa sổ.

Kết hợp sân vườn và mảng xanh
Dù diện tích không quá rộng nhưng những mẫu nhà ống hiện đại vẫn thường tích hợp các mảng xanh nhỏ như sân trước, ban công trồng cây hay giếng trời kết hợp tiểu cảnh. Các mảng xanh này không chỉ tạo điểm nhấn thẩm mỹ mà còn góp phần điều hòa ánh sáng và không khí bên trong ngôi nhà. Với một vài chậu cây, thảm cỏ hay tiểu cảnh nước, kiến trúc ngôi nhà trở nên sinh động, hài hòa với thiên nhiên và mang lại cảm giác thư giãn ngay giữa trung tâm đô thị đông đúc.

Tổng hợp mẫu thiết kế mặt tiền nhà 2 tầng đẹp mới nhất hiện nay
Các mẫu mặt tiền nhà 2 tầng mang đến không gian sống tối ưu, đồng thời toát lên vẻ hiện đại, sang trọng. Mỗi phong cách từ hiện đại đến tân cổ điển đều có những đặc điểm riêng, giúp gia chủ lựa chọn theo sở thích và nhu cầu của cá nhân. Hãy cùng khám phá các thiết kế mặt tiền 2 tầng đẹp mắt, ấn tượng nhất:
Mẫu nhà ống mặt tiền 2 tầng 2 mặt tiền đẹp
Mẫu nhà ống 2 tầng 2 mặt tiền được thiết kế hiện đại và sang trọng, mang đến không gian sống tiện nghi, thoáng đãng. Công trình nổi bật với sự cân đối hài hòa giữa hình khối kiến trúc vuông vức và các chi tiết mở như hệ thống cửa kính lớn, giúp tận dụng tối đa ánh sáng tự nhiên và tạo cảm giác rộng rãi hơn cho nội thất. Hai mặt tiền được xử lý tinh tế, vừa đảm bảo tính thẩm mỹ, vừa nâng cao giá trị sử dụng cho ngôi nhà. Với lợi thế hai mặt tiền, ngôi nhà trở nên nổi bật, thu hút ánh nhìn từ mọi góc độ, đồng thời mang lại sự thông thoáng và tiện ích vượt trội cho gia chủ.



Mẫu thiết kế mặt tiền nhà 2 tầng đẹp mái Nhật
Mẫu nhà ống 2 tầng mái Nhật là sự kết hợp hoàn hảo giữa tính thẩm mỹ và công năng, tạo nên một không gian sống sang trọng và bền vững. Với thiết kế mái Nhật đặc trưng, ngôi nhà mang vẻ đẹp thanh thoát, hài hòa nhưng vẫn toát lên sự bề thế và vững chãi. Những khối kiến trúc vuông vắn, cân đối kết hợp cùng hệ mái dốc nhẹ nhàng tạo điểm nhấn độc đáo cho mặt tiền mà còn góp phần điều hòa nhiệt độ, chống nóng, chống ẩm hiệu quả. Với sự kết hợp tinh tế giữa phong cách hiện đại và nét truyền thống, mặt tiền nhà 2 tầng mái Nhật nổi bật giữa cảnh quan mà còn khẳng định gu thẩm mỹ tinh tế của gia chủ, mang lại không gian sống tiện nghi, đẳng cấp và bền vững theo thời gian.




Xem thêm dự án: 10+ mẫu nhà mái Nhật 2 tầng đẹp hiện đại dẫn đầu xu hướng
Mẫu thiết kế mặt tiền nhà 2 tầng đẹp mái Thái
Thiết kế mặt tiền nhà 2 tầng mái Thái mang đến một vẻ đẹp hài hòa, vừa hiện đại vừa gần gũi. Điểm nhấn đặc trưng của kiểu kiến trúc này nằm ở phần mái dốc cao, tạo cảm giác thanh thoát, cao ráo và giúp ngôi nhà trông vững chãi, bề thế hơn. Không chỉ đẹp mắt, mái Thái còn có khả năng chống nóng, thoát nước nhanh, đặc biệt phù hợp với khí hậu Việt Nam. Sự kết hợp giữa các đường nét cân đối cùng với gam màu nhẹ nhàng, nhà 2 tầng mái Thái toát lên sự tinh tế, sang trọng mà vẫn giữ được sự giản dị, gần gũi.




Mẫu thiết kế mặt tiền nhà 2 tầng đẹp mái bằng
Ngôi nhà 2 tầng với thiết kế mái bằng mang đến sự hiện đại và tối ưu trong công năng sử dụng. Phần mái bằng giúp gia chủ tận dụng tối đa diện tích, đồng thời mở ra một khoảng sân thượng rộng rãi. Nơi có thể sáng tạo thành không gian thư giãn, trồng cây xanh hoặc tổ chức những buổi sum họp ngoài trời. Mặt tiền ngôi nhà được thiết kế chi tiết với các đường nét dứt khoát, tạo cảm giác thanh thoát và tinh tế. Hệ thống cửa chính và cửa sổ được bố trí khoa học, mang ánh sáng tự nhiên chan hòa khắp các phòng, đồng thời giúp ngôi nhà luôn thông thoáng và gần gũi với thiên nhiên.



Dự án liên quan: 15 mẫu thiết kế nhà mái bằng 2 tầng đẹp ưa chuộng nhất
Mẫu thiết kế mặt tiền nhà 2 tầng đẹp mái lệch
Những mẫu nhà ống 2 tầng mái lệch ngày càng được nhiều gia đình lựa chọn nhờ sự phá cách trong kiến trúc. Thay vì mái bằng hay mái Thái quen thuộc, phần mái lệch tạo nên diện mạo mới lạ, vừa hiện đại vừa cá tính. Mặt tiền sử dụng các mảng khối đơn giản cùng gam màu trung tính, mang lại vẻ đẹp tinh tế và hài hòa. Đặc biệt, hệ mái lệch không chỉ tạo điểm nhấn thẩm mỹ mà còn mang lại công năng thiết thực: thoát nước nhanh vào mùa mưa, chống nóng hiệu quả, hạn chế tình trạng ẩm mốc và giúp không gian sống luôn thoáng mát, dễ chịu.




Mẫu thiết kế mặt tiền nhà ống 2 tầng hiện đại
Nhà 2 tầng mang phong cách hiện đại không chỉ đáp ứng nhu cầu sinh hoạt tiện nghi mà còn thể hiện gu thẩm mỹ tinh tế của gia chủ. Với thiết kế tối giản, chú trọng vào đường nét gọn gàng thay vì nhiều chi tiết cầu kỳ, công trình vẫn toát lên vẻ đẹp thanh lịch và sang trọng. Khi được điểm xuyết thêm những mảng xanh nhỏ xinh cùng sắc hoa tươi tắn, không gian sống càng trở nên tràn đầy sức sống, hài hòa và gần gũi với thiên nhiên.



Mẫu thiết kế mặt tiền nhà ống 2 tầng tân cổ điển
Nếu như phong cách hiện đại mang đến sự tối giản trẻ trung thì tân cổ điển lại chinh phục ánh nhìn bằng vẻ đẹp sang trọng, tinh tế và đầy cuốn hút. Mẫu nhà mặt tiền nhà 2 tầng tân cổ điển là minh chứng rõ ràng cho sự giao thoa hài hòa giữa đường nét mềm mại cổ điển và hơi thở hiện đại khỏe khoắn. Không cần quá nhiều chi tiết cầu kỳ, công trình vẫn toát lên vẻ lịch lãm, đẳng cấp, khiến bất cứ ai cũng khó rời mắt ngay từ cái nhìn đầu tiên. Đây chính là lựa chọn lý tưởng cho những ai yêu thích phong cách sống đẳng cấp nhưng vẫn gần gũi, ấm áp.



Mẫu thiết kế mặt tiền nhà 2 tầng ở nông thôn
Ở khu vực nông thôn, thiết kế mặt tiền nhà 2 tầng thường được thiết kế hướng đến sự đơn giản, vững chắc và phù hợp với điều kiện khí hậu địa phương. Mặt tiền thường ưu tiên những gam màu nhẹ nhàng như trắng, be, ghi sáng kết hợp cùng mái ngói hoặc mái Thái truyền thống để tạo cảm giác gần gũi, hài hòa với thiên nhiên.
Ngoại thất hạn chế chi tiết rườm rà, thay vào đó tập trung vào sự thoáng đãng và công năng. Hệ thống cửa kính, ban công mở rộng hoặc khoảng sân trước được bố trí hợp lý giúp ngôi nhà đón nắng gió tự nhiên, mang lại không gian sống trong lành. Bên cạnh đó, việc kết hợp cây xanh, giàn hoa hay khu vườn nhỏ phía trước cũng góp phần tạo nên vẻ đẹp bình dị, thoải mái đúng chất nông thôn Việt Nam.



Mẫu mặt tiền nhà 2 tầng đẹp 1 tum
Trong số những mẫu thiết kế mặt tiền nhà 2 tầng đẹp, thiết kế nhà 2 tầng 1 tum phong cách hiện đại luôn được yêu thích nhờ vẻ trẻ trung và thanh lịch. Ngôi nhà được tạo hình từ các khối kiến trúc đơn giản, sử dụng gam màu trắng làm chủ đạo, vừa tinh tế vừa sang trọng. Hơn nữa, việc tích hợp thêm tầng tum là giải pháp giúp nới rộng diện tích và tăng công năng sử dụng cho gia đình mà vẫn tiết kiệm được chi phí đáng kể. Chính vì thế, những mẫu nhà này đang được rất nhiều chủ đầu tư yêu thích và lựa chọn cho mái ấm cho gia đình.



Mẫu thiết kế mặt tiền nhà 2 tầng đẹp có gara
Trong không gian phố thị đông đúc, việc thiết kế gara trong nhà trở thành giải pháp thông minh và tiện lợi. Mẫu nhà ống 2 tầng hiện đại có gara không chỉ giúp tối ưu diện tích sử dụng mà còn mang lại sự gọn gàng cho tổng thể kiến trúc. Gara thường được bố trí ngay tại tầng trệt, thuận tiện cho việc di chuyển, đảm bảo an toàn cho phương tiện và không làm mất đi vẻ hài hòa của mặt tiền. Đây là lựa chọn lý tưởng cho các gia đình sống tại đô thị, khi vừa đáp ứng nhu cầu thẩm mỹ, vừa mang lại sự tiện nghi trong sinh hoạt hằng ngày.





Xem thêm: Top 15+ Mẫu nhà 2 tầng có gara hiện đại đẹp, độc đáo 2025
Mẫu thiết kế mặt tiền nhà 2 tầng đẹp có giếng trời
Nhà ống 2 tầng thường có lợi thế về chiều sâu nhưng mặt tiền khá hẹp, đồng thời hai bên tường thường bị xây kín, khiến không gian dễ bị bí bách. Giải pháp hiệu quả chính là thiết kế giếng trời, giúp mang ánh sáng tự nhiên và gió trời vào bên trong, tạo sự thông thoáng cho toàn bộ ngôi nhà. Không chỉ cải thiện chất lượng không gian sống, giếng trời còn trở thành điểm nhấn kiến trúc độc đáo, góp phần làm cho ngôi nhà thêm ấn tượng và tràn đầy sức sống.


Tham khảo thêm: 15 Mẫu nhà ống 2 tầng có giếng trời đẹp không thể bỏ qua
Mẫu thiết kế mặt tiền nhà 2 tầng đẹp có sân thượng
Giữa nhịp sống đô thị đông đúc, những mẫu nhà 2 tầng có sân thượng luôn gây ấn tượng bởi diện mạo trẻ trung và tinh tế. Mặt tiền được thiết kế gọn gàng với các đường nét vuông vức, kết hợp cùng ban công và mảng kính rộng, mang lại cảm giác nhẹ nhàng và mở rộng không gian theo chiều cao. Phần sân thượng phía trên vừa tạo sự cân đối cho tổng thể kiến trúc, vừa trở thành điểm nhấn nổi bật, giúp công trình thêm phần cuốn hút, năng động và tràn đầy sức sống.




Mẫu thiết kế mặt tiền nhà 2 tầng đẹp có sân vườn
Trong các phương án thiết kế nhà đẹp, sự xuất hiện của sân vườn trước nhà chính là “khoảng thở” quý giá, mang đến cảm giác cân bằng và dễ chịu. Mẫu thiết kế nhà 2 tầng có sân vườn gây ấn tượng bởi sự kết hợp hài hòa giữa khối kiến trúc khỏe khoắn và mảng xanh tươi mát. Các đường nét mặt tiền thanh thoát, phối hợp cùng cây cỏ, tiểu cảnh và ánh sáng tự nhiên, tạo nên một không gian vừa tinh tế, vừa gần gũi với thiên nhiên. Đây là kiểu nhà không chỉ đẹp về hình thức mà còn bền vững về giá trị thẩm mỹ.




Mẫu nhà ống đẹp 2 tầng 5m
Mẫu nhà ống 2 tầng mặt tiền 5m được nhiều gia đình tại thành phố lựa chọn nhờ thiết kế vừa tinh tế vừa ấn tượng. Kiến trúc ưu tiên tận dụng ánh sáng tự nhiên, giúp không gian bên trong luôn sáng sủa, thoáng khí và dễ chịu hơn. Đây cũng là giải pháp khắc phục nhược điểm thường thấy ở nhà ống truyền thống vốn hay bí bách. Bố cục hình khối hiện đại, được xử lý linh hoạt với những đường nét tinh gọn và lạ mắt, mang lại diện mạo nổi bật cho mặt tiền và tạo dấu ấn riêng cho ngôi nhà.



Mẫu nhà 2 tầng hiện đại mặt tiền 6m
Thiết kế kiến trúc nhà ống 2 tầng rộng 6m sẽ mang đến sự cân đối và thoáng đãng hơn so với những mẫu nhà hẹp ngang truyền thống. Thiết kế thường được tối giản chi tiết nhưng vẫn đảm bảo tính thẩm mỹ hiện đại, phù hợp với lối sống năng động của các gia đình trẻ. Để tăng sự sinh động và tạo không khí trong lành, kiến trúc sư khéo léo kết hợp các mảng xanh ở ban công hoặc sân trước. Hình khối vuông vắn, bố cục gọn gàng cùng những điểm nhấn sáng tạo trên mặt đứng giúp mẫu nhà này trở nên thu hút và ngày càng được nhiều người lựa chọn.



Mẫu nhà 2 tầng hiện đại mặt tiền 7m
Nhà 2 tầng với mặt tiền 7m nổi bật bởi sự cân đối và rộng rãi trong bố cục kiến trúc. Hình khối vuông vức, gọn gàng được sắp xếp hài hòa, tạo cảm giác vững chắc nhưng vẫn thanh thoát. Mặt tiền được xử lý tinh tế với các mảng tường, ban công và cửa kính lớn, mang lại vẻ hiện đại, trẻ trung đồng thời giúp công trình trông cao ráo và ấn tượng hơn. Tông màu trung tính kết hợp với vật liệu tự nhiên như gỗ hoặc đá càng làm tăng sự sang trọng và giá trị thẩm mỹ cho tổng thể ngôi nhà.



Mẫu thiết kế mặt tiền nhà 2 tầng đẹp 4 phòng ngủ
Mẫu nhà ống 2 tầng 4 phòng ngủ là lựa chọn lý tưởng cho gia đình đông thành viên hoặc những ai cần không gian rộng rãi, đa dạng. Với 4 phòng ngủ tiện nghi, ngôi nhà mang đến không gian riêng cho từng thành viên trong gia đình, vừa thoải mái, vừa tạo góc riêng tư để thư giãn và nghỉ ngơi.



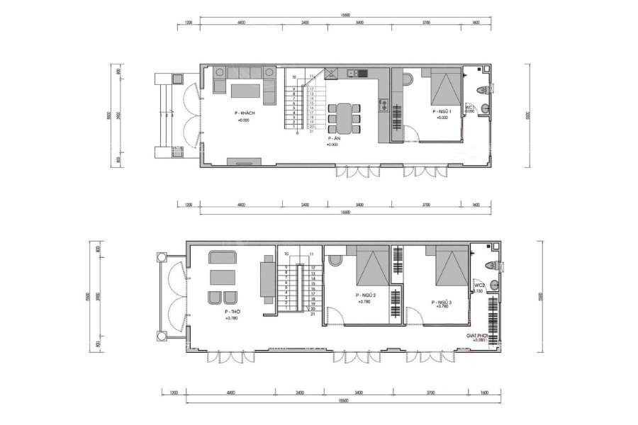
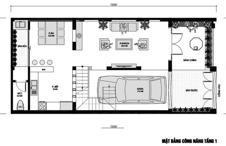
Bản vẽ bố trí mặt bằng công năng mặt tiền nhà 2 tầng đẹp
Thiết kế mặt bằng công năng cho nhà 2 tầng cần cân nhắc kỹ lưỡng để tối ưu không gian sử dụng, đồng thời đảm bảo tiện nghi và thoải mái cho mọi thành viên trong gia đình. Một bố trí hợp lý giúp các phòng chức năng liên kết chặt chẽ, đồng thời vẫn giữ sự riêng tư khi cần. Dưới đây là gợi ý các kiểu mặt bằng phổ biến cho nhà 2 tầng, phù hợp với nhiều nhu cầu sử dụng khác nhau.
Mặt bằng công năng nhà 2 tầng 3 phòng ngủ
Mẫu nhà phố 2 tầng 3 phòng ngủ đáp ứng nhu cầu của các gia đình 5-6 thành viên, kết hợp giữa tiện nghi và sự ấm cúng. Các phòng ngủ được bố trí thông minh, tạo không gian riêng cho từng thành viên nghỉ ngơi, làm việc, học tập và thư giãn.

Mặt bằng công năng nhà ống 2 tầng 4 phòng ngủ
Mẫu nhà phố 2 tầng 4 phòng ngủ lý tưởng cho các gia đình nhiều thế hệ cùng sinh sống, từ ông bà, bố mẹ đến con cái. Các phòng chức năng thường không chú trọng đến việc trang trí hay sử dụng vật liệu, đồ dùng nội thất quá cầu kỳ mà chủ yếu tập trung sự tối giản, rộng rãi, sử dụng món đồ nội thất thông minh, đa năng, vừa đáp ứng nhu cầu sử dụng, vừa tối ưu diện tích hiệu quả.


Mặt bằng công năng nhà 2 tầng có gara
Thiết kế nhà phố có gara ô tô hoặc khu vực để xe máy tiện lợi là lựa chọn lý tưởng cho các gia đình hiện đại. Gara thường được bố trí gần lối vào chính, thuận tiện di chuyển nhưng vẫn đảm bảo thẩm mỹ cho mặt tiền. Phía trên gara có thể tận dụng làm phòng ngủ hoặc không gian sinh hoạt khác, tùy theo thiết kế tổng thể. Đồng thời, việc bố trí cách âm và thông gió hợp lý giúp bảo vệ phương tiện mà không ảnh hưởng đến các khu vực sinh hoạt xung quanh, tối ưu công năng sử dụng cho toàn bộ ngôi nhà.

Chi phí thiết kế thi công mặt tiền nhà 2 tầng đẹp
Bạn có thắc mắc: “Chi phí thiết kế mặt tiền nhà 2 tầng đẹp là bao nhiêu?” Đây là câu hỏi bộ phận tư vấn của NEOHouse thường nhận được từ nhiều khách hàng. Để giúp quý khách có thể dự trù sơ bộ ngân sách để chuẩn bị ngân sách cho việc xây dựng tổ ấm của mình trong tương lai. Dưới đây NEOHouse sẽ chia sẻ đến quý khách chi tiết chi phí thiết kế:
- Phong cách hiện đại: 85.000Đ – 105.000Đ/m2
- Phong cách tân cổ điển: 120.000Đ – 130.000Đ/m2
- Phong cách cổ điển: 140.000Đ – 150.000Đ/m2
*Lưu ý: Đây chỉ là báo giá sơ bộ mức giá chính thức sẽ phụ thuộc vào nhiều yếu tố như diện tích, phong cách thiết kế và những yêu cầu riêng của khách hàng. Để nhận được báo giá chính xác nhất, quý khách vui lòng liên hệ trực tiếp với NEOHouse qua hotline: 0937.100.202. Đội ngũ kiến trúc sư cùng bộ phận chăm sóc khách hàng sẽ tư vấn chi tiết và cung cấp báo giá miễn phí, giúp quý khách lên kế hoạch xây dựng ngôi nhà mơ ước.
Lưu ý thiết kế mặt tiền nhà 2 tầng đẹp
Thiết kế mặt tiền nhà 2 tầng không chỉ là tạo vẻ ngoài đẹp mắt mà còn phải đảm bảo công năng và sự hài hòa với môi trường xung quanh. Một mặt tiền ấn tượng giúp nâng tầm giá trị tổng thể của ngôi nhà và tạo cảm giác chào đón. Ngoài thẩm mỹ, yếu tố ánh sáng, phong thủy và tài chính cũng cần được cân nhắc kỹ lưỡng. Dưới đây là các lưu ý quan trọng khi thiết kế mặt tiền nhà 2 tầng đẹp mà bạn cần quan tâm:
Tối ưu diện tích sử dụng
Diện tích sử dụng là yếu tố then chốt trong các ngôi nhà 2 tầng. Bố trí các khu vực chức năng hợp lý giúp không gian thoáng rộng hơn mà vẫn đầy đủ tiện nghi. Gia chủ có thể tận dụng không gian dưới cầu thang, góc tường hay thiết kế các khu vực lưu trữ âm tường để tăng diện tích sử dụng. Việc này vừa giúp ngôi nhà gọn gàng vừa nâng cao hiệu quả sinh hoạt hàng ngày.

Lựa chọn phong cách thiết kế phù hợp
Mặt tiền nhà 2 tầng nên phản ánh gu thẩm mỹ và phong cách sống của gia chủ. Các phong cách phổ biến gồm hiện đại, tân cổ điển, cổ điển, mỗi kiểu có nét đẹp và đặc trưng riêng. Lựa chọn phong cách phù hợp sẽ giúp ngôi nhà hài hòa với kiến trúc tổng thể, tạo cảm giác cân đối và thẩm mỹ. Đồng thời, việc này cũng giúp dễ dàng trong việc lựa chọn màu sắc, vật liệu và các chi tiết trang trí. Hơn nữa, mỗi phong cách sẽ có mức giá đầu tư khác nhau, do đó, gia chủ cần tìm hiểu và lựa chọn phong cách phù hợp nhất.

Cân nhắc các yếu tố phong thủy
Yếu tố phong thủy khi thiết kế mặt tiền nhà 2 tầng cũng đóng vai trò quan trọng không kém, đặc biệt là mặt tiền. Vị trí cửa chính, hướng cửa sổ, và hướng nhà cần được cân nhắc kỹ để đảm bảo luồng khí tốt, mang lại sức khỏe và may mắn cho gia đình. Màu sắc và vật liệu sử dụng cũng nên chọn theo mệnh và yếu tố phong thủy để cân bằng năng lượng. Nếu không có chuyên môn về phong thủy, gia chủ có thể nhờ kiến trúc sư hoặc thuê người có kinh nghiệm để được tư vấn.

Tận dụng ánh sáng tự nhiên
Gia chủ nên chú ý thiết kế giếng trời hoặc sử dụng hệ cửa kính lớn để giúp ngôi nhà nhận được ánh sáng tự nhiên. Giúp cho không khí bên trong ngôi nhà tốt hơn, sáng sủa, thoáng đãng và tiết kiệm được năng lượng vào ban ngày.

Dự trù chi phí thi công
Quản lý chi phí là yếu tố quan trọng khi thiết kế thi công nhà phố. Trước khi xây dựng, nên lập kế hoạch dự trù chi tiết, từ vật liệu, nhân công và dự trù chi phí phát sinh. Việc dự trù chi phí sẽ giúp quá trình thi công ngôi nhà sẽ diễn ra thuận lợi, suôn sẻ. Tránh bị hụt ngân sách, làm chậm tiến độ thi công của ngôi nhà.

NEOHouse công ty thiết kế thi công nhà phố uy tín, chất lượng tại HCM
Trải qua hơn 10 năm phát triển, NEOHouse đã thực hiện thiết kế và thi công hàng trăm dự án thiết kế thi công nhà phố, biệt thự trên khắp cả nước, khẳng định uy tín trong lĩnh vực xây dựng tổ ấm. Chúng tôi tự tin mang đến những công trình vừa thẩm mỹ, vừa tiện nghi, đồng thời tối ưu hóa ngân sách và nhu cầu của khách hàng, biến mỗi ngôi nhà thành không gian sống trọn vẹn cho gia đình. NEOHouse tự hào sở hữu những ưu điểm nổi bật:
- Tư vấn tận tâm: Đội ngũ chăm sóc khách hàng luôn sẵn sàng lắng nghe và hỗ trợ nhanh chóng, đảm bảo mọi mong muốn của gia chủ được thực hiện chính xác.
- Kiến trúc sư sáng tạo: Các kiến trúc sư năng động, giàu kinh nghiệm không chỉ tạo ra những bản thiết kế ấn tượng mà còn đảm bảo công năng phù hợp và chi phí tối ưu.
- Thi công chuyên nghiệp: Đội ngũ thợ lành nghề, đảm bảo mỗi công trình được thực hiện với sự tỉ mỉ và uy tín cao nhất.
- Giám sát chặt chẽ: Bộ phận giám sát luôn theo sát công trình để đảm bảo chất lượng cũng như tiến độ của công trình chất lượng và đúng tiến độ.
- Miễn phí thiết kế: Khi chủ đầu tư chọn dịch vụ xây nhà trọn gói, NEOHouse sẽ ưu đãi giảm giá 100% chi phí thiết kế.
- Xưởng sản xuất trực tiếp: Các sản phẩm nội thất được NEOHouse sản xuất tại Xưởng, đảm bảo tính thẩm mỹ cao và chất lượng. Đặc biệt, giá thành cạnh tranh so với thị trường.
NEOHouse đồng hành cùng bạn để kiến tạo tổ ấm lý tưởng, nơi thẩm mỹ, tiện nghi và ngân sách được cân bằng hoàn hảo.

Kết luận
Thiết kế mặt tiền nhà 2 tầng đẹp thể hiện phong cách sống và gu thẩm mỹ của gia chủ, đồng thời tối ưu công năng sử dụng. Từ hiện đại, tân cổ điển đến cổ điển, mỗi thiết kế đều mang nét độc đáo riêng, sang trọng và tiện nghi. Màu sắc, vật liệu và bố cục được chăm chút tỉ mỉ, đảm bảo hài hòa tổng thể và phản ánh cá tính của gia chủ. Với mặt tiền thống nhất, ngôi nhà trở thành điểm nhấn nổi bật, tạo không gian sống thoải mái và đầy đủ tiện ích.
Nếu cần thiết kế và thi công nhà trọn gói, NEOHouse JSC sẵn sàng tư vấn nhanh chóng, cam kết mang đến công trình chất lượng, đúng tiến độ và thẩm mỹ như mong đợi. Mọi tư vấn, báo giá hoàn toàn là miễn phí, đừng ngần ngại hãy liên hệ ngay cho NEOHouse qua hotline: 0937.100.202 để được hỗ trợ nhé!f