Với ngân sách xây biệt thự với 1,5 tỷ, gia chủ hoàn toàn có thể xây dựng được một tổ ấm không chỉ đẹp, hiện đại và sang trọng mà còn đáp ứng đầy đủ tiện nghi cho cả gia đình nếu biết cách tối ưu và cân chỉnh chi phí một cách khoa học. Trong nội dung bài viết dưới đây, NEOHouse chia sẻ đến các bạn đọc và quý khách hàng những kinh nghiệm thiết kế và xây biệt thự 1,5 tỷ cùng những gợi ý phương án thiết kế đẹp, ấn tượng trong tầm ngân sách đầu tư này. Cùng NEOHouse tham khảo nhé!
Xem thêm: Top 20+ Mẫu Biệt Thự 2 Tỷ Đẹp 2026 Được Yêu Thích Nhất
Với ngân sách 1,5 tỷ có thể xây được biệt thự như thế nào?
Với ngân sách đầu tư 1,5 tỷ, gia chủ hoàn toàn có thể sở hữu một căn biệt thự đẹp, tiện nghi và đáp ứng trọn vẹn nhu cầu sinh hoạt của gia đình nếu có kế hoạch và phương án thiết kế thi công ngay từ đầu. Đây là mức ngân sách khá phổ biến hiện nay, phù hợp để triển khai những mẫu biệt thự có quy mô vừa, ưu tiên tối ưu công năng, hình thức kiến trúc hài hòa và chi phí xây dựng được kiểm soát chặt chẽ theo từng giai đoạn thi công.

Hiện tại, đơn giá xây biệt thự trọn gói tại NEOHouse dao động từ 5.800.000- 7.000.000Đ/m2. Do đó, xây biệt thự với 1,5 tỷ sẽ có tổng diện tích sàn dưới 200m2 – 230m2, tùy theo phong cách kiến trúc, loại mái, mức độ hoàn thiện, điều kiện thi công thực tế, địa điểm và thời điểm xây dựng, có làm thêm sân vườn, cổng rào, gara hay nội thất hay không? Mà mỗi công trình sẽ hoàn thiện với ngân sách đầu tư khác nhau. Để giúp quý khách có thêm gợi ý về phương án thiết kế, xây biệt thự với 1,5 tỷ, hãy cùng NEOHouse tham khảo phần tiếp theo của bài viết.
Gợi ý 3 phương án thiết kế biệt thự đẹp trong tầm 1,5 tỷ
Xây biệt thự với 1,5 tỷ vẫn có nhiều phương án thiết kế để quý khách lựa chọn để phù hợp với diện tích đất và nhu cầu sinh hoạt của gia đình. Dưới đây là 3 gợi ý thiết kế biệt thự đẹp trong tầm giá 1,5 tỷ mà các bạn có thể tham khảo!
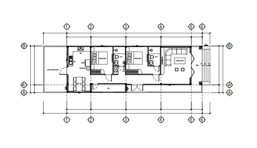
Phương án 1: Biệt thự 1 tầng 130 – 180m2
Phương án biệt thự 1 tầng là lựa chọn lý tưởng dành cho những gia đình sở hữu khu đất rộng, đặc biệt phổ biến tại khu vực nông thôn hoặc vùng ven đô. Với ngân sách 1,5 tỷ, chủ đầu tư có thể xây dựng biệt thự 1 tầng có diện tích từ 130m2 – 180m2 theo phong cách hiện đại, mái bằng, mái Thái hoặc mái Nhật, vừa đảm bảo tính thẩm mỹ cao, vừa chống nóng, chống ẩm, thoát nước mưa nhanh chóng.

Đối với mặt bằng công năng, căn biệt thự này có thể bố trí khoa học bao gồm phòng khách rộng, khu bếp và bàn ăn liên thông, có 3 đến 4 phòng ngủ, phòng thờ riêng và 2 nhà vệ sinh. Với công năng trên cùng một mặt sàn, tạo điều kiện thuận lợi cho việc di chuyển, gắn kết các thành viên trong gia đình, đồng thời phù hợp với gia đình có người lớn tuổi hoặc trẻ nhỏ.

Bên cạnh đó, diện tích này có thể thiết kế thêm khoảng sân trước, sân sau hoặc khu vườn nhỏ để trồng cây xanh, tiểu cảnh, mang đến không gian sống trong lành, gần gũi thiên nhiên.
Phương án 2: Biệt thự 1 trệt 1 lửng 90m2 – 120m2
Biệt thự 1 trệt 1 lửng là giải pháp hoàn hảo để tối ưu diện tích sử dụng mà vẫn kiểm soát chi phí xây biệt thự với 1,5 tỷ. Phương án này đặc biệt phù hợp cho gia đình mong muốn sở hữu không gian sống rộng rãi và riêng tư hơn so với biệt thự 1 tầng nhưng vẫn tiết kiệm chi phí hơn so với việc xây nhà 2 tầng.

Thông thường, mẫu biệt thự 1 trệt 1 lửng có diện tích xây dựng từ 90m2 – 120m2, tổng diện tích sàn sau khi thiết kế thêm lửng dao động từ 130m2 – 170m2. Về mặt bằng công năng, tầng trệt sẽ dành cho các khu vực sinh hoạt chung như phòng khách, bếp – ăn, 1-2 phòng ngủ và nhà vệ sinh. Phần tầng lửng sẽ tận dụng bố trí thêm 1-2 phòng ngủ, phòng thờ hoặc khu sinh hoạt chung, tùy theo nhu cầu sử dụng và mong muốn của gia đình mà kiến trúc sư sẽ đưa ra phương án bố trí tối ưu nhất cho các thành viên.

Bên cạnh đó, mẫu biệt thự này ưu tiên áp dụng thiết kế theo xu hướng hiện đại, mái bằng, mái Thái hoặc mái Nhật, mang lại vẻ đẹp trang nhã và sang trọng cho tổng thể. Ngoài ra, gia chủ cũng có thể kết hợp thêm khoảng sân trước, lối đi nhỏ, tiểu cảnh hoặc khu vực đậu xe, vừa tăng thêm không gian chức năng sử dụng, vừa đem đến bầu không khí trong lành, mát mẻ và gần gũi thiên nhiên cho không gian sống.
Phương án 3: Biệt thự 2 tầng 100m2 – 120m2
Đối với những khu đất có diện tích xây dựng vừa phải nhưng mong muốn mở rộng không gian sinh hoạt thì biệt thự 2 tầng chính là giải pháp hoàn hảo nhất. Với chi phí đầu tư 1,5 tỷ, chủ đầu tư có thể xây biệt thự 2 tầng với diện tích sàn từ 100m2 – 200m2 mỗi tầng theo phong cách hiện đại, tối giản, sử dụng hệ mái bằng hoặc mái dốc đơn giản.

Thiết kế biệt thự 2 tầng 1,5 tỷ hướng đến phong cách hiện đại, tối giản với các mảng hình khối vuông vức, hạn chế các chi tiết trang trí cầu kỳ, phức tạp nhằm tối ưu chi phí thi công. Kiến trúc mặt tiền sử dụng các vật liệu như kính, gạch ốp trang trí, lam che nắng, nhựa giả gỗ cùng các gam màu trung tính, tươi sáng để tạo điểm nhấn thẩm mỹ nhưng không kém phần sang trọng và tinh tế.

Mặt bằng công năng của biệt thự 2 tầng này được phân chia bao gồm phòng khách, bếp – ăn, từ 3 đến 4 phòng ngủ, phòng thời, ban công và 2 – 3 nhà vệ sinh. Các không gian chức năng phân chia rõ ràng giữa khu sinh hoạt chung và nghỉ ngơi riêng tư, mang lại sự thoải mái và tiện nghi cho các thành viên trong gia đình.
Có thể bạn quan tâm: 150+ Mẫu Biệt Thự 3 Tỷ Đẹp Được Yêu Thích Nhất 2026
Tham khảo một số mẫu thiết kế xây biệt thự với 1,5 tỷ được ưa chuộng hiện nay
Dưới đây, NEOHouse đã tổng hợp một số mẫu thiết kế xây biệt thự với 1,5 tỷ đồng đa dạng về phong cách, kiểu dáng, hình thức mái và công năng sử dụng gửi đến bạn đọc và quý khách cùng chiêm ngưỡng.




















Bí quyết tối ưu chi phí để xây biệt thự 1,5 tỷ không vượt ngân sách
Xây biệt thự với 1,5 tỷ đồng hoàn toàn khả thi nếu gia chủ có kế hoạch rõ ràng và kiểm soát chi phí ngay từ giai đoạn chuẩn bị. Trên thực tế, nhiều công trình phát sinh vượt ngân sách không phải do chi phí xây dựng quá cao mà xuất phát từ việc thiếu dự toán chi tiết, thay đổi thiết kế trong quá trình thi công hoặc lựa chọn vật liệu hoàn thiện chưa hợp lý. Vì vậy, việc áp dụng một số bí quyết tối ưu chi phí dưới đây sẽ giúp gia chủ sở hữu căn biệt thự đẹp, tiện nghi mà vẫn đảm bảo ngân sách dự kiến ban đầu.
1. Xác định nhu cầu – công năng rõ ràng ngay từ đầu
Trước khi bắt đầu thiết kế, gia chủ hãy xác định rõ nhu cầu sử dụng của gia đình như số lượng phòng ngủ, phòng sinh hoạt chung, khu bếp – ăn, phòng thờ hay gara để xe. Việc xác định công năng cụ thể ngay từ đầu sẽ giúp kiến trúc sư bố trí mặt bằng khoa học và hợp lý, tránh tình trạng thay đổi thiết kế khi công trình đang thi công. Ngoài ra, cần cân nhắc số lượng thành viên trong gia đình, thói quen sinh hoạt và kế hoạch sử dụng lâu dài để không gian sống vừa tiện nghi vừa tiết kiệm chi phí xây dựng.

Chẳng hạn, nếu gia đình có từ 4–5 thành viên thì công năng có thể bố trí bao gồm: phòng khách, bếp – phòng ăn, 3–4 phòng ngủ, phòng thờ và 2 nhà vệ sinh. Ngoài ra, ngoài các công năng chính cũng nên cân nhắc các không gian phụ trợ như gara, sân vườn, phòng làm việc hoặc phòng sinh hoạt chung để ngôi nhà đáp ứng đầy đủ nhu cầu sinh hoạt của gia đình.
2. Chọn phong cách thiết kế phù hợp ngân sách
Phong cách kiến trúc là một trong những yếu tố ảnh hưởng trực tiếp đến tổng chi phí xây dựng của biệt thự. Những phong cách có nhiều chi tiết trang trí cầu kỳ và phức tạp như cổ điển hoặc tân cổ điển sẽ yêu cầu tay nghề thi công cao và sử dụng nhiều vật liệu cao cấp, từ đó làm tăng chi phí đáng kể.
Ngược lại, các phong cách hiện đại, tối giản hoặc tân cổ điển nhẹ sẽ có thiết kế hình khối tối giản, ít hoặc không xuất hiện các chi tiết phào chỉ phức tạp nên sẽ dễ thi công và tiết kiệm chi phí hơn. Đây cũng là những phong cách được nhiều gia đình lựa chọn khi xây biệt thự trong tầm ngân sách 1,5 tỷ.

Ngoài ra, việc lựa chọn kiểu mái cũng ảnh hưởng rất lớn đến ngân sách đầu tư. Do đó, gia chủ cần phải cân nhắc kỹ lưỡng lựa chọn kiểu mái phù hợp để cân đối chi phí, ví dụ:
- Mái bằng: chi phí thấp, thi công nhanh, phù hợp với nhà hiện đại.
- Mái Nhật: thẩm mỹ cao, độ dốc vừa phải, chi phí trung bình.
- Mái Thái: thẩm mỹ cao, bền đẹp, độ dốc lớn, chống nóng và chống ẩm hiệu quả nhưng chi phí cao.
3. Tối ưu diện tích xây dựng để không vượt ngân sách
Diện tích xây dựng là yếu tố quan trọng chiếm tỷ lệ phần lớn chi phí của công trình. Như đã đề cập ở phần nội dung trên, hiện tại đơn giá xây dựng tại NEOHouse từ 5.800.000đ/m2 – 7.000.000đ/m2 và tổng diện tích xây dựng trong khoảng 200m2 – 230m2. Do đó, chủ đầu tư nên tính toán kỹ lưỡng diện tích xây dựng ngay từ đầu để đảm bảo chi phí nằm trong điều kiện tài chính.

Thay vì xây dựng quá lớn thì nên ưu tiên tối ưu công năng và thiết kế không gian thông minh, vừa đáp ứng một công trình rộng rãi, tiện nghi, vừa không làm phát sinh chi phí xây dựng. Ví dụ như thiết kế phòng khách và bếp liên thông, sử dụng cửa kính lớn hoặc bố trí không gian mở sẽ giúp ngôi nhà trở nên thoáng đãng, tạo cảm giác rộng rãi mà không cần tăng diện tích sàn.
4. Lựa chọn vật liệu hoàn thiện
Vật liệu hoàn thiện là một trong những yếu tố quan trọng, phản ánh trực tiếp đến bộ mặt thẩm mỹ và chi phí xây dựng. Chủ đầu tư không nhất thiết phải lựa chọn những vật liệu cao cấp nhất mà thay vào đó ưu tiên lựa chọn vật liệu chất lượng khá, thương hiệu uy tín và giá thành hợp lý. Trên thị trường hiện nay rất đa dạng về chủng loại, mẫu mã, kiểu dáng, chất lượng và giá thành, nếu không có nhiều kinh nghiệm hãy nhờ sự tư vấn của kiến trúc sư hoặc chuyên gia để có phương án lựa chọn phù hợp nhất. Ví dụ như:
- Sử dụng gạch ốp trang trí thay vì đá tự nhiên ở một số khu vực.
- Sử dụng cửa nhôm kính thay cho cửa gỗ tự nhiên để giảm chi phí.
- Lựa chọn thiết bị vệ sinh tầm trung nhưng bền và dễ bảo trì.

5. Lập dự toán chi tiết trước khi thi công
Một trong những bước quan trọng để kiểm soát chi phí xây biệt thự với 1,5 tỷ là lập bảng dự toán chi tiết cho từng hạng mục công trình trước khi bắt đầu thi công. Bảng dự toán sẽ bao gồm các khoản chi phí như phần móng, phần thô, hoàn thiện, vật liệu, nhân công và các hạng mục phụ trợ.

Khi có bảng dự toán chi tiết và cụ thể, gia chủ sẽ dễ dàng theo dõi tiến độ chi tiêu và kịp thời điều chỉnh nếu có dấu hiệu vượt ngân sách. Ngoài ra, dự toán chi phí còn giúp hạn chế tối đa tình trạng phát sinh không cần thiết trong quá trình thi công.
Thông thường, gia chủ nên dự phòng thêm khoảng 5% – 10% tổng chi phí để xử lý những khoản phát sinh như thay đổi vật liệu, chi phí vận chuyển hoặc các yếu tố khách quan khác.
6. Chọn nhà thầu trọn gói uy tín – báo giá minh bạch
Việc lựa chọn một đơn vị thi công uy tín và giàu kinh nghiệm là yếu tố thên chốt để đảm bảo chất lượng công trình cũng như kiểm soát chi phí khi xây biệt thự với 1,5 tỷ đồng. Một nhà thầu chuyên nghiệp không chỉ đáp ứng các tiêu chuẩn về kỹ thuật xây dựng, mà còn đáp ứng về tính thẩm mỹ kiến trúc, tiến độ thi công và sự đồng bộ giữa thiết kế và thực tế hoàn thiện.

Khi tìm kiếm nhà thầu, nên ưu tiên những đơn vị có kinh nghiệm thực tế, đội ngũ kiến trúc sư – kỹ sư chuyên môn cao và quy trình làm việc chuyên nghiệp. Bên cạnh yếu tố uy tín, chủ đầu tư cũng cần trao đổi và thống nhất chi tiết về báo giá, thời gian thi công, phạm vi công việc, trách nhiệm của từng bên cũng như các điều khoản trong hợp đồng. Việc minh bạch và rõ ràng ngay từ đầu sẽ giúp hạn chế những phát sinh chi phí không mong muốn trong quá trình thực thi xây dựng nhà.
7. Giám sát thi công thường xuyên hoặc thuê giám sát độc lập
Trong quá trình xây dựng, giám sát thi công đóng vai trò quan trọng để công trình thực hiện theo đúng bản vẽ thiết kế, đúng vật liệu và tiến độ xây dựng. Nếu không kiểm soát, có nhiều sai sót trong quá trình thi công thì có thể dẫn đến việc sửa chữa, kéo dài thời gian, dẫn đến làm tăng chi phí. Các giai đoạn chính mà gia chủ cần phải giám sát chặt chẽ đó là giai đoạn trước khi thi công, giai đoạn thi công móng cịc, giai đoạn thi công phần thô và thi công hoàn thiện.

Theo đó, chủ đầu tư có thể trực tiếp theo dõi tiến độ thi công nếu như có kinh nghiệm xây dựng, còn nếu không thì thuê đơn vị giám sát để kiểm tra chất lượng công trình. Việc theo dõi và giám sát thương xuyên giúp phát hiện sớm các vấn đề phát sinh, từ đó kinp thời điểu chỉnh và tránh các chi phí sửa chữa không cần thiết.
NEOHouse – Công ty thiết kế xây biệt thự 1,5 tỷ uy tín, chuyên nghiệp
Với hơn 12 năm hoạt động trong lĩnh vực kiến trúc và xây dựng, NEOHouse đã đồng hành cùng hàng nghìn khách hàng trên khắp cả nước trong hành trình kiến tạo không gian sống hoàn mỹ. Từ các dự án nhà phố, nhà cấp 4 cho đến biệt thự hiện đại, tân cổ điển và cổ điển, mỗi công trình đều được đội ngũ kiến trúc sư của NEOHouse nghiên cứu kỹ lưỡng để mang đến giải pháp thiết kế tối ưu về công năng, thẩm mỹ và chi phí đầu tư.


Đặc biệt, phương án xây biệt thự với 1,5 tỷ đồng, NEOHouse luôn chú trọng tư vấn phương án thiết kế phù hợp với diện tích đất, nhu cầu sử dụng và điều kiện tài chính của chủ đầu tư. Từ đó, ngôi nhà không chỉ đáp ứng vẻ đẹp kiến trúc thời thượng mà còn mang lại sự tiện nghi, bền vững và tối ưu chi phí trong suốt quá trình thi công.
Dịch vụ thiết kế – thi công trọn gói, tiết kiệm thời gian và chi phí
Khi lựa chọn dịch vụ thiết kế và xây biệt thự trọn gói tại NEOHouse, khách hàng sẽ được hỗ trợ toàn diện từ khâu tư vấn ý tưởng cho đến khi hoàn thiện và bàn giao công trình. Quy trình làm việc chuyên nghiệp và minh bạch giúp gia chủ tiết kiệm thời gian, hạn chế phát sinh chi phí và kiểm soát chất lượng công trình đạt hiệu quả cao.

Những lợi ích khi khách hàng lựa chọn NEOHouse bao gồm:
- Tư vấn thiết kế kiến trúc và nội thất phù hợp phong cách và ngân sách của gia chủ
- Lập bảng dự toán chi tiết, minh bạch từng hạng mục để dễ dàng kiểm soát chi phí
- Thi công đúng kỹ thuật, đúng tiến độ, đảm bảo vật tư và chất lượng theo cam kết
- Quy trình quản lý công trình chặt chẽ, hạn chế tối đa các chi phí phát sinh
- Chính sách bảo hành công trình rõ ràng, hỗ trợ khách hàng nhanh chóng sau khi bàn giao
- Nhận ngay ưu đãi giảm giá 100% chi phí thiết kế
Đội ngũ kiến trúc sư và kỹ sư chuyên môn cao
Một trong những yếu tố tạo nên uy tín của NEOHouse chính là đội ngũ kiến trúc sư, kỹ sư và thợ thi công giàu kinh nghiệm, được tuyển chọn và đào tạo bài bản. Tất cả các dự án đều thực hiện với tinh thần trách nhiệm cao, từ khâu lên ý tưởng thiết kế cho đến quá trình triển khai thi công thực tế.


Đội ngũ kiến trúc sư trẻ, tài năng tại NEOHouse luôn không ngừng sáng tạo và cập nhật các xu hướng kiến trúc mới để mang đến những phương án thiết kế hoàn hảo đến từng gia đình. Dựa trên kinh nghiệm thực tế cùng sự am hiểu về kỹ thuật xây dựng, các kiến trúc sư sẽ tư vấn giải pháp tối ưu, đảm bảo công trình đẹp về thẩm mỹ, tối ưu về công năng và ngân sách đầu tư.
Cam kết chất lượng công trình và sự hài lòng của khách hàng
Trong mỗi dự án, NEOHouse luôn đặt chất lượng công trình và sự hài lòng của khách hàng làm mục tiêu hàng đầu. Từng hạng mục thi công đều được giám sát kỹ lưỡng để đảm bảo công trình đạt tiêu chuẩn kỹ thuật, độ bền cao và tính thẩm mỹ hoàn thiện.

Với kinh nghiệm thực tế hơn 12 năm, quy trình làm việc chuyên nghiệp cùng đội ngũ nhân sự tận tâm, NEOHouse tự tin mang đến cho khách hàng những giải pháp thiết kế và xây biệt thự 1,5 tỷ đẹp, tiện nghi và tối ưu chi phí. Đây chính là nền tảng giúp NEOHouse trở thành một trong những đơn vị hàng đầu tại Việt Nam, được nhiều gia chủ tin tưởng lựa chọn thiết kế và thi công biệt thự hiện nay.
Kết luận
Như vậy, bài viết trên NEOHouse đã chia sẻ tất cả những thông tin về xây biệt thự với 1,5 tỷ đồng, từ gợi ý các phương án thiết kế, kinh nghiệm thi công cho đến các mẫu biệt thự 1,5 tỷ đẹp, được ưa chuộng nhất hiện nay. Hy vọng sẽ giúp mọi người có thêm những kiến thức xây dựng hữu ích cũng như lựa chọn được phương án thiết kế, thi công phù hợp với nhu cầu sử dụng và mong muốn của gia đình mình. Nếu bạn đang có nhu cầu xây biệt thự, hãy liên hệ trực tiếp cho NEOHouse qua Hotline/Zalo: 0937.100.202 để được tư vấn, hỗ trợ miễn phí!