Trong bối cảnh đô thị ngày càng phát triển, các mẫu thiết kế nhà mặt tiền 8m sâu 12m đang trở thành xu hướng được nhiều gia đình ưa chuộng. Với mặt tiền rộng rãi và chiều sâu hợp lý, kiểu nhà này cho phép kiến trúc sư sáng tạo những không gian sống vừa khoa học vừa đầy tính thẩm mỹ. Nếu bạn đang có dự định xây dựng ngôi nhà mơ ước của mình, hãy cùng NEOHouse tìm hiểu những đặc điểm và giải pháp tối ưu nhất cho diện tích này.
Tham khảo thêm: TOP 25+ Thiết Kế Nhà Mặt Tiền 8m Sâu 10m Đẹp Xu Hướng Mới
Đặc điểm nổi bật mẫu thiết kế nhà mặt tiền 8m sâu 12m
Các mẫu thiết kế nhà mặt tiền 8m sâu 12m ngày càng được ưa chuộng nhờ khả năng đáp ứng đầy đủ công năng và mang lại vẻ đẹp thẩm mỹ cao. Tuy nhiên, với đặc thù mặt tiền rộng gần bằng chiều sâu, việc thiết kế cần được tính toán kỹ lưỡng để đảm bảo sự hài hòa và khoa học. Dưới đây là một số đặc điểm nổi bật của mẫu nhà này:
- Không gian rộng rãi và bề thế: Với mặt tiền 8m, ngôi nhà không chỉ nổi bật ngay từ cái nhìn đầu tiên mặt tiền rộng rãi mà còn tạo cảm giác vững chãi, kiên cố. Đồng thời, kích thước này cho phép kiến trúc sư dễ dàng bố trí các phòng chức năng, từ đó tối đa hóa tiện nghi và mang lại trải nghiệm sinh hoạt thuận tiện cho cả gia đình.
- Tận dụng ánh sáng và gió tự nhiên: Để ngôi nhà luôn tràn ngập ánh sáng, gia chủ có thể ưu tiên thiết kế giếng trời hoặc các khoảng thông tầng, giúp ánh sáng và gió tự nhiên len sâu vào mọi không gian nhà. Nhờ đó, không gian sống luôn thoáng đãng, dễ chịu và mang đến cảm giác thư thái cho các thành viên.
- Linh hoạt trong thiết kế: Kích thước vuông vắn 8x12m giúp ngôi nhà có thể áp dụng nhiều phong cách thiết kế khác nhau từ hiện đại, tân cổ điển đến cổ điển,… Chính vì thế, giúp gia chủ có thể dễ dàng lựa chọn mẫu thiết kế phù hợp dựa trên nhu cầu và sở thích của mình.
- Tối ưu hóa công năng: Bên cạnh yếu tố thẩm mỹ, mẫu thiết kế nhà 8m sâu 12m còn được tập trung vào việc bố trí công năng sinh hoạt một cách linh hoạt, đảm bảo sự tiện nghi và thuận tiện trong sinh hoạt hằng ngày.

Lý do mẫu thiết kế nhà mặt tiền 8m sâu 12m được ưa chuộng
Các mẫu nhà mặt tiền 8m sâu 12m đang trở thành lựa chọn hàng đầu của nhiều gia đình Việt nhờ ưu điểm nổi bật là sự cân đối và hài hòa trong kiến trúc, giúp ngôi nhà vừa bề thế vừa sang trọng. Với kích thước 8x12m, gia chủ có thể dễ dàng phân chia không gian bên trong một cách khoa học, đảm bảo mỗi phòng đều nhận đủ ánh sáng và thông thoáng.
Bên cạnh đó, thi công những mẫu nhà vuông vắn như thế thường diễn ra thuận lợi, nhanh chóng hơn giúp gia chủ tiết kiệm thời gian hoàn thiện cong trình. Đặc biệt, mẫu nhà này cũng tạo điều kiện thuận lợi để sáng tạo trong thiết kế, từ nội thất đến ngoại thất, biến ngôi nhà thành một tác phẩm nghệ thuật độc đáo, phản ánh cá tính và gu thẩm mỹ riêng của gia chủ.

Xem thêm: 25+ mẫu nhà 2 tầng 8 mét mặt tiền đẹp hiện đại mới nhất 2025
TOP 55+ mẫu thiết kế nhà mặt tiền 8m sâu 12m đẹp, ấn tượng xu hướng hiện nay
Thiết kế nhà mặt tiền 8m sâu 12m phong cách hiện đại
Mẫu thiết kế nhà mặt tiền 8m sâu 12m hiện đại luôn là được rất nhiều chủ đầu tư ưa chuộng, đặc biệt được các gia đình trẻ và yêu thích sự đổi mới, trẻ trung. Kiến trúc đặc trưng của ngôi nhà nằm ở các đường nét mạnh mẽ, dứt khoát, cùng với hình khối kiến trúc vuông vắn toát lên vẻ đẹp phóng khoáng đầy ấn tượng. Đặc biệt, ngôi nhà thường sử dụng các mảng kính lớn kết hợp cùng vật liệu hiện đại như gỗ ốp, kim loại hay đá tự nhiên. Giải pháp này không chỉ làm tăng tính thẩm mỹ mà còn đảm bảo không gian nội thất luôn tràn ngập ánh sáng tự nhiên và duy trì sự thông thoáng lý tưởng, mang lại trải nghiệm sống tiện nghi và thời thượng.




Thiết kế nhà mặt tiền 8m sâu 12m phong cách tân cổ điển
Nếu bạn yêu thích vẻ đẹp vượt thời gian thiết kế nhà phố tân cổ điển 8m x 10m chính là một sự lựa chọn hoàn hảo. Nét độc đáo của phong cách này nằm ở sự kết hợp hài hòa giữa tinh hoa đường nét cổ điển và sự tối giản, phóng khoáng của phong cách hiện đại. Cùng với chi tiết phào chỉ và hoa văn được tiết chế và trang trí một cách chừng mực va hệ thống cột trụ vững chãi tạo nên một tổng thể sang trọng, quý phái và đầy cuốn hút. Ngoài ra, phong cách thiết kế này thường ưu tiên sử dụng những gam màu nhẹ nhàng như trắng, kem, pastel hay vàng nhạt. Sự lựa chọn này giúp công trình không chỉ toát lên vẻ thanh lịch vượt trội mà còn khẳng định giá trị bền vững theo năm tháng.




Mẫu thiết kế nhà mặt tiền 8m sâu 12m 1 tầng đẹp
Phương án thiết kế nhà mặt tiền 8m sâu 12m đặc biệt phù hợp với những gia đình ít thành viên hoặc những ai theo đuổi lối sống tối giản nhưng vẫn yêu cầu sự tiện nghi tối đa. Đặc điểm nổi bật của mẫu nhà này là tất cả các không gian chức năng chính bao gồm phòng khách, bếp, phòng ngủ và nhà vệ sinh đều được bố trí gọn gàng trên cùng một mặt sàn. Điều này nhằm mang lại sự thuận tiện tuyệt đối trong sinh hoạt cho các thành viên. Hơn nữa, kiến trúc một tầng còn giúp tiết kiệm đáng kể chi phí xây dựng hơn so với các mẫu nhà nhiều tầng.



Tìm hiểu thêm: 5 Mẫu thiết kế nhà ngang 8m 1 tầng đẹp và xu hướng nhất
Mẫu thiết kế nhà mặt tiền 8m sâu 12m 2 tầng
Đối với những gia đình đông thành viên, thiết kế nhà mặt tiền 8m sâu 12m hai tầng là giải pháp mở ra một không gian sống lý tưởng, vừa đảm bảo sự kết nối quây quần nhưng vẫn duy trì riêng tư cho các thành viên. Ngoại thất ngôi nhà chú trọng sự tối giản, sử dụng các vật liệu hiện đại như gỗ, kính, đá ốp tường,… giúp tổng thể công trình bắt mắt và ấn tượng hơn. Cùng với đó, công năng sinh hoạt của ngôi nhà cũng được phân chia rõ ràng, tầng 1 là không gian sinh hoạt như phòng khách, phòng bếp-ăn và nhà vệ sinh chung giúp tăng tính kết nối trong gia đình. Trong khi đó, tầng 2 được dành để bố trí các phòng ngủ, phòng làm việc hoặc khu vực giải trí riêng mang đến không gian yên tĩnh, riêng tư hơn.



Đọc thêm: 25+ mẫu nhà 2 tầng 8 mét mặt tiền đẹp hiện đại mới nhất 2025
Mẫu thiết kế nhà mặt tiền 8m sâu 12m 3 tầng ấn tượng
Nếu bạn đang tìm kiếm một không gian sống tiện nghi, đẳng cấp với nhiều tiện ích mở rộng hơn thì mẫu nhà 8x12m ba tầng phương án hoàn hảo. Với diện tích lớn hơn, công trình không chỉ đáp ứng trọn vẹn các không gian sinh hoạt cơ bản mà còn mở ra khả năng tích hợp đa chức năng ở các tầng trên. Cụ thể, gia chủ có thể bố trí linh hoạt thêm các tiện ích nâng cao như phòng gym hiện đại, phòng karaoke gia đình hay khu vực giải trí riêng biệt, khẳng định một lối sống tiện nghi hoàn hảo trong cùng một công trình.



Xem ngay: Mẫu Nhà Phố Đẹp 3 Tầng 8x15m Đã Được Thiết Kế Thi Công Tại Tphcm
Mẫu thiết kế nhà mặt tiền 8m sâu 12m 4 tầng đẹp
Mẫu thiết kế nhà 4 tầng, mặt tiền 8m x 12m phù hợp với những gia đình có đông thành viên hoặc những người muốn khai thác tối đa mặt bằng cho mục đích kinh doanh hoặc cho thuê. Nhờ lợi thế quy mô, công trình không chỉ đáp ứng đủ không gian sinh hoạt riêng tư mà còn rất linh hoạt trong việc bố trí các phòng chức năng bổ sung. Gia chủ có thể dành không gian tầng trệt dành cho khu vực kinh doanh hoặc văn phòng dịch vụ, qua đó tạo ra nguồn thu nhập ổn định. Trong khi đó, 3 tầng còn lại sẽ được thiết kế tách biệt hoàn toàn để phục vụ nhu cầu sinh hoạt gia đình, đảm bảo một lối sống riêng tư tuyệt đối và chất lượng cao.




Mẫu thiết kế nhà 8x12m kết hợp với mái bằng
Phương án thiết kế nhà ngang 8m sâu 12m mang đến cho ngôi nhà vẻ đẹp khỏe khoắn, phóng khoáng và thường được ứng dụng với phong cách hiện đại đặc trưng. Các mẫu nhà mái bằng không chỉ tạo nên sự thanh lịch, vuông vắn cho tổng thể kiến trúc mà còn là giải pháp giúp tiết kiệm chi phí thi công cho gia chủ. Đáng chú ý, mái bằng còn sở hữu ưu điểm vượt trội về mặt công năng, khi dễ dàng bảo trì và có thể tận dụng tối đa làm sân thượng, khu vực thư giãn ngoài trời hoặc vườn cảnh mini,… giúp tối đa diện tích sử dụng và mang lại giá trị bền vững cho ngôi nhà.




Mẫu thiết kế ngang 8m sâu 12m mái thái đẹp
Khác với sự hiện đại và tối giản của mái bằng, mẫu thiết kế nhà mặt tiền 8m x 12m mái Thái mang đến vẻ đẹp truyền thống, gần gũi và ấm cúng đặc trưng. Với độ dốc lớn và thiết kế hệ mái giật cấp, mái Thái mang lại công năng vượt trội trong việc chống nóng và thoát nước nhanh, rất phù hợp với điều kiện khí hậu nhiệt đới ẩm gió mùa tại Việt Nam. Ngoài ra, kiến trúc mái Thái còn tạo cảm giác cao ráo, thanh thoát và giúp tổng thể ngôi nhà trông kiên cố, vững chắc hơn. Đặc biệt, nhờ vẻ đẹp hài hòa với cảnh quan, phong cách này được nhiều gia đình ở khu vực ngoại ô và nông thôn vô cùng yêu thích.




Dự án liên quan: 45+ Mẫu nhà phố 2 tầng mái Thái 5x20m đẹp hiện đại, HOT nhất
Mẫu thiết kế nhà mặt tiền 8m sâu 12m kiểu mái nhật
Thiết kế biệt thự mái Nhật là lựa chọn lý tưởng cho những gia chủ yêu thích sự kết hợp hài hòa giữa nét truyền thống Á Đông và tính hiện đại, tối giản. Điểm nhấn của kiểu mái này chính là độ dốc vừa phải, cân đối, tạo cảm giác nhẹ nhàng, thanh thoát nhưng vẫn toát lên vẻ sang trọng và bề thế cho tổng thể công trình. Đặc biệt, Mái Nhật rất phù hợp với các phong cách kiến trúc hiện đại, mang đến một vẻ đẹp tinh tế, hòa quyện với cảnh quan xung quanh. Về công năng, kiểu mái này không chỉ giúp thoát nước mưa hiệu quả mà còn hỗ trợ điều hòa nhiệt độ, mang lại không gian sống mát mẻ, dễ chịu và bền vững.




Mẫu thiết kế nhà mặt tiền 8m sâu 12m mái lệch đẹp
Không còn là những kiểu mái quen thuộc, thiết kế nhà 8x12m mái lệch mang đến một làn gió mới đầy ấn tượng và tính đột phá. Với kiến trúc phá cách cùng các hình khối được kết hợp khéo léo và bất đối xứng, ngôi nhà tạo nên một tổng thể độc đáo và thu hút mọi ánh nhìn. Sự hài hòa giữa các mảng tường, ban công cây xanh và khu vực sân thượng không chỉ giúp công trình nổi bật vượt trội mà còn tạo cảm giác gần gũi với thiên nhiên. Qua đó, khẳng định gu thẩm mỹ riêng biệt và cá tính mạnh mẽ của gia chủ.



Mẫu thiết kế nhà mặt tiền 8m sâu 12m có gara ô tô
Với những gia đình sở hữu ô tô, thiết kế nhà mặt tiền 8m sâu 12m có gara là một giải pháp tiện nghi và an toàn. Gara thường được bố trí khoa học ở tầng trệt hoặc tích hợp vào sân trước, đảm bảo phương tiện luôn được che chắn khỏi nắng, mưa và các tác động của thời tiết. Quan trọng hơn, việc có gara trong nhà còn giúp kiểm soát an ninh tuyệt đối, giảm thiểu rủi ro trộm cắp. Thiết kế này không chỉ mang lại sự thuận tiện tối đa trong sinh hoạt mà còn giúp tổng thể kiến trúc trở nên ấn tượng và gọn gàng hơn.




Mẫu thiết kế nhà mặt tiền 8m sâu 12m có sân vườn
Hiện nay, các mẫu nhà mặt tiền 8m, sâu 12m có sân vườn đang được nhiều gia chủ quan tâm và yêu thích. Sân vườn được bố trí khoa học, hài hòa với kiến trúc tổng thể tạo điểm nhấn thẩm mỹ ấn tượng ngay từ cái nhìn đầu tiên. Không chỉ mang lại bầu không khí trong lành, giúp thư giãn và tái tạo năng lượng, sân vườn còn tối ưu yếu tố phong thủy, thu hút năng lượng tích cực vào ngôi nhà. Đồng thời, hệ thống cửa kính lớn kết nối liền mạch không gian xanh bên ngoài với nội thất, giúp ngôi nhà luôn thông thoáng và ngập tràn ánh sáng tự nhiên.



Mẫu thiết kế nhà 8x12m có sân thượng
Sân thượng là một điểm nhấn kiến trúc độc đáo, giúp ngôi nhà mặt tiền 8m sâu 12m trở nên ấn tượng và tiện nghi hơn. Tùy thuộc vào sở thích, sân thượng có thể được biến thành khu vực giải trí ngoài trời, nơi tổ chức tiệc BBQ, hoặc một khu vườn xanh mát trên cao. Đây cũng là nơi lý tưởng để gia chủ ngắm cảnh, thư giãn sau những giờ làm việc căng thẳng. Thiết kế sân thượng còn giúp tối đa hóa công năng sử dụng, mang đến một không gian sống đa dạng và tiện ích hơn.




Mẫu thiết kế nhà mặt tiền 8m sâu 12m có gác lửng
Để tối ưu hóa diện tích và tiết kiệm chi phí, nhiều gia đình thường chọn thiết kế nhà mặt tiền 8m sâu 12m có gác lửng. Tầng lửng có thể được sử dụng linh hoạt làm phòng ngủ phụ, phòng làm việc hoặc kho chứa đồ, mang lại sự tiện lợi tối đa. Kiến trúc gác lửng còn tạo cảm giác không gian trần nhà cao hơn, giúp ngôi nhà trở nên thông thoáng và hiện đại hơn.




Mẫu biệt thự ngang 8m sâu 12m kiểu biệt thự
Thiết kế nhà mặt tiền 8m sâu 12m kiểu biệt thự mang đến một ngôi nhà sang trọng và đẳng cấp. Ngôi nhà để lại ấn tượng mạnh mẽ bởi tỷ lệ hình khối cân đối cùng mặt tiền rộng thoáng. Tùy thuộc vào phong cách, ngôi nhà có thể mang nét hiện đại tối giản hay vẻ đẹp tân cổ điển với hệ cột trụ và phào chỉ tinh xảo. Sự kết hợp hài hòa giữa bố cục, màu sắc và các chi tiết trang trí không chỉ đáp ứng công năng sử dụng mà còn thể hiện gu thẩm mỹ và cá tính riêng của gia chủ.

Mẫu thiết kế mặt tiền 8m sâu 12m kết hợp cùng với kinh doanh
Thiết kế nhà mặt tiền 8m sâu 12m kết hợp kinh doanh đang trở thành xu hướng được nhiều gia đình quan tâm. Với thiết kế thông minh, tầng trệt có thể tận dụng làm cửa hàng, văn phòng hoặc cho thuê, trong khi các tầng trên vẫn là không gian sinh hoạt tiện nghi và ấm cúng. Kiểu nhà này không chỉ đáp ứng nhu cầu an cư mà còn mở ra cơ hội phát triển kinh tế ngay tại chính ngôi nhà của bạn.



Mẫu thiết kế nhà mặt tiền 8m sâu 12m 2 mặt tiền
Mẫu nhà 8x12m 2 mặt tiền là một trong những thiết kế đắt giá, mang lại giá trị cao về mặt thẩm mỹ lẫn công năng. Với ưu thế có thể tiếp cận từ hai hướng, ngôi nhà không chỉ trở nên nổi bật và thu hút mà còn tối ưu hóa không gian sống. Nhờ có hai mặt tiền, ngôi nhà dễ dàng đón ánh sáng tự nhiên và gió trời từ nhiều hướng, giúp không gian bên trong luôn thông thoáng, mát mẻ và tràn đầy năng lượng. Kiến trúc sư cũng có thể thỏa sức sáng tạo để tạo nên một tổng thể ấn tượng, độc đáo từ mọi góc nhìn, thể hiện gu thẩm mỹ tinh tế của gia chủ. Đặc biệt, thiết kế này rất phù hợp để kết hợp giữa không gian sống và kinh doanh, mang lại lợi ích kinh tế bền vững cho gia đình.




Mẫu thiết kế nhà mặt tiền 8m sâu 12m theo phong cách kiểu Pháp sang trọng
Nếu bạn muốn sở hữu một ngôi nhà lộng lẫy và cổ điển, thiết kế nhà mặt tiền 8m sâu 12m phong cách Pháp sẽ khiến không gian sống của bạn trở nên nổi bật. Kiến trúc đặc trưng bởi những chi tiết hoa văn tinh xảo, ban công uốn lượn mềm mại cùng hệ thống cửa sổ vòm quyến rũ. Gam màu thanh lịch kết hợp với các đường nét tinh tế mang đến vẻ đẹp sang trọng, đẳng cấp và cuốn hút, thể hiện gu thẩm mỹ tinh tế của gia chủ.




Mẫu thiết kế nhà mặt tiền 8m sâu 12m có 3 phòng ngủ
Với diện tích 8x12m, việc bố trí 3 phòng ngủ trở nên vô cùng hợp lý, đáp ứng nhu cầu sử dụng của một gia đình từ 4-6 thành viên. Các phòng ngủ thường được phân bổ ở các tầng trên để đảm bảo sự riêng tư và yên tĩnh. Tùy thuộc vào phong cách thiết kế, kiến trúc sư có thể tạo ra các phòng ngủ có ban công hoặc cửa sổ lớn, giúp đón ánh sáng tự nhiên và gió trời, mang lại không gian nghỉ ngơi thoải mái và thư thái.


Mẫu thiết kế nhà mặt tiền 8m sâu 12m có 4 phòng ngủ
Mẫu nhà mặt tiền 8m sâu 12m 4 phòng ngủ là phương án tối ưu cho những gia đình đa thế hệ, cần một không gian rộng rãi để sinh hoạt. Với 4 phòng ngủ, các kiến trúc sư sẽ bố trí không gian một cách khoa học và hiệu quả, đảm bảo mỗi thành viên đều có phòng riêng. Thông thường, các phòng ngủ sẽ được phân bổ đều trên các tầng lầu. Kiến trúc ngôi nhà vẫn có thể kết hợp thêm sân thượng hoặc ban công để tạo thêm không gian thư giãn, giúp các thành viên trong gia đình luôn cảm thấy thoải mái.




Cách bố trí công năng cho mẫu thiết kế nhà mặt tiền 8m sâu 12m
Với lợi thế diện tích thoáng rộng, mẫu thiết kế nhà mặt tiền 8m sâu 12m cho phép sắp xếp không gian sống linh hoạt, đáp ứng nhiều nhu cầu khác nhau của gia đình. Dưới đây là một số phương án bố trí mà NEOHouse gợi ý để bạn tham khảo:
Mặt bằng tầng 1: Nơi sinh hoạt chung
Tầng 1 là không gian mở, nơi các thành viên trong gia đình kết nối với nhau.
- Phòng khách: Nên bố trí phòng khách ở khu vực trung tâm, gần cửa chính để dễ dàng đón ánh sáng tự nhiên, tạo cảm giác rộng rãi và thoáng đãng.
- Phòng bếp & Ăn: Vị trí thuận tiện, kết nối trực tiếp với phòng khách hoặc được ngăn cách bằng vách ngăn nhẹ, giúp không gian bếp trở nên thông thoáng hơn.
- Phòng vệ sinh: Nên được đặt ở vị trí khuất, kín đáo để thuận tiện trong quá trình sử dụng.
- Phòng ngủ nhỏ/Phòng làm việc: Có thể bố trí 1 phòng ngủ phía dưới cho ông bà hoặc khách/ người giúp việc để đảm bảo tiện nghi và không gian riêng tư cho sinh hoạt của gia đình.
- Gara/Nhà kho: Tùy thuộc nhu cầu, bạn có thể dành một phần diện tích để làm gara ô tô hoặc nhà kho, giúp ngôi nhà luôn gọn gàng.

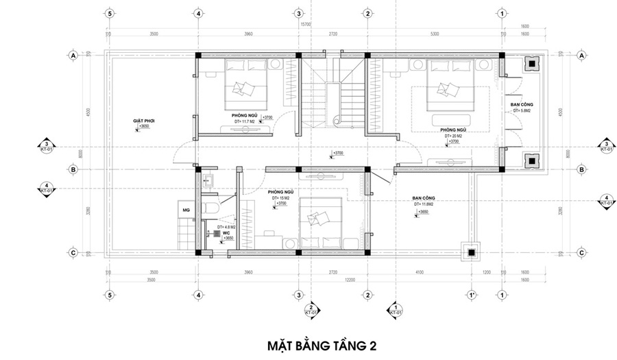
Mặt bằng tầng 2: Không gian riêng tư
Tầng 2 là khu vực yên tĩnh, dành riêng cho không gian nghỉ ngơi và làm việc cá nhân.
- Phòng ngủ chính (Master): Bố trí ở vị trí yên tĩnh nhất, có cửa sổ lớn để đón ánh sáng tự nhiên. Có thể bố trí nhà vệ sinh, phòng thay đồ và đầy đủ tiện ích để căn phòng trở nên đầy đủ và tiện nghi hơn.
- Phòng ngủ phụ: Nên đặt gần khu vực nhà vệ sinh chung phía trên giúp thuận tiện trong quá trình sinh hoạt.
- Khu vực giặt phơi & Ban công: Bố trí ở vị trí có mái che và hệ thống thông gió tốt. Ban công có thể trang trí thêm cây xanh, tạo không gian thư giãn.

Tầng 3 (nếu có): Nơi giải trí và thư giãn
Với nhà 3 tầng, bạn có thể tận dụng không gian tầng trên cùng để làm khu vực giải trí và thư giãn.
- Sân thượng: Có thể thiết kế thành khu vực BBQ ngoài trời, một khu vườn nhỏ hoặc nơi thư giãn lý tưởng để ngắm cảnh, hóng gió.
- Phòng giải trí/Phòng thờ: Tùy nhu cầu, bạn có thể bố trí phòng xem phim, karaoke, phòng gym hoặc phòng thờ ở tầng này. Phòng thờ nên được đặt ở nơi trang nghiêm, yên tĩnh.
Kinh nghiệm xây nhà 2 tầng mặt tiền 8m sâu 12m
Để kiến tạo một ngôi nhà 8x12m vừa đẹp vừa tiện nghi, gia chủ cần chú ý đến nhiều yếu tố, từ bố cục không gian đến việc quản lý chi phí. Dưới đây là những điều bạn nên lưu tâm:
- Tận dụng tối đa diện tích: Với đặc điểm mặt tiền hẹp hơn chiều sâu, bạn nên thiết kế ngôi nhà theo dáng đất, có thể là nhà ống hoặc nhà chữ L để tối ưu hóa không gian. Việc phân chia các phòng chức năng thành khu vực sinh hoạt chung và khu vực riêng tư sẽ giúp ngôi nhà trở nên khoa học và thuận tiện hơn.
- Tạo không gian mở và thoáng đãng: Xây dựng thêm giếng trời hoặc hành lang sẽ giúp ngôi nhà có thêm không gian đệm, tăng sự kết nối và đưa ánh sáng tự nhiên vào sâu bên trong. Điều này rất quan trọng để đảm bảo ngôi nhà luôn thông thoáng, dễ chịu.
- Chú trọng vào mặt tiền: Mặt tiền là bộ mặt của ngôi nhà. Hãy tạo điểm nhấn kiến trúc bằng các đường nét tối giản, hiện đại, tránh để mặt tiền quá trống trải hoặc trang trí quá nhiều chi tiết rườm rà.
- Kiểm soát ngân sách và tiến độ: Trước khi bắt tay vào xây dựng, bạn nên dự trù ngân sách tối đa để lựa chọn phong cách thiết kế và vật liệu phù hợp. Đồng thời, việc giám sát chặt chẽ quá trình thi công sẽ đảm bảo chất lượng công trình và tránh lãng phí.
- Lựa chọn phong cách và màu sắc: Một thiết kế hiện đại với không gian mở sẽ giúp tối ưu chi phí xây dựng. Ngoài ra, việc lựa chọn màu sắc và trang trí nội thất hài hòa, hợp mệnh gia chủ cũng là yếu tố quan trọng để mang đến may mắn và tài lộc cho gia đình.
- Chọn đơn vị thi công uy tín: Cuối cùng, để hiện thực hóa ngôi nhà mơ ước, bạn cần tìm một đơn vị thiết kế và thi công chuyên nghiệp. Họ sẽ giúp bạn lên phương án tối ưu nhất, từ bản vẽ đến quá trình thi công, đảm bảo mọi thứ diễn ra suôn sẻ và hiệu quả.

NEOHouse – Đơn vị thiết kế thi công nhà mặt tiền 8m sâu 12m uy tín tại TP.HCM
NEOHouse JSC tự hào là đơn vị hàng đầu trong lĩnh vực thiết kế và thi công nhà mặt tiền 8m sâu 12m tại TP.HCM. Với hơn 10 năm kinh nghiệm, chúng tôi không chỉ sở hữu đội ngũ kiến trúc sư, kỹ sư giàu chuyên môn mà còn không ngừng cập nhật những xu hướng kiến trúc mới nhất trên thị trường. Chúng tôi hiểu rằng, mỗi ngôi nhà không chỉ là nơi để ở mà còn là không gian thể hiện cá tính và phong cách sống của gia chủ. Chính vì vậy, NEOHouse cam kết mang đến những mẫu thiết kế độc đáo và những dự án thi công chất lượng vượt trội, đáp ứng trọn vẹn mọi nhu cầu và mong muốn của gia chủ.
Chất lượng và uy tín là ưu tiên hàng đầu
Tại NEOHouse, chất lượng và uy tín là hai tiêu chí được đặt lên hàng đầu. Mọi quy trình, từ khâu lên ý tưởng ban đầu cho đến khi bàn giao công trình, đều được thực hiện theo một quy trình tiêu và được giám sát chặt chẽ. Chúng tôi đặc biệt chú trọng vào việc lựa chọn vật liệu xây dựng, toàn bộ vật liệu đều có nguồn gốc rõ ràng, đảm bảo chất lượng giúp ngôi nhà của bạn không chỉ đẹp mà còn bền vững với thời gian. NEOHouse cam kết bàn giao công trình đúng tiến độ đã đề ra, đảm bảo an toàn lao động và vệ sinh môi trường, mang đến sự an tâm tuyệt đối cho khách hàng.

Dịch vụ chuyên nghiệp, tận tâm
Không chỉ đơn thuần cung cấp dịch vụ thiết kế nhà đẹp, chúng tôi còn đặc biệt chú trọng đến trải nghiệm của khách hàng. NEOHouse JSC tin rằng một ngôi nhà hoàn hảo bắt đầu từ sự lắng nghe và thấu hiểu. Đội ngũ tư vấn của chúng tôi sẽ lắng nghe kỹ lưỡng mọi mong muốn của bạn về phong cách, công năng, và ngân sách để đưa ra những giải pháp tối ưu nhất.

Lợi thế vượt trội khi lựa chọn NEOHouse
Khi lựa chọn NEOHouse, bạn không chỉ nhận được một ngôi nhà đẹp mà còn là một giải pháp xây dựng toàn diện. Chúng tôi giúp bạn tối ưu hóa mọi khoản chi phí từ thiết kế đến vật liệu, tránh những phát sinh không đáng có. Sự chuyên nghiệp và tận tâm của chúng tôi thể hiện qua từng chi tiết, từ việc bố trí công năng khoa học đến việc tư vấn màu sắc và nội thất hài hòa, giúp ngôi nhà không chỉ đẹp mà còn mang lại sự an tâm cho gia chủ trong quá trình thi công.

Kết luận:
Trên đây là những gợi ý về mẫu thiết kế nhà mặt tiền 8m sâu 12m đẹp và tối ưu công năng mà nhiều gia đình lựa chọn. Để sở hữu một ngôi nhà vừa sang trọng, vừa tiện nghi, bạn cần một đơn vị chuyên nghiệp đồng hành từ khâu lên ý tưởng đến hoàn thiện công trình. Với kinh nghiệm nhiều năm trong lĩnh vực thiết kế nhà phố và thi công trọn gói, NEOHouse cam kết mang đến cho bạn không gian sống đẳng cấp, bền vững và phù hợp với ngân sách thực tế.