Nhà cấp 4 chữ U được nhiều chủ đầu tư quan tâm và lựa chọn. Vì thiết kế này đem đến một không gian sống tiện nghi cho các thành viên trong gia đình cùng với kiến trúc độc đáo, sang trọng. Trong bài viết hôm nay, NEOHOUSE sẽ giới thiệu đến các bạn top những mẫu thiết kế nhà cấp 4 chữ U đẹp tiết kiệm chi phí mà vẫn tạo được tính thẩm mỹ cao thể hiện sự cá tính và nét đẹp cá nhân cho nhiều gia chủ.
Xem thêm: Top 55+ mẫu nhà cấp 4 chữ L đẹp độc đáo mới nhất 2026
Nhà cấp 4 hình chữ U là gì?
Nhà cấp 4 hình chữ U là kiểu nhà được thiết kế với hình dáng giống chữ “U” khi nhìn từ trên xuống. Kiểu nhà này thường được sử dụng rộng rãi trong kiến trúc dân dụng và được ưa chuộng lối thiết kế đơn giản, thoáng mát và tiết kiệm chi phí xây dựng. Thiết kế hình chữ U cho phép tối ưu hóa ánh sáng và không gian giữa các khu vực trong nhà.

Kiến trúc nhà chữ U có sự đa dạng về phong cách thiết kế, tùy thuộc vào diện tích xây dựng mà ngôi nhà sẽ có kiến trúc hình dáng khác nhau để phù hợp với nhu cầu sử dụng của từng gia đình. Nhà cấp 4 hình chữ U có bố cục cân đối, khoa học mang đến không gian sống tiện nghi và thông thoáng. Với chi phí đầu tư vừa phải, gia chủ có thể sở hữu một công trình kiến trúc độc đáo, đáp ứng đầy đủ nhu cầu sinh hoạt cho tất cả các thành viên trong gia đình. Đây sẽ là một sự lựa chọn lý tưởng cho những gia đình yêu thích một cuộc sống gần gũi với thiên nhiên.
Đặc điểm nổi bật của nhà cấp 4 chữ U
Trước khi tham khảo những mẫu thiết kế nhà cấp 4 chữ U đẹp, hãy cùng NEOHouse điểm qua một số đặc điểm nổi bật của nhà chữ U trong kiến trúc nhà ở dân dụng hiện nay nhé!
- Kiến trúc khác biệt, tạo dấu ấn riêng: Với kiến trúc theo hình chữ U, mẫu nhà đẹp này mang đến diện mạo mới mẻ và giàu cá tính so với nhiều kiểu nhà phổ biến khác. Với bố cục hai cánh nhà vươn ra hai bên, kết hợp phần trung tâm thụt vào tạo nên tổng thể cân đối và độc đáo. Nhờ sự khác biệt về hình khối này đã giúp công trình trở nên nổi bật, mang một dấu ấn riêng biệt, dù đặt trong khu dân cư đông đúc hay khu vực nông thôn.
- Không gian mở, gần gũi thiên nhiên: Khoảng sân ở phần lõm trung tâm được xem là điểm nhấn quan trọng trong thiết kế nhà chữ U. Không gian này đóng vai trò như một khoảng đệm xanh, đưa ánh sáng và luồng không khí lưu thông đến từng ngóc ngách bên trong ngôi nhà. Nhờ vậy, không gian sống luôn giữ được sự thông thoáng, hạn chế cảm giác bí bách và mang đến bầu không khí trong lành, dễ chịu cho các thành viên.
- Mặt bằng công năng bố trí linh hoạt theo nhu cầu sử dụng: Cấu trúc hình chữ U tạo điều kiện thuận lợi cho việc phân chia không gian chức năng một cách khoa học và tiện nghi. Theo đó, hai cánh nhà có thể bố trí phòng ngủ, phòng làm việc hoặc khu vực sinh hoạt riêng, trong khi phần trung tâm là khu vực đặt phòng khách và bếp – không gian sinh hoạt chung của gia đình. Phương án bố trí công năng này vừa kết nối giữa các thành viên, vừa đảm bảo sự tách biệt cần thiết, đặc biệt phù hợp với gia đình nhiều thế hệ cùng chung sống.

Những ưu điểm và hạn chế của mẫu nhà cấp 4 chữ U
Nếu đang có nhu cầu thiết kế và quan tâm đến những mẫu nhà cấp 4 chữ U này, hãy cùng chúng tôi tìm hiểu ưu và nhược điểm dưới đây để hiểu rõ hơn về loại hình nhà ở này nhé.
Ưu điểm nổi bật của nhà cấp 4 hình chữ U
Bố trí công năng sử dụng linh hoạt
Nhà cấp 4 chữ U thường sẽ phù hợp với những khu đất có diện tích rộng, hình vuông. Chủ đầu tư dễ dàng phân chia các khu vực chức năng trong nhà một cách thuận tiện nhất. Với kiến trúc hình chữ U, chủ nhà cũng không cần phải lo lắng về việc bố trí thiếu các phòng chức năng. Đầu hồi một bên của ngôi nhà có thể được bố trí 2 phòng ngủ, bên còn lại là phòng khách, phòng bếp + ăn, thiết kế hướng đến không gian mở để tạo sự thông thoáng cho căn nhà.

Dễ dàng kết nối không gian với nhau
Không giống như những mẫu nhà vuông, nhà ống hay nhà chữ L khi di chuyển đến các không gian chức năng khác chúng ta cần phải di chuyển xa hơn, vòng ra phía sau nhà để có thể vào sảnh sau hoặc bên trái nhà. Đối với nhà cấp 4 chữ U còn giúp gia chủ thuận tiện trong việc di chuyển từ phòng này sang phòng khác một cách nhanh chóng, chỉ cần qua khoảng sân trước nhà là có thể đến các phòng chức năng khác.

Có tính thẩm mỹ cao
Mẫu nhà đẹp này thường được những gia đình yêu thích vẻ đẹp độc đáo và gần gũi. Hình khối kiến trúc ngôi nhà cân đối, hài hòa, có khoảng sân vườn rộng rãi và thoáng mát mang nét đẹp gần gũi cảnh quang thiên nhiên. Mẫu nhà cấp 4 chữ U mang đến cho gia chủ một không gian sống thoải mái và tiện nghi nhất. Với kiến trúc đơn giản, nhẹ nhàng nhưng vô cùng độc đáo và ấn tượng trong cái nhìn tổng thể.

Hướng đến không gian sống mở
Mẫu nhà cấp 4 chữ U thường mang thiết kế hướng đến không gian mở bằng việc liên thông giữa phòng khách và bếp, kết hợp bố trí nhiều hệ thống cửa sổ, cửa thông gió bằng vật liệu kính cường lực, giúp ngôi nhà đón gió và lấy sáng vào bên trong nhà hiệu quả cũng như tạo sự kết nối với sân vườn bên ngoài.

Hạn chế cần lưu ý của nhà chữ U
Bên cạnh những ưu điểm nhà chúng tôi nêu trên, khi xây dựng nhà cấp 4 chữ U, chủ đầu tư cần nắm bắt rõ được những hạn chế của loại hình nhà ở này.
Như chúng tôi đã chia sẻ ở trên, loại hình kiến trúc này cần được xây dựng trên một diện tích đất rộng lớn. Chính vì thế mà nếu sở hữu một mảnh đất nhỏ thì việc thiết kế thi công theo loại hình này là không phù hợp.

Nhiều người còn cho rằng loại hình nhà ở này không hợp về yếu tố phong thủy. Bởi vì cửa chính được đặt giữa mặt tiền của ngôi nhà và thụt vào bên trong. Điều này dẫn đến việc nhiều gia chủ sợ mất lộc làm ăn, buôn bán nên đã từ bỏ phương án xây dựng mẫu nhà cấp 4 chữ U.
Tuy nhiên, vấn đề này có thể được giải quyết một cách dễ dàng, chủ đầu tư có thể bố trí công năng hai bên hình chữ U làm phòng khách hoặc nhà kho. Đồng thời trồng cây xanh để cân đối những phần khuyết điểm của hình chữ U. Nếu vị trí không cho phép trồng cây cảnh gia chủ có thể chống lại bằng cách lắp gương ở bức tường đối diện.
Tổng hợp xu hướng thiết kế nhà cấp 4 chữ U đẹp độc đáo nhất 2026
Dưới đây là tổng hợp những mẫu thiết kế nhà cấp 4 chữ U đẹp độc đáo được ưa chuộng nhất hiện nay gửi đến mọi người cùng chiêm ngưỡng và tham khảo. Hy vọng sẽ đem đến những mẫu nhà đẹp phù hợp với nhu cầu và mong muốn của gia đình mình.
Mẫu nhà chữ U 4 phòng ngủ
Mẫu nhà cấp 4 4 phòng ngủ chữ U thiết kế theo phong cách hiện đại đan xen cùng nét đẹp truyền thống. Toàn bộ hệ thống cửa chính, cửa sổ và cửa thông gió đều sử dụng vật liệu kính kết hợp khung cửa nhôm xingfa màu nâu sang trọng. Trung tâm nhà là vị trí tiền sảnh có diện tích khá rộng, thiết kế giàn khung gỗ bắc ngang, phía trên có lợp mảng kính cường lực trong suốt lớn để che mưa nhưng vẫn đảm bảo được ánh sáng chiếu vào bên trong nhà. Kết hợp cùng màu sơn tường màu trắng nhẹ nhàng, chân tường ốp đá màu kem tối màu đã giúp làm tăng thêm tính thẩm mỹ và vẻ đẹp sinh động cho kiến trúc mặt tiền.


Sân vườn phía trước được bố trí hệ thống tiểu cảnh cây xanh bát ngát, kết hợp với hệ thống cửa kính được phân bổ đồng đều, hệ mái thái kiên cố sẽ giúp công trình luôn đón nhận được sinh khí tốt giúp không gian luôn gần gũi và trong lành.

Mẫu nhà cấp 4 chữ U 3 phòng ngủ
Phương án thiết kế nhà cấp 4 chữ U 3 phòng ngủ có kết cấu hình chữ U độc đáo, có nền cao với bậc tam cấp. Cửa chính thụt vào bên trong và hai bên có trụ cột chống đỡ phần mái hiên. Hai bên thiết kế lồi ra phía trước tạo thành hình chữ U làm nên kiến trúc độc đáo. Mẫu nhà đẹp này có mảng khối vuông vức nhấn cùng những đường kẻ chỉ trên mảng tường, tạo nên điểm nhấn nổi bật cho công trình.


Màu sơn tường chủ đạo là màu trắng tinh khiết, nhẹ nhàng pha lẫn gam màu nâu của khung gỗ, màu xanh của hệ mái thái gây sự chú ý ấn tượng. Cùng với phần chân tường được ốp đá kết hợp mảng cây xanh cùng với sân vườn phía trước rộng rãi được lát gạch xi măng màu xám vừa là nơi vui chơi lý tưởng cho gia đình, vừa là nơi để xe tiện lợi.

Nhà cấp 4 chữ U 2 phòng ngủ
Mẫu nhà chữ U 2 phòng ngủ là lựa chọn hoàn hảo dành cho gia đình nhỏ hoặc cặp vợ chồng trẻ mong muốn không gian sống vừa đủ tiện nghi. Với bố cục hình chữ U, căn nhà dễ dàng tách biệt khu sinh hoạt chung và khu vực nghỉ ngơi riêng tư. Thông thường, hai phòng ngủ sẽ bố trí ở hai cánh nhà, hướng ra sân trong để tạo sự thông thoáng và đón sáng tự nhiên từ bên ngoài. Trung tâm ngôi nhà sẽ là không gian sinh hoạt chung của gia đình như phòng khách, bếp + bàn ăn, WC chung.



Mẫu nhà nông thôn cấp 4 chữ U
Mang trong mình phong cách kiến trúc hiện đại, nhẹ nhàng nhưng không hề đơn điệu, mẫu nhà cấp 4 chữ U này toát lên vẻ đẹp tươi mới và gần gũi. Mặt tiền được sử dụng những gam màu tương phản nhau như màu trắng sơn tường chủ đạo, màu đỏ của mái thái và màu đen của khung cửa kính, cây cối. Phần trung tâm nhà được bố trí thêm mảng cây xanh phía trước vừa đảm bảo chuẩn phong thủy, vừa giúp ngôi nhà trong nhà và mát mẻ hơn.



Nhà cấp 4 hình chữ U mái thái
Phối cảnh nhà cấp 4 chữ U mái thái này phô diễn các khối mảng tường được thiết kế đơn giản nhưng vẫn toát lên sự chắc chắn, vững chãi cho tổng thể ngôi nhà. Tone màu trắng chủ đạo kết hợp với màu nâu của gỗ, màu đỏ của hệ mái thái giúp công trình toát lên sự sang trọng và nhã nhặn.

Cùng với đó, mẫu nhà được thiết kế với hệ thống sân vườn rộng và có cửa ra vào bằng gỗ khá sang trọng. Bố trí gara ô tô bên hông nhà tiện lợi cho nhu cầu sử dụng và di chuyển. Việc thiết kế gara ô tô giúp bảo vệ cho xe an toàn, kín đáo cũng như tạo điểm nhấn tinh tế cho tổng thể ngôi nhà.


Tham khảo thêm: 45+ Mẫu nhà cấp 4 mái Thái đẹp, hiện đại, thiết kế mới 2026
Thiết kế nhà cấp 4 chữ U mái Nhật
Phương án thiết kế nhà cấp 4 chữ U mái Nhật là xu hướng kiến trúc được nhiều gia đình lựa chọn bởi sự hài hòa giữa tính thẩm mỹ và công năng. Hệ mái Nhật có độ dốc vừa phải, thoát nước nhanh và chống ẩm mốc hiệu quả, đồng thời còn tạo nên tổng thể cân đối, cao ráo và thanh thoát, rất phù hợp với điều kiện khí hậu Việt Nam.


Kết hợp cùng kiến trúc chữ U, nhà mái Nhật càng trở nên ấn tượng và bắt mắt hơn rất nhiều so với nhà ở thông thường. Điểm xuyết cùng các vật liệu mới như gỗ, đá trang trí, cửa kính,… không chỉ tăng khả năng lấy sáng, đón gió tự nhiên mà còn góp phần hoàn thiện diện mạo mới mẻ, sang trọng không kém phần tinh tế.

Mẫu nhà cấp 4 chữ U mái bằng
Đây là mẫu nhà cấp 4 chữ U mái bằng được đánh giá cao nhờ vào kiến trúc mặt tiền bền vững và mới lạ. Hệ thống mái được đúc bê tông kiên cố, có khả năng chịu được ảnh hưởng tác động mạnh từ môi trường, khí hậu nhiệt đới ở nước ta. Bên cạnh đó, để tránh đọng nước, chống thấm, chống ẩm và rêu mốc triệt để căn nhà được đầu tư hệ thống thoát nước một cách bài bản nhằm nâng cao tuổi thọ cho công trình.

Những gam màu trung tính được kết hợp cực kỳ khéo léo và ăn ý với nhau, những gam màu trắng, màu đen, màu xám có tác dụng bổ trợ lẫn nhau để tôn lên vẻ đẹp hiện đại cho kiến trúc mặt tiền. Tuy quy mô dự án công trình chỉ có 1 tầng, nhưng nhờ vào việc áp dụng thông minh các quy tắc trong xây dựng mà ngôi nhà vẫn toát lên sự sang trọng, kiên cố.


Mẫu nhà cấp 4 hình chữ U phong cách hiện đại
Ngôi nhà cấp 4 chữ U này sở hữu kiến trúc mặt tiền trẻ trung và hiện đại, phù hợp với đa số thị hiếu thẩm mỹ của nhiều gia đình hiện nay. Hơn nữa, mẫu nhà còn toát lên vẻ đẹp sang trọng và thông thoáng với không gian rộng lớn. Màu sắc ngôi nhà trang nhã, tinh tế nổi bật trên nền sơn trắng chủ đạo, hài hòa cùng hệ thống khung cửa kính tạo cho ngôi nhà thêm nét tương đồng đến thanh thoát.

Kiến trúc mặt tiền nhà cấp 4 hình chữ U toát lên vẻ đẹp hiện đại và mới mẻ bởi sự xuất hiện của những vật liệu như gỗ nhựa ngoài trời, kính cường lực. Thêm vào đó là vật liệu đá ốp chân tường càng khiến không gian trở nên sinh động và gần gũi hơn rất nhiều.


Nhà cấp 4 chữ U phong cách tân cổ điển
Mẫu nhà cấp 4 chữ U tân cổ điển là sự kết hợp tinh tế giữa bố cục kiến trúc mở đặc trưng của hình chữ U và vẻ đẹp sang trọng, đẳng cấp của phong cách cổ điển được tiết chế. Mẫu nhà này không quá cầu kỳ như kiến trúc cổ điển truyền thống nhưng vẫn toát lên nét thanh lịch, bề thế và đẳng cấp, khẳng định vị thế của chủ nhà. Tuy nhiên, chi phí đầu tư của phong cách này có mức đầu tư khá cao, do đó gia chủ cần cân nhắc trước khi lựa chọn.

Thiết kế nhà cấp 4 chữ U kết hợp sân vườn
Nhà ở nông thôn thường sẽ có khuôn viên sân vườn khá rộng và xanh mát. Vì thế, chúng ta cũng không quá lạ lẫm với những mẫu nhà cấp 4 chữ U kết hợp sân vườn này. Ngôi nhà này được tạo điểm nhấn bằng gam màu trắng, màu xanh, có nền nhà được nâng cao hơn so với mặt đất, giúp không gian bên trong cao ráo và thông thoáng hơn. Ngoài ra, kiến trúc sư cũng bố trí sảnh chính được che bằng mái hiên được chống bằng trụ cột gỗ chắc chắn.



Tìm hiểu thêm: 35+ mẫu nhà vườn cấp 4 đẹp hiện đại không thể bỏ qua
Thiết kế nhà cấp 4 hình chữ U phong cách Châu Âu
Mẫu nhà cấp 4 chữ U phong cách Châu Âu là sự kết hợp mới mẻ giữa hơi hướng truyền thống và nét đẹp cách tân. Ngoài ra, hệ thống sân vườn khá rộng rãi, thoáng đãng giúp không gian sống luôn tràn ngập sức sống.

Bên cạnh đó, mẫu thiết kế nhà cấp 4 này gây ấn tượng mạnh bởi hệ thống cửa khung nhôm kết hợp kính cường lực lớn. Mặt tiền ngôi nhà tạo được sự gần gũi nhờ lối thiết kế sơn trắng và mái ngói màu xám trang nhã. Nhìn tổng thể ngôi nhà chúng ta có thể thấy được sự đơn giản và nhẹ nhàng nhưng vẫn có sức hút mãnh liệt.


Mẫu nhà cấp 4 hình chữ U mái thái 150m2
Hình khối kiến trúc chữ U giúp cho ngôi nhà trở nên độc đáo và cân đối hơn. Mặt tiền ngôi nhà thiết kế đơn giản, ở giữa khoảng chữ U là hệ thống bậc tam cấp rộng chạy thẳng lên sảnh chính, được ốp đá nhằm tạo sự thuận tiện trong quá trình di chuyển.

Với diện tích 150m2 đủ rộng rãi để gia chủ có thể xây nhà cấp 4 chữ U hiện đại. Mẫu nhà đẹp này được kết hợp giữa hệ mái thái kiên cố cùng vật liệu kính cường lực và mảng khối vuông vức giúp ngôi nhà tăng thêm tính thẩm mỹ.


Nhà cấp 4 chữ U mái thái 160m2
Mẫu nhà cấp 4 chữ U mái thái 160m2 được nhiều khách hàng yêu thích và lựa chọn. Không chỉ phổ biến tại các vùng nông thôn mà còn cả ở các khu vực thành phố lớn khác. Với mặt tiền hiện đại, tinh tế và sang trọng, thiết kế nhà cấp 4 chữ U 160m2 mang đến thẩm mỹ cao cho gia chủ.


Công trình đáp ứng đầy đủ nhu cầu sinh hoạt của gia đình có đông thành viên. Ngôi nhà được thiết kế tone màu trắng làm chủ đạo với phần mái thái màu đỏ nổi bật. Hệ thống cửa chính và cửa sổ được làm bằng vật liệu gỗ nâu không những tạo sự chắc chắn cho công trình mà còn góp phần làm tăng hiệu ứng thẩm mỹ cho căn nhà. Hệ thống cửa ưu tiên sử dụng kính cường lực trong suốt giúp lấy sáng và gió hiệu quả cho nội thất bên trong nhà.


Mẫu nhà cấp 4 chữ U 200m2
Mẫu nhà cấp 4 chữ U 200m2 là một trong những lựa chọn lý tưởng cho những gia đình mong muốn không gian sống rộng rãi, tiện nghi và hài hòa với thiên nhiên. Với diện tích 200m2, ngôi nhà mang đến sự thoải mái trong bố trí công năng, đồng thời vẫn giữ được vẻ đẹp cân đối, sang trọng và phù hợp với xu hướng kiến trúc hiện đại.


Với diện tích lớn, nhà cấp 4 chữ U 200m2 thường được bố trí từ ba đến bốn phòng ngủ, phù hợp cho những gia đình đông thành viên. Không gian phòng khách rộng rãi, bếp và khu ăn uống được kết nối thông minh, tạo sự tiện nghi và ấm cúng. Hệ thống cửa kính lớn giúp tận dụng ánh sáng tự nhiên, kết hợp với gió trời, mang lại bầu không khí trong lành và dễ chịu.

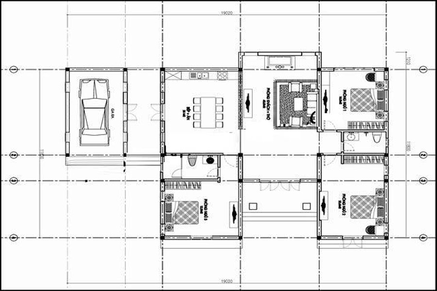
Tham khảo các bản vẽ nhà cấp 4 chữ U tiện nghi, chuẩn phong thủy
Dưới đây là các bản vẽ nhà cấp 4 chữ U được triển khai tỉ mỉ và tối ưu công năng, đảm bảo tính tiện lợi, khoa học và nhu cầu sử dụng cho nhiều gia đình. Từ mặt bằng tổng thể, bản vẽ thể hiện rõ cách phân chia khu vực phòng khách, phòng ngủ, bếp ăn và không gian phụ trợ một cách hợp lý, thuận tiện cho sinh hoạt của gia đình.
Điểm nhấn trong bản vẽ là khoảng sân trung tâm của chữ U, vừa giúp lấy sáng và gió tự nhiên, vừa có thể bố trí tiểu cảnh để tăng sự thoáng đãng. Ngoài ra, bản vẽ còn tính toán kỹ lưỡng về hướng cửa, vị trí phòng và lối đi, nhằm đáp ứng các nguyên tắc phong thủy, tạo sự cân bằng và mang lại may mắn cho gia đình. Đây là cơ sở quan trọng giúp gia chủ hình dung rõ ràng kiến trúc ngôi nhà trước khi thi công, đồng thời tiết kiệm chi phí và hạn chế tối đa những sai sót trong quá trình xây dựng. Cùng tham khảo một số bản vẽ nhà cấp 4 chữ U phổ biến nhất hiện nay qua nội dung sau đây!

Bản vẽ nhà cấp 4 chữ U 3 phòng ngủ có gara ô tô

Bản vẽ mặt bằng công năng nhà cấp 4 chữ U 3 phòng ngủ 1 phòng thờ

Bản vẽ mặt bằng công năng nhà cấp 4 chữ U tối ưu không gian
Lưu ý khi xây nhà cấp 4 chữ U
Để xây dựng nhà cấp 4 chữ U vừa tính thẩm mỹ, công năng tối ưu và tiết kiệm chi phí, gia chủ cần cân nhắc kỹ lưỡng nhiều yếu tố ngay từ khâu lên ý tưởng đến quá trình thi công hoàn thiện. Dưới đây là những lưu ý quan trọng không nên bỏ qua:
- Đảm bảo bố cục kiến trúc cân đối và hài hòa: Nhà chữ U có đặc trưng là hai cánh nhà vươn ra hai bên và phần lõm ở trung tâm. Vì vậy, việc tính toán tỷ lệ giữa chiều dài, chiều rộng và chiều cao các khối nhà đóng vai trò rất quan trọng. Nếu hai cánh quá dài hoặc khu vực trung tâm quá hẹp có thể khiến tổng thể mất cân đối, gây cảm giác nặng nề hoặc rời rạc. Bên cạnh đó, vị trí các phòng chức năng cũng cần được sắp xếp hợp lý để đảm bảo sự liên kết thuận tiện trong sinh hoạt, đồng thời giữ được sự riêng tư cần thiết cho từng khu vực.
- Tận dụng tối đa khoảng trống trung tâm: Khoảng lõm giữa nhà chính là điểm nhấn đặc trưng của kiến trúc chữ U. Khu vực này gia chủ nên đầu tư thiết kế chỉn chu và bài bản dựa trên nhu cầu của gia đình, có thể bố trí thành sân vườn, hồ cá, tiểu cảnh, khu vực uống trà hoặc không gian sinh hoạt ngoài trời. Bên cạnh việc tăng giá trị thẩm mỹ, không gian này còn cải thiện vi khí hậu cho toàn bộ công trình, vì thế mà gia chủ cần đặc biệt quan tâm.
- Chú trọng yếu tố phong thủy: Trong quan niệm phong thủy, phần lõm của nhà chữ U nếu để trống trải tạo cảm giác thiếu hụt hoặc không vững chắc. Do đó, cần xử lý một cách khéo léo bằng cách bố trí cây xanh, đèn chiếu sáng, thảm cỏ hoặc tiểu cảnh để tạo sự cân bằng tổng thể. Ngoài ra, hướng nhà, hướng cửa chính, cửa sổ và các lối đi phải tính toán và thiết kế theo tuổi và mệnh của gia chủ.
- Lựa chọn vật liệu xây dựng phù hợp: Tùy theo phong cách thiết kế và loại mái sử dụng như mái Thái, mái Nhật hay mái bằng mà cũng như ngân sách đầu tư mà gia chủ đưa ra phương án lựa chọn phù hợp. Tuy nhiên nên ưu tiên lựa chọn vật liệu có độ bền cao, chống nóng và chống ẩm tốt. Đặc biệt với khí hậu nhiệt đới ẩm của Việt Nam, vật liệu cần phải đảm bảo khả năng chịu thời tiết khắc nghiệt và hạn chế nứt vỡ, thấm dột.
- Thiết kế hệ thống chiếu sáng và thông gió khoa học: Do cấu trúc chữ U có thể xuất hiện các góc khuất hoặc các khu vực ít tiếp xúc trực tiếp với mặt tiền. Vì thế, các giải pháp lấy sáng và thông gió như cửa sổ, cửa kính lớn, giếng trời,… là phương án tối ưu nhất mà gia chủ cần cân nhắc bố trí nhằm hạn chế các tình trạng ẩm mốc và giảm phụ thuộc vào các thiết bị nhân tạo, vừa tiết kiệm chi phí vận hành, vừa nâng cao chất lượng sống.
- Chọn đơn vị uy tín, chuyên nghiệp: Nhà chữ U đòi hỏi sự tính toán kỹ về kết cấu, tỷ lệ và bố trí không gian chức năng tối ưu. Vì vậy, chủ đầu tư cần làm việc với đơn vị thiết kế – thi công chuyên nghiệp, có nhiều năm kinh nghiệm thực tế để hiện thực hóa ý tưởng một cách chính xác và tối ưu ngân sách đầu tư. Để đánh giá và lựa chọn đơn vị uy tín, gia chủ cần tìm hiểu kỹ lưỡng thông qua các dự án thiết kế, dự án thi công hoàn thiện, tham khảo ý kiến phản hồi của khách hàng đã sử dụng dịch vụ thông qua các phương tiện truyền thông uy tín, thông qua giới thiệu của bạn bè, người thân trong gia đình.

Bảng báo giá thiết kế nhà cấp 4 chữ U
Thiết kế nhà cấp 4 chữ U là một giai đoạn không thể thiếu để hoàn thiện ngôi nhà mơ ước của gia đình. Việc có hồ sơ thiết kế chi tiết trước khi thi công sẽ đảm bảo một công trình đẹp và chất lượng, công năng sử dụng tiện nghi và hạn chế tối đa những sai sót, phát sinh.
Với hơn 12 năm hình thành và phát triển cùng đội ngũ kiến trúc sư, kỹ sư, thợ thi công giàu kinh nghiệm và nhiệt huyết, luôn sẵn sàng đem đến giải pháp thiết kế nhà cấp 4 chữ U hoàn hảo và tối ưu nhất cho quý khách hàng trên khắp tỉnh thành tại Việt Nam. Hiện tại, đơn giá thiết kế nhà cấp 4 chữ U của NEOHouse như sau:
| Nội dung thực hiện | Báo giá thiết kế (Đơn giá VNĐ/m2) | ||
|---|---|---|---|
|
Phong cách hiện đại | Phong cách tân cổ điển | Phong cách cổ điển |
| 75.000Đ – 95.000Đ/m2 | 120.000 – 135.000Đ/m2 | 145.000Đ – 160.000Đ/m2 | |
| Khi lựa chọn dịch vụ xây nhà cấp 4 trọn gói, khách hàng sẽ nhận được ưu đãi miễn phí 100% chi phí hồ sơ thiết kế | |||
Lưu ý: Đơn giá thiết kế trên chỉ mang tính chất tham khảo, bởi nó còn phụ thuộc vào nhiều yếu tố khác như quy mô, phong cách, mức độ đầu tư, thời điểm,… do đó, để có báo giá cụ thể và chính xác hơn,quý khách hãy liên hệ trực tiếp cho chúng tôi qua zalo/hotline: 0937.100.202 để được kiến trúc sư, nhân viên hỗ trợ miễn phí cho mình nhé!
Mẹo tối ưu chi phí xây dựng nhà cấp 4 chữ U không nên bỏ qua
Để tối ưu chi phí xây nhà cấp 4 chữ U, chủ đầu tư cần chuẩn bị kế hoạch chi tiết ngay từ giai đoạn thiết kế. Sau đây là một số mẹo tiết kiệm chi phí mà NEOHouse chia sẻ gửi đến quý khách cùng tham khảo!
- Lập kế hoạch tổng thể ngay từ đầu: Trước khi bắt đầu xây dựng, gia chủ hãy xác định rõ nhu cầu sử dụng, diện tích mong muốn và mức đầu tư tối đa có thể chi trả. Việc hoạch định ngân sách chi tiết cho từng hạng mục như phần móng, khung kết cấu, mái, hệ thống điện nước và nội thất sẽ hạn chế tình trạng thiếu hụt tài chính giữa chừng. Đồng thời, chủ nhà cũng nên dự phòng thêm một khoản chi phí phát sinh để chủ động xử lý các vấn đề ngoài kế hoạch.
- Đầu tư vào thiết kế bài bản: Một bộ hồ sơ thiết kế chuyên nghiệp không chỉ góp phần kiến tạo nên một ngôi nhà đạt tính thẩm mỹ cao mà còn tối ưu diện tích và vật tư xây dựng. Theo đó, kiến trúc sư sẽ tính toán kỹ lưỡng và chi tiết về kích thước các phòng, vị trí cửa sổ, giếng trời và khoảng sân trung tâm, từ đó hạn chế lãng phí diện tích xây dựng. Đồng thời, hồ sơ thiết kế còn giúp giảm thiểu sai sót khi thi công, tránh sửa chữa tốn kém.
- Tối ưu diện tích và công năng sử dụng: Không nên xây dựng diện tích quá lớn so với nhu cầu thực tế. Thay vào đó, gia chủ nên ưu tiên không gian mở, liên thông phòng khách – bếp – ăn để vừa tạo cảm giác rộng rãi vừa tiết kiệm chi phí tường ngăn và hoàn thiện. Hai cánh chữ U nên được bố trí khoa học, tránh hành lang dài hoặc khu vực ít sử dụng gây lãng phí diện tích.
- Lựa chọn vật liệu phù hợp ngân sách: Ưu tiên các vật liệu có độ bền cao, phù hợp điều kiện khí hậu nhưng ở mức giá hợp lý. Không nhất thiết phải chọn sản phẩm cao cấp cho toàn bộ công trình, gia chủ có thể phân bổ ngân sách theo mức độ quan trọng của từng khu vực. Ví dụ, đầu tư cho phần kết cấu và mái để đảm bảo độ bền, trong khi nội thất có thể lựa chọn phương án vừa phải và nâng cấp dần về sau này.
- So sánh và lựa chọn nhà thầu uy tín: Tham khảo báo giá từ nhiều đơn vị thi công giúp gia chủ có cái nhìn tổng quan về mặt bằng chi phí thị trường. Tuy nhiên, không nên chỉ chọn đơn vị giá rẻ mà cần đánh giá dựa trên năng lực, kinh nghiệm và cam kết rõ ràng trong hợp đồng.

Phong thủy nhà cấp 4 chữ U có tốt không?
Với kiểu nhà cấp 4 chữ U có bố cục đặc trưng về phần lõm ở trung tâm và hai cánh nhà ôm hai bên. Về mặt phong thủy, kiểu nhà này không hẳn xấu nhưng cần phải được thiết kế và tính toán khoa học để hóa giải triệt để nhằm cân bằng năng lượng và mang lại may mắn cho gia chủ.
Góc nhìn phong thủy về kiểu nhà chữ U
Theo quan niệm phong thủy, hình dáng ngôi nhà có ảnh hưởng trực tiếp đến sự lưu thông của dòng khí. Đối với nhà chữ U có phần khuyết ở giữa đôi khi được cho là tạo cảm giác “thiếu hụt” hoặc không trọn vẹn. Nếu khoảng lõm quá sâu và không được thiết kế hợp lý, có thể khiến luồng khí bị phân tán, khó tụ tài.
Tuy nhiên, trong thực tế hiện nay, nhà chữ U nếu thiết kế cân đối, tỷ lệ hài hòa giữa hai cánh và khu vực trung tâm thì vẫn đáp ứng tốt về mặt phong thủy, thậm chí còn tạo thế “ôm trọn” khoảng sân, tạo điều kiện tụ khí và tăng sinh khí cho ngôi nhà.

Cách hóa giải phong thủy cho nhà cấp 4 chữ U
- Bố trí sân trung tâm hợp lý: Không nên để khoảng lõm giữa nhà trống trải hoặc hoang vắng. Gia chủ có thể trồng cây xanh, làm tiểu cảnh, bố trí đèn chiếu sáng hoặc bàn trà ngoài trời để tạo cảm giác đầy đặn và sinh động.
- Thiết kế cửa chính và lối đi: Cửa chính đặt ở vị trí hợp tuổi gia chủ, đảm bảo đón gió và ánh sáng tự nhiên. Tuyệt đối tránh bố trí cửa chính đối diện thẳng với cửa sau để hạn chế thất thoát tài lộc.
- Đảm bảo sự cân đối giữa hai cánh nhà: Hai bên của chữ U nên có chiều dài và chiều cao tương đối hài hòa, tránh một bên quá lớn, một bên quá nhỏ gây mất cân bằng phong thủy.
- Tăng cường ánh sáng và thông gió: Không gian sáng sủa, thoáng khí tạo điều kiện thuận lợi cho dòng năng lượng lưu chuyển, mang đến cho gia đình cảm giác dễ chịu và tăng vượng khí cho gia đình. Theo đó, gia chủ có thể sử dụng cửa kính, giếng trời,… để tận dụng tối đa nguồn ánh sáng và gió trời từ bên ngoài vào trong nhà.

Tóm lại, phong thủy nhà cấp 4 chữ U không xấu như nhiều người vẫn lo ngại. Nếu được thiết kế và tính toán khoa học, chú trọng về mặt phong thủy, mẫu nhà này vẫn mang đến một không gian sống hài hòa, thu hút sinh khí và tài lộc. Điều quan trọng là gia chủ nên tham khảo ý kiến của kiến trúc sư hoặc chuyên gia phong thủy để có giải pháp phù hợp ngay từ giai đoạn đầu.
NEOHouse – Công ty chuyên thiết kế và thi công nhà cấp 4 chữ U uy tín
NEOHouse là đơn vị uy tín hàng đầu trong lĩnh vực thiết kế và thi công nhà ở, đặc biệt nổi bật với các mẫu nhà cấp 4 chữ U hiện đại, tiện nghi và chuẩn phong thủy. Với đội ngũ kiến trúc sư sáng tạo cùng nhiều năm kinh nghiệm, NEOHouse mang đến những bản vẽ tối ưu công năng, đảm bảo sự hài hòa giữa thẩm mỹ và nhu cầu sử dụng thực tế của gia đình.

Mỗi công trình do NEOHouse thực hiện đều được đầu tư nghiên cứu kỹ lưỡng, từ phối cảnh 3D, bản vẽ chi tiết cho đến lựa chọn vật liệu, giúp gia chủ hình dung rõ ràng không gian sống trước khi thi công. Hơn nữa, NEOHouse còn cam kết quy trình thi công chuyên nghiệp, sử dụng vật liệu chất lượng và đảm bảo tiến độ, mang đến một ngôi nhà bền vững và sang trọng, tránh phát sinh chi phí.
Nếu đang tìm kiếm giải pháp thiết kế và thi công nhà cấp 4 chữ U vừa đẹp mắt, vừa phù hợp với ngân sách, NEOHouse chính là đối tác tin cậy, đồng hành cùng quý khách kiến tạo tổ ấm lý tưởng. Điều đặc biệt, khi chọn dịch vụ thi công trọn gói, NEOHouse sẽ miễn phí 100% chi phí thiết kế.

Trên đây là tổng hợp những mẫu thiết kế nhà cấp 4 chữ U sang trọng và đẹp nhất hiện nay cùng với chi phí đầu tư thấp. Nếu yêu thích một trong số mẫu trên mà chúng tôi cung cấp hãy vui lòng liên hệ đến văn phòng của NEOHOUSE qua hotline 0937.100.202 để được hỗ trợ báo giá và tư vấn chi tiết hơn nữa nhé.