Bản vẽ mặt bằng chính là “khung xương” quyết định hình thái tổng thể cũng như bố cục bên trong của căn biệt thự. Chúng giúp gia chủ hình dung rõ ràng quy mô, kích thước, lối đi giữa các khu vực và cách bố trí công năng trong nhà từ đó có thể nhận xét cũng như đề xuất cải thiện dành cho đơn vị thiết kế. NEOHouse.vn đã tổng hợp và gửi đến quý khách 40+ mẫu bản vẽ biệt thự 2 tầng full, đa dạng về diện tích, công năng và phong cách từ hiện đại, tân cổ điển, kiểu pháp,… Các mẫu thiết kế đều được thiết kế linh hoạt và cá nhân hóa theo từng nhu cầu, mong muốn riêng của khách hàng.
Tham khảo thêm: 15+ Mẫu mặt bằng biệt thự 2 tầng chi tiết, chuẩn phong thủy
Ưu điểm của bản vẽ biệt thự 2 tầng full
Để hiểu vì sao hồ sơ thiết kế chi tiết lại quan trọng đến vậy, dưới đây là những ưu điểm nổi bật mà bản vẽ biệt thự 2 tầng full mang đến cho gia chủ:
- Hiển thị công năng chi tiết và trực quan: Thiết kế bản vẽ biệt thự 2 tầng full thể hiện đầy đủ mặt bằng cùng các vị trí các phòng chức năng, khu sinh hoạt chung, khu phụ và cả không gian sân vườn. Nhờ đó, gia chủ dễ dàng hình dung tổng thể ngôi nhà trước khi xây dựng, đồng thời kiểm tra xem bố trí đã hợp lý với nhu cầu thực tế hay chưa. Việc này giúp hạn chế sai sót trong thi công và đảm bảo mỗi không gian đều được tối ưu về tiện nghi lẫn thẩm mỹ.
- Đảm bảo chuẩn kỹ thuật và độ bền công trình: Hồ sơ bản vẽ đầy đủ bao gồm bản vẽ kiến trúc, kết cấu và kỹ thuật, thể hiện chính xác các thông số móng, cột, dầm, sàn và hệ mái. Khi đội ngũ thi công có bản vẽ biệt thự 2 tầng full đầy đủ dữ liệu này, quá trình xây dựng diễn ra chính xác, giúp công trình đạt tiêu chuẩn chịu lực và độ bền cao. Điều này đồng thời giảm nguy cơ sự cố, hạn chế các khoản sửa chữa phát sinh trong tương lai.
- Kiểm soát tốt chi phí và tiến độ thi công: Một bản vẽ biệt thự 2 tầng full đầy đủ giúp đội thợ thi công biết chính xác khối lượng vật tư, cấu kiện và kỹ thuật cần thực hiện. Nhờ đó, các hạng mục được tiến hành đúng trình tự, tránh lãng phí và giảm thời gian xử lý lỗi. Gia chủ cũng dễ dàng theo dõi tiến độ và quản lý ngân sách, hạn chế tối đa chi phí phát sinh.
- Bố trí hệ thống điện nước chính xác và an toàn: Bản vẽ thể hiện rõ sơ đồ điện, nước, thông gió, chiếu sáng và các hệ thống kỹ thuật khác. Việc này đảm bảo thi công đồng bộ ngay từ đầu, tránh trường hợp phải đục phá tường hoặc điều chỉnh lại đường điện, nước về sau. Không chỉ nâng cao tính an toàn khi sử dụng, mà còn hỗ trợ hiệu quả quá trình bảo trì lâu dài.
- Tối ưu ánh sáng tự nhiên và thông gió: Thông qua bản vẽ phối cảnh và mặt bằng chi tiết, việc bố trí cửa sổ, cửa đi, ban công và giếng trời sẽ tối ưu hơn. Từ đó, tạo điều kiện cho ánh sáng và gió tự nhiên lưu thông tốt hơn, giúp không gian nội thất luôn thoáng mát, tiết kiệm năng lượng và nâng cao chất lượng sinh hoạt của các thành viên trong gia đình.

Khám phá 40+ mẫu bản vẽ biệt thự 2 tầng full chi tiết đáng tham khảo nhất
Dưới đây là những bản vẽ biệt thự 2 tầng full được nhiều gia chủ yêu thích nhờ bố cục khoa học, đường nét trẻ trung và hồ sơ kỹ thuật thể hiện rõ ràng từng hạng mục. Các mẫu thiết kế này không chỉ tối ưu công năng mà còn mang đến trải nghiệm sống tiện nghi và thẩm mỹ cao.
Bản vẽ thiết kế biệt thự 2 tầng hiện đại full
Phối cảnh của căn biệt thự 2 tầng hiện đại được các KTS tại NEOHouse thiết kế với hình khối cân đối, bố cục mạch lạc và phong cách trẻ trung. Mặt tiền sử dụng tông màu trung tính kết hợp vật liệu kính, đá và gỗ tạo nên diện mạo sang trọng nhưng vẫn nhẹ nhàng và gần gũi. Các mảng ban công, lam trang trí và cây xanh được bố trí hợp lý giúp công trình thêm sinh động và có chiều sâu. Không gian bên ngoài từ sân vườn đến sảnh chính được thiết kế thông thoáng, gắn kết kiến trúc với thiên nhiên.

Mặt bằng công năng trong bản vẽ biệt thự 2 tầng full được bố trí khoa học theo nhu cầu sinh hoạt của gia đình. Tầng trệt gồm phòng khách liên thông bếp và bàn ăn, phòng ngủ cho bà, khu giặt phơi và nhà vệ sinh chung. Lầu một là không gian riêng tư với phòng ngủ master có phòng thay đồ và vệ sinh riêng, một phòng ngủ cho bé, phòng thờ, nhà vệ sinh chung cùng phòng sinh hoạt mở ra ban công thoáng đãng. Tổng thể mang đến không gian sống tiện nghi, hiện đại và phù hợp cho gia đình trẻ.


Bản vẽ biệt thự 2 tầng tân cổ điển full
Với bản vẽ biệt thự 2 tầng full tân cổ điển 10x12m, công trình nổi bật với hình khối vuông vức, tỷ lệ cân đối và các đường phào chỉ, gờ tường tinh tế. Tầng trệt được ốp gạch thẻ đỏ than kết hợp trụ cột vuông, trụ tròn lầu một và mái hiên đua rộng tạo vẻ kiên cố, sang trọng mà vẫn uyển chuyển, cuốn hút mọi ánh nhìn.
Mặt tiền được nhấn nhá bởi ban công rộng với lan can sắt đen, cửa kính vòm kết hợp cửa gỗ tự nhiên. Gam màu trắng chủ đạo hòa quyện cùng sắc đỏ của gạch, màu xanh mái thái và điểm nhấn đen của cửa kính mang đến tổng thể hài hòa, tinh tế. Hệ mái thái chữ A bao phủ toàn bộ công trình vừa tăng chiều cao vừa giúp không gian nội thất thoáng mát, đón sáng và vượng khí tốt.

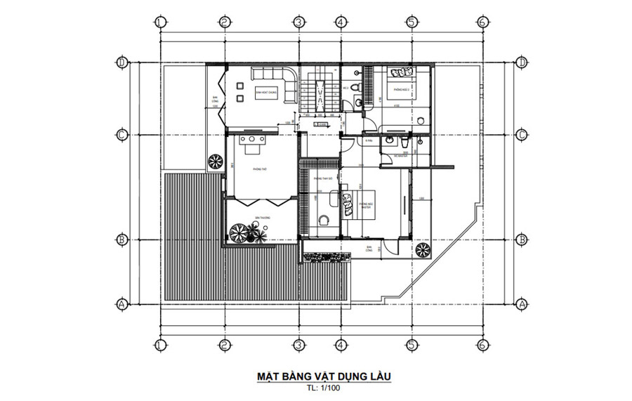
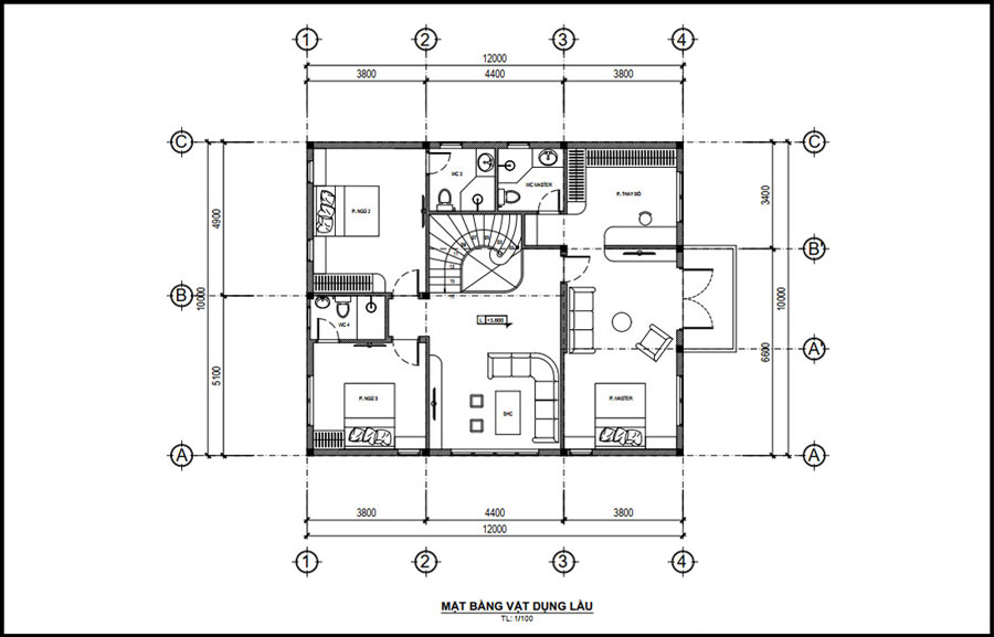
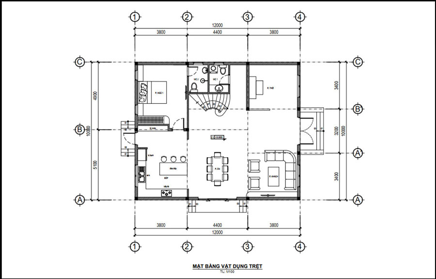
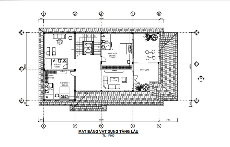
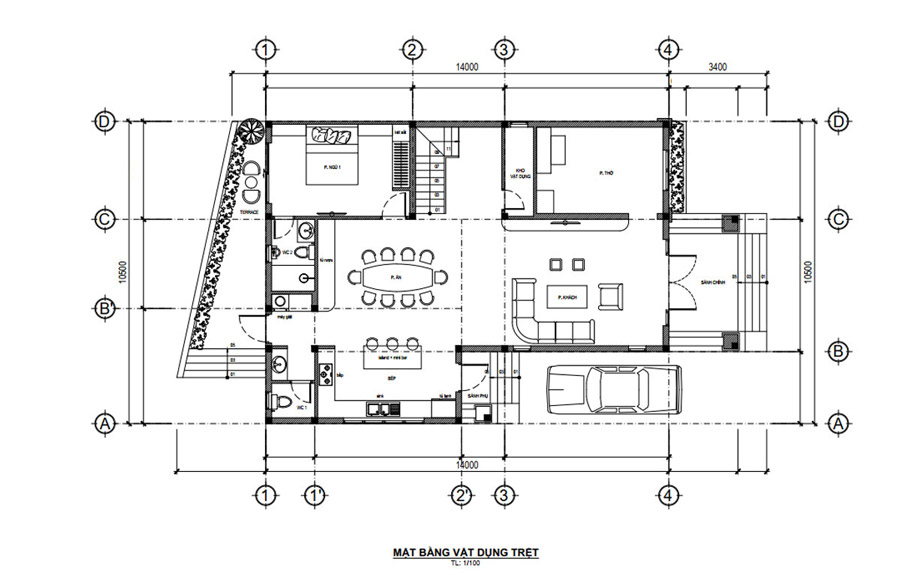
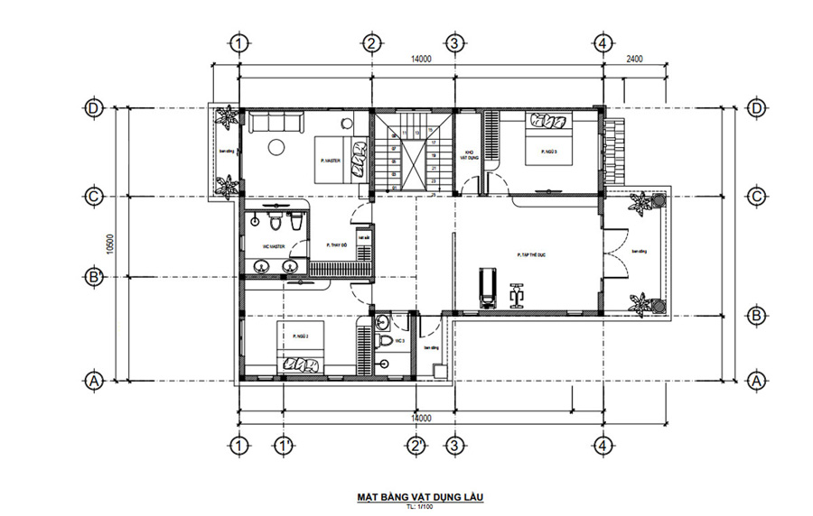
Không gian sử dụng của ngôi nhà được bố trí như sau: tầng trệt bố trí phòng khách liên thông bếp và bàn ăn, phòng thờ hướng ra mặt tiền, một phòng ngủ có vệ sinh riêng và nhà vệ sinh chung. Lầu 1 bao gồm ba phòng ngủ tiện nghi đều có vệ sinh riêng, trong đó phòng master rộng rãi có phòng thay đồ và ban công trước nhà. Khu sinh hoạt chung ở trung tâm lầu tạo sự kết nối tiện nghi cho các thành viên, đảm bảo không gian sống hiện đại và thoải mái.


Bản vẽ nhà biệt thự 2 tầng kiểu Pháp full
Bản vẽ biệt thự 2 tầng full nhà chị Lựu tại Tân Phú, HCM nổi bật với mặt tiền 10m, chiều dài 12m cùng hình khối vuông vức, rộng rãi. Phong cách Châu Âu hiện đại được thể hiện qua mái Thái chữ A, hệ sân vườn bao quanh và các chi tiết trang trí tinh tế. Hệ mái vừa tăng hiệu ứng thẩm mỹ vừa giúp điều hòa không gian nội thất luôn mát mẻ, thoát nước tốt và bảo vệ công trình bền vững.
Ngoại thất nổi bật với tone trắng chủ đạo kết hợp gạch ốp nâu, khung cửa kính nhôm Xingfa đen và mái thái xanh, tạo tổng thể hài hòa, cuốn hút. Ban công lầu một rộng rãi, các khối hình học, phào chỉ nhẹ cùng cửa kính lớn không chỉ tăng tính thẩm mỹ mà còn tối ưu ánh sáng, thông gió. Hệ tường rào và cổng chính đồng bộ với kiến trúc, sử dụng bê tông kiên cố kết hợp sắt sơn tĩnh điện và gỗ, tạo nên sự thống nhất từ trong ra ngoài.

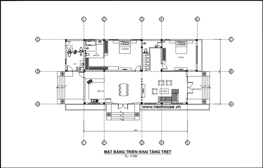
Không gian sinh hoạt của căn biệt thự được bố trí hợp lý, tối ưu cho nhu cầu của cả gia đình. Tầng dưới gồm phòng khách gần sảnh chính, phòng thờ hướng mặt tiền, khu vực bếp kết hợp bàn ăn liên thông, phòng ngủ ông bà với vệ sinh riêng và WC chung, tạo sự thuận tiện và thoáng đãng. Trong khi đó, lầu trên sẽ là nơi nghỉ ngơi riêng tư với phòng master rộng rãi, có phòng thay đồ, vệ sinh khép kín và ban công, cùng hai phòng ngủ con có vệ sinh riêng, phòng sinh hoạt chung và cầu thang ở trung tâm, mang đến không gian thoải mái, tiện nghi và riêng tư cho cả gia đình.

Bản vẽ biệt thự 2 tầng mái thái full
Mẫu biệt thự 2 tầng mái thái 135m2 của chị Nhung được yêu cầu thiết kế hiện đại, sang trọng sử dụng hệ mái thái cao ráo, chắn chắn nhưng vẫn gần gũi với thiên nhiên và đáp ứng nhu cầu sinh hoạt tiện nghi cho gia đình. Sau quá trình lắng nghe nhu cầu của chị, các KTS tại NEOHouse đã tiến hành tính toán tỉ mỉ từng chi tiết, từ hình khối, màu sắc cho đến vật liệu sử dụng, nhằm tạo nên một tổng thể hài hòa, cân đối và tinh tế.
Phối cảnh 3D thể hiện rõ sự khỏe khoắn, vững chắc của khối nhà, đồng thời có tỷ lệ cân đối theo tỷ lệ vàng. Mặt tiền tối giản, không cầu kỳ về hoa văn nhưng vẫn nổi bật với các thức cột trụ, phào chỉ và khối mái chữ A màu xanh cao ráo. Gam màu trung tính kết hợp với gạch nâu, kính khung nhôm trắng và tiểu cảnh xanh mang đến cảm giác trẻ trung, thanh lịch và gần gũi với thiên nhiên. Cửa kính trong suốt giúp tận dụng ánh sáng và gió tự nhiên, tạo không gian mở, thoáng đãng và tràn năng lượng.

Theo bản vẽ biệt thự 2 tầng full thì mặt bằng công năng của ngôi nhà được bố trí như sau tầng dưới bố trí phòng khách gần sảnh chính, phòng sinh hoạt chung, bếp kết hợp bàn ăn và 2 phòng ngủ tiện nghi cho ông bà và khách. Tầng trên là không gian nghỉ ngơi với phòng master, 2 phòng ngủ con, phòng thờ hướng mặt tiền và nhà vệ sinh chung, đảm bảo sự riêng tư, thoải mái và tiện nghi cho cả gia đình.


Thiết kế bản vẽ biệt thự 2 tầng mái Nhật full
Với bản vẽ biệt thự vườn 2 tầng full mái nhật, NEOHouse JSC đã thiết kế một công trình hiện đại, thanh thoát và cân đối. Phối cảnh 3D nổi bật với các khối hình vuông vức, đường kẻ dọc độc đáo, hệ trụ cột kiên cố kết hợp chân cột ốp đá tự nhiên tạo điểm nhấn thẩm mỹ. Hệ thống cửa kính khung nhôm màu đen, cửa mở trượt hiện đại và ban công đua rộng giúp kết nối không gian bên trong với thiên nhiên, đồng thời mang đến sự thông thoáng và nét đẹp hiện đại cho tổng thể.
Ngoại thất tập trung vào sự đơn giản nhưng tinh tế, gam màu trắng chủ đạo kết hợp với các vật liệu như sắt, đá, gỗ tạo nên vẻ cao ráo, sang trọng và hài hòa. Ban công rộng, lan can sắt và tiểu cảnh xanh quanh nhà vừa gia tăng thẩm mỹ, vừa giúp không gian sống luôn thoáng mát, dễ chịu. Thiết kế tinh giản nhưng vẫn nổi bật, đem lại cảm giác hiện đại và lịch lãm cho căn biệt thự vườn 2 tầng 130m2.

Không gian bên trong ngôi nhà được bố trí khoa học với tầng trệt bao gồm gara ô tô rộng rãi, phòng khách gần sảnh chính, bếp kết hợp bàn ăn và quầy bar hướng ra sảnh phụ, cùng phòng ngủ có vệ sinh khép kín. Dưới cầu thang được tận dụng tiểu cảnh nhỏ tạo sự thông thoáng và sinh khí cho căn nhà. Lầu 1 được thiết kế với 3 phòng ngủ riêng tư, đặc biệt có 2 phòng có ban công. Và phòng thờ được đạt tại vị trí yên tĩnh, đảm bảo sự trang nghiêm và thoáng mát.


Bản vẽ biệt thự 2 tầng mái bằng hiện đại full
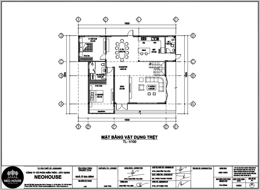
Công trình biệt thự 2 tầng mái bằng của anh Tân tại Lào được thiết kế đáp ứng nhu cầu không gian sống rộng rãi, hiện đại và tiện nghi. Phối cảnh 3D thể hiện mặt tiền 2 hướng thoáng rộng, kết hợp kính cường lực, lam gỗ và đá ốp tường hài hòa với cảnh quan sân vườn, mang đến tổng thể vừa sang trọng vừa gần gũi với thiên nhiên. Khối kiến trúc vuông vức cùng hệ ban công và dầm đua tạo điểm nhấn ấn tượng, đồng thời giúp ánh sáng và gió tự nhiên len lỏi vào mọi không gian.
Tổng thể kiến trúc nổi bật với mái bằng, sơn tường trắng trung tính cùng tiểu cảnh, hồ bơi và sân vườn bố trí khoa học, tạo sự kết nối liền mạch giữa kiến trúc và thiên nhiên. Các vật liệu hiện đại như cửa kính, lam gỗ, đá tự nhiên và nhôm phun sơn tĩnh điện vừa tăng giá trị thẩm mỹ vừa đảm bảo công năng, mang lại sự tiện nghi, thoáng mát và cảm giác đẳng cấp cho toàn bộ biệt thự.

Mặt bằng công năng trong bản vẽ biệt thự 2 tầng full bao gồm: Tầng trệt bao gồm gara ô tô, phòng khách liên thông bếp và bàn ăn, 2 phòng ngủ trong đó có phòng master khép kín, cầu thang thông tầng và nhà vệ sinh chung. Lầu 1 bố trí 2 phòng ngủ có ban công, phòng thờ trung tâm, khu tập gym và giặt phơi, cùng phòng sinh hoạt chung kết nối các thành viên. Thiết kế đảm bảo khoa học, tiện nghi và đáp ứng tối đa nhu cầu sử dụng của gia đình.


Bản vẽ thiết kế biệt thự 2 tầng mái lệch full
Bản vẽ biệt thự 2 tầng full mái lệch nổi bật với hình khối vuông vức, cân đối và hiện đại. Mặt tiền sử dụng bậc tam cấp ốp đá tự nhiên, kết hợp khối ban công đua rộng với lan can kính và gạch giả gỗ, tạo điểm nhấn thẩm mỹ tinh tế. Hệ cửa kính khung nhôm màu đen giúp không gian thông thoáng, đón sáng tự nhiên, trong khi mái lệch tầng và phối màu trung tính hài hòa mang đến tổng thể sang trọng, hiện đại nhưng vẫn gần gũi.

Các khu vực chức năng được phân chia tầng trệt bố trí phòng khách rộng, liên thông phòng bếp + ăn, cầu thang thông tầng ở trung tâm, phòng ngủ sát sân vườn trước và nhà vệ sinh chung cuối góc nhà. Tầng 2 tập trung vào không gian sinh hoạt riêng tư với phòng đọc sách, 2 phòng ngủ đều có ban công rộng, phòng thờ hướng ban công sau và nhà vệ sinh chung đặt gần phòng đọc sách, đảm bảo sự tiện nghi, thoải mái và kết nối các thành viên trong gia đình.


Mẫu bản vẽ biệt thự 2 tầng full ở nông thôn
Phối cảnh ngoại thất biệt thự 2 tầng mái thái 12×20m tại Tây Ninh nổi bật với hình khối hiện đại kết hợp mái thái truyền thống, mang đến vẻ bề thế và cân đối. Mặt tiền sử dụng gam màu trắng chủ đạo, điểm xuyết mái xanh, ốp đá, gạch inax và gỗ nhựa ngoài trời, tạo hiệu ứng thẩm mỹ tinh tế. Hệ cửa kính khung nhôm tối màu giúp không gian bên trong sáng, thông thoáng, đồng thời sân vườn và tiểu cảnh bao quanh tăng thêm nét gần gũi với thiên nhiên.

Mặt bằng được bố trí khoa học, đáp ứng nhu cầu sử dụng của cả gia đình. Tầng trệt gồm phòng khách rộng, phòng thờ, 2 phòng ngủ khép kín, bếp + bàn ăn và lối ra sân sau. Lầu 1 tập trung không gian nghỉ ngơi và sinh hoạt chung với phòng master hướng mặt tiền, phòng ngủ khách, phòng sinh hoạt chung và phòng đa năng, đảm bảo tiện nghi, thông thoáng và sự kết nối giữa các thành viên trong gia đình. Tất cả đều được thể hiện chi tiết trong bản vẽ biệt thự 2 tầng full, giúp gia chủ hình dung rõ ràng từng không gian.


Mẫu bản vẽ nhà biệt thự 2 tầng chữ L full
Căn biệt thự 2 tầng mái Thái chữ L tại Long An gây ấn tượng với hình khối hiện đại, kết hợp mái Thái truyền thống, tạo cảm giác bề thế và sang trọng. Gam màu trắng chủ đạo cùng chân tường ốp đá, khung cửa kính trầm và mái xanh đậm mang đến hiệu ứng tương phản tinh tế. Không gian mở với sân vườn rộng rãi giúp ngôi nhà thoáng mát, gần gũi thiên nhiên và đón nhận ánh sáng tự nhiên tốt.

Mặt bằng công năng được bố trí khoa học, đáp ứng nhu cầu sử dụng của gia đình chị Mai. Tầng trệt gồm phòng khách, phòng bếp + ăn, phòng ngủ và phòng thờ. Lầu 1 được thiết kế gồm 3 phòng ngủ, phòng tập thể dục, phòng kho và phòng vệ sinh chung. Nội thất từng phòng được sắp xếp hợp lý, phòng master có phòng vệ sinh riêng đảm bảo tiện nghi. Tổng thể chi tiết được thể hiện trong bản vẽ biệt thự 2 tầng full, giúp gia chủ dễ dàng hình dung không gian sống và kết cấu căn nhà.


Thiết kế bản vẽ nhà biệt thự 2 tầng có hồ bơi full
Bản vẽ biệt thự 2 tầng full của mẫu nhà vườn mái thái 170m2 tại Châu Pha nổi bật với hình khối cân đối, tỷ lệ hài hòa giữa mặt tiền, sân vườn, sảnh chính, ban công và khối mái đua ra. Gam màu trắng chủ đạo kết hợp nâu gỗ và mái xanh đậm tạo cảm giác thanh lịch, gần gũi. Hệ thống cửa gỗ kết hợp kính cường lực khung nhôm, ban công kính trong suốt, tường ốp gỗ nhựa và đá tự nhiên, cùng sân vườn rộng rãi với hồ bơi, tiểu cảnh và chòi nghỉ mang đến không gian sống hiện đại, thông thoáng và hòa hợp với thiên nhiên.

Mặt bằng công năng được bố trí khoa học theo nhu cầu gia đình. Tầng trệt gồm phòng khách rộng, phòng bếp + ăn mở thông, phòng ngủ master và phòng ngủ phụ đều khép kín, nhà vệ sinh chung đặt phía sau. Lầu 1 là không gian nghỉ ngơi và sinh hoạt riêng, gồm 3 phòng ngủ, phòng sinh hoạt chung, góc học tập và phòng thờ hướng ban công trước, đảm bảo tiện nghi, thông thoáng và kết nối các thành viên.


Thiết kế bản vẽ biệt thự nhà vườn 2 tầng full
Mẫu nhà biệt thự 2 tầng mái thái 6 phòng ngủ 10x23m tại Đồng Nai gây ấn tượng với hình khối chữ U cân đối, mái thái xanh rêu kết hợp gam trắng chủ đạo, đá ốp tường, gạch inax và gỗ nhựa ngoài trời, tạo vẻ hiện đại nhưng gần gũi với thiên nhiên. Ban công kính, tay vịn inox cùng hệ cửa kính khung nhôm giúp mặt tiền thông thoáng, trong khi sân vườn, hồ cá, tiểu cảnh và chòi nghỉ bao quanh mang đến không gian xanh mát, thư giãn, đồng bộ với kiến trúc tổng thể.

Công năng được bố trí hợp lý, tối ưu nhu cầu sinh hoạt gia đình. Tầng trệt gồm phòng khách kết hợp phòng thờ, cầu thang thông tầng, phòng bếp + ăn mở ra tiểu cảnh, phòng tập thể dục, phòng gia nhân, phòng xông hơi, phòng vệ sinh chung, phòng ngủ master và phòng ngủ khách khép kín. Lầu 1 tập trung không gian nghỉ ngơi với 4 phòng ngủ có nhà vệ sinh riêng, phòng sinh hoạt chung và cầu thang thông tầng, tất cả đều thể hiện chi tiết trong bản vẽ biệt thự 2 tầng full, đảm bảo tiện nghi, thông thoáng và kết nối các thành viên.



Thiết kế bản vẽ biệt thự 2 tầng cần lưu ý những gì?
- Xác định rõ nhu cầu và phong cách thiết kế: Trước tiên, cần làm rõ số lượng phòng, các khu vực chức năng cần thiết và phong cách kiến trúc mong muốn (hiện đại, cổ điển, tân cổ điển, v.v). Việc này sẽ giúp định hướng thiết kế tổng thể để bản vẽ phản ánh đúng yêu cầu sinh hoạt cũng như thị hiếu thẩm mỹ của gia chủ.
- Bố cục mặt bằng hợp lý: Các phòng chức năng cần được sắp xếp khoa học đảm bảo sự liên kết, giao thông đi lại thuận tiện, tận dụng tối đa ánh sáng và thông gió tự nhiên. Ví dụ, phòng khách, phòng ăn, bếp nên đặt gần nhau trong khi các phòng ngủ được bố trí riêng tư. Cửa sổ và giếng trời được thiết kế để tăng nguồn sáng và không khí trong lành.
- Chi tiết kỹ thuật đầy đủ và chính xác: Bản vẽ kiến trúc phải bao gồm mặt bằng, mặt cắt, mặt đứng chi tiết. Bản vẽ kết cấu cần cụ thể móng, cột, dầm, sàn đảm bảo công trình vững chắc. Bản vẽ điện nước thể hiện rõ sơ đồ cấp thoát nước, hệ thống dây điện, vị trí công tắc, ổ cắm, thiết bị điện, cùng các chi tiết như tiếp địa, chống sét để đảm bảo an toàn và tiện nghi. Tất cả các bản vẽ này phải chi tiết, tuân thủ quy chuẩn kỹ thuật để dễ dàng thi công.
- Tích hợp lấy sáng và thông gió tự nhiên: Sử dụng cửa sổ lớn, vách kính cường lực, giếng trời giúp không gian luôn thoáng đãng, giảm nhu cầu sử dụng điện. Thiết kế hệ thống thoát khí, thông gió hợp lý cũng nâng cao chất lượng khí trong nhà và tạo sự thoải mái.
- Lựa chọn vật liệu và hoàn thiện phù hợp: Ưu tiên các vật liệu thân thiện với môi trường, bền đẹp như gỗ tự nhiên, đá, gạch mộc. Vật liệu cũng cần phù hợp với phong cách kiến trúc và khí hậu vùng miền để tăng tuổi thọ và vẻ đẹp thẩm mỹ.

Dịch vụ tư vấn, thiết kế bản vẽ biệt thự 2 tầng full tại NEOHouse
NEOHouse tự hào là thương hiệu tiên phong trong thiết kế biệt thự và thi công trọn gói, điển hình như các dự án biệt thự 2 tầng với hơn 12+ năm kinh nghiệm trong lĩnh vực kiến trúc và xây dựng. Chúng tôi đã thực hiện hàng trăm công trình trên khắp cả nước với nhiều phong cách thiết kế, công năng và ngân sách. Mỗi bản vẽ biệt thự 2 tầng full đều được chúng tôi thiết kế cá nhân hóa dựa vào nhu cầu cụ thể của từng chủ đầu tư đảm báo tối ưu công năng sinh hoạt, tận dụng không gian hiệu quả và thuận tiện nhất theo thói quen sinh hoạt hằng ngày của gia đình.
- Chất lượng thi công vượt trội: Chúng tôi sở hữu một đội ngũ thi công với thay nghề cao, nhiều năm kinh nghiệm dưới sự giám sát chặt chẽ từ bộ phận giám sát. Từ đó giúp đảm bảo chất lượng và tiến độ của dự án, kể cả những dự án có yêu cầu phức tạp đều sẽ được thực hiện chuẩn xác, bền vững.
- Cam kết tiến độ xây dựng: Các giai đoạn thi công được quy định minh bạch trong hợp đồng, giúp gia chủ dễ dàng kiểm soát tiến độ dự án. NEOHouse cam kết hạn chế tối đa chậm trễ, mang đến sự an tâm tuyệt đối.
- Tư vấn kiến trúc và phong thủy: Ngoài giải pháp kiến trúc và bố cục khoa học, các kiến trúc sư chúng tôi còn tư vấn phong thủy cơ bản, vừa đẹp, tiện nghi vừa hài hòa với yếu tố tâm linh.
- Chính sách ưu đãi đặc biệt: Khi lựa chọn gói xây nhà trọn gói, khách hàng được miễn 100% phí thiết kế kiến trúc và giảm 50% phí thiết kế nội thất, tối ưu hóa ngân sách đầu tư.
- Hỗ trợ và chăm sóc toàn diện: Bộ phận chăm sóc khách hàng luôn sẵn sàng giải đáp mọi thắc mắc nhanh chóng, xuyên suốt từ thiết kế, thi công đến chính sách bảo hành sau hoàn thiện, giúp trải nghiệm xây dựng biệt thự trở nên thuận tiện và trọn vẹn.

Như vậy chúng tôi đã gửi đến cho quý khách hàng toàn bộ bản vẽ biệt thự 2 tầng full với đầy đủ phong cách thiết kế, kiểu mái và tiện ích. Hy vọng rằng, bài viết này sẽ giúp cho quý khách hàng có thể lựa chọn được mẫu thiết kế biệt thự đẹp, phù hợp đúng với nhu cầu của mình. Nếu bạn có nhu cầu thiết kế thi công biệt thự, nhà phố, hãy liên hệ với chúng tôi qua hotline/zalo: 0937.100.202 để được tư vấn vấn những mẫu thiết kế nhà đẹp dựa theo ngân sách và nhu cầu của mình.